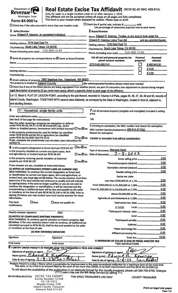
Property
Account |
| Property ID: | 206592 | Abbreviated Legal Description: | CAMALOCH 2 LOT 56 |
| Geographic ID: | S6235-02-00056-0 | Agent Code: | |
| Type: | Real | | |
| Tax Area: | 590 - APPRAISER-Stan/Cam Schl Dist, Special Dist, improved & less than 1 acre | Land Use Code | 11 |
| Open Space: | N | DFL | N |
| Historic Property: | N | Remodel Property: | N |
| Multi-Family Redevelopment: | N | | |
| Township: | | Section: | |
| Range: | |
Location |
| Address: | 282 EDINBURGH DR CAMANO ISLAND, WA 98282 | Mapsco: | |
| Neighborhood: | Cycle 5 | Map ID: | 995 |
| Neighborhood CD: | 5 |
Owner |
| Name: | QUIGLEY, ROBBY S | Owner ID: | 289171 |
| Mailing Address: | BRIAN W QUIGLEY 595 LEWIS LN CAMANO ISLAND, WA 98282 | % Ownership: | 100.0000000000% |
| | | Exemptions: | |
Taxes and Assessment Details
Values
| (+) Improvement Homesite Value: | + | $0 | |
| (+) Improvement Non-Homesite Value: | + | $293,060 | |
| (+) Land Homesite Value: | + | $0 | |
| (+) Land Non-Homesite Value: | + | $260,000 | |
| (+) Curr Use (HS): | + | $0 | $0 |
| (+) Curr Use (NHS): | + | $0 | $0 |
| | | -------------------------- | |
| (=) Market Value: | = | $553,060 | |
| (–) Productivity Loss: | – | $0 | |
| | | -------------------------- | |
| (=) Subtotal: | = | $553,060 | |
| (+) Senior Appraised Value: | + | $0 | |
| (+) Non-Senior Appraised Value: | + | $553,060 | |
| | | -------------------------- | |
| (=) Total Appraised Value: | = | $553,060 | |
| (–) Senior Exemption Loss: | – | $0 | |
| (–) Exemption Loss: | – | $0 | |
| | | -------------------------- | |
| (=) Taxable Value: | = | $553,060 | |
Taxing Jurisdiction
| Owner: | QUIGLEY, ROBBY S | | |
| % Ownership: | 100.0000000000% | | |
| Total Value: | $553,060 | | |
| Tax Area: | 590 - APPRAISER-Stan/Cam Schl Dist, Special Dist, improved & less than 1 acre |
| CF | Conservation Futures | 0.0316035091 | $553,060 | $553,060 | $17.48 | | |
| EMS1 | Fire & Rescue Dist #1 Camano GEN (EMS) | 0.3677864386 | $553,060 | $553,060 | $203.41 | | |
| FIRE1 | Fire & Rescue Dist #1 Camano GEN | 1.2502910536 | $553,060 | $553,060 | $691.49 | | |
| FIRE1BOND | Fire & Rescue Dist #1 Camano BOND | 0.1570001679 | $553,060 | $553,060 | $86.83 | | |
| CE | County Current Expense | 0.3708482477 | $553,060 | $553,060 | $205.10 | | |
| CR | County Roads | 0.4584763726 | $553,060 | $553,060 | $253.56 | | |
| LCIB | Library Sno-Isle BOND (Camano Island) | 0.0396325772 | $553,060 | $553,060 | $21.92 | | |
| LIB | Library Sno-Isle GEN | 0.3153421757 | $553,060 | $553,060 | $174.40 | | |
| SCH205_401 | School 205-401 Enrichment | 1.2698420524 | $553,060 | $553,060 | $702.30 | | |
| SCH205BOND | School 205-401 BOND | 0.9396497583 | $553,060 | $553,060 | $519.68 | | |
| ST | State School | 1.3035497053 | $553,060 | $553,060 | $720.94 | | |
| ST2 | State School Part 2 | 0.8169543533 | $553,060 | $553,060 | $451.82 | | |
| | Total Tax Rate: | 7.3209764117 | | | | | |
| | | | | Taxes w/Current Exemptions: | $4,048.93 | | |
| | | | | Taxes w/o Exemptions: | $4,048.93 | | |
Improvement / Building
| Improvement #1: | RESIDENTIAL | State Code: | Y | 1753.0 sqft | Value: | $293,060 |
| Bathrooms: | 1.5 | Bedrooms: | 2 | | Ceiling: | DRYWALL PAINTED | Exterior Wall/Cover: | PLY/HARDBOARD T-111 | | Floor Covering: | HARDWOOD/CARP 20-80 | Floor Structure: | WOOD W/SUBFLOOR | | Foundation: | CONCRETE | Heating: | WALL HEAT ELECTRIC | | Interior Finish: | DRYWALL PAINT | Plumbing Fixture Cnt: | 9 | | Roof Slope: | 4" IN 12" | Roof Structure/Cover: | CJ ASPHALT |
|
| | Type | Description | Class CD | Sub Class CD | Year Built | Area |
| | BAS | BASE/MAIN FLOOR | 3 | 0 | 1990 | 1753.0 |
| | AGR | ATTACHED GARAGE | 3 | 0 | 1990 | 400.0 |
| | OWP | OPEN WOOD PORCH W/STEPS | 3 | 0 | 1990 | 108.0 |
| | OWP | OPEN WOOD PORCH W/STEPS | 3 | 0 | 1990 | 276.0 |
Sketch
Property Image
Land
| 1 | 14 | SQ (08001-12000) | 0.0000 | 0.00 | 0.00 | 0.00 | 1.00 | $260,000 | $0 |
Roll Value History
| 2026 | N/A | N/A | N/A | N/A | N/A |
| 2025 | $293,060 | $260,000 | $0 | $553,060 | $553,060 |
| 2024 | $296,954 | $250,000 | $0 | $546,954 | $546,954 |
| 2023 | $300,849 | $250,000 | $0 | $550,849 | $550,849 |
| 2022 | $275,941 | $210,000 | $0 | $485,941 | $485,941 |
| 2021 | $236,877 | $165,000 | $0 | $401,877 | $401,877 |
| 2020 | $231,186 | $135,000 | $0 | $366,186 | $366,186 |
| 2019 | $171,449 | $175,000 | $0 | $346,449 | $346,449 |
| 2018 | $171,989 | $145,000 | $0 | $316,989 | $316,989 |
| 2017 | $173,071 | $100,000 | $0 | $273,071 | $273,071 |
| 2016 | $175,234 | $85,000 | $0 | $260,234 | $260,234 |
| 2015 | $184,507 | $65,000 | $0 | $249,507 | $249,507 |
| 2014 | $186,868 | $55,000 | $0 | $241,868 | $241,868 |
| 2013 | $189,228 | $55,000 | $0 | $244,228 | $244,228 |
| 2012 | $191,589 | $60,000 | $0 | $251,589 | $251,589 |
| 2011 | $193,950 | $65,000 | $0 | $258,950 | $258,950 |
| 2010 | $200,910 | $76,000 | $0 | $276,910 | $276,910 |
| 2009 | $210,873 | $100,000 | $0 | $310,873 | $310,873 |
| 2008 | $213,385 | $125,000 | $0 | $338,385 | $338,385 |
| 2007 | $215,913 | $100,000 | $0 | $315,913 | $315,913 |
Deed and Sales History
| 1 | 03/12/2019 | WD | Warranty Deed | CARR, RICHARD B | QUIGLEY, ROBBY S | | | $335,000.00 | 37908 | 4460672 |
| 2 | 01/21/2014 | WD | Warranty Deed | SIMMONS, HOWARD A | CARR, RICHARD B | | | $240,000.00 | 14079 | 4354234 |
Payout Agreement
| No payout information available.. |