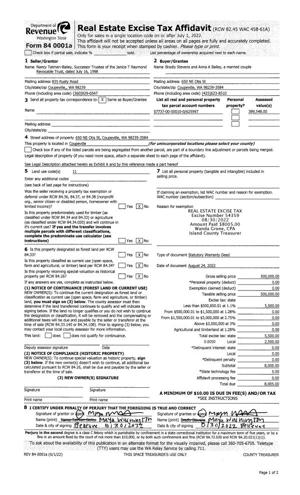
Property
Account |
| Property ID: | 206690 | Abbreviated Legal Description: | CAMALOCH 2 LOT 66 |
| Geographic ID: | S6235-02-00066-0 | Agent Code: | |
| Type: | Real | | |
| Tax Area: | 590 - APPRAISER-Stan/Cam Schl Dist, Special Dist, improved & less than 1 acre | Land Use Code | 11 |
| Open Space: | N | DFL | N |
| Historic Property: | N | Remodel Property: | N |
| Multi-Family Redevelopment: | N | | |
| Township: | | Section: | |
| Range: | |
Location |
| Address: | 339 MACBRAE DR CAMANO ISLAND, WA 98282 | Mapsco: | |
| Neighborhood: | Cycle 5 | Map ID: | 995 |
| Neighborhood CD: | 5 |
Owner |
| Name: | YARWOOD, CLYDE D | Owner ID: | 270499 |
| Mailing Address: | NANCY L YARWOOD 339 MACBRAE DR CAMANO ISLAND, WA 98282 | % Ownership: | 100.0000000000% |
| | | Exemptions: | |
Taxes and Assessment Details
Values
| (+) Improvement Homesite Value: | + | $0 | |
| (+) Improvement Non-Homesite Value: | + | $317,349 | |
| (+) Land Homesite Value: | + | $0 | |
| (+) Land Non-Homesite Value: | + | $260,000 | |
| (+) Curr Use (HS): | + | $0 | $0 |
| (+) Curr Use (NHS): | + | $0 | $0 |
| | | -------------------------- | |
| (=) Market Value: | = | $577,349 | |
| (–) Productivity Loss: | – | $0 | |
| | | -------------------------- | |
| (=) Subtotal: | = | $577,349 | |
| (+) Senior Appraised Value: | + | $0 | |
| (+) Non-Senior Appraised Value: | + | $577,349 | |
| | | -------------------------- | |
| (=) Total Appraised Value: | = | $577,349 | |
| (–) Senior Exemption Loss: | – | $0 | |
| (–) Exemption Loss: | – | $0 | |
| | | -------------------------- | |
| (=) Taxable Value: | = | $577,349 | |
Taxing Jurisdiction
| Owner: | YARWOOD, CLYDE D | | |
| % Ownership: | 100.0000000000% | | |
| Total Value: | $577,349 | | |
| Tax Area: | 590 - APPRAISER-Stan/Cam Schl Dist, Special Dist, improved & less than 1 acre |
| CF | Conservation Futures | 0.0316035091 | $577,349 | $577,349 | $18.25 | | |
| EMS1 | Fire & Rescue Dist #1 Camano GEN (EMS) | 0.3677864386 | $577,349 | $577,349 | $212.34 | | |
| FIRE1 | Fire & Rescue Dist #1 Camano GEN | 1.2502910536 | $577,349 | $577,349 | $721.85 | | |
| FIRE1BOND | Fire & Rescue Dist #1 Camano BOND | 0.1570001679 | $577,349 | $577,349 | $90.64 | | |
| CE | County Current Expense | 0.3708482477 | $577,349 | $577,349 | $214.11 | | |
| CR | County Roads | 0.4584763726 | $577,349 | $577,349 | $264.70 | | |
| LCIB | Library Sno-Isle BOND (Camano Island) | 0.0396325772 | $577,349 | $577,349 | $22.88 | | |
| LIB | Library Sno-Isle GEN | 0.3153421757 | $577,349 | $577,349 | $182.06 | | |
| SCH205_401 | School 205-401 Enrichment | 1.2698420524 | $577,349 | $577,349 | $733.14 | | |
| SCH205BOND | School 205-401 BOND | 0.9396497583 | $577,349 | $577,349 | $542.51 | | |
| ST | State School | 1.3035497053 | $577,349 | $577,349 | $752.60 | | |
| ST2 | State School Part 2 | 0.8169543533 | $577,349 | $577,349 | $471.67 | | |
| | Total Tax Rate: | 7.3209764117 | | | | | |
| | | | | Taxes w/Current Exemptions: | $4,226.75 | | |
| | | | | Taxes w/o Exemptions: | $4,226.75 | | |
Improvement / Building
| Improvement #1: | RESIDENTIAL | State Code: | Y | 1482.0 sqft | Value: | $317,349 |
| Bathrooms: | 2 | Bedrooms: | 2 | | Ceiling: | DRYWALL PAINTED | Exterior Wall/Cover: | PLY/HARDBOARD T-111 | | Floor Covering: | CARPET/VINYL 20-80 | Floor Structure: | WOOD W/SUBFLOOR | | Foundation: | CONCRETE | Heating: | FHA GAS | | Interior Finish: | DRYWALL PAINT | Plumbing Fixture Cnt: | 12 | | Roof Slope: | 4" IN 12" | Roof Structure/Cover: | CJ ASPHALT |
|
| | Type | Description | Class CD | Sub Class CD | Year Built | Area |
| | BAS | BASE/MAIN FLOOR | 3 | 0 | 1995 | 1482.0 |
| | OP4 | OPEN PORCH W/CEILING-ROOF | 3 | 0 | 1995 | 20.0 |
| | AGR | ATTACHED GARAGE | 3 | 0 | 1995 | 906.0 |
| | OWC | OPEN WOOD PORCH W/STEPS/ROOF/C | 3 | 0 | 1995 | 154.0 |
Sketch
Property Image
Land
| 1 | 14 | SQ (08001-12000) | 0.0000 | 0.00 | 0.00 | 0.00 | 1.00 | $260,000 | $0 |
Roll Value History
| 2026 | N/A | N/A | N/A | N/A | N/A |
| 2025 | $317,349 | $260,000 | $0 | $577,349 | $577,349 |
| 2024 | $321,254 | $250,000 | $0 | $571,254 | $571,254 |
| 2023 | $325,160 | $250,000 | $0 | $575,160 | $575,160 |
| 2022 | $297,962 | $210,000 | $0 | $507,962 | $507,962 |
| 2021 | $249,880 | $165,000 | $0 | $414,880 | $414,880 |
| 2020 | $242,930 | $135,000 | $0 | $377,930 | $377,930 |
| 2019 | $173,733 | $175,000 | $0 | $348,733 | $348,733 |
| 2018 | $174,256 | $145,000 | $0 | $319,256 | $319,256 |
| 2017 | $175,298 | $100,000 | $0 | $275,298 | $275,298 |
| 2016 | $177,385 | $85,000 | $0 | $262,385 | $262,385 |
| 2015 | $155,982 | $65,000 | $0 | $220,982 | $220,982 |
| 2014 | $157,956 | $55,000 | $0 | $212,956 | $162,956 |
| 2013 | $159,932 | $55,000 | $0 | $214,932 | $164,932 |
| 2012 | $161,906 | $60,000 | $0 | $221,906 | $221,906 |
| 2011 | $172,028 | $65,000 | $0 | $237,028 | $237,028 |
| 2010 | $181,251 | $76,000 | $0 | $257,251 | $257,251 |
| 2009 | $187,040 | $100,000 | $0 | $287,040 | $287,040 |
| 2008 | $189,309 | $125,000 | $0 | $314,309 | $314,309 |
| 2007 | $191,580 | $100,000 | $0 | $291,580 | $291,580 |
Deed and Sales History
| 1 | 06/12/2015 | WD | Warranty Deed | PLANK, JACLYN G | YARWOOD, CLYDE D | | | $248,000.00 | 20013 | 4380259 |
| 2 | 08/16/2011 | WD | Warranty Deed | EBERT, RALPH K | PLANK, JACLYN G | | | $215,000.00 | 5408 | 4300470 |
| 3 | 10/02/2006 | PRD | Personal Representatives Deed | EBERT, RALPH K | EBERT, RALPH K | | | $0.00 | 64267 | 4183382 |
| 4 | 01/01/1900 | OTHER | Other - Misc. Documents | Unknown | EBERT, RALPH K | | | $0.00 | 0 | 0 |
Payout Agreement
| No payout information available.. |