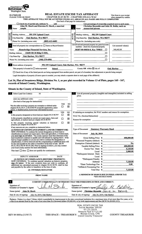
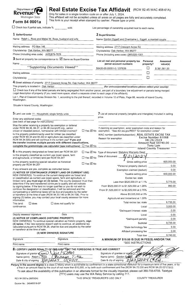
Property
Account |
| Property ID: | 206878 | Abbreviated Legal Description: | CAMALOCH 2 LOT 84 |
| Geographic ID: | S6235-02-00084-0 | Agent Code: | |
| Type: | Real | | |
| Tax Area: | 590 - APPRAISER-Stan/Cam Schl Dist, Special Dist, improved & less than 1 acre | Land Use Code | 11 |
| Open Space: | N | DFL | N |
| Historic Property: | N | Remodel Property: | N |
| Multi-Family Redevelopment: | N | | |
| Township: | | Section: | |
| Range: | |
Location |
| Address: | | Mapsco: | |
| Neighborhood: | Cycle 5 | Map ID: | 995 |
| Neighborhood CD: | 5 |
Owner |
| Name: | HILLS, GREGORY | Owner ID: | 312058 |
| Mailing Address: | 242 HEATHER DR CAMANO ISLAND, WA 98282 | % Ownership: | 100.0000000000% |
| | | Exemptions: | SNR/DSBL |
Taxes and Assessment Details
Values
| (+) Improvement Homesite Value: | + | $493,315 | |
| (+) Improvement Non-Homesite Value: | + | $0 | |
| (+) Land Homesite Value: | + | $260,000 | |
| (+) Land Non-Homesite Value: | + | $0 | |
| (+) Curr Use (HS): | + | $0 | $0 |
| (+) Curr Use (NHS): | + | $0 | $0 |
| | | -------------------------- | |
| (=) Market Value: | = | $753,315 | |
| (–) Productivity Loss: | – | $0 | |
| | | -------------------------- | |
| (=) Subtotal: | = | $753,315 | |
| (+) Senior Appraised Value: | + | $522,567 | |
| (+) Non-Senior Appraised Value: | + | $0 | |
| | | -------------------------- | |
| (=) Total Appraised Value: | = | $522,567 | |
| (–) Senior Exemption Loss: | – | $313,540 | |
| (–) Exemption Loss: | – | $0 | |
| | | -------------------------- | |
| (=) Taxable Value: | = | $209,027 | |
Taxing Jurisdiction
| Owner: | HILLS, GREGORY | | |
| % Ownership: | 100.0000000000% | | |
| Total Value: | $753,315 | | |
| Tax Area: | 590 - APPRAISER-Stan/Cam Schl Dist, Special Dist, improved & less than 1 acre |
| CF | Conservation Futures | 0.0316035091 | $753,315 | $209,027 | $6.61 | | |
| EMS1 | Fire & Rescue Dist #1 Camano GEN (EMS) | 0.3677864386 | $753,315 | $209,027 | $76.88 | | |
| FIRE1 | Fire & Rescue Dist #1 Camano GEN | 1.2502910536 | $753,315 | $209,027 | $261.34 | | |
| FIRE1BOND | Fire & Rescue Dist #1 Camano BOND | 0.0000000000 | $753,315 | $0 | $0.00 | | |
| CE | County Current Expense | 0.3708482477 | $753,315 | $209,027 | $77.52 | | |
| CR | County Roads | 0.4584763726 | $753,315 | $209,027 | $95.83 | | |
| LCIB | Library Sno-Isle BOND (Camano Island) | 0.0000000000 | $753,315 | $0 | $0.00 | | |
| LIB | Library Sno-Isle GEN | 0.3153421757 | $753,315 | $209,027 | $65.92 | | |
| SCH205_401 | School 205-401 Enrichment | 0.0000000000 | $753,315 | $0 | $0.00 | | |
| SCH205BOND | School 205-401 BOND | 0.0000000000 | $753,315 | $0 | $0.00 | | |
| ST | State School | 1.3035497053 | $753,315 | $209,027 | $272.48 | | |
| ST2 | State School Part 2 | 0.0000000000 | $753,315 | $0 | $0.00 | | |
| | Total Tax Rate: | 4.0978975026 | | | | | |
| | | | | Taxes w/Current Exemptions: | $856.58 | | |
| | | | | Taxes w/o Exemptions: | $5,515.00 | | |
Improvement / Building
| Improvement #1: | RESIDENTIAL | State Code: | Y | 2003.0 sqft | Value: | $493,315 |
| Bathrooms: | 2 | Bedrooms: | 2 | | Ceiling: | DRYWALL PAINTED | Exterior Wall/Cover: | CEMENT FIBER | | Floor Covering: | CERAMIC TILE/CPT 40-60 | Floor Structure: | WOOD W/SUBFLOOR | | Foundation: | CONCRETE | Heating: | FHA GAS | | Interior Finish: | DRYWALL PAINT | Plumbing Fixture Cnt: | 13 | | Roof Slope: | 10" IN 12" | Roof Structure/Cover: | CJ ASPHALT |
|
| | Type | Description | Class CD | Sub Class CD | Year Built | Area |
| | BAS | BASE/MAIN FLOOR | 4 | 0 | 2004 | 2003.0 |
| | AGR | ATTACHED GARAGE | 4 | 0 | 2004 | 994.0 |
| | OWP | OPEN WOOD PORCH W/STEPS | 4 | 0 | 2004 | 766.0 |
| | OWC | OPEN WOOD PORCH W/STEPS/ROOF/C | 4 | 0 | 2004 | 186.0 |
Sketch
Property Image
Land
| 1 | 14 | SQ (08001-12000) | 0.0000 | 0.00 | 0.00 | 0.00 | 1.00 | $260,000 | $0 |
Roll Value History
| 2026 | N/A | N/A | N/A | N/A | N/A |
| 2025 | $493,315 | $260,000 | $0 | $753,315 | $209,027 |
| 2024 | $499,240 | $250,000 | $0 | $749,240 | $209,027 |
| 2023 | $505,166 | $250,000 | $0 | $755,166 | $209,027 |
| 2022 | $462,792 | $210,000 | $0 | $672,792 | $522,567 |
| 2021 | $398,230 | $165,000 | $0 | $563,230 | $522,567 |
| 2020 | $387,567 | $135,000 | $0 | $522,567 | $522,567 |
| 2019 | $285,655 | $175,000 | $0 | $460,655 | $460,655 |
| 2018 | $286,473 | $145,000 | $0 | $431,473 | $431,473 |
| 2017 | $288,109 | $100,000 | $0 | $388,109 | $388,109 |
| 2016 | $291,384 | $85,000 | $0 | $376,384 | $376,384 |
| 2015 | $292,991 | $65,000 | $0 | $357,991 | $357,991 |
| 2014 | $296,266 | $55,000 | $0 | $351,266 | $351,266 |
| 2013 | $299,540 | $55,000 | $0 | $354,540 | $354,540 |
| 2012 | $302,814 | $60,000 | $0 | $362,814 | $362,814 |
| 2011 | $306,088 | $65,000 | $0 | $371,088 | $371,088 |
| 2010 | $314,856 | $76,000 | $0 | $390,856 | $390,856 |
| 2009 | $334,084 | $100,000 | $0 | $434,084 | $434,084 |
| 2008 | $334,861 | $125,000 | $0 | $459,861 | $459,861 |
| 2007 | $338,967 | $100,000 | $0 | $438,967 | $438,967 |
Deed and Sales History
| 1 | 01/16/2023 | QCD | Quit Claim Deed | SCHEI, JEANNE R | HILLS, GREGORY | | | $0.00 | 59035 | 4568686 |
| 2 | 04/19/2019 | WD | Warranty Deed | WILSON TRUSTEE, PAIGE | HILLS, GREG G | | | $475,000.00 | 38649 | 4463941 |
| 3 | 01/18/2017 | QCD | Quit Claim Deed | WILSON, MAX W | WILSON TRUSTEE, PAIGE | | | $0.00 | 28376 | 4418615 |
| 4 | 12/04/2009 | QCD | Quit Claim Deed | WILSON, MAX W | WILSON, MAX W | | | $0.00 | 323 | 4268740 |
| 5 | 10/20/1999 | WD | Warranty Deed | YOUNG, CLAUDIA D | WILSON, MAX W | | | $55,000.00 | 94443 | 99024237 |
| 6 | 09/01/1989 | WD | Warranty Deed | JOHNSON, ARLO | YOUNG, CLAUDIA D | | | $11,400.00 | 94165 | 89013741 |
| 7 | 01/01/1900 | OTHER | Other - Misc. Documents | Unknown | JOHNSON, ARLO | | | $0.00 | 0 | 0 |
Payout Agreement
| No payout information available.. |