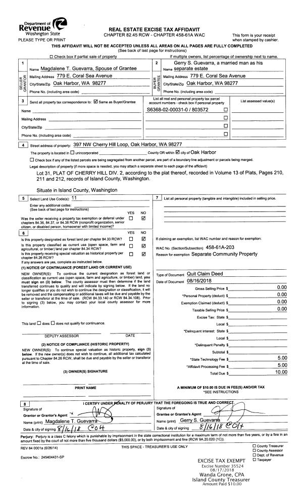
Property
Account |
| Property ID: | 207207 | Abbreviated Legal Description: | CAMALOCH 2 LOT 117 |
| Geographic ID: | S6235-02-00117-0 | Agent Code: | |
| Type: | Real | | |
| Tax Area: | 590 - APPRAISER-Stan/Cam Schl Dist, Special Dist, improved & less than 1 acre | Land Use Code | 11 |
| Open Space: | N | DFL | N |
| Historic Property: | N | Remodel Property: | N |
| Multi-Family Redevelopment: | N | | |
| Township: | | Section: | |
| Range: | |
Location |
| Address: | 379 PIPER WAY CAMANO ISLAND, WA 98282 | Mapsco: | |
| Neighborhood: | Cycle 5 | Map ID: | 995 |
| Neighborhood CD: | 5 |
Owner |
| Name: | BRECKENRIDGE, ELAINE | Owner ID: | 293816 |
| Mailing Address: | FRANK G BRECKENRIDGE III 379 PIPER WAY CAMANO ISLAND, WA 98282 | % Ownership: | 100.0000000000% |
| | | Exemptions: | |
Taxes and Assessment Details
Values
| (+) Improvement Homesite Value: | + | $0 | |
| (+) Improvement Non-Homesite Value: | + | $374,297 | |
| (+) Land Homesite Value: | + | $0 | |
| (+) Land Non-Homesite Value: | + | $260,000 | |
| (+) Curr Use (HS): | + | $0 | $0 |
| (+) Curr Use (NHS): | + | $0 | $0 |
| | | -------------------------- | |
| (=) Market Value: | = | $634,297 | |
| (–) Productivity Loss: | – | $0 | |
| | | -------------------------- | |
| (=) Subtotal: | = | $634,297 | |
| (+) Senior Appraised Value: | + | $0 | |
| (+) Non-Senior Appraised Value: | + | $634,297 | |
| | | -------------------------- | |
| (=) Total Appraised Value: | = | $634,297 | |
| (–) Senior Exemption Loss: | – | $0 | |
| (–) Exemption Loss: | – | $0 | |
| | | -------------------------- | |
| (=) Taxable Value: | = | $634,297 | |
Taxing Jurisdiction
| Owner: | BRECKENRIDGE, ELAINE | | |
| % Ownership: | 100.0000000000% | | |
| Total Value: | $634,297 | | |
| Tax Area: | 590 - APPRAISER-Stan/Cam Schl Dist, Special Dist, improved & less than 1 acre |
| CF | Conservation Futures | 0.0316035091 | $634,297 | $634,297 | $20.05 | | |
| EMS1 | Fire & Rescue Dist #1 Camano GEN (EMS) | 0.3677864386 | $634,297 | $634,297 | $233.29 | | |
| FIRE1 | Fire & Rescue Dist #1 Camano GEN | 1.2502910536 | $634,297 | $634,297 | $793.06 | | |
| FIRE1BOND | Fire & Rescue Dist #1 Camano BOND | 0.1570001679 | $634,297 | $634,297 | $99.58 | | |
| CE | County Current Expense | 0.3708482477 | $634,297 | $634,297 | $235.23 | | |
| CR | County Roads | 0.4584763726 | $634,297 | $634,297 | $290.81 | | |
| LCIB | Library Sno-Isle BOND (Camano Island) | 0.0396325772 | $634,297 | $634,297 | $25.14 | | |
| LIB | Library Sno-Isle GEN | 0.3153421757 | $634,297 | $634,297 | $200.02 | | |
| SCH205_401 | School 205-401 Enrichment | 1.2698420524 | $634,297 | $634,297 | $805.46 | | |
| SCH205BOND | School 205-401 BOND | 0.9396497583 | $634,297 | $634,297 | $596.02 | | |
| ST | State School | 1.3035497053 | $634,297 | $634,297 | $826.84 | | |
| ST2 | State School Part 2 | 0.8169543533 | $634,297 | $634,297 | $518.19 | | |
| | Total Tax Rate: | 7.3209764117 | | | | | |
| | | | | Taxes w/Current Exemptions: | $4,643.69 | | |
| | | | | Taxes w/o Exemptions: | $4,643.69 | | |
Improvement / Building
| Improvement #1: | RESIDENTIAL | State Code: | Y | 1599.8 sqft | Value: | $374,297 |
| Bathrooms: | 2 | Bedrooms: | 2 | | Ceiling: | DRYWALL PAINTED | Exterior Wall/Cover: | CEMENT FIBER | | Floor Covering: | CARPET/VINYL 60-40 | Floor Structure: | WOOD W/SUBFLOOR | | Foundation: | CONCRETE | Heating: | FHA GAS | | Interior Finish: | DRYWALL PAINT | Plumbing Fixture Cnt: | 13 | | Roof Slope: | 6" IN 12" | Roof Structure/Cover: | CJ ASPHALT |
|
| | Type | Description | Class CD | Sub Class CD | Year Built | Area |
| | BAS | BASE/MAIN FLOOR | 3 | 0 | 2019 | 1599.8 |
| | AGR | ATTACHED GARAGE | 3 | 0 | 2019 | 801.3 |
| | OP4 | OPEN PORCH W/CEILING-ROOF | 3 | 0 | 2019 | 99.0 |
| | OWP | OPEN WOOD PORCH W/STEPS | 3 | 0 | 2019 | 120.0 |
| | OWP | OPEN WOOD PORCH W/STEPS | 3 | 0 | 2019 | 196.0 |
Sketch
Property Image
Land
| 1 | 14 | SQ (08001-12000) | 0.0000 | 0.00 | 0.00 | 0.00 | 1.00 | $260,000 | $0 |
Roll Value History
| 2026 | N/A | N/A | N/A | N/A | N/A |
| 2025 | $374,297 | $260,000 | $0 | $634,297 | $634,297 |
| 2024 | $377,316 | $250,000 | $0 | $627,316 | $627,316 |
| 2023 | $380,334 | $250,000 | $0 | $630,334 | $630,334 |
| 2022 | $347,133 | $210,000 | $0 | $557,133 | $557,133 |
| 2021 | $305,020 | $165,000 | $0 | $470,020 | $470,020 |
| 2020 | $298,260 | $135,000 | $0 | $433,260 | $433,260 |
| 2019 | $215,953 | $175,000 | $0 | $390,953 | $390,953 |
| 2018 | $0 | $85,000 | $0 | $85,000 | $85,000 |
| 2017 | $0 | $70,000 | $0 | $70,000 | $70,000 |
| 2016 | $0 | $50,000 | $0 | $50,000 | $50,000 |
| 2015 | $0 | $50,000 | $0 | $50,000 | $50,000 |
| 2014 | $0 | $55,000 | $0 | $55,000 | $55,000 |
| 2013 | $0 | $55,000 | $0 | $55,000 | $55,000 |
| 2012 | $0 | $60,000 | $0 | $60,000 | $60,000 |
| 2011 | $0 | $75,000 | $0 | $75,000 | $75,000 |
| 2010 | $0 | $75,000 | $0 | $75,000 | $75,000 |
| 2009 | $0 | $82,000 | $0 | $82,000 | $82,000 |
| 2008 | $0 | $125,000 | $0 | $125,000 | $125,000 |
| 2007 | $0 | $40,000 | $0 | $40,000 | $40,000 |
Deed and Sales History
| 1 | 03/17/2020 | WD | Warranty Deed | COLTON TTEE, LAURA C | BRECKENRIDGE, ELAINE | | | $467,000.00 | 42465 | 4483536 |
| 2 | 07/17/2019 | WD | Warranty Deed | CAMERON, MITZI | COLTON TTEE, LAURA C | | | $450,000.00 | 39456 | 4467464 |
| 3 | 08/23/2018 | WD | Warranty Deed | THOMPSON, GARRY T | CAMERON, MITZI | | | $90,000.00 | 35663 | 4450759 |
| 4 | 07/30/1998 | WD | Warranty Deed | BARRETT, DONALD D | THOMPSON, GARRY T | | | $19,500.00 | 83035 | 98015797 |
| 5 | 07/30/1998 | ESTSEPPROP | Establish Separate Property | BARRETT, DONALD D | BARRETT, DONALD D | | | $0.00 | 83034 | 98015796 |
| 6 | 05/01/1986 | WD | Warranty Deed | BARRETT, BETTY J | BARRETT, DONALD D | | | $5,000.00 | 61391 | 86006498 |
| 7 | 01/01/1900 | OTHER | Other - Misc. Documents | Unknown | BARRETT, DONALD D | | | $0.00 | 83034 | 98015796 |
| 8 | 01/01/1900 | OTHER | Other - Misc. Documents | BARRETT, DONALD D | THOMPSON, GARRY T | | | $0.00 | 83035 | 98015797 |
| 9 | 01/01/1900 | OTHER | Other - Misc. Documents | THOMPSON, GARRY T | BARRETT, BETTY J | | | $0.00 | 0 | 0 |
Payout Agreement
| No payout information available.. |