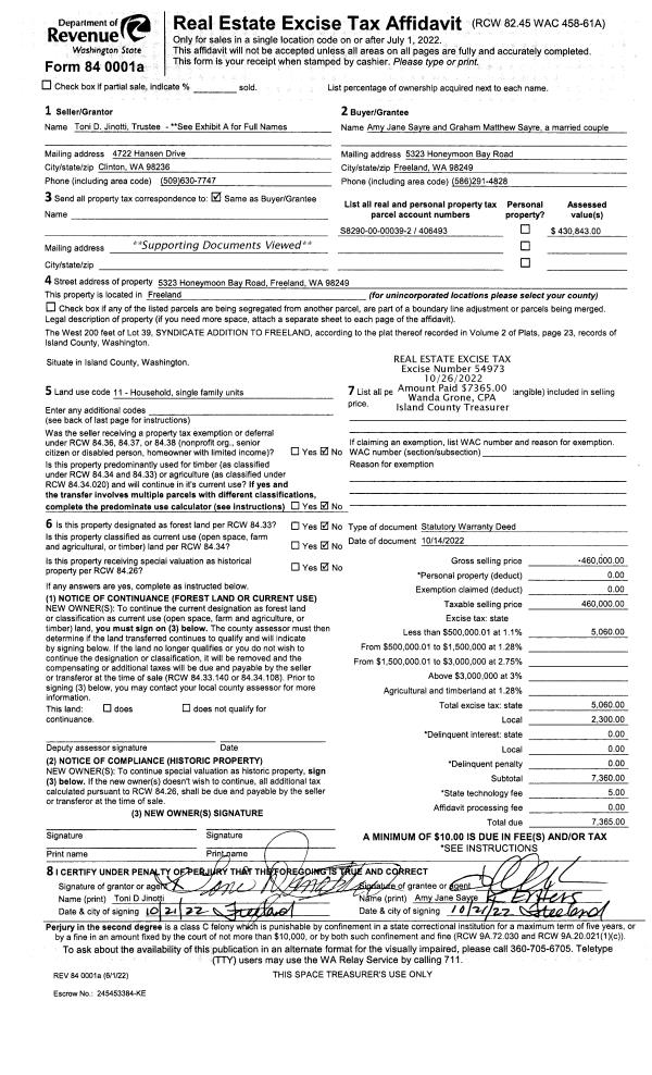
Property
Account |
| Property ID: | 207485 | Abbreviated Legal Description: | CAMALOCH 2 LOT 145 |
| Geographic ID: | S6235-02-00145-0 | Agent Code: | |
| Type: | Real | | |
| Tax Area: | 590 - APPRAISER-Stan/Cam Schl Dist, Special Dist, improved & less than 1 acre | Land Use Code | 11 |
| Open Space: | N | DFL | N |
| Historic Property: | N | Remodel Property: | N |
| Multi-Family Redevelopment: | N | | |
| Township: | | Section: | |
| Range: | |
Location |
| Address: | 336 SCOTLAND DR CAMANO ISLAND, WA 98282 | Mapsco: | |
| Neighborhood: | Cycle 5 | Map ID: | 995 |
| Neighborhood CD: | 5 |
Owner |
| Name: | EATON, RONALD S | Owner ID: | 252649 |
| Mailing Address: | ELAINE R EATON 336 SCOTLAND DR CAMANO ISLAND, WA 98282 | % Ownership: | 100.0000000000% |
| | | Exemptions: | |
Taxes and Assessment Details
Values
| (+) Improvement Homesite Value: | + | $0 | |
| (+) Improvement Non-Homesite Value: | + | $359,730 | |
| (+) Land Homesite Value: | + | $0 | |
| (+) Land Non-Homesite Value: | + | $260,000 | |
| (+) Curr Use (HS): | + | $0 | $0 |
| (+) Curr Use (NHS): | + | $0 | $0 |
| | | -------------------------- | |
| (=) Market Value: | = | $619,730 | |
| (–) Productivity Loss: | – | $0 | |
| | | -------------------------- | |
| (=) Subtotal: | = | $619,730 | |
| (+) Senior Appraised Value: | + | $0 | |
| (+) Non-Senior Appraised Value: | + | $619,730 | |
| | | -------------------------- | |
| (=) Total Appraised Value: | = | $619,730 | |
| (–) Senior Exemption Loss: | – | $0 | |
| (–) Exemption Loss: | – | $0 | |
| | | -------------------------- | |
| (=) Taxable Value: | = | $619,730 | |
Taxing Jurisdiction
| Owner: | EATON, RONALD S | | |
| % Ownership: | 100.0000000000% | | |
| Total Value: | $619,730 | | |
| Tax Area: | 590 - APPRAISER-Stan/Cam Schl Dist, Special Dist, improved & less than 1 acre |
| CF | Conservation Futures | 0.0316035091 | $619,730 | $619,730 | $19.59 | | |
| EMS1 | Fire & Rescue Dist #1 Camano GEN (EMS) | 0.3677864386 | $619,730 | $619,730 | $227.93 | | |
| FIRE1 | Fire & Rescue Dist #1 Camano GEN | 1.2502910536 | $619,730 | $619,730 | $774.84 | | |
| FIRE1BOND | Fire & Rescue Dist #1 Camano BOND | 0.1570001679 | $619,730 | $619,730 | $97.30 | | |
| CE | County Current Expense | 0.3708482477 | $619,730 | $619,730 | $229.83 | | |
| CR | County Roads | 0.4584763726 | $619,730 | $619,730 | $284.13 | | |
| LCIB | Library Sno-Isle BOND (Camano Island) | 0.0396325772 | $619,730 | $619,730 | $24.56 | | |
| LIB | Library Sno-Isle GEN | 0.3153421757 | $619,730 | $619,730 | $195.43 | | |
| SCH205_401 | School 205-401 Enrichment | 1.2698420524 | $619,730 | $619,730 | $786.96 | | |
| SCH205BOND | School 205-401 BOND | 0.9396497583 | $619,730 | $619,730 | $582.33 | | |
| ST | State School | 1.3035497053 | $619,730 | $619,730 | $807.85 | | |
| ST2 | State School Part 2 | 0.8169543533 | $619,730 | $619,730 | $506.29 | | |
| | Total Tax Rate: | 7.3209764117 | | | | | |
| | | | | Taxes w/Current Exemptions: | $4,537.04 | | |
| | | | | Taxes w/o Exemptions: | $4,537.04 | | |
Improvement / Building
| Improvement #1: | RESIDENTIAL | State Code: | Y | 1938.0 sqft | Value: | $359,730 |
| Bathrooms: | 2.5 | Bedrooms: | 3 | | Ceiling: | DRYWALL PAINTED | Exterior Wall/Cover: | CEMENT FIBER | | Floor Covering: | HARDWOOD/CARP 60-40 | Floor Structure: | WOOD W/SUBFLOOR | | Foundation: | CONCRETE | Heating: | FHA GAS | | Interior Finish: | DRYWALL PAINT | Plumbing Fixture Cnt: | 12 | | Roof Slope: | 5" IN 12" | Roof Structure/Cover: | CJ ASPHALT |
|
| | Type | Description | Class CD | Sub Class CD | Year Built | Area |
| | BAS | BASE/MAIN FLOOR | 3 | 0 | 1996 | 1938.0 |
| | OP4 | OPEN PORCH W/CEILING-ROOF | 3 | 0 | 1996 | 64.0 |
| | AGR | ATTACHED GARAGE | 3 | 0 | 1996 | 572.0 |
| | OWP | OPEN WOOD PORCH W/STEPS | 3 | 0 | 1996 | 186.0 |
| | OWR | OPEN WOOD PORCH W/STEPS/ROOF | 3 | 0 | 1996 | 120.0 |
| | OWC | OPEN WOOD PORCH W/STEPS/ROOF/C | 3 | 0 | 1996 | 30.0 |
| | DGR | DETACHED GARAGE | 3 | 0 | 1996 | 256.0 |
Sketch
Property Image
Land
| 1 | 14 | SQ (08001-12000) | 0.0000 | 0.00 | 0.00 | 0.00 | 1.00 | $260,000 | $0 |
Roll Value History
| 2026 | N/A | N/A | N/A | N/A | N/A |
| 2025 | $359,730 | $260,000 | $0 | $619,730 | $619,730 |
| 2024 | $364,156 | $250,000 | $0 | $614,156 | $614,156 |
| 2023 | $368,585 | $250,000 | $0 | $618,585 | $618,585 |
| 2022 | $337,753 | $210,000 | $0 | $547,753 | $547,753 |
| 2021 | $295,729 | $165,000 | $0 | $460,729 | $460,729 |
| 2020 | $288,074 | $135,000 | $0 | $423,074 | $423,074 |
| 2019 | $216,842 | $175,000 | $0 | $391,842 | $391,842 |
| 2018 | $217,470 | $145,000 | $0 | $362,470 | $362,470 |
| 2017 | $218,728 | $100,000 | $0 | $318,728 | $318,728 |
| 2016 | $221,242 | $85,000 | $0 | $306,242 | $306,242 |
| 2015 | $224,449 | $65,000 | $0 | $289,449 | $289,449 |
| 2014 | $226,907 | $55,000 | $0 | $281,907 | $281,907 |
| 2013 | $229,369 | $55,000 | $0 | $284,369 | $284,369 |
| 2012 | $231,829 | $60,000 | $0 | $291,829 | $291,829 |
| 2011 | $234,289 | $65,000 | $0 | $299,289 | $299,289 |
| 2010 | $243,311 | $76,000 | $0 | $319,311 | $319,311 |
| 2009 | $239,359 | $100,000 | $0 | $339,359 | $131,858 |
| 2008 | $242,714 | $125,035 | $0 | $367,749 | $131,857 |
| 2007 | $245,815 | $100,403 | $0 | $346,218 | $131,857 |
Deed and Sales History
| 1 | 11/04/2010 | WD | Warranty Deed | STUHR, JOYCE M | EATON, RONALD S | | | $315,000.00 | 2843 | 4284686 |
| 2 | 10/29/2007 | OTHER | Other - Misc. Documents | STUHR, KEITH F | STUHR, JOYCE M | | | $0.00 | 80425 | 0 |
| 3 | 06/30/1999 | WD | Warranty Deed | SCHRAMER, DANIEL T | STUHR, KEITH F | | | $195,000.00 | 92883 | 99017123 |
| 4 | 11/01/1994 | WD | Warranty Deed | MACKAY, HOMES I | SCHRAMER, DANIEL T | | | $59,000.00 | 44762 | 94024358 |
| 5 | 09/01/1992 | WD | Warranty Deed | DEHATE, PAUL D | MACKAY, HOMES I | | | $50,000.00 | 23554 | 92017240 |
| 6 | 08/01/1989 | WD | Warranty Deed | OLSON, MELVIN W | DEHATE, PAUL D | | | $13,000.00 | 93470 | 89011619 |
| 7 | 01/01/1900 | OTHER | Other - Misc. Documents | Unknown | OLSON, MELVIN W | | | $0.00 | 0 | 0 |
Payout Agreement
| No payout information available.. |