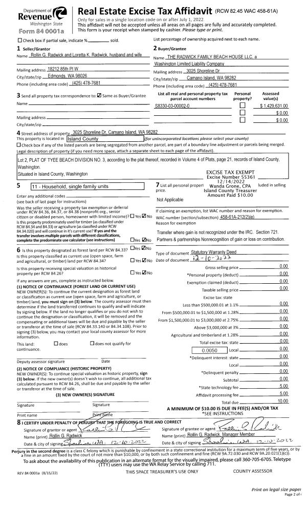
Property
Account |
| Property ID: | 207644 | Abbreviated Legal Description: | CAMALOCH 3 LOT 2 TGW PT SLY 33'OF LOT 26 EVERGREEN ACS LY BETW ELY & WLY LNS SD LOT 2 EXT NLY |
| Geographic ID: | S6235-03-00002-0 | Agent Code: | |
| Type: | Real | | |
| Tax Area: | 590 - APPRAISER-Stan/Cam Schl Dist, Special Dist, improved & less than 1 acre | Land Use Code | 11 |
| Open Space: | N | DFL | N |
| Historic Property: | N | Remodel Property: | N |
| Multi-Family Redevelopment: | N | | |
| Township: | | Section: | |
| Range: | |
Location |
| Address: | 391 SELKIRK DR CAMANO ISLAND, WA 98282 | Mapsco: | |
| Neighborhood: | Cycle 5 | Map ID: | 995 |
| Neighborhood CD: | 5 |
Owner |
| Name: | CURRY TTEE, M. ANDREW | Owner ID: | 305209 |
| Mailing Address: | THEODORA A FOGARTY 1391 SELKIRK DR CAMANO ISLAND, WA 98282 | % Ownership: | 100.0000000000% |
| | | Exemptions: | SNR/DSBL |
Taxes and Assessment Details
Values
| (+) Improvement Homesite Value: | + | $211,085 | |
| (+) Improvement Non-Homesite Value: | + | $0 | |
| (+) Land Homesite Value: | + | $260,000 | |
| (+) Land Non-Homesite Value: | + | $0 | |
| (+) Curr Use (HS): | + | $0 | $0 |
| (+) Curr Use (NHS): | + | $0 | $0 |
| | | -------------------------- | |
| (=) Market Value: | = | $471,085 | |
| (–) Productivity Loss: | – | $0 | |
| | | -------------------------- | |
| (=) Subtotal: | = | $471,085 | |
| (+) Senior Appraised Value: | + | $471,085 | |
| (+) Non-Senior Appraised Value: | + | $0 | |
| | | -------------------------- | |
| (=) Total Appraised Value: | = | $471,085 | |
| (–) Senior Exemption Loss: | – | $282,651 | |
| (–) Exemption Loss: | – | $0 | |
| | | -------------------------- | |
| (=) Taxable Value: | = | $188,434 | |
Taxing Jurisdiction
| Owner: | CURRY TTEE, M. ANDREW | | |
| % Ownership: | 100.0000000000% | | |
| Total Value: | $471,085 | | |
| Tax Area: | 590 - APPRAISER-Stan/Cam Schl Dist, Special Dist, improved & less than 1 acre |
| CF | Conservation Futures | 0.0316035091 | $471,085 | $188,434 | $5.96 | | |
| EMS1 | Fire & Rescue Dist #1 Camano GEN (EMS) | 0.3677864386 | $471,085 | $188,434 | $69.30 | | |
| FIRE1 | Fire & Rescue Dist #1 Camano GEN | 1.2502910536 | $471,085 | $188,434 | $235.60 | | |
| FIRE1BOND | Fire & Rescue Dist #1 Camano BOND | 0.0000000000 | $471,085 | $0 | $0.00 | | |
| CE | County Current Expense | 0.3708482477 | $471,085 | $188,434 | $69.88 | | |
| CR | County Roads | 0.4584763726 | $471,085 | $188,434 | $86.39 | | |
| LCIB | Library Sno-Isle BOND (Camano Island) | 0.0000000000 | $471,085 | $0 | $0.00 | | |
| LIB | Library Sno-Isle GEN | 0.3153421757 | $471,085 | $188,434 | $59.42 | | |
| SCH205_401 | School 205-401 Enrichment | 0.0000000000 | $471,085 | $0 | $0.00 | | |
| SCH205BOND | School 205-401 BOND | 0.0000000000 | $471,085 | $0 | $0.00 | | |
| ST | State School | 1.3035497053 | $471,085 | $188,434 | $245.63 | | |
| ST2 | State School Part 2 | 0.0000000000 | $471,085 | $0 | $0.00 | | |
| | Total Tax Rate: | 4.0978975026 | | | | | |
| | | | | Taxes w/Current Exemptions: | $772.18 | | |
| | | | | Taxes w/o Exemptions: | $3,448.78 | | |
Improvement / Building
| Improvement #1: | RESIDENTIAL | State Code: | Y | 1646.0 sqft | Value: | $211,085 |
| Bathrooms: | 2 | Bedrooms: | 2 | | Ceiling: | DRYWALL PAINTED | Exterior Wall/Cover: | PLY/HARDBOARD T-111 | | Floor Covering: | CARPET/VINYL 80-20 | Floor Structure: | WOOD W/SUBFLOOR | | Foundation: | CONCRETE | Heating: | BASEBOARD ELECTRIC | | Interior Finish: | DRYWALL PAINT | Plumbing Fixture Cnt: | 9 | | Roof Slope: | 4" IN 12" | Roof Structure/Cover: | CJ ASPHALT |
|
| | Type | Description | Class CD | Sub Class CD | Year Built | Area |
| | BAS | BASE/MAIN FLOOR | 3 | 0 | 1978 | 1022.0 |
| | DWN | DOWNSTAIRS LIVING AREA | 3 | 0 | 1978 | 624.0 |
| | AGR | ATTACHED GARAGE | 3 | 0 | 1978 | 192.0 |
| | BGR | BASEMENT GARAGE | 3 | 0 | 1978 | 336.0 |
| | OWP | OPEN WOOD PORCH W/STEPS | 3 | 0 | 1978 | 366.0 |
| | OWR | OPEN WOOD PORCH W/STEPS/ROOF | 3 | 0 | 1978 | 30.0 |
Sketch
Property Image
Land
| 1 | 15 | SQ (12001-21780) | 0.0000 | 0.00 | 0.00 | 0.00 | 1.00 | $260,000 | $0 |
Roll Value History
| 2026 | N/A | N/A | N/A | N/A | N/A |
| 2025 | $211,085 | $260,000 | $0 | $471,085 | $188,434 |
| 2024 | $218,813 | $250,000 | $0 | $468,813 | $187,525 |
| 2023 | $221,926 | $250,000 | $0 | $471,926 | $188,770 |
| 2022 | $203,787 | $210,000 | $0 | $413,787 | $413,787 |
| 2021 | $169,838 | $165,000 | $0 | $334,838 | $334,838 |
| 2020 | $165,945 | $135,000 | $0 | $300,945 | $300,945 |
| 2019 | $121,899 | $175,000 | $0 | $296,899 | $296,899 |
| 2018 | $122,327 | $145,000 | $0 | $267,327 | $267,327 |
| 2017 | $123,181 | $100,000 | $0 | $223,181 | $223,181 |
| 2016 | $124,894 | $85,000 | $0 | $209,894 | $209,894 |
| 2015 | $115,652 | $65,000 | $0 | $180,652 | $180,652 |
| 2014 | $117,404 | $55,000 | $0 | $172,404 | $172,404 |
| 2013 | $119,157 | $55,000 | $0 | $174,157 | $174,157 |
| 2012 | $120,909 | $60,000 | $0 | $180,909 | $180,909 |
| 2011 | $122,662 | $65,000 | $0 | $187,662 | $187,662 |
| 2010 | $128,774 | $76,000 | $0 | $204,774 | $204,774 |
| 2009 | $131,147 | $100,000 | $0 | $231,147 | $231,147 |
| 2008 | $124,909 | $124,909 | $0 | $249,818 | $249,818 |
| 2007 | $126,794 | $99,623 | $0 | $226,417 | $166,625 |
Deed and Sales History
| 1 | 07/13/2022 | QCD | Quit Claim Deed | CURRY, M ANDREW | CURRY TTEE, M. ANDREW | | | $0.00 | 53943 | 4548860 |
| 2 | 05/29/2009 | WD | Warranty Deed | Unknown | CURRY, M ANDREW | | | $227,500.00 | 91190 | 4252648 |
| 3 | 12/01/1991 | QCD | Quit Claim Deed | ROALDSON, PAUL T | ROALDSON, PAUL T | | | $1,000.00 | 20134 | 92000538 |
| 4 | 07/01/1991 | OTHER | Other - Misc. Documents | ROALDSON, PAUL T | ROALDSON, PAUL T | | | $0.00 | 64303 | 91009135 |
| 5 | 01/01/1900 | OTHER | Other - Misc. Documents | CURRY, M ANDREW | ROALDSON, PAUL T | | | $0.00 | 0 | 0 |
Payout Agreement
| No payout information available.. |