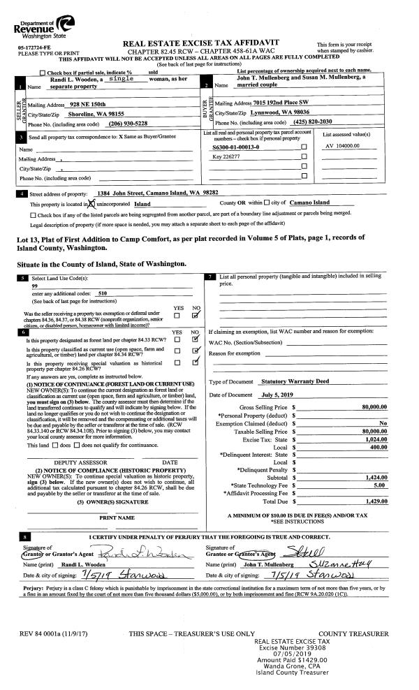
Property
Account |
| Property ID: | 207788 | Abbreviated Legal Description: | CAMALOCH 3 LOT 15 |
| Geographic ID: | S6235-03-00015-0 | Agent Code: | |
| Type: | Real | | |
| Tax Area: | 590 - APPRAISER-Stan/Cam Schl Dist, Special Dist, improved & less than 1 acre | Land Use Code | 11 |
| Open Space: | N | DFL | N |
| Historic Property: | N | Remodel Property: | N |
| Multi-Family Redevelopment: | N | | |
| Township: | | Section: | |
| Range: | |
Location |
| Address: | 378 SELKIRK DR CAMANO ISLAND, WA 98282 | Mapsco: | |
| Neighborhood: | Cycle 5 | Map ID: | 995 |
| Neighborhood CD: | 5 |
Owner |
| Name: | MOSTELLER, ANTHONY E | Owner ID: | 62310 |
| Mailing Address: | JANE E MOSTELLER 378 SELKIRK DR CAMANO ISLAND, WA 98282-8734 | % Ownership: | 100.0000000000% |
| | | Exemptions: | |
Taxes and Assessment Details
Values
| (+) Improvement Homesite Value: | + | $0 | |
| (+) Improvement Non-Homesite Value: | + | $293,254 | |
| (+) Land Homesite Value: | + | $0 | |
| (+) Land Non-Homesite Value: | + | $260,000 | |
| (+) Curr Use (HS): | + | $0 | $0 |
| (+) Curr Use (NHS): | + | $0 | $0 |
| | | -------------------------- | |
| (=) Market Value: | = | $553,254 | |
| (–) Productivity Loss: | – | $0 | |
| | | -------------------------- | |
| (=) Subtotal: | = | $553,254 | |
| (+) Senior Appraised Value: | + | $0 | |
| (+) Non-Senior Appraised Value: | + | $553,254 | |
| | | -------------------------- | |
| (=) Total Appraised Value: | = | $553,254 | |
| (–) Senior Exemption Loss: | – | $0 | |
| (–) Exemption Loss: | – | $0 | |
| | | -------------------------- | |
| (=) Taxable Value: | = | $553,254 | |
Taxing Jurisdiction
| Owner: | MOSTELLER, ANTHONY E | | |
| % Ownership: | 100.0000000000% | | |
| Total Value: | $553,254 | | |
| Tax Area: | 590 - APPRAISER-Stan/Cam Schl Dist, Special Dist, improved & less than 1 acre |
| CF | Conservation Futures | 0.0316035091 | $553,254 | $553,254 | $17.48 | | |
| EMS1 | Fire & Rescue Dist #1 Camano GEN (EMS) | 0.3677864386 | $553,254 | $553,254 | $203.48 | | |
| FIRE1 | Fire & Rescue Dist #1 Camano GEN | 1.2502910536 | $553,254 | $553,254 | $691.73 | | |
| FIRE1BOND | Fire & Rescue Dist #1 Camano BOND | 0.1570001679 | $553,254 | $553,254 | $86.86 | | |
| CE | County Current Expense | 0.3708482477 | $553,254 | $553,254 | $205.17 | | |
| CR | County Roads | 0.4584763726 | $553,254 | $553,254 | $253.65 | | |
| LCIB | Library Sno-Isle BOND (Camano Island) | 0.0396325772 | $553,254 | $553,254 | $21.93 | | |
| LIB | Library Sno-Isle GEN | 0.3153421757 | $553,254 | $553,254 | $174.46 | | |
| SCH205_401 | School 205-401 Enrichment | 1.2698420524 | $553,254 | $553,254 | $702.55 | | |
| SCH205BOND | School 205-401 BOND | 0.9396497583 | $553,254 | $553,254 | $519.86 | | |
| ST | State School | 1.3035497053 | $553,254 | $553,254 | $721.19 | | |
| ST2 | State School Part 2 | 0.8169543533 | $553,254 | $553,254 | $451.98 | | |
| | Total Tax Rate: | 7.3209764117 | | | | | |
| | | | | Taxes w/Current Exemptions: | $4,050.34 | | |
| | | | | Taxes w/o Exemptions: | $4,050.34 | | |
Improvement / Building
| Improvement #1: | RESIDENTIAL | State Code: | Y | 1378.0 sqft | Value: | $293,254 |
| Bathrooms: | 2 | Bedrooms: | 3 | | Ceiling: | DRYWALL PAINTED | Cooling: | HEAT PUMP/CONV/V | | Exterior Wall/Cover: | PLY/HARDBOARD T-111 | Floor Covering: | CARPET/VINYL 60-40 | | Floor Structure: | WOOD W/SUBFLOOR | Foundation: | CONCRETE | | Interior Finish: | DRYWALL PAINT | Plumbing Fixture Cnt: | 10 | | Roof Slope: | 5" IN 12" | Roof Structure/Cover: | CJ ASPHALT |
|
| | Type | Description | Class CD | Sub Class CD | Year Built | Area |
| | BAS | BASE/MAIN FLOOR | 3 | 0 | 1994 | 1378.0 |
| | UB8 | BASEMENT UNFINISHED 8" | 3 | 0 | 1994 | 1338.0 |
| | AGR | ATTACHED GARAGE | 3 | 0 | 1994 | 529.0 |
| | OWP | OPEN WOOD PORCH W/STEPS | 3 | 0 | 1994 | 312.5 |
Sketch
Property Image
Land
| 1 | 14 | SQ (08001-12000) | 0.0000 | 0.00 | 0.00 | 0.00 | 1.00 | $260,000 | $0 |
Roll Value History
| 2026 | N/A | N/A | N/A | N/A | N/A |
| 2025 | $293,254 | $260,000 | $0 | $553,254 | $553,254 |
| 2024 | $297,049 | $250,000 | $0 | $547,049 | $547,049 |
| 2023 | $300,846 | $250,000 | $0 | $550,846 | $550,846 |
| 2022 | $275,841 | $210,000 | $0 | $485,841 | $485,841 |
| 2021 | $235,489 | $165,000 | $0 | $400,489 | $400,489 |
| 2020 | $229,266 | $135,000 | $0 | $364,266 | $364,266 |
| 2019 | $164,513 | $175,000 | $0 | $339,513 | $339,513 |
| 2018 | $160,867 | $145,000 | $0 | $305,867 | $305,867 |
| 2017 | $161,874 | $100,000 | $0 | $261,874 | $261,874 |
| 2016 | $163,898 | $85,000 | $0 | $248,898 | $248,898 |
| 2015 | $162,018 | $65,000 | $0 | $227,018 | $227,018 |
| 2014 | $164,038 | $55,000 | $0 | $219,038 | $219,038 |
| 2013 | $166,059 | $55,000 | $0 | $221,059 | $221,059 |
| 2012 | $168,081 | $60,000 | $0 | $228,081 | $228,081 |
| 2011 | $170,103 | $65,000 | $0 | $235,103 | $235,103 |
| 2010 | $176,470 | $76,000 | $0 | $252,470 | $252,470 |
| 2009 | $185,388 | $100,000 | $0 | $285,388 | $285,388 |
| 2008 | $187,593 | $125,000 | $0 | $312,593 | $312,593 |
| 2007 | $189,819 | $100,000 | $0 | $289,819 | $289,819 |
Deed and Sales History
| 1 | 07/29/2005 | WD | Warranty Deed | OPREA, RICHARD T | MOSTELLER, ANTHONY E | | | $232,840.00 | 53838 | 4143214 |
| 2 | 09/01/1989 | WD | Warranty Deed | GIFFORD, ROSALIE A | OPREA, RICHARD T | | | $8,800.00 | 94282 | 89014039 |
| 3 | 01/01/1900 | OTHER | Other - Misc. Documents | Unknown | GIFFORD, ROSALIE A | | | $0.00 | 0 | 0 |
Payout Agreement
| No payout information available.. |