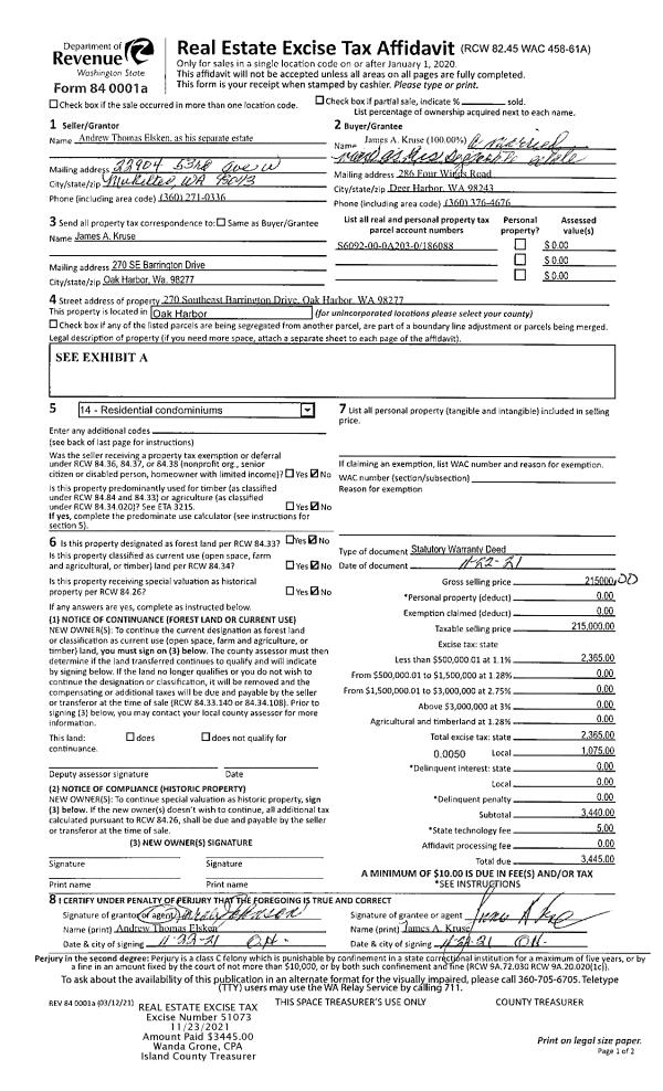
Property
Account |
| Property ID: | 207920 | Abbreviated Legal Description: | CAMALOCH 3 LOT 29 SEG'D L30 4/95 |
| Geographic ID: | S6235-03-00029-0 | Agent Code: | |
| Type: | Real | | |
| Tax Area: | 590 - APPRAISER-Stan/Cam Schl Dist, Special Dist, improved & less than 1 acre | Land Use Code | 11 |
| Open Space: | N | DFL | N |
| Historic Property: | N | Remodel Property: | N |
| Multi-Family Redevelopment: | N | | |
| Township: | | Section: | |
| Range: | |
Location |
| Address: | 358 HEATHER DR CAMANO ISLAND, WA 98282 | Mapsco: | |
| Neighborhood: | Cycle 5 | Map ID: | 995 |
| Neighborhood CD: | 5 |
Owner |
| Name: | FAIRBANKS, ANDREW | Owner ID: | 307481 |
| Mailing Address: | HALEY FAIRBANKS 358 HEATHER DR CAMANO ISLAND, WA 98282 | % Ownership: | 100.0000000000% |
| | | Exemptions: | |
Taxes and Assessment Details
Values
| (+) Improvement Homesite Value: | + | $0 | |
| (+) Improvement Non-Homesite Value: | + | $479,717 | |
| (+) Land Homesite Value: | + | $0 | |
| (+) Land Non-Homesite Value: | + | $260,000 | |
| (+) Curr Use (HS): | + | $0 | $0 |
| (+) Curr Use (NHS): | + | $0 | $0 |
| | | -------------------------- | |
| (=) Market Value: | = | $739,717 | |
| (–) Productivity Loss: | – | $0 | |
| | | -------------------------- | |
| (=) Subtotal: | = | $739,717 | |
| (+) Senior Appraised Value: | + | $0 | |
| (+) Non-Senior Appraised Value: | + | $739,717 | |
| | | -------------------------- | |
| (=) Total Appraised Value: | = | $739,717 | |
| (–) Senior Exemption Loss: | – | $0 | |
| (–) Exemption Loss: | – | $0 | |
| | | -------------------------- | |
| (=) Taxable Value: | = | $739,717 | |
Taxing Jurisdiction
| Owner: | FAIRBANKS, ANDREW | | |
| % Ownership: | 100.0000000000% | | |
| Total Value: | $739,717 | | |
| Tax Area: | 590 - APPRAISER-Stan/Cam Schl Dist, Special Dist, improved & less than 1 acre |
| CF | Conservation Futures | 0.0316035091 | $739,717 | $739,717 | $23.38 | | |
| EMS1 | Fire & Rescue Dist #1 Camano GEN (EMS) | 0.3677864386 | $739,717 | $739,717 | $272.06 | | |
| FIRE1 | Fire & Rescue Dist #1 Camano GEN | 1.2502910536 | $739,717 | $739,717 | $924.86 | | |
| FIRE1BOND | Fire & Rescue Dist #1 Camano BOND | 0.1570001679 | $739,717 | $739,717 | $116.14 | | |
| CE | County Current Expense | 0.3708482477 | $739,717 | $739,717 | $274.32 | | |
| CR | County Roads | 0.4584763726 | $739,717 | $739,717 | $339.14 | | |
| LCIB | Library Sno-Isle BOND (Camano Island) | 0.0396325772 | $739,717 | $739,717 | $29.32 | | |
| LIB | Library Sno-Isle GEN | 0.3153421757 | $739,717 | $739,717 | $233.26 | | |
| SCH205_401 | School 205-401 Enrichment | 1.2698420524 | $739,717 | $739,717 | $939.32 | | |
| SCH205BOND | School 205-401 BOND | 0.9396497583 | $739,717 | $739,717 | $695.07 | | |
| ST | State School | 1.3035497053 | $739,717 | $739,717 | $964.26 | | |
| ST2 | State School Part 2 | 0.8169543533 | $739,717 | $739,717 | $604.32 | | |
| | Total Tax Rate: | 7.3209764117 | | | | | |
| | | | | Taxes w/Current Exemptions: | $5,415.45 | | |
| | | | | Taxes w/o Exemptions: | $5,415.45 | | |
Improvement / Building
| Improvement #1: | RESIDENTIAL | State Code: | Y | 2302.1 sqft | Value: | $479,717 |
| Bathrooms: | 2.5 | Bedrooms: | 3 | | Ceiling: | DRYWALL PAINTED | Exterior Wall/Cover: | WOOD SIDING | | Floor Covering: | HARDWOOD/CARP 60-40 | Floor Structure: | WOOD W/SUBFLOOR | | Foundation: | CONCRETE | Heating: | FHA GAS | | Interior Finish: | DRYWALL PAINT | Plumbing Fixture Cnt: | 14 | | Roof Slope: | 12" IN 12" | Roof Structure/Cover: | CJ ASPHALT |
|
| | Type | Description | Class CD | Sub Class CD | Year Built | Area |
| | BAS | BASE/MAIN FLOOR | 4 | 0 | 2001 | 1504.1 |
| | AGR | ATTACHED GARAGE | 4 | 0 | 2001 | 572.2 |
| | ATU | ATTIC UNFINISHED | 4 | 0 | 2001 | 345.6 |
| | OWP | OPEN WOOD PORCH W/STEPS | 4 | 0 | 2001 | 117.0 |
| | OWC | OPEN WOOD PORCH W/STEPS/ROOF/C | 4 | 0 | 2001 | 241.8 |
| | UPH | HALF STORY | 4 | 0 | 2001 | 798.0 |
Sketch
Property Image
Land
| 1 | 14 | SQ (08001-12000) | 0.0000 | 0.00 | 0.00 | 0.00 | 1.00 | $260,000 | $0 |
Roll Value History
| 2026 | N/A | N/A | N/A | N/A | N/A |
| 2025 | $479,717 | $260,000 | $0 | $739,717 | $739,717 |
| 2024 | $485,479 | $250,000 | $0 | $735,479 | $735,479 |
| 2023 | $491,242 | $250,000 | $0 | $741,242 | $741,242 |
| 2022 | $472,106 | $210,000 | $0 | $682,106 | $682,106 |
| 2021 | $403,436 | $165,000 | $0 | $568,436 | $568,436 |
| 2020 | $392,994 | $135,000 | $0 | $527,994 | $527,994 |
| 2019 | $294,086 | $175,000 | $0 | $469,086 | $469,086 |
| 2018 | $294,938 | $145,000 | $0 | $439,938 | $439,938 |
| 2017 | $296,589 | $100,000 | $0 | $396,589 | $396,589 |
| 2016 | $299,998 | $85,000 | $0 | $384,998 | $384,998 |
| 2015 | $285,653 | $65,000 | $0 | $350,653 | $350,653 |
| 2014 | $288,966 | $55,000 | $0 | $343,966 | $343,966 |
| 2013 | $292,278 | $55,000 | $0 | $347,278 | $347,278 |
| 2012 | $295,590 | $60,000 | $0 | $355,590 | $355,590 |
| 2011 | $298,904 | $65,000 | $0 | $363,904 | $363,904 |
| 2010 | $310,196 | $76,000 | $0 | $386,196 | $386,196 |
| 2009 | $357,658 | $100,000 | $0 | $457,658 | $457,658 |
| 2008 | $358,153 | $125,000 | $0 | $483,153 | $483,153 |
| 2007 | $362,340 | $100,000 | $0 | $462,340 | $462,340 |
Deed and Sales History
| 1 | 02/01/2023 | WD | Warranty Deed | REBER, TIMOTHY | FAIRBANKS, ANDREW | | | $689,999.00 | 55769 | 4556403 |
| 2 | 04/01/2021 | WD | Warranty Deed | BURROWS, MICHAEL F | REBER, TIMOTHY | | | $625,000.00 | 47636 | 4515487 |
| 3 | 06/27/2000 | WD | Warranty Deed | NORTH PUGET CONST INC, | BURROWS, MICHAEL F | | | $70,000.00 | 2381 | 2011356 |
| 4 | 09/22/1998 | WD | Warranty Deed | MASON, ALAN L | NORTH PUGET CONST INC, | | | $44,000.00 | 83984 | 98021502 |
| 5 | 08/03/1998 | QCD | Quit Claim Deed | TITUS, MIKE | MASON, ALAN L | | | $0.00 | 83054 | 98015925 |
| 6 | 04/01/1995 | QCD | Quit Claim Deed | MASON, ALLAN L | TITUS, MIKE | | | $0.00 | 51305 | 95006147 |
| 7 | 07/01/1993 | WD | Warranty Deed | JONES, PAUL | MASON, ALLAN L | | | $49,500.00 | 32813 | 93014482 |
| 8 | 10/01/1989 | WD | Warranty Deed | WNUKOSKI, DAWN M | JONES, PAUL | | | $13,000.00 | 94462 | 89014618 |
| 9 | 11/01/1988 | QCD | Quit Claim Deed | , | WNUKOSKI, DAWN M | | | $0.00 | 90186 | 89000669 |
| 10 | 01/01/1900 | OTHER | Other - Misc. Documents | Unknown | MASON, ALLAN L | | | $0.00 | 83054 | 98015925 |
| 11 | 01/01/1900 | OTHER | Other - Misc. Documents | NORTH PUGET CONST INC, | NORTH PUGET CONST INC, | | | $0.00 | 0 | 0 |
| 12 | 01/01/1900 | OTHER | Other - Misc. Documents | WNUKOSKI, FRANK P | , | | | $0.00 | 71435 | 0 |
| 13 | 01/01/1900 | OTHER | Other - Misc. Documents | MASON, ALLAN L | WNUKOSKI, FRANK P | | | $0.00 | 35065 | 0 |
Payout Agreement
| No payout information available.. |