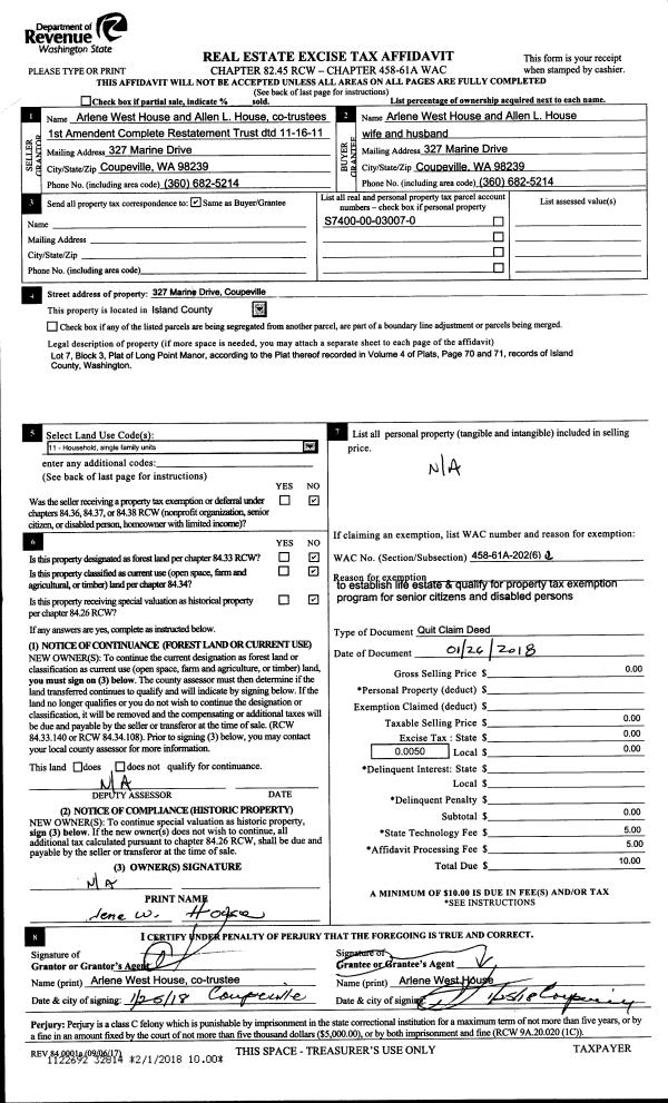
Property
Account |
| Property ID: | 207939 | Abbreviated Legal Description: | CAMALOCH 3 LOT 30 FR L29 4/95 |
| Geographic ID: | S6235-03-00030-0 | Agent Code: | |
| Type: | Real | | |
| Tax Area: | 590 - APPRAISER-Stan/Cam Schl Dist, Special Dist, improved & less than 1 acre | Land Use Code | 11 |
| Open Space: | N | DFL | N |
| Historic Property: | N | Remodel Property: | N |
| Multi-Family Redevelopment: | N | | |
| Township: | | Section: | |
| Range: | |
Location |
| Address: | 352 HEATHER DR CAMANO ISLAND, WA 98282 | Mapsco: | |
| Neighborhood: | Cycle 5 | Map ID: | 995 |
| Neighborhood CD: | 5 |
Owner |
| Name: | AKERS JTWROS, CHARLES D | Owner ID: | 316981 |
| Mailing Address: | SHARON L BASSEN JTWROS 352 HEATHER DR CAMANO ISLAND, WA 98282 | % Ownership: | 100.0000000000% |
| | | Exemptions: | SNR/DSBL |
Taxes and Assessment Details
Values
| (+) Improvement Homesite Value: | + | $462,389 | |
| (+) Improvement Non-Homesite Value: | + | $0 | |
| (+) Land Homesite Value: | + | $260,000 | |
| (+) Land Non-Homesite Value: | + | $0 | |
| (+) Curr Use (HS): | + | $0 | $0 |
| (+) Curr Use (NHS): | + | $0 | $0 |
| | | -------------------------- | |
| (=) Market Value: | = | $722,389 | |
| (–) Productivity Loss: | – | $0 | |
| | | -------------------------- | |
| (=) Subtotal: | = | $722,389 | |
| (+) Senior Appraised Value: | + | $719,846 | |
| (+) Non-Senior Appraised Value: | + | $0 | |
| | | -------------------------- | |
| (=) Total Appraised Value: | = | $719,846 | |
| (–) Senior Exemption Loss: | – | $0 | |
| (–) Exemption Loss: | – | $0 | |
| | | -------------------------- | |
| (=) Taxable Value: | = | $719,846 | |
Taxing Jurisdiction
| Owner: | AKERS JTWROS, CHARLES D | | |
| % Ownership: | 100.0000000000% | | |
| Total Value: | $722,389 | | |
| Tax Area: | 590 - APPRAISER-Stan/Cam Schl Dist, Special Dist, improved & less than 1 acre |
| CF | Conservation Futures | 0.0316035091 | $722,389 | $719,846 | $22.75 | | |
| EMS1 | Fire & Rescue Dist #1 Camano GEN (EMS) | 0.3677864386 | $722,389 | $719,846 | $264.75 | | |
| FIRE1 | Fire & Rescue Dist #1 Camano GEN | 1.2502910536 | $722,389 | $719,846 | $900.02 | | |
| FIRE1BOND | Fire & Rescue Dist #1 Camano BOND | 0.0000000000 | $722,389 | $0 | $0.00 | | |
| CE | County Current Expense | 0.3708482477 | $722,389 | $719,846 | $266.95 | | |
| CR | County Roads | 0.4584763726 | $722,389 | $719,846 | $330.03 | | |
| LCIB | Library Sno-Isle BOND (Camano Island) | 0.0000000000 | $722,389 | $0 | $0.00 | | |
| LIB | Library Sno-Isle GEN | 0.3153421757 | $722,389 | $719,846 | $227.00 | | |
| SCH205_401 | School 205-401 Enrichment | 0.0000000000 | $722,389 | $0 | $0.00 | | |
| SCH205BOND | School 205-401 BOND | 0.0000000000 | $722,389 | $0 | $0.00 | | |
| ST | State School | 1.3035497053 | $722,389 | $719,846 | $938.36 | | |
| ST2 | State School Part 2 | 0.0000000000 | $722,389 | $0 | $0.00 | | |
| | Total Tax Rate: | 4.0978975026 | | | | | |
| | | | | Taxes w/Current Exemptions: | $2,949.86 | | |
| | | | | Taxes w/o Exemptions: | $5,288.60 | | |
Improvement / Building
| Improvement #1: | RESIDENTIAL | State Code: | Y | 1895.5 sqft | Value: | $462,389 |
| Bathrooms: | 2.5 | Bedrooms: | 3 | | Ceiling: | DRYWALL PAINTED | Exterior Wall/Cover: | CEMENT FIBER | | Floor Covering: | CARPET/VINYL 60-40 | Floor Structure: | WOOD W/SUBFLOOR | | Foundation: | CONCRETE | Heating: | FHA GAS | | Interior Finish: | DRYWALL PAINT | Plumbing Fixture Cnt: | 14 | | Roof Slope: | 8" IN 12" | Roof Structure/Cover: | CJ ASPHALT |
|
| | Type | Description | Class CD | Sub Class CD | Year Built | Area |
| | BAS | BASE/MAIN FLOOR | 4 | 0 | 2019 | 1895.5 |
| | AGR | ATTACHED GARAGE | 4 | 0 | 2019 | 780.0 |
| | OWP | OPEN WOOD PORCH W/STEPS | 4 | 0 | 2019 | 54.0 |
Sketch
Property Image
Land
| 1 | 14 | SQ (08001-12000) | 0.0000 | 0.00 | 0.00 | 0.00 | 1.00 | $260,000 | $0 |
Roll Value History
| 2026 | N/A | N/A | N/A | N/A | N/A |
| 2025 | $462,389 | $260,000 | $0 | $722,389 | $719,846 |
| 2024 | $466,117 | $250,000 | $0 | $716,117 | $716,117 |
| 2023 | $469,846 | $250,000 | $0 | $719,846 | $719,846 |
| 2022 | $428,844 | $210,000 | $0 | $638,844 | $638,844 |
| 2021 | $376,824 | $165,000 | $0 | $541,824 | $541,824 |
| 2020 | $368,563 | $135,000 | $0 | $503,563 | $503,563 |
| 2019 | $270,242 | $175,000 | $0 | $445,242 | $445,242 |
| 2018 | $0 | $85,000 | $0 | $85,000 | $85,000 |
| 2017 | $0 | $70,000 | $0 | $70,000 | $70,000 |
| 2016 | $0 | $50,000 | $0 | $50,000 | $50,000 |
| 2015 | $0 | $50,000 | $0 | $50,000 | $50,000 |
| 2014 | $0 | $55,000 | $0 | $55,000 | $55,000 |
| 2013 | $0 | $55,000 | $0 | $55,000 | $55,000 |
| 2012 | $0 | $60,000 | $0 | $60,000 | $60,000 |
| 2011 | $0 | $75,000 | $0 | $75,000 | $75,000 |
| 2010 | $0 | $75,000 | $0 | $75,000 | $75,000 |
| 2009 | $0 | $82,000 | $0 | $82,000 | $82,000 |
| 2008 | $0 | $125,000 | $0 | $125,000 | $125,000 |
| 2007 | $0 | $100,000 | $0 | $100,000 | $100,000 |
Deed and Sales History
| 1 | 03/24/2025 | QCD | Quit Claim Deed | AKERS, CHARLES D | AKERS JTWROS, CHARLES D | | | $0.00 | 63673 | 4586548 |
| 2 | 07/08/2019 | WD | Warranty Deed | WICKSTROM CONSTRUCTION, INC. | AKERS, CHARLES D | | | $500,000.00 | 39408 | 4467266 |
| 3 | 03/20/2018 | WD | Warranty Deed | SHEAD, JOHN & KATHLEEN | WICKSTROM CONSTRUCTION, INC. | | | $130,000.00 | 33366 | 4441216 |
| 4 | 03/23/2007 | WD | Warranty Deed | NOEL, ALLEN H | SHEAD, JOHN & KATHLEEN | | | $158,000.00 | 71118 | 4198526 |
| 5 | 10/05/2005 | WD | Warranty Deed | NORTH PUGET CONST. INC, | NOEL, ALLEN H | | | $132,600.00 | 55116 | 4150268 |
| 6 | 01/11/2000 | WD | Warranty Deed | MASON, ALLAN L | NORTH PUGET CONST. INC, | | | $25,000.00 | 141 | 20000847 |
| 7 | 01/11/2000 | ESTSEPPROP | Establish Separate Property | MASON, ALLEN L | MASON, ALLAN L | | | $0.00 | 142 | 20000848 |
| 8 | 07/01/1993 | WD | Warranty Deed | JONES, PAUL | MASON, ALLEN L | | | $0.00 | 32813 | 93014482 |
| 9 | 10/01/1989 | WD | Warranty Deed | , | JONES, PAUL | | | $13,000.00 | 94462 | 89014618 |
| 10 | 01/01/1900 | OTHER | Other - Misc. Documents | , | , | | | $0.00 | 71435 | 0 |
| 11 | 01/01/1900 | OTHER | Other - Misc. Documents | WNUKOSKI, FRANK P | , | | | $0.00 | 35065 | 0 |
| 12 | 01/01/1900 | OTHER | Other - Misc. Documents | Unknown | WNUKOSKI, FRANK P | | | $0.00 | 90186 | 89000669 |
Payout Agreement
| No payout information available.. |