Property
Account |
| Property ID: | 208055 | Abbreviated Legal Description: | CAMALOCH 3 LOT 42 |
| Geographic ID: | S6235-03-00042-0 | Agent Code: | |
| Type: | Real | | |
| Tax Area: | 590 - APPRAISER-Stan/Cam Schl Dist, Special Dist, improved & less than 1 acre | Land Use Code | 11 |
| Open Space: | N | DFL | N |
| Historic Property: | N | Remodel Property: | N |
| Multi-Family Redevelopment: | N | | |
| Township: | | Section: | |
| Range: | |
Location |
| Address: | 289 HEATHER DR CAMANO ISLAND, WA 98282 | Mapsco: | |
| Neighborhood: | Cycle 5 | Map ID: | 995 |
| Neighborhood CD: | 5 |
Owner |
| Name: | UTLEY, SIERRA | Owner ID: | 307840 |
| Mailing Address: | WILLIAM UTLEY 24225 115TH AVE NORTHEAST ARLINGTON, WA 98223 | % Ownership: | 100.0000000000% |
| | | Exemptions: | |
Taxes and Assessment Details
Values
| (+) Improvement Homesite Value: | + | $0 | |
| (+) Improvement Non-Homesite Value: | + | $235,725 | |
| (+) Land Homesite Value: | + | $0 | |
| (+) Land Non-Homesite Value: | + | $260,000 | |
| (+) Curr Use (HS): | + | $0 | $0 |
| (+) Curr Use (NHS): | + | $0 | $0 |
| | | -------------------------- | |
| (=) Market Value: | = | $495,725 | |
| (–) Productivity Loss: | – | $0 | |
| | | -------------------------- | |
| (=) Subtotal: | = | $495,725 | |
| (+) Senior Appraised Value: | + | $0 | |
| (+) Non-Senior Appraised Value: | + | $495,725 | |
| | | -------------------------- | |
| (=) Total Appraised Value: | = | $495,725 | |
| (–) Senior Exemption Loss: | – | $0 | |
| (–) Exemption Loss: | – | $0 | |
| | | -------------------------- | |
| (=) Taxable Value: | = | $495,725 | |
Taxing Jurisdiction
| Owner: | UTLEY, SIERRA | | |
| % Ownership: | 100.0000000000% | | |
| Total Value: | $495,725 | | |
| Tax Area: | 590 - APPRAISER-Stan/Cam Schl Dist, Special Dist, improved & less than 1 acre |
| CF | Conservation Futures | 0.0316035091 | $495,725 | $495,725 | $15.67 | | |
| EMS1 | Fire & Rescue Dist #1 Camano GEN (EMS) | 0.3677864386 | $495,725 | $495,725 | $182.32 | | |
| FIRE1 | Fire & Rescue Dist #1 Camano GEN | 1.2502910536 | $495,725 | $495,725 | $619.80 | | |
| FIRE1BOND | Fire & Rescue Dist #1 Camano BOND | 0.1570001679 | $495,725 | $495,725 | $77.83 | | |
| CE | County Current Expense | 0.3708482477 | $495,725 | $495,725 | $183.84 | | |
| CR | County Roads | 0.4584763726 | $495,725 | $495,725 | $227.28 | | |
| LCIB | Library Sno-Isle BOND (Camano Island) | 0.0396325772 | $495,725 | $495,725 | $19.65 | | |
| LIB | Library Sno-Isle GEN | 0.3153421757 | $495,725 | $495,725 | $156.32 | | |
| SCH205_401 | School 205-401 Enrichment | 1.2698420524 | $495,725 | $495,725 | $629.49 | | |
| SCH205BOND | School 205-401 BOND | 0.9396497583 | $495,725 | $495,725 | $465.81 | | |
| ST | State School | 1.3035497053 | $495,725 | $495,725 | $646.20 | | |
| ST2 | State School Part 2 | 0.8169543533 | $495,725 | $495,725 | $404.98 | | |
| | Total Tax Rate: | 7.3209764117 | | | | | |
| | | | | Taxes w/Current Exemptions: | $3,629.19 | | |
| | | | | Taxes w/o Exemptions: | $3,629.19 | | |
Improvement / Building
| Improvement #1: | RESIDENTIAL | State Code: | Y | 1323.0 sqft | Value: | $235,725 |
| Bathrooms: | 2 | Bedrooms: | 3 | | Ceiling: | DRYWALL PAINTED | Exterior Wall/Cover: | PLY/HARDBOARD T-111 | | Floor Covering: | CARPET/VINYL 60-40 | Floor Structure: | WOOD W/SUBFLOOR | | Foundation: | CONCRETE | Heating: | FHA GAS | | Interior Finish: | DRYWALL PAINT | Plumbing Fixture Cnt: | 10 | | Roof Slope: | 4" IN 12" | Roof Structure/Cover: | CJ ASPHALT |
|
| | Type | Description | Class CD | Sub Class CD | Year Built | Area |
| | BAS | BASE/MAIN FLOOR | 3 | 0 | 1979 | 1323.0 |
| | OP4 | OPEN PORCH W/CEILING-ROOF | 3 | 0 | 1979 | 68.0 |
| | AGR | ATTACHED GARAGE | 3 | 0 | 1979 | 462.0 |
| | OWP | OPEN WOOD PORCH W/STEPS | 3 | 0 | 1979 | 376.0 |
Sketch
Property Image
Land
| 1 | 14 | SQ (08001-12000) | 0.0000 | 0.00 | 0.00 | 0.00 | 1.00 | $260,000 | $0 |
Roll Value History
| 2026 | N/A | N/A | N/A | N/A | N/A |
| 2025 | $235,725 | $260,000 | $0 | $495,725 | $495,725 |
| 2024 | $238,859 | $250,000 | $0 | $488,859 | $488,859 |
| 2023 | $241,990 | $250,000 | $0 | $491,990 | $491,990 |
| 2022 | $221,961 | $210,000 | $0 | $431,961 | $431,961 |
| 2021 | $190,541 | $165,000 | $0 | $355,541 | $355,541 |
| 2020 | $185,441 | $135,000 | $0 | $320,441 | $320,441 |
| 2019 | $132,283 | $175,000 | $0 | $307,283 | $307,283 |
| 2018 | $132,700 | $145,000 | $0 | $277,700 | $277,700 |
| 2017 | $133,535 | $100,000 | $0 | $233,535 | $233,535 |
| 2016 | $135,204 | $85,000 | $0 | $220,204 | $220,204 |
| 2015 | $125,298 | $65,000 | $0 | $190,298 | $190,298 |
| 2014 | $126,983 | $55,000 | $0 | $181,983 | $181,983 |
| 2013 | $128,668 | $55,000 | $0 | $183,668 | $183,668 |
| 2012 | $130,354 | $60,000 | $0 | $190,354 | $190,354 |
| 2011 | $132,039 | $65,000 | $0 | $197,039 | $197,039 |
| 2010 | $139,926 | $76,000 | $0 | $215,926 | $215,926 |
| 2009 | $137,601 | $100,000 | $0 | $237,601 | $237,601 |
| 2008 | $137,681 | $125,000 | $0 | $262,681 | $262,681 |
| 2007 | $139,446 | $100,000 | $0 | $239,446 | $239,446 |
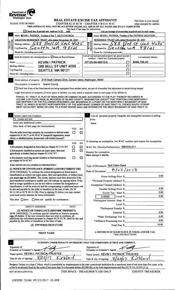
Deed and Sales History
| 1 | 03/02/2023 | WD | Warranty Deed | BROWN, JOANNE | UTLEY, SIERRA | | | $539,000.00 | 56016 | 4557327 |
| 2 | 12/01/2021 | WD | Warranty Deed | MCKEOWN, BRUCE | BROWN, JOANNE | | | $485,000.00 | 51228 | 4535380 |
| 3 | 08/22/2017 | WD | Warranty Deed | SCAPPINI, JAMES B | MCKEOWN, BRUCE | | | $310,000.00 | 30799 | 4428912 |
| 4 | 01/09/2017 | CCOMPROP | Create Community Property | SCAPPINI, JAMES B | SCAPPINI, JAMES B | | | $0.00 | 27700 | 4414972 |
| 5 | 01/09/2017 | WD | Warranty Deed | 289 HEATHER DRIVE LLC | SCAPPINI, JAMES B | | | $0.00 | 27698 | 4414972 |
| 6 | 05/22/2007 | QCD | Quit Claim Deed | SCAPPINI, JAMES B | 289 HEATHER DRIVE LLC, | | | $0.00 | 71962 | 4204564 |
| 7 | 05/11/2007 | WD | Warranty Deed | SOLLID, MARK D | SCAPPINI, JAMES B | | | $287,900.00 | 71638 | 4202410 |
| 8 | 08/25/1999 | WD | Warranty Deed | SHOOK, ERNEST A | SOLLID, MARK D | | | $130,000.00 | 93514 | 99020067 |
| 9 | 11/01/1994 | QCD | Quit Claim Deed | SHOOK, ERNEST A | SHOOK, ERNEST A | | | $0.00 | 50029 | 95000151 |
| 10 | 10/01/1988 | WD | Warranty Deed | SOLLID, MERWYN D | SHOOK, ERNEST A | | | $72,000.00 | 83528 | 88013148 |
Payout Agreement
| No payout information available.. |