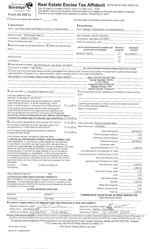
Property
Account |
| Property ID: | 208126 | Abbreviated Legal Description: | CAMALOCH 3 LOT 49 |
| Geographic ID: | S6235-03-00049-0 | Agent Code: | |
| Type: | Real | | |
| Tax Area: | 590 - APPRAISER-Stan/Cam Schl Dist, Special Dist, improved & less than 1 acre | Land Use Code | 11 |
| Open Space: | N | DFL | N |
| Historic Property: | N | Remodel Property: | N |
| Multi-Family Redevelopment: | N | | |
| Township: | | Section: | |
| Range: | |
Location |
| Address: | 325 HEATHER DR CAMANO ISLAND, WA 98282 | Mapsco: | |
| Neighborhood: | Cycle 5 | Map ID: | 995 |
| Neighborhood CD: | 5 |
Owner |
| Name: | O'BRIEN, JACALYN R | Owner ID: | 285254 |
| Mailing Address: | MICHAEL A O'BRIEN 574 MOE ROAD CAMANO ISLAND, WA 98282 | % Ownership: | 100.0000000000% |
| | | Exemptions: | |
Taxes and Assessment Details
Values
| (+) Improvement Homesite Value: | + | $0 | |
| (+) Improvement Non-Homesite Value: | + | $202,329 | |
| (+) Land Homesite Value: | + | $0 | |
| (+) Land Non-Homesite Value: | + | $260,000 | |
| (+) Curr Use (HS): | + | $0 | $0 |
| (+) Curr Use (NHS): | + | $0 | $0 |
| | | -------------------------- | |
| (=) Market Value: | = | $462,329 | |
| (–) Productivity Loss: | – | $0 | |
| | | -------------------------- | |
| (=) Subtotal: | = | $462,329 | |
| (+) Senior Appraised Value: | + | $0 | |
| (+) Non-Senior Appraised Value: | + | $462,329 | |
| | | -------------------------- | |
| (=) Total Appraised Value: | = | $462,329 | |
| (–) Senior Exemption Loss: | – | $0 | |
| (–) Exemption Loss: | – | $0 | |
| | | -------------------------- | |
| (=) Taxable Value: | = | $462,329 | |
Taxing Jurisdiction
| Owner: | O'BRIEN, JACALYN R | | |
| % Ownership: | 100.0000000000% | | |
| Total Value: | $462,329 | | |
| Tax Area: | 590 - APPRAISER-Stan/Cam Schl Dist, Special Dist, improved & less than 1 acre |
| CF | Conservation Futures | 0.0316035091 | $462,329 | $462,329 | $14.61 | | |
| EMS1 | Fire & Rescue Dist #1 Camano GEN (EMS) | 0.3677864386 | $462,329 | $462,329 | $170.04 | | |
| FIRE1 | Fire & Rescue Dist #1 Camano GEN | 1.2502910536 | $462,329 | $462,329 | $578.05 | | |
| FIRE1BOND | Fire & Rescue Dist #1 Camano BOND | 0.1570001679 | $462,329 | $462,329 | $72.59 | | |
| CE | County Current Expense | 0.3708482477 | $462,329 | $462,329 | $171.45 | | |
| CR | County Roads | 0.4584763726 | $462,329 | $462,329 | $211.97 | | |
| LCIB | Library Sno-Isle BOND (Camano Island) | 0.0396325772 | $462,329 | $462,329 | $18.32 | | |
| LIB | Library Sno-Isle GEN | 0.3153421757 | $462,329 | $462,329 | $145.79 | | |
| SCH205_401 | School 205-401 Enrichment | 1.2698420524 | $462,329 | $462,329 | $587.08 | | |
| SCH205BOND | School 205-401 BOND | 0.9396497583 | $462,329 | $462,329 | $434.43 | | |
| ST | State School | 1.3035497053 | $462,329 | $462,329 | $602.67 | | |
| ST2 | State School Part 2 | 0.8169543533 | $462,329 | $462,329 | $377.70 | | |
| | Total Tax Rate: | 7.3209764117 | | | | | |
| | | | | Taxes w/Current Exemptions: | $3,384.70 | | |
| | | | | Taxes w/o Exemptions: | $3,384.70 | | |
Improvement / Building
| Improvement #1: | RESIDENTIAL | State Code: | Y | 1182.0 sqft | Value: | $202,329 |
| Bathrooms: | 1.5 | Bedrooms: | 3 | | Ceiling: | DRY WALL SPRAYED | Exterior Wall/Cover: | WOOD SIDING | | Floor Covering: | CARPET/VINYL 80-20 | Floor Structure: | WOOD W/SUBFLOOR | | Foundation: | CONCRETE | Heating: | BASEBOARD ELECTRIC | | Interior Finish: | DRYWALL PAINT | Plumbing Fixture Cnt: | 8 | | Roof Slope: | 4" IN 12" | Roof Structure/Cover: | CJ ASPHALT |
|
| | Type | Description | Class CD | Sub Class CD | Year Built | Area |
| | BAS | BASE/MAIN FLOOR | 3 | 0 | 1972 | 1182.0 |
| | AGR | ATTACHED GARAGE | 3 | 0 | 1972 | 420.0 |
| | OWP | OPEN WOOD PORCH W/STEPS | 3 | 0 | 1972 | 55.0 |
| | OWP | OPEN WOOD PORCH W/STEPS | 3 | 0 | 1972 | 325.0 |
Sketch
Property Image
Land
| 1 | 14 | SQ (08001-12000) | 0.0000 | 0.00 | 0.00 | 0.00 | 1.00 | $260,000 | $0 |
Roll Value History
| 2026 | N/A | N/A | N/A | N/A | N/A |
| 2025 | $202,329 | $260,000 | $0 | $462,329 | $462,329 |
| 2024 | $209,376 | $250,000 | $0 | $459,376 | $459,376 |
| 2023 | $212,196 | $250,000 | $0 | $462,196 | $462,196 |
| 2022 | $194,696 | $210,000 | $0 | $404,696 | $404,696 |
| 2021 | $164,857 | $165,000 | $0 | $329,857 | $329,857 |
| 2020 | $160,689 | $135,000 | $0 | $295,689 | $295,689 |
| 2019 | $114,779 | $175,000 | $0 | $289,779 | $289,779 |
| 2018 | $115,154 | $145,000 | $0 | $260,154 | $260,154 |
| 2017 | $115,908 | $100,000 | $0 | $215,908 | $215,908 |
| 2016 | $117,412 | $85,000 | $0 | $202,412 | $202,412 |
| 2015 | $107,859 | $65,000 | $0 | $172,859 | $172,859 |
| 2014 | $109,378 | $55,000 | $0 | $164,378 | $164,378 |
| 2013 | $110,896 | $55,000 | $0 | $165,896 | $165,896 |
| 2012 | $112,416 | $60,000 | $0 | $172,416 | $172,416 |
| 2011 | $113,934 | $65,000 | $0 | $178,934 | $178,934 |
| 2010 | $121,080 | $76,000 | $0 | $197,080 | $197,080 |
| 2009 | $122,172 | $100,000 | $0 | $222,172 | $222,172 |
| 2008 | $124,148 | $125,000 | $0 | $249,148 | $249,148 |
| 2007 | $124,670 | $100,000 | $0 | $224,670 | $224,670 |
Deed and Sales History
| 1 | 05/21/2018 | WD | Warranty Deed | RAMSEY, HEATHER C | O'BRIEN, JACALYN R | | | $270,000.00 | 34314 | 4445300 |
| 2 | 09/26/2013 | ESTSEPPROP | Establish Separate Property | RAMSEY, HEATHER C | RAMSEY, HEATHER C | | | $0.00 | 12969 | 4348892 |
| 3 | 09/12/2013 | WD | Warranty Deed | BOUSHEY, HERSHEAL | RAMSEY, HEATHER C | | | $195,000.00 | 12968 | 4348891 |
| 4 | 05/01/1983 | WD | Warranty Deed | MANTLE, WILLIAM E | BOUSHEY, HERSHEAL | | | $67,500.00 | 31277 | 409614 |
| 5 | 01/01/1900 | OTHER | Other - Misc. Documents | Unknown | MANTLE, WILLIAM E | | | $0.00 | 0 | 0 |
Payout Agreement
| No payout information available.. |