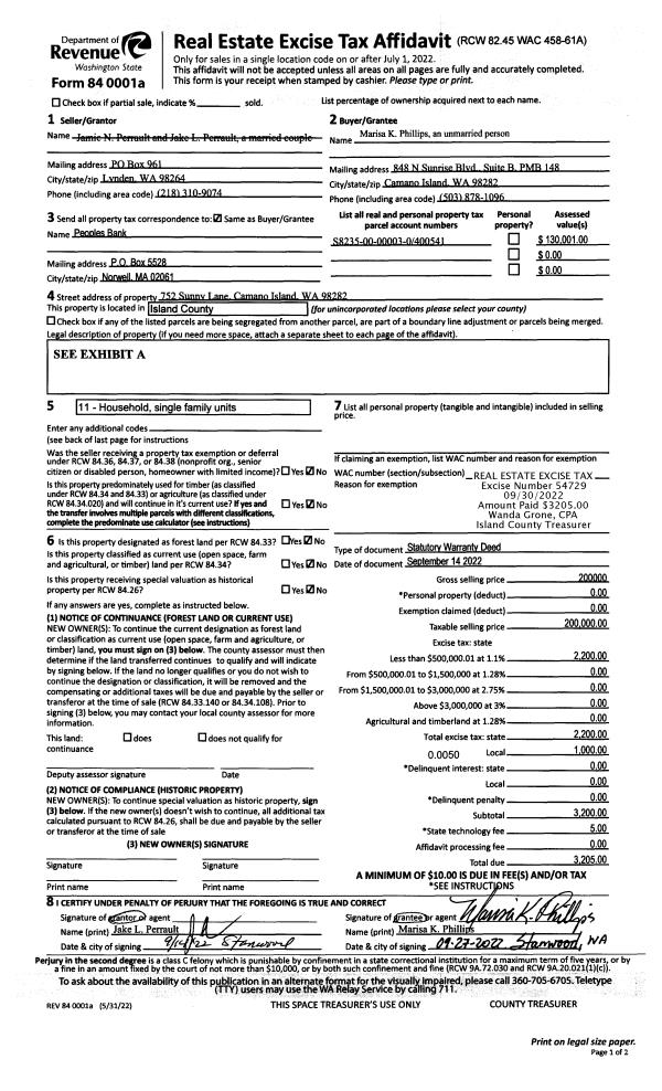
Property
Account |
| Property ID: | 208162 | Abbreviated Legal Description: | CAMALOCH 3 LOT 53 |
| Geographic ID: | S6235-03-00053-0 | Agent Code: | |
| Type: | Real | | |
| Tax Area: | 590 - APPRAISER-Stan/Cam Schl Dist, Special Dist, improved & less than 1 acre | Land Use Code | 11 |
| Open Space: | N | DFL | N |
| Historic Property: | N | Remodel Property: | N |
| Multi-Family Redevelopment: | N | | |
| Township: | | Section: | |
| Range: | |
Location |
| Address: | 345 HEATHER DR CAMANO ISLAND, WA 98282 | Mapsco: | |
| Neighborhood: | Cycle 5 | Map ID: | 995 |
| Neighborhood CD: | 5 |
Owner |
| Name: | TOBIASON, CAROLYN M | Owner ID: | 62347 |
| Mailing Address: | 345 HEATHER DR CAMANO ISLAND, WA 98282-7223 | % Ownership: | 100.0000000000% |
| | | Exemptions: | |
Taxes and Assessment Details
Values
| (+) Improvement Homesite Value: | + | $0 | |
| (+) Improvement Non-Homesite Value: | + | $520,957 | |
| (+) Land Homesite Value: | + | $0 | |
| (+) Land Non-Homesite Value: | + | $260,000 | |
| (+) Curr Use (HS): | + | $0 | $0 |
| (+) Curr Use (NHS): | + | $0 | $0 |
| | | -------------------------- | |
| (=) Market Value: | = | $780,957 | |
| (–) Productivity Loss: | – | $0 | |
| | | -------------------------- | |
| (=) Subtotal: | = | $780,957 | |
| (+) Senior Appraised Value: | + | $0 | |
| (+) Non-Senior Appraised Value: | + | $780,957 | |
| | | -------------------------- | |
| (=) Total Appraised Value: | = | $780,957 | |
| (–) Senior Exemption Loss: | – | $0 | |
| (–) Exemption Loss: | – | $0 | |
| | | -------------------------- | |
| (=) Taxable Value: | = | $780,957 | |
Taxing Jurisdiction
| Owner: | TOBIASON, CAROLYN M | | |
| % Ownership: | 100.0000000000% | | |
| Total Value: | $780,957 | | |
| Tax Area: | 590 - APPRAISER-Stan/Cam Schl Dist, Special Dist, improved & less than 1 acre |
| CF | Conservation Futures | 0.0316035091 | $780,957 | $780,957 | $24.68 | | |
| EMS1 | Fire & Rescue Dist #1 Camano GEN (EMS) | 0.3677864386 | $780,957 | $780,957 | $287.23 | | |
| FIRE1 | Fire & Rescue Dist #1 Camano GEN | 1.2502910536 | $780,957 | $780,957 | $976.42 | | |
| FIRE1BOND | Fire & Rescue Dist #1 Camano BOND | 0.1570001679 | $780,957 | $780,957 | $122.61 | | |
| CE | County Current Expense | 0.3708482477 | $780,957 | $780,957 | $289.62 | | |
| CR | County Roads | 0.4584763726 | $780,957 | $780,957 | $358.05 | | |
| LCIB | Library Sno-Isle BOND (Camano Island) | 0.0396325772 | $780,957 | $780,957 | $30.95 | | |
| LIB | Library Sno-Isle GEN | 0.3153421757 | $780,957 | $780,957 | $246.27 | | |
| SCH205_401 | School 205-401 Enrichment | 1.2698420524 | $780,957 | $780,957 | $991.69 | | |
| SCH205BOND | School 205-401 BOND | 0.9396497583 | $780,957 | $780,957 | $733.83 | | |
| ST | State School | 1.3035497053 | $780,957 | $780,957 | $1,018.02 | | |
| ST2 | State School Part 2 | 0.8169543533 | $780,957 | $780,957 | $638.01 | | |
| | Total Tax Rate: | 7.3209764117 | | | | | |
| | | | | Taxes w/Current Exemptions: | $5,717.38 | | |
| | | | | Taxes w/o Exemptions: | $5,717.38 | | |
Improvement / Building
| Improvement #1: | RESIDENTIAL | State Code: | Y | 2660.0 sqft | Value: | $520,957 |
| Bathrooms: | 2.5 | Bedrooms: | 3 | | Ceiling: | DRYWALL PAINTED | Cooling: | HEAT PUMP/CONV/V | | Exterior Wall/Cover: | CEMENT FIBER | Floor Covering: | CARPET/VINYL 60-40 | | Floor Structure: | WOOD W/SUBFLOOR | Foundation: | CONCRETE | | Interior Finish: | DRYWALL PAINT | Plumbing Fixture Cnt: | 16 | | Roof Slope: | 8" IN 12" | Roof Structure/Cover: | CJ ASPHALT |
|
| | Type | Description | Class CD | Sub Class CD | Year Built | Area |
| | BAS | BASE/MAIN FLOOR | 4 | 0 | 2006 | 1598.0 |
| | AGR | ATTACHED GARAGE | 4 | 0 | 2006 | 528.0 |
| | UTY | STORAGE/UTILITY | 4 | 0 | 2006 | 150.0 |
| | UTY | STORAGE/UTILITY | 4 | 0 | 2006 | 98.0 |
| | OWP | OPEN WOOD PORCH W/STEPS | 4 | 0 | 2006 | 276.0 |
| | OWC | OPEN WOOD PORCH W/STEPS/ROOF/C | 4 | 0 | 2006 | 120.0 |
| | DWN | DOWNSTAIRS LIVING AREA | 4 | 0 | 2006 | 1062.0 |
Sketch
Property Image
Land
| 1 | 14 | SQ (08001-12000) | 0.0000 | 0.00 | 0.00 | 0.00 | 1.00 | $260,000 | $0 |
Roll Value History
| 2026 | N/A | N/A | N/A | N/A | N/A |
| 2025 | $520,957 | $260,000 | $0 | $780,957 | $780,957 |
| 2024 | $526,928 | $250,000 | $0 | $776,928 | $776,928 |
| 2023 | $532,897 | $250,000 | $0 | $782,897 | $782,897 |
| 2022 | $486,596 | $210,000 | $0 | $696,596 | $696,596 |
| 2021 | $416,754 | $165,000 | $0 | $581,754 | $581,754 |
| 2020 | $404,369 | $135,000 | $0 | $539,369 | $539,369 |
| 2019 | $305,989 | $175,000 | $0 | $480,989 | $480,989 |
| 2018 | $306,827 | $145,000 | $0 | $451,827 | $451,827 |
| 2017 | $308,504 | $100,000 | $0 | $408,504 | $408,504 |
| 2016 | $311,858 | $85,000 | $0 | $396,858 | $396,858 |
| 2015 | $322,907 | $65,000 | $0 | $387,907 | $387,907 |
| 2014 | $326,449 | $55,000 | $0 | $381,449 | $381,449 |
| 2013 | $329,993 | $55,000 | $0 | $384,993 | $384,993 |
| 2012 | $333,535 | $60,000 | $0 | $393,535 | $393,535 |
| 2011 | $337,078 | $65,000 | $0 | $402,078 | $402,078 |
| 2010 | $348,443 | $76,000 | $0 | $424,443 | $424,443 |
| 2009 | $362,857 | $100,000 | $0 | $462,857 | $462,857 |
| 2008 | $363,031 | $125,000 | $0 | $488,031 | $488,031 |
| 2007 | $366,813 | $100,000 | $0 | $466,813 | $466,813 |
Deed and Sales History
| 1 | 03/28/2006 | WD | Warranty Deed | MCNAUGHTON, JAMES C | TOBIASON, CAROLYN M | | | $172,000.00 | 61480 | 4166723 |
| 2 | 10/20/1998 | WD | Warranty Deed | Unknown | MCNAUGHTON, JAMES C | | | $45,000.00 | 84195 | 98022824 |
Payout Agreement
| No payout information available.. |