Property
Account |
| Property ID: | 208386 | Abbreviated Legal Description: | CAMALOCH 4 LOT 1 |
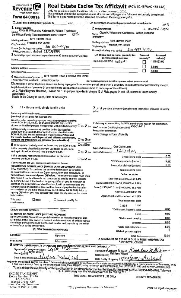
| Geographic ID: | S6235-04-00001-0 | Agent Code: | |
| Type: | Real | | |
| Tax Area: | 590 - APPRAISER-Stan/Cam Schl Dist, Special Dist, improved & less than 1 acre | Land Use Code | 11 |
| Open Space: | N | DFL | N |
| Historic Property: | N | Remodel Property: | N |
| Multi-Family Redevelopment: | N | | |
| Township: | | Section: | |
| Range: | |
Location |
| Address: | 272 LOCHWOOD DR CAMANO ISLAND, WA 98282 | Mapsco: | |
| Neighborhood: | Cycle 5 | Map ID: | 989 |
| Neighborhood CD: | 5 |
Owner |
| Name: | CROSBY, RICHARD A | Owner ID: | 295556 |
| Mailing Address: | PAMELA J CROSBY 272 LOCH LN CAMANO ISLAND, WA 98282 | % Ownership: | 100.0000000000% |
| | | Exemptions: | |
Taxes and Assessment Details
Values
| (+) Improvement Homesite Value: | + | $0 | |
| (+) Improvement Non-Homesite Value: | + | $527,335 | |
| (+) Land Homesite Value: | + | $0 | |
| (+) Land Non-Homesite Value: | + | $330,000 | |
| (+) Curr Use (HS): | + | $0 | $0 |
| (+) Curr Use (NHS): | + | $0 | $0 |
| | | -------------------------- | |
| (=) Market Value: | = | $857,335 | |
| (–) Productivity Loss: | – | $0 | |
| | | -------------------------- | |
| (=) Subtotal: | = | $857,335 | |
| (+) Senior Appraised Value: | + | $0 | |
| (+) Non-Senior Appraised Value: | + | $857,335 | |
| | | -------------------------- | |
| (=) Total Appraised Value: | = | $857,335 | |
| (–) Senior Exemption Loss: | – | $0 | |
| (–) Exemption Loss: | – | $0 | |
| | | -------------------------- | |
| (=) Taxable Value: | = | $857,335 | |
Taxing Jurisdiction
| Owner: | CROSBY, RICHARD A | | |
| % Ownership: | 100.0000000000% | | |
| Total Value: | $857,335 | | |
| Tax Area: | 590 - APPRAISER-Stan/Cam Schl Dist, Special Dist, improved & less than 1 acre |
| CF | Conservation Futures | 0.0316035091 | $857,335 | $857,335 | $27.09 | | |
| EMS1 | Fire & Rescue Dist #1 Camano GEN (EMS) | 0.3677864386 | $857,335 | $857,335 | $315.32 | | |
| FIRE1 | Fire & Rescue Dist #1 Camano GEN | 1.2502910536 | $857,335 | $857,335 | $1,071.92 | | |
| FIRE1BOND | Fire & Rescue Dist #1 Camano BOND | 0.1570001679 | $857,335 | $857,335 | $134.60 | | |
| CE | County Current Expense | 0.3708482477 | $857,335 | $857,335 | $317.94 | | |
| CR | County Roads | 0.4584763726 | $857,335 | $857,335 | $393.07 | | |
| LCIB | Library Sno-Isle BOND (Camano Island) | 0.0396325772 | $857,335 | $857,335 | $33.98 | | |
| LIB | Library Sno-Isle GEN | 0.3153421757 | $857,335 | $857,335 | $270.35 | | |
| SCH205_401 | School 205-401 Enrichment | 1.2698420524 | $857,335 | $857,335 | $1,088.68 | | |
| SCH205BOND | School 205-401 BOND | 0.9396497583 | $857,335 | $857,335 | $805.59 | | |
| ST | State School | 1.3035497053 | $857,335 | $857,335 | $1,117.58 | | |
| ST2 | State School Part 2 | 0.8169543533 | $857,335 | $857,335 | $700.40 | | |
| | Total Tax Rate: | 7.3209764117 | | | | | |
| | | | | Taxes w/Current Exemptions: | $6,276.52 | | |
| | | | | Taxes w/o Exemptions: | $6,276.52 | | |
Improvement / Building
| Improvement #1: | RESIDENTIAL | State Code: | Y | 2905.4 sqft | Value: | $527,335 |
| Bathrooms: | 2.5 | Bedrooms: | 2 | | Ceiling: | DRYWALL PAINTED | Cooling: | HEAT PUMP/CONV/V | | Exterior Wall/Cover: | CEMENT FIBER | Floor Covering: | HARDWOOD/CARP 60-40 | | Floor Structure: | WOOD W/SUBFLOOR | Foundation: | CONCRETE | | Interior Finish: | DRYWALL PAINT | Plumbing Fixture Cnt: | 14 | | Roof Slope: | 6" IN 12" | Roof Structure/Cover: | CJ ASPHALT |
|
| | Type | Description | Class CD | Sub Class CD | Year Built | Area |
| | BAS | BASE/MAIN FLOOR | 4 | 0 | 1991 | 1411.0 |
| | UTY | STORAGE/UTILITY | 4 | 0 | 1991 | 96.0 |
| | AGR | ATTACHED GARAGE | 4 | 0 | 1991 | 400.0 |
| | BGR | BASEMENT GARAGE | 4 | 0 | 1991 | 215.0 |
| | UPS | UPPER STORY | 4 | 0 | 1991 | 540.0 |
| | OWP | OPEN WOOD PORCH W/STEPS | 4 | 0 | 1991 | 537.6 |
| | DWN | DOWNSTAIRS LIVING AREA | 4 | 0 | 1991 | 954.4 |
Sketch
Property Image
Land
| 1 | 14 | SQ (08001-12000) | 0.0000 | 0.00 | 0.00 | 0.00 | 1.00 | $330,000 | $0 |
Roll Value History
| 2026 | N/A | N/A | N/A | N/A | N/A |
| 2025 | $527,335 | $330,000 | $0 | $857,335 | $857,335 |
| 2024 | $533,521 | $320,000 | $0 | $853,521 | $853,521 |
| 2023 | $539,706 | $300,000 | $0 | $839,706 | $839,706 |
| 2022 | $494,288 | $280,000 | $0 | $774,288 | $774,288 |
| 2021 | $417,322 | $175,000 | $0 | $592,322 | $592,322 |
| 2020 | $374,708 | $135,000 | $0 | $509,708 | $509,708 |
| 2019 | $289,003 | $175,000 | $0 | $464,003 | $464,003 |
| 2018 | $289,841 | $145,000 | $0 | $434,841 | $434,841 |
| 2017 | $291,475 | $125,000 | $0 | $416,475 | $416,475 |
| 2016 | $294,824 | $125,000 | $0 | $419,824 | $419,824 |
| 2015 | $276,887 | $85,000 | $0 | $361,887 | $361,887 |
| 2014 | $280,207 | $72,000 | $0 | $352,207 | $352,207 |
| 2013 | $283,525 | $72,000 | $0 | $355,525 | $355,525 |
| 2012 | $286,843 | $72,000 | $0 | $358,843 | $358,843 |
| 2011 | $290,163 | $90,000 | $0 | $380,163 | $380,163 |
| 2010 | $302,626 | $90,000 | $0 | $392,626 | $392,626 |
| 2009 | $349,587 | $112,500 | $0 | $462,087 | $462,087 |
| 2008 | $362,699 | $141,049 | $0 | $503,748 | $503,748 |
| 2007 | $306,916 | $135,000 | $0 | $441,916 | $441,916 |
Deed and Sales History
| 1 | 08/04/2020 | WD | Warranty Deed | JACQUES, ROCHELLE D | CROSBY, RICHARD A | | | $625,000.00 | 44146 | 4493316 |
|   | |
| 2 | 02/27/2017 | QCD | Quit Claim Deed | JACQUES, MICHAEL | JACQUES, ROCHELLE D | | | $0.00 | 28392 | 4418640 |
| 3 | 11/13/2014 | WD | Warranty Deed | PLUMMER, WILLIAM G | JACQUES, MICHAEL | | | $369,950.00 | 17571 | 4368621 |
| 4 | 08/28/2000 | WD | Warranty Deed | HEAD, WILLIAM R | PLUMMER, WILLIAM G | | | $265,000.00 | 3303 | 20015430 |
| 5 | 10/01/1992 | WD | Warranty Deed | WESTHILL, INC | HEAD, WILLIAM R | | | $236,000.00 | 24047 | 92019687 |
| 6 | 05/01/1991 | WD | Warranty Deed | , | WESTHILL, INC | | | $49,500.00 | 11724 | 91007390 |
Payout Agreement
| No payout information available.. |