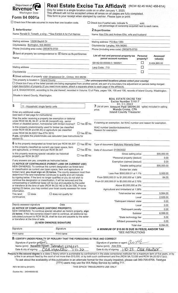
Property
Account |
| Property ID: | 208652 | Abbreviated Legal Description: | CAMALOCH 4 LOT 28 |
| Geographic ID: | S6235-04-00028-0 | Agent Code: | |
| Type: | Real | | |
| Tax Area: | 590 - APPRAISER-Stan/Cam Schl Dist, Special Dist, improved & less than 1 acre | Land Use Code | 11 |
| Open Space: | N | DFL | N |
| Historic Property: | N | Remodel Property: | N |
| Multi-Family Redevelopment: | N | | |
| Township: | | Section: | |
| Range: | |
Location |
| Address: | | Mapsco: | |
| Neighborhood: | Cycle 5 | Map ID: | 989 |
| Neighborhood CD: | 5 |
Owner |
| Name: | MESSMER, LORI JANE | Owner ID: | 62396 |
| Mailing Address: | 455 TAM O SHANTER DR CAMANO ISLAND, WA 98282 | % Ownership: | 100.0000000000% |
| | | Exemptions: | SNR/DSBL |
Taxes and Assessment Details
Values
| (+) Improvement Homesite Value: | + | $267,859 | |
| (+) Improvement Non-Homesite Value: | + | $0 | |
| (+) Land Homesite Value: | + | $260,000 | |
| (+) Land Non-Homesite Value: | + | $0 | |
| (+) Curr Use (HS): | + | $0 | $0 |
| (+) Curr Use (NHS): | + | $0 | $0 |
| | | -------------------------- | |
| (=) Market Value: | = | $527,859 | |
| (–) Productivity Loss: | – | $0 | |
| | | -------------------------- | |
| (=) Subtotal: | = | $527,859 | |
| (+) Senior Appraised Value: | + | $200,524 | |
| (+) Non-Senior Appraised Value: | + | $0 | |
| | | -------------------------- | |
| (=) Total Appraised Value: | = | $200,524 | |
| (–) Senior Exemption Loss: | – | $120,314 | |
| (–) Exemption Loss: | – | $0 | |
| | | -------------------------- | |
| (=) Taxable Value: | = | $80,210 | |
Taxing Jurisdiction
| Owner: | MESSMER, LORI JANE | | |
| % Ownership: | 100.0000000000% | | |
| Total Value: | $527,859 | | |
| Tax Area: | 590 - APPRAISER-Stan/Cam Schl Dist, Special Dist, improved & less than 1 acre |
| CF | Conservation Futures | 0.0316035091 | $527,859 | $80,210 | $2.53 | | |
| EMS1 | Fire & Rescue Dist #1 Camano GEN (EMS) | 0.3677864386 | $527,859 | $80,210 | $29.50 | | |
| FIRE1 | Fire & Rescue Dist #1 Camano GEN | 1.2502910536 | $527,859 | $80,210 | $100.29 | | |
| FIRE1BOND | Fire & Rescue Dist #1 Camano BOND | 0.0000000000 | $527,859 | $0 | $0.00 | | |
| CE | County Current Expense | 0.3708482477 | $527,859 | $80,210 | $29.75 | | |
| CR | County Roads | 0.4584763726 | $527,859 | $80,210 | $36.77 | | |
| LCIB | Library Sno-Isle BOND (Camano Island) | 0.0000000000 | $527,859 | $0 | $0.00 | | |
| LIB | Library Sno-Isle GEN | 0.3153421757 | $527,859 | $80,210 | $25.29 | | |
| SCH205_401 | School 205-401 Enrichment | 0.0000000000 | $527,859 | $0 | $0.00 | | |
| SCH205BOND | School 205-401 BOND | 0.0000000000 | $527,859 | $0 | $0.00 | | |
| ST | State School | 1.3035497053 | $527,859 | $80,210 | $104.56 | | |
| ST2 | State School Part 2 | 0.0000000000 | $527,859 | $0 | $0.00 | | |
| | Total Tax Rate: | 4.0978975026 | | | | | |
| | | | | Taxes w/Current Exemptions: | $328.69 | | |
| | | | | Taxes w/o Exemptions: | $3,864.45 | | |
Improvement / Building
| Improvement #1: | RESIDENTIAL | State Code: | Y | 1001.0 sqft | Value: | $267,859 |
| Bathrooms: | 2 | Bedrooms: | 2 | | Ceiling: | DRYWALL PAINTED | Exterior Wall/Cover: | CEMENT FIBER | | Floor Covering: | HARDWOOD/CARP 60-40 | Floor Structure: | WOOD W/SUBFLOOR | | Foundation: | CONCRETE | Heating: | WALL HEAT ELECTRIC | | Interior Finish: | DRYWALL PAINT | Plumbing Fixture Cnt: | 12 | | Roof Slope: | 4" IN 12" | Roof Structure/Cover: | CJ ASPHALT |
|
| | Type | Description | Class CD | Sub Class CD | Year Built | Area |
| | BAS | BASE/MAIN FLOOR | 3 | 0 | 2006 | 1001.0 |
| | OWP | OPEN WOOD PORCH W/STEPS | 3 | 0 | 2006 | 224.0 |
| | OP4 | OPEN PORCH W/CEILING-ROOF | 3 | 0 | 2006 | 75.0 |
| | AGR | ATTACHED GARAGE | 3 | 0 | 2006 | 495.0 |
Sketch
Property Image
Land
| 1 | 14 | SQ (08001-12000) | 0.0000 | 0.00 | 0.00 | 0.00 | 1.00 | $260,000 | $0 |
Roll Value History
| 2026 | N/A | N/A | N/A | N/A | N/A |
| 2025 | $267,859 | $260,000 | $0 | $527,859 | $80,210 |
| 2024 | $270,929 | $250,000 | $0 | $520,929 | $80,210 |
| 2023 | $273,999 | $250,000 | $0 | $523,999 | $80,210 |
| 2022 | $250,190 | $210,000 | $0 | $460,190 | $80,210 |
| 2021 | $207,366 | $165,000 | $0 | $372,366 | $80,210 |
| 2020 | $200,041 | $135,000 | $0 | $335,041 | $80,210 |
| 2019 | $138,186 | $175,000 | $0 | $313,186 | $80,210 |
| 2018 | $138,563 | $145,000 | $0 | $283,563 | $80,210 |
| 2017 | $139,321 | $100,000 | $0 | $239,321 | $80,210 |
| 2016 | $140,836 | $85,000 | $0 | $225,836 | $80,210 |
| 2015 | $143,925 | $65,000 | $0 | $208,925 | $80,210 |
| 2014 | $145,524 | $55,000 | $0 | $200,524 | $80,210 |
| 2013 | $147,124 | $55,000 | $0 | $202,124 | $202,124 |
| 2012 | $148,723 | $60,000 | $0 | $208,723 | $208,723 |
| 2011 | $150,322 | $65,000 | $0 | $215,322 | $215,322 |
| 2010 | $149,018 | $76,000 | $0 | $225,018 | $225,018 |
| 2009 | $157,860 | $100,000 | $0 | $257,860 | $257,860 |
| 2008 | $159,584 | $125,000 | $0 | $284,584 | $284,584 |
| 2007 | $159,752 | $100,000 | $0 | $259,752 | $259,752 |
Deed and Sales History
| 1 | 02/09/2010 | WD | Warranty Deed | HSBC BANK USA NA, | MESSMER, LORI JANE | | | $206,900.00 | 347 | 4268869 |
| 2 | 10/16/2009 | TRUSTEED | Trustee's Deed | BARTLETT, PAMELA A | HSBC BANK USA NA, | | | $191,580.00 | 92574 | 4262337 |
| 3 | 09/14/2005 | WD | Warranty Deed | GIRARD, HARRY J | BARTLETT, PAMELA A | | | $55,000.00 | 54765 | 4148460 |
| 4 | 09/01/1991 | WD | Warranty Deed | DAHL, ELMER | GIRARD, HARRY J | | | $15,000.00 | 13508 | 91014923 |
| 5 | 01/01/1900 | OTHER | Other - Misc. Documents | Unknown | DAHL, ELMER | | | $0.00 | 0 | 0 |
Payout Agreement
| No payout information available.. |