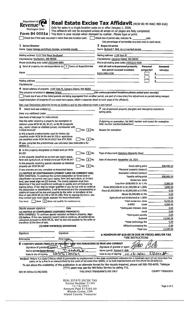
Property
Account |
| Property ID: | 208705 | Abbreviated Legal Description: | CAMALOCH 4 LOT 33 |
| Geographic ID: | S6235-04-00033-0 | Agent Code: | |
| Type: | Real | | |
| Tax Area: | 590 - APPRAISER-Stan/Cam Schl Dist, Special Dist, improved & less than 1 acre | Land Use Code | 11 |
| Open Space: | N | DFL | N |
| Historic Property: | N | Remodel Property: | N |
| Multi-Family Redevelopment: | N | | |
| Township: | | Section: | |
| Range: | |
Location |
| Address: | 489 TAM O SHANTER DR CAMANO ISLAND, WA 98282 | Mapsco: | |
| Neighborhood: | Cycle 5 | Map ID: | 989 |
| Neighborhood CD: | 5 |
Owner |
| Name: | FLORES, ROSANNA MARIE | Owner ID: | 274842 |
| Mailing Address: | 489 TAM-O-SHANTER DR CAMANO ISLAND, WA 98282 | % Ownership: | 100.0000000000% |
| | | Exemptions: | SNR/DSBL |
Taxes and Assessment Details
Values
| (+) Improvement Homesite Value: | + | $439,874 | |
| (+) Improvement Non-Homesite Value: | + | $0 | |
| (+) Land Homesite Value: | + | $260,000 | |
| (+) Land Non-Homesite Value: | + | $0 | |
| (+) Curr Use (HS): | + | $0 | $0 |
| (+) Curr Use (NHS): | + | $0 | $0 |
| | | -------------------------- | |
| (=) Market Value: | = | $699,874 | |
| (–) Productivity Loss: | – | $0 | |
| | | -------------------------- | |
| (=) Subtotal: | = | $699,874 | |
| (+) Senior Appraised Value: | + | $316,669 | |
| (+) Non-Senior Appraised Value: | + | $0 | |
| | | -------------------------- | |
| (=) Total Appraised Value: | = | $316,669 | |
| (–) Senior Exemption Loss: | – | $190,001 | |
| (–) Exemption Loss: | – | $0 | |
| | | -------------------------- | |
| (=) Taxable Value: | = | $126,668 | |
Taxing Jurisdiction
| Owner: | FLORES, ROSANNA MARIE | | |
| % Ownership: | 100.0000000000% | | |
| Total Value: | $699,874 | | |
| Tax Area: | 590 - APPRAISER-Stan/Cam Schl Dist, Special Dist, improved & less than 1 acre |
| CF | Conservation Futures | 0.0316035091 | $699,874 | $126,668 | $4.00 | | |
| EMS1 | Fire & Rescue Dist #1 Camano GEN (EMS) | 0.3677864386 | $699,874 | $126,668 | $46.59 | | |
| FIRE1 | Fire & Rescue Dist #1 Camano GEN | 1.2502910536 | $699,874 | $126,668 | $158.37 | | |
| FIRE1BOND | Fire & Rescue Dist #1 Camano BOND | 0.0000000000 | $699,874 | $0 | $0.00 | | |
| CE | County Current Expense | 0.3708482477 | $699,874 | $126,668 | $46.97 | | |
| CR | County Roads | 0.4584763726 | $699,874 | $126,668 | $58.07 | | |
| LCIB | Library Sno-Isle BOND (Camano Island) | 0.0000000000 | $699,874 | $0 | $0.00 | | |
| LIB | Library Sno-Isle GEN | 0.3153421757 | $699,874 | $126,668 | $39.94 | | |
| SCH205_401 | School 205-401 Enrichment | 0.0000000000 | $699,874 | $0 | $0.00 | | |
| SCH205BOND | School 205-401 BOND | 0.0000000000 | $699,874 | $0 | $0.00 | | |
| ST | State School | 1.3035497053 | $699,874 | $126,668 | $165.12 | | |
| ST2 | State School Part 2 | 0.0000000000 | $699,874 | $0 | $0.00 | | |
| | Total Tax Rate: | 4.0978975026 | | | | | |
| | | | | Taxes w/Current Exemptions: | $519.06 | | |
| | | | | Taxes w/o Exemptions: | $5,123.78 | | |
Improvement / Building
| Improvement #1: | RESIDENTIAL | State Code: | Y | 1611.5 sqft | Value: | $439,874 |
| Bathrooms: | 2 | Bedrooms: | 3 | | Ceiling: | DRYWALL PAINTED | Exterior Wall/Cover: | CEMENT FIBER | | Floor Covering: | HARDWOOD/CARP 60-40 | Floor Structure: | WOOD W/SUBFLOOR | | Foundation: | CONCRETE | Heating: | FHA GAS | | Interior Finish: | DRYWALL PAINT | Plumbing Fixture Cnt: | 12 | | Roof Slope: | 4" IN 12" | Roof Structure/Cover: | CJ ASPHALT |
|
| | Type | Description | Class CD | Sub Class CD | Year Built | Area |
| | BAS | BASE/MAIN FLOOR | 4 | 0 | 2015 | 1611.5 |
| | OWC | OPEN WOOD PORCH W/STEPS/ROOF/C | 4 | 0 | 2015 | 102.0 |
| | AGR | ATTACHED GARAGE | 4 | 0 | 2015 | 551.2 |
| | OWP | OPEN WOOD PORCH W/STEPS | 4 | 0 | 2015 | 102.0 |
| | OP4 | OPEN PORCH W/CEILING-ROOF | 4 | 0 | 2015 | 36.0 |
Sketch
Property Image
Land
| 1 | 14 | SQ (08001-12000) | 0.0000 | 0.00 | 0.00 | 0.00 | 1.00 | $260,000 | $0 |
Roll Value History
| 2026 | N/A | N/A | N/A | N/A | N/A |
| 2025 | $439,874 | $260,000 | $0 | $699,874 | $126,668 |
| 2024 | $443,265 | $250,000 | $0 | $693,265 | $126,668 |
| 2023 | $446,899 | $250,000 | $0 | $696,899 | $126,668 |
| 2022 | $407,957 | $210,000 | $0 | $617,957 | $246,669 |
| 2021 | $320,272 | $165,000 | $0 | $485,272 | $246,669 |
| 2020 | $310,215 | $135,000 | $0 | $445,215 | $246,669 |
| 2019 | $227,532 | $175,000 | $0 | $402,532 | $126,668 |
| 2018 | $228,123 | $145,000 | $0 | $373,123 | $126,668 |
| 2017 | $229,306 | $100,000 | $0 | $329,306 | $126,668 |
| 2016 | $231,669 | $85,000 | $0 | $316,669 | $126,668 |
| 2015 | $0 | $65,000 | $0 | $65,000 | $65,000 |
| 2014 | $0 | $55,000 | $0 | $55,000 | $55,000 |
| 2013 | $0 | $55,000 | $0 | $55,000 | $55,000 |
| 2012 | $0 | $60,000 | $0 | $60,000 | $60,000 |
| 2011 | $0 | $65,000 | $0 | $65,000 | $65,000 |
| 2010 | $1,265 | $76,000 | $0 | $77,265 | $77,265 |
| 2009 | $2,745 | $100,000 | $0 | $102,745 | $102,745 |
| 2008 | $2,925 | $125,000 | $0 | $127,925 | $127,925 |
| 2007 | $3,060 | $90,000 | $0 | $93,060 | $93,060 |
Deed and Sales History
| 1 | 05/12/2016 | WD | Warranty Deed | GREG STEWART LLC | FLORES, ROSANNA MARIE | | | $365,000.00 | 24285 | 4399238 |
| 2 | 07/08/2010 | WD | Warranty Deed | DOWNS, RUSSEL D | GREG STEWART LLC, | | | $60,000.00 | 1791 | 4277399 |
| 3 | 07/26/2005 | WD | Warranty Deed | TUSCHOFF, JACK T | DOWNS, RUSSEL D | | | $80,000.00 | 53586 | 4142067 |
| 4 | 08/10/2000 | WD | Warranty Deed | HEGGEM, WILLARD | TUSCHOFF, JACK T | | | $0.00 | 3044 | 20014309 |
| 5 | 09/01/1992 | QCD | Quit Claim Deed | CHRISTIAN, TONI & | HEGGEM, WILLARD | | | $0.00 | 23712 | 92017894 |
| 6 | 01/01/1990 | QCD | Quit Claim Deed | TUSCHOFF, JACK T | CHRISTIAN, TONI & | | | $0.00 | 791 | 90002586 |
| 7 | 01/01/1990 | WD | Warranty Deed | CHRISTIAN, TONI & | TUSCHOFF, JACK T | | | $5,000.00 | 792 | 90002587 |
| 8 | 05/01/1988 | OTHER | Other - Misc. Documents | CHRISTIAN, TONI & | CHRISTIAN, TONI & | | | $0.00 | 62634 | 0 |
| 9 | 04/01/1988 | PRD | Personal Representatives Deed | THOMPSON, FREDDIE J | CHRISTIAN, TONI & | | | $0.00 | 81256 | 88004769 |
| 10 | 01/01/1900 | OTHER | Other - Misc. Documents | Unknown | THOMPSON, FREDDIE J | | | $0.00 | 0 | 0 |
Payout Agreement
| No payout information available.. |