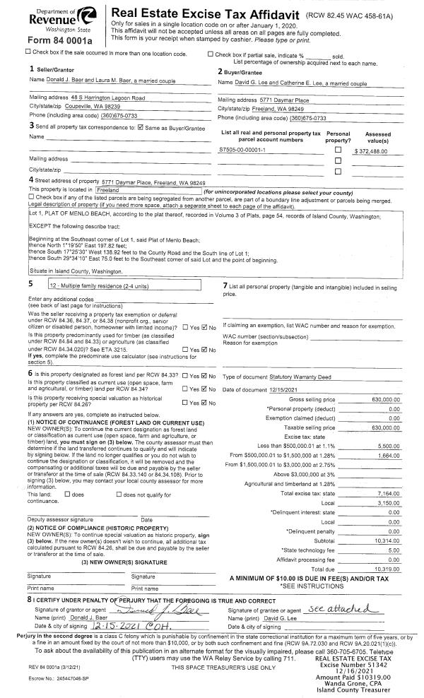
Property
Account |
| Property ID: | 208723 | Abbreviated Legal Description: | CAMALOCH 4 LOT 35 |
| Geographic ID: | S6235-04-00035-0 | Agent Code: | |
| Type: | Real | | |
| Tax Area: | 590 - APPRAISER-Stan/Cam Schl Dist, Special Dist, improved & less than 1 acre | Land Use Code | 11 |
| Open Space: | N | DFL | N |
| Historic Property: | N | Remodel Property: | N |
| Multi-Family Redevelopment: | N | | |
| Township: | | Section: | |
| Range: | |
Location |
| Address: | 492 TAM O SHANTER DR CAMANO ISLAND, WA 98282 | Mapsco: | |
| Neighborhood: | Cycle 5 | Map ID: | 989 |
| Neighborhood CD: | 5 |
Owner |
| Name: | DANIELS, MICHAEL | Owner ID: | 283347 |
| Mailing Address: | BECKY DANIELS 492 TAM O SHANTER DR CAMANO ISLAND, WA 98282 | % Ownership: | 100.0000000000% |
| | | Exemptions: | |
Taxes and Assessment Details
Values
| (+) Improvement Homesite Value: | + | $0 | |
| (+) Improvement Non-Homesite Value: | + | $408,569 | |
| (+) Land Homesite Value: | + | $0 | |
| (+) Land Non-Homesite Value: | + | $260,000 | |
| (+) Curr Use (HS): | + | $0 | $0 |
| (+) Curr Use (NHS): | + | $0 | $0 |
| | | -------------------------- | |
| (=) Market Value: | = | $668,569 | |
| (–) Productivity Loss: | – | $0 | |
| | | -------------------------- | |
| (=) Subtotal: | = | $668,569 | |
| (+) Senior Appraised Value: | + | $0 | |
| (+) Non-Senior Appraised Value: | + | $668,569 | |
| | | -------------------------- | |
| (=) Total Appraised Value: | = | $668,569 | |
| (–) Senior Exemption Loss: | – | $0 | |
| (–) Exemption Loss: | – | $0 | |
| | | -------------------------- | |
| (=) Taxable Value: | = | $668,569 | |
Taxing Jurisdiction
| Owner: | DANIELS, MICHAEL | | |
| % Ownership: | 100.0000000000% | | |
| Total Value: | $668,569 | | |
| Tax Area: | 590 - APPRAISER-Stan/Cam Schl Dist, Special Dist, improved & less than 1 acre |
| CF | Conservation Futures | 0.0316035091 | $668,569 | $668,569 | $21.13 | | |
| EMS1 | Fire & Rescue Dist #1 Camano GEN (EMS) | 0.3677864386 | $668,569 | $668,569 | $245.89 | | |
| FIRE1 | Fire & Rescue Dist #1 Camano GEN | 1.2502910536 | $668,569 | $668,569 | $835.91 | | |
| FIRE1BOND | Fire & Rescue Dist #1 Camano BOND | 0.1570001679 | $668,569 | $668,569 | $104.97 | | |
| CE | County Current Expense | 0.3708482477 | $668,569 | $668,569 | $247.94 | | |
| CR | County Roads | 0.4584763726 | $668,569 | $668,569 | $306.52 | | |
| LCIB | Library Sno-Isle BOND (Camano Island) | 0.0396325772 | $668,569 | $668,569 | $26.50 | | |
| LIB | Library Sno-Isle GEN | 0.3153421757 | $668,569 | $668,569 | $210.83 | | |
| SCH205_401 | School 205-401 Enrichment | 1.2698420524 | $668,569 | $668,569 | $848.98 | | |
| SCH205BOND | School 205-401 BOND | 0.9396497583 | $668,569 | $668,569 | $628.22 | | |
| ST | State School | 1.3035497053 | $668,569 | $668,569 | $871.51 | | |
| ST2 | State School Part 2 | 0.8169543533 | $668,569 | $668,569 | $546.19 | | |
| | Total Tax Rate: | 7.3209764117 | | | | | |
| | | | | Taxes w/Current Exemptions: | $4,894.59 | | |
| | | | | Taxes w/o Exemptions: | $4,894.59 | | |
Improvement / Building
| Improvement #1: | RESIDENTIAL | State Code: | Y | 1718.0 sqft | Value: | $408,569 |
| Bathrooms: | 2 | Bedrooms: | 2 | | Ceiling: | DRYWALL PAINTED | Cooling: | HEAT PUMP/CONV/V | | Exterior Wall/Cover: | WOOD SIDING | Floor Covering: | CARPET/VINYL 80-20 | | Floor Structure: | WOOD W/SUBFLOOR | Foundation: | CONCRETE | | Interior Finish: | DRYWALL PAINT | Plumbing Fixture Cnt: | 12 | | Roof Slope: | 8" IN 12" | Roof Structure/Cover: | TILE CONC WOOD JOIST |
|
| | Type | Description | Class CD | Sub Class CD | Year Built | Area |
| | BAS | BASE/MAIN FLOOR | 4 | 0 | 1995 | 1718.0 |
| | OP1 | OPEN PORCH SLAB | 4 | 0 | 1995 | 968.0 |
| | OP4 | OPEN PORCH W/CEILING-ROOF | 4 | 0 | 1995 | 84.0 |
| | AGR | ATTACHED GARAGE | 4 | 0 | 1995 | 1080.0 |
| | OWC | OPEN WOOD PORCH W/STEPS/ROOF/C | 4 | 0 | 1995 | 120.0 |
| | UTY | STORAGE/UTILITY | 4 | 0 | 1995 | 96.0 |
Sketch
Property Image
Land
| 1 | 15 | SQ (12001-21780) | 0.0000 | 0.00 | 0.00 | 0.00 | 1.00 | $260,000 | $0 |
Roll Value History
| 2026 | N/A | N/A | N/A | N/A | N/A |
| 2025 | $408,569 | $260,000 | $0 | $668,569 | $668,569 |
| 2024 | $413,476 | $250,000 | $0 | $663,476 | $663,476 |
| 2023 | $418,386 | $250,000 | $0 | $668,386 | $668,386 |
| 2022 | $383,284 | $210,000 | $0 | $593,284 | $593,284 |
| 2021 | $345,498 | $165,000 | $0 | $510,498 | $510,498 |
| 2020 | $336,222 | $135,000 | $0 | $471,222 | $471,222 |
| 2019 | $244,942 | $175,000 | $0 | $419,942 | $419,942 |
| 2018 | $245,644 | $145,000 | $0 | $390,644 | $390,644 |
| 2017 | $247,053 | $100,000 | $0 | $347,053 | $347,053 |
| 2016 | $249,868 | $85,000 | $0 | $334,868 | $334,868 |
| 2015 | $245,223 | $65,000 | $0 | $310,223 | $310,223 |
| 2014 | $248,082 | $55,000 | $0 | $303,082 | $303,082 |
| 2013 | $250,941 | $55,000 | $0 | $305,941 | $305,941 |
| 2012 | $253,800 | $60,000 | $0 | $313,800 | $313,800 |
| 2011 | $256,660 | $65,000 | $0 | $321,660 | $321,660 |
| 2010 | $264,710 | $76,000 | $0 | $340,710 | $340,710 |
| 2009 | $282,152 | $100,000 | $0 | $382,152 | $382,152 |
| 2008 | $296,274 | $125,000 | $0 | $421,274 | $421,274 |
| 2007 | $300,302 | $100,000 | $0 | $400,302 | $400,302 |
Deed and Sales History
| 1 | 12/13/2017 | WD | Warranty Deed | KNOTT, CHARLES D | DANIELS, MICHAEL | | | $420,000.00 | 32339 | 4436101 |
| 2 | 07/01/1994 | WD | Warranty Deed | PIETROMONACO, TONY B | KNOTT, CHARLES D | | | $45,000.00 | 42782 | 94015198 |
| 3 | 01/01/1900 | OTHER | Other - Misc. Documents | Unknown | PIETROMONACO, TONY B | | | $0.00 | 0 | 0 |
Payout Agreement
| No payout information available.. |