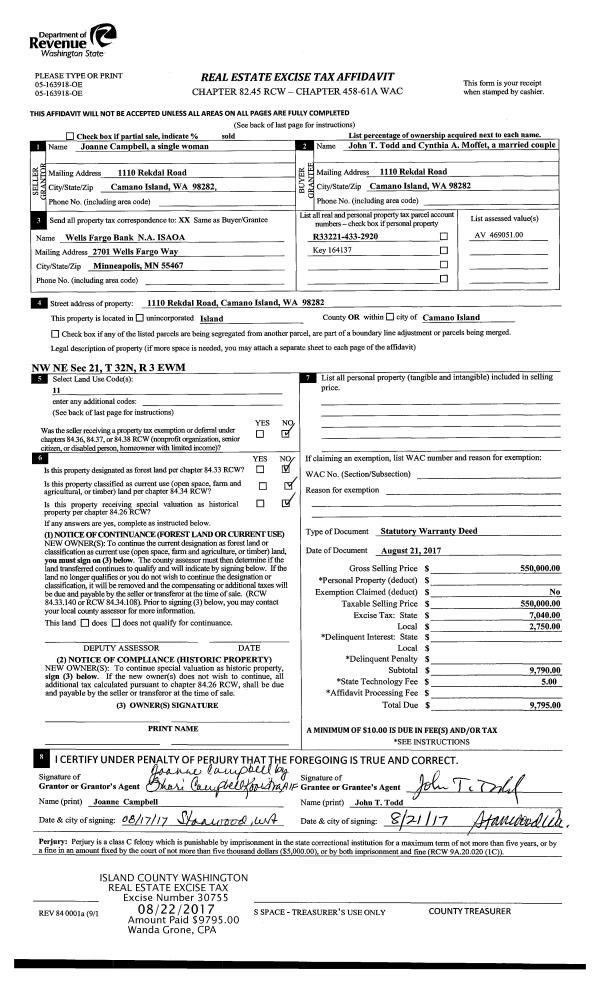
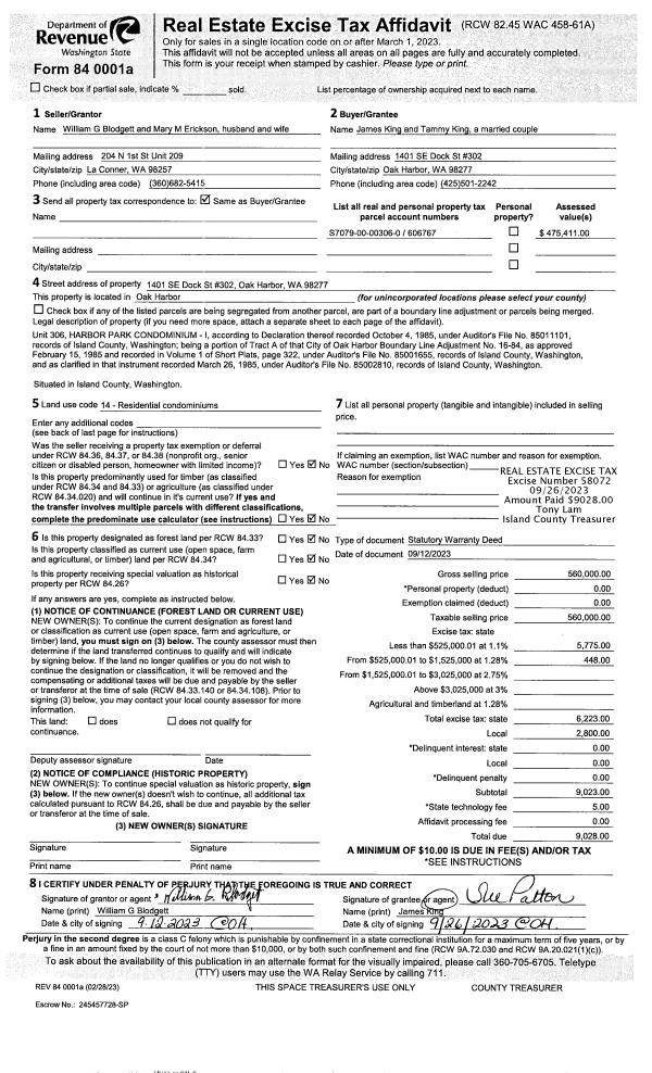
Property
Account |
| Property ID: | 209134 | Abbreviated Legal Description: | CAMALOCH 4 LOT 76 |
| Geographic ID: | S6235-04-00076-0 | Agent Code: | |
| Type: | Real | | |
| Tax Area: | 590 - APPRAISER-Stan/Cam Schl Dist, Special Dist, improved & less than 1 acre | Land Use Code | 11 |
| Open Space: | N | DFL | N |
| Historic Property: | N | Remodel Property: | N |
| Multi-Family Redevelopment: | N | | |
| Township: | | Section: | |
| Range: | |
Location |
| Address: | 319 MELROSE DR CAMANO ISLAND, WA 98282 | Mapsco: | |
| Neighborhood: | Cycle 5 | Map ID: | 989 |
| Neighborhood CD: | 5 |
Owner |
| Name: | PATRICK, SHAREE | Owner ID: | 307544 |
| Mailing Address: | BALKE PATRICK 319 MELROSE LN CAMANO ISLAND, WA 98282 | % Ownership: | 100.0000000000% |
| | | Exemptions: | |
Taxes and Assessment Details
Values
| (+) Improvement Homesite Value: | + | $0 | |
| (+) Improvement Non-Homesite Value: | + | $268,917 | |
| (+) Land Homesite Value: | + | $0 | |
| (+) Land Non-Homesite Value: | + | $260,000 | |
| (+) Curr Use (HS): | + | $0 | $0 |
| (+) Curr Use (NHS): | + | $0 | $0 |
| | | -------------------------- | |
| (=) Market Value: | = | $528,917 | |
| (–) Productivity Loss: | – | $0 | |
| | | -------------------------- | |
| (=) Subtotal: | = | $528,917 | |
| (+) Senior Appraised Value: | + | $0 | |
| (+) Non-Senior Appraised Value: | + | $528,917 | |
| | | -------------------------- | |
| (=) Total Appraised Value: | = | $528,917 | |
| (–) Senior Exemption Loss: | – | $0 | |
| (–) Exemption Loss: | – | $0 | |
| | | -------------------------- | |
| (=) Taxable Value: | = | $528,917 | |
Taxing Jurisdiction
| Owner: | PATRICK, SHAREE | | |
| % Ownership: | 100.0000000000% | | |
| Total Value: | $528,917 | | |
| Tax Area: | 590 - APPRAISER-Stan/Cam Schl Dist, Special Dist, improved & less than 1 acre |
| CF | Conservation Futures | 0.0316035091 | $528,917 | $528,917 | $16.72 | | |
| EMS1 | Fire & Rescue Dist #1 Camano GEN (EMS) | 0.3677864386 | $528,917 | $528,917 | $194.53 | | |
| FIRE1 | Fire & Rescue Dist #1 Camano GEN | 1.2502910536 | $528,917 | $528,917 | $661.30 | | |
| FIRE1BOND | Fire & Rescue Dist #1 Camano BOND | 0.1570001679 | $528,917 | $528,917 | $83.04 | | |
| CE | County Current Expense | 0.3708482477 | $528,917 | $528,917 | $196.15 | | |
| CR | County Roads | 0.4584763726 | $528,917 | $528,917 | $242.50 | | |
| LCIB | Library Sno-Isle BOND (Camano Island) | 0.0396325772 | $528,917 | $528,917 | $20.96 | | |
| LIB | Library Sno-Isle GEN | 0.3153421757 | $528,917 | $528,917 | $166.79 | | |
| SCH205_401 | School 205-401 Enrichment | 1.2698420524 | $528,917 | $528,917 | $671.64 | | |
| SCH205BOND | School 205-401 BOND | 0.9396497583 | $528,917 | $528,917 | $497.00 | | |
| ST | State School | 1.3035497053 | $528,917 | $528,917 | $689.47 | | |
| ST2 | State School Part 2 | 0.8169543533 | $528,917 | $528,917 | $432.10 | | |
| | Total Tax Rate: | 7.3209764117 | | | | | |
| | | | | Taxes w/Current Exemptions: | $3,872.20 | | |
| | | | | Taxes w/o Exemptions: | $3,872.20 | | |
Improvement / Building
| Improvement #1: | RESIDENTIAL | State Code: | Y | 1736.0 sqft | Value: | $268,917 |
| Bathrooms: | 2 | Bedrooms: | 2 | | Ceiling: | DRY WALL SPRAYED | Cooling: | HEAT PUMP/CONV/V | | Exterior Wall/Cover: | PLY/HARDBOARD T-111 | Floor Covering: | CARPET/VINYL 80-20 | | Floor Structure: | WOOD W/SUBFLOOR | Foundation: | CONCRETE | | Interior Finish: | DRYWALL PAINT | Plumbing Fixture Cnt: | 9 | | Roof Slope: | 4" IN 12" | Roof Structure/Cover: | CJ ASPHALT |
|
| | Type | Description | Class CD | Sub Class CD | Year Built | Area |
| | BAS | BASE/MAIN FLOOR | 3 | 0 | 1977 | 1736.0 |
| | OP1 | OPEN PORCH SLAB | 3 | 0 | 1977 | 264.0 |
| | OP3 | OPEN PORCH W/ROOF | 3 | 0 | 1977 | 396.2 |
| | DGR | DETACHED GARAGE | 3 | 0 | 1977 | 440.0 |
| | UTY | STORAGE/UTILITY | 3 | 0 | 1977 | 80.0 |
| | CPD | OPEN CARPORT DIRT FLOOR | 3 | 0 | 1977 | 272.0 |
Sketch
Property Image
Land
| 1 | 14 | SQ (08001-12000) | 0.0000 | 0.00 | 0.00 | 0.00 | 1.00 | $260,000 | $0 |
Roll Value History
| 2026 | N/A | N/A | N/A | N/A | N/A |
| 2025 | $268,917 | $260,000 | $0 | $528,917 | $528,917 |
| 2024 | $272,589 | $250,000 | $0 | $522,589 | $522,589 |
| 2023 | $276,260 | $250,000 | $0 | $526,260 | $526,260 |
| 2022 | $267,692 | $210,000 | $0 | $477,692 | $477,692 |
| 2021 | $196,150 | $165,000 | $0 | $361,150 | $361,150 |
| 2020 | $191,925 | $135,000 | $0 | $326,925 | $109,474 |
| 2019 | $142,509 | $175,000 | $0 | $317,509 | $109,474 |
| 2018 | $143,045 | $145,000 | $0 | $288,045 | $109,474 |
| 2017 | $144,121 | $100,000 | $0 | $244,121 | $97,648 |
| 2016 | $146,274 | $85,000 | $0 | $231,274 | $92,510 |
| 2015 | $145,942 | $65,000 | $0 | $210,942 | $84,377 |
| 2014 | $148,213 | $55,000 | $0 | $203,213 | $81,285 |
| 2013 | $150,485 | $55,000 | $0 | $205,485 | $135,485 |
| 2012 | $152,757 | $60,000 | $0 | $212,757 | $85,103 |
| 2011 | $155,029 | $65,000 | $0 | $220,029 | $88,012 |
| 2010 | $166,328 | $76,000 | $0 | $242,328 | $96,931 |
| 2009 | $173,686 | $100,000 | $0 | $273,686 | $109,474 |
| 2008 | $180,952 | $125,000 | $0 | $305,952 | $195,862 |
| 2007 | $183,395 | $100,000 | $0 | $283,395 | $195,862 |
Deed and Sales History
| 1 | 02/06/2023 | WD | Warranty Deed | SHEETS, KATHERINE E | PATRICK, SHAREE | | | $522,500.00 | 55811 | 4556553 |
| 2 | 06/08/2022 | QCD | Quit Claim Deed | NOBLE, ROBERT | SHEETS, KATHERINE E. | | | $0.00 | 53415 | 4546524 |
| 3 | 06/08/2022 | PRD | Personal Representatives Deed | NOBLE, CAROL A | SHEETS, KATHERINE E | | | $0.00 | 53413 | 4546494 |
| 4 | 04/27/2017 | TRUSTEED | Trustee's Deed | NOBLE, CAROL A | NOBLE, CAROL A | | | $0.00 | 29359 | 4422863 |
| 5 | 04/10/2010 | PRD | Personal Representatives Deed | VEVIG, JOHN W | NOBLE, CAROL A | | | $0.00 | 932 | 4272566 |
| 6 | 06/01/1990 | WD | Warranty Deed | FORTNEY, RICHARD M | VEVIG, JOHN W | | | $131,500.00 | 4004 | 90013029 |
| 7 | 01/01/1900 | OTHER | Other - Misc. Documents | Unknown | FORTNEY, RICHARD M | | | $0.00 | 0 | 0 |
Payout Agreement
| No payout information available.. |