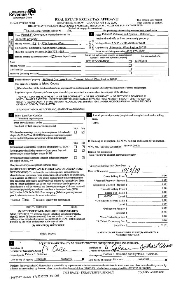
Property
Account |
| Property ID: | 209278 | Abbreviated Legal Description: | BLA CAMALOCH 4 LOT 90 & LOT 89 EX N40' OF LOT 89 |
| Geographic ID: | S6235-04-00090-0 | Agent Code: | |
| Type: | Real | | |
| Tax Area: | 590 - APPRAISER-Stan/Cam Schl Dist, Special Dist, improved & less than 1 acre | Land Use Code | 11 |
| Open Space: | N | DFL | N |
| Historic Property: | N | Remodel Property: | N |
| Multi-Family Redevelopment: | N | | |
| Township: | | Section: | |
| Range: | |
Location |
| Address: | 440 STIRLING DR CAMANO ISLAND, WA 98282 | Mapsco: | |
| Neighborhood: | Cycle 5 | Map ID: | 989 |
| Neighborhood CD: | 5 |
Owner |
| Name: | FORD, DANNY | Owner ID: | 298084 |
| Mailing Address: | GRETCHEN FORD 440 STIRLING DR CAMANO ISLAND, WA 98282 | % Ownership: | 100.0000000000% |
| | | Exemptions: | |
Taxes and Assessment Details
Values
| (+) Improvement Homesite Value: | + | $284,474 | |
| (+) Improvement Non-Homesite Value: | + | $0 | |
| (+) Land Homesite Value: | + | $260,000 | |
| (+) Land Non-Homesite Value: | + | $0 | |
| (+) Curr Use (HS): | + | $0 | $0 |
| (+) Curr Use (NHS): | + | $0 | $0 |
| | | -------------------------- | |
| (=) Market Value: | = | $544,474 | |
| (–) Productivity Loss: | – | $0 | |
| | | -------------------------- | |
| (=) Subtotal: | = | $544,474 | |
| (+) Senior Appraised Value: | + | $0 | |
| (+) Non-Senior Appraised Value: | + | $544,474 | |
| | | -------------------------- | |
| (=) Total Appraised Value: | = | $544,474 | |
| (–) Senior Exemption Loss: | – | $0 | |
| (–) Exemption Loss: | – | $0 | |
| | | -------------------------- | |
| (=) Taxable Value: | = | $544,474 | |
Taxing Jurisdiction
| Owner: | FORD, DANNY | | |
| % Ownership: | 100.0000000000% | | |
| Total Value: | $544,474 | | |
| Tax Area: | 590 - APPRAISER-Stan/Cam Schl Dist, Special Dist, improved & less than 1 acre |
| CF | Conservation Futures | 0.0316035091 | $544,474 | $544,474 | $17.21 | | |
| EMS1 | Fire & Rescue Dist #1 Camano GEN (EMS) | 0.3677864386 | $544,474 | $544,474 | $200.25 | | |
| FIRE1 | Fire & Rescue Dist #1 Camano GEN | 1.2502910536 | $544,474 | $544,474 | $680.75 | | |
| FIRE1BOND | Fire & Rescue Dist #1 Camano BOND | 0.1570001679 | $544,474 | $544,474 | $85.48 | | |
| CE | County Current Expense | 0.3708482477 | $544,474 | $544,474 | $201.92 | | |
| CR | County Roads | 0.4584763726 | $544,474 | $544,474 | $249.63 | | |
| LCIB | Library Sno-Isle BOND (Camano Island) | 0.0396325772 | $544,474 | $544,474 | $21.58 | | |
| LIB | Library Sno-Isle GEN | 0.3153421757 | $544,474 | $544,474 | $171.70 | | |
| SCH205_401 | School 205-401 Enrichment | 1.2698420524 | $544,474 | $544,474 | $691.40 | | |
| SCH205BOND | School 205-401 BOND | 0.9396497583 | $544,474 | $544,474 | $511.61 | | |
| ST | State School | 1.3035497053 | $544,474 | $544,474 | $709.75 | | |
| ST2 | State School Part 2 | 0.8169543533 | $544,474 | $544,474 | $444.81 | | |
| | Total Tax Rate: | 7.3209764117 | | | | | |
| | | | | Taxes w/Current Exemptions: | $3,986.09 | | |
| | | | | Taxes w/o Exemptions: | $3,986.09 | | |
Improvement / Building
| Improvement #1: | RESIDENTIAL | State Code: | Y | 1372.0 sqft | Value: | $284,474 |
| Bathrooms: | 2 | Bedrooms: | 2 | | Ceiling: | DRYWALL PAINTED | Exterior Wall/Cover: | PLY/HARDBOARD T-111 | | Floor Covering: | HARDWOOD/CARP 20-80 | Floor Structure: | WOOD W/SUBFLOOR | | Foundation: | CONCRETE | Heating: | FHA GAS | | Interior Finish: | DRYWALL PAINT | Plumbing Fixture Cnt: | 11 | | Roof Slope: | 4" IN 12" | Roof Structure/Cover: | CJ ASPHALT |
|
| | Type | Description | Class CD | Sub Class CD | Year Built | Area |
| | BAS | BASE/MAIN FLOOR | 3 | 0 | 1977 | 1372.0 |
| | AGR | ATTACHED GARAGE | 3 | 0 | 1977 | 528.0 |
| | OWP | OPEN WOOD PORCH W/STEPS | 3 | 0 | 1977 | 220.0 |
| | OWP | OPEN WOOD PORCH W/STEPS | 3 | 0 | 1977 | 360.0 |
| | UTY | STORAGE/UTILITY | 3 | 0 | 1977 | 180.0 |
Sketch
Property Image
Land
| 1 | 15 | SQ (12001-21780) | 0.0000 | 0.00 | 0.00 | 0.00 | 1.00 | $260,000 | $0 |
Roll Value History
| 2026 | N/A | N/A | N/A | N/A | N/A |
| 2025 | $284,474 | $260,000 | $0 | $544,474 | $544,474 |
| 2024 | $287,893 | $250,000 | $0 | $537,893 | $537,893 |
| 2023 | $291,310 | $250,000 | $0 | $541,310 | $541,310 |
| 2022 | $266,882 | $210,000 | $0 | $476,882 | $476,882 |
| 2021 | $207,853 | $165,000 | $0 | $372,853 | $372,853 |
| 2020 | $202,200 | $135,000 | $0 | $337,200 | $201,497 |
| 2019 | $144,223 | $175,000 | $0 | $319,223 | $201,497 |
| 2018 | $144,679 | $145,000 | $0 | $289,679 | $201,497 |
| 2017 | $145,589 | $100,000 | $0 | $245,589 | $201,497 |
| 2016 | $147,407 | $85,000 | $0 | $232,407 | $201,497 |
| 2015 | $136,497 | $65,000 | $0 | $201,497 | $201,497 |
| 2014 | $138,343 | $55,000 | $0 | $193,343 | $193,343 |
| 2013 | $140,190 | $55,000 | $0 | $195,190 | $195,190 |
| 2012 | $142,038 | $60,000 | $0 | $202,038 | $202,038 |
| 2011 | $143,883 | $65,000 | $0 | $208,883 | $208,883 |
| 2010 | $151,084 | $76,000 | $0 | $227,084 | $227,084 |
| 2009 | $150,316 | $100,000 | $0 | $250,316 | $250,316 |
| 2008 | $150,829 | $125,000 | $0 | $275,829 | $275,829 |
| 2007 | $153,149 | $100,000 | $0 | $253,149 | $253,149 |
Deed and Sales History
| 1 | 02/01/2021 | WD | Warranty Deed | PETERSON, DENNIS J | FORD, DANNY | | | $449,000.00 | 46798 | 4509812 |
| 2 | 08/01/1993 | WD | Warranty Deed | LOGSTON, WILLIAM L | PETERSON, DENNIS J | | | $149,950.00 | 33042 | 93015701 |
| 3 | 03/01/1989 | OTHER | Other - Misc. Documents | LOGSTON, WILLIAM L | LOGSTON, WILLIAM L | | | $0.00 | 63048 | 89002481 |
| 4 | 01/01/1900 | OTHER | Other - Misc. Documents | Unknown | LOGSTON, WILLIAM L | | | $0.00 | 0 | 0 |
Payout Agreement
| No payout information available.. |