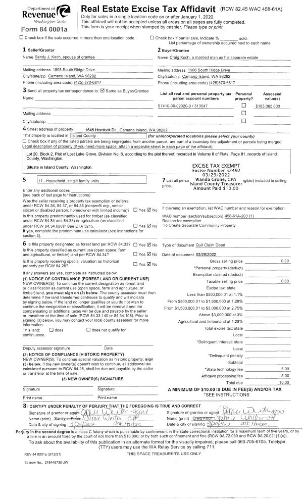
Property
Account |
| Property ID: | 209358 | Abbreviated Legal Description: | CAMANO SL3 IN MILL RES & IN SEC 15-31-2E INCL ADJ TIDES AS DESC 115D245 EX N47' OF S200' OF N330' |
| Geographic ID: | S6240-00-MR003-0 | Agent Code: | |
| Type: | Real | | |
| Tax Area: | 510 - APPRAISER-Stan/Cam Schl Dist, improved & 1 acre or less | Land Use Code | 11 |
| Open Space: | N | DFL | N |
| Historic Property: | N | Remodel Property: | N |
| Multi-Family Redevelopment: | N | | |
| Township: | | Section: | |
| Range: | |
Location |
| Address: | | Mapsco: | |
| Neighborhood: | Cycle 5 | Map ID: | 485 |
| Neighborhood CD: | 5 |
Owner |
| Name: | JOHNSON, DARYL | Owner ID: | 297585 |
| Mailing Address: | MARILYN UPTON 7407 EAGLEFIELD DR ARLINGTON, WA 98223 | % Ownership: | 100.0000000000% |
| | | Exemptions: | |
Taxes and Assessment Details
Values
| (+) Improvement Homesite Value: | + | $0 | |
| (+) Improvement Non-Homesite Value: | + | $4,000 | |
| (+) Land Homesite Value: | + | $0 | |
| (+) Land Non-Homesite Value: | + | $361,530 | |
| (+) Curr Use (HS): | + | $0 | $0 |
| (+) Curr Use (NHS): | + | $0 | $0 |
| | | -------------------------- | |
| (=) Market Value: | = | $365,530 | |
| (–) Productivity Loss: | – | $0 | |
| | | -------------------------- | |
| (=) Subtotal: | = | $365,530 | |
| (+) Senior Appraised Value: | + | $0 | |
| (+) Non-Senior Appraised Value: | + | $365,530 | |
| | | -------------------------- | |
| (=) Total Appraised Value: | = | $365,530 | |
| (–) Senior Exemption Loss: | – | $0 | |
| (–) Exemption Loss: | – | $0 | |
| | | -------------------------- | |
| (=) Taxable Value: | = | $365,530 | |
Taxing Jurisdiction
| Owner: | JOHNSON, DARYL | | |
| % Ownership: | 100.0000000000% | | |
| Total Value: | $365,530 | | |
| Tax Area: | 510 - APPRAISER-Stan/Cam Schl Dist, improved & 1 acre or less |
| CF | Conservation Futures | 0.0316035091 | $365,530 | $365,530 | $11.55 | | |
| EMS1 | Fire & Rescue Dist #1 Camano GEN (EMS) | 0.3677864386 | $365,530 | $365,530 | $134.44 | | |
| FIRE1 | Fire & Rescue Dist #1 Camano GEN | 1.2502910536 | $365,530 | $365,530 | $457.02 | | |
| FIRE1BOND | Fire & Rescue Dist #1 Camano BOND | 0.1570001679 | $365,530 | $365,530 | $57.39 | | |
| CE | County Current Expense | 0.3708482477 | $365,530 | $365,530 | $135.56 | | |
| CR | County Roads | 0.4584763726 | $365,530 | $365,530 | $167.59 | | |
| LCIB | Library Sno-Isle BOND (Camano Island) | 0.0396325772 | $365,530 | $365,530 | $14.49 | | |
| LIB | Library Sno-Isle GEN | 0.3153421757 | $365,530 | $365,530 | $115.27 | | |
| SCH205_401 | School 205-401 Enrichment | 1.2698420524 | $365,530 | $365,530 | $464.17 | | |
| SCH205BOND | School 205-401 BOND | 0.9396497583 | $365,530 | $365,530 | $343.47 | | |
| ST | State School | 1.3035497053 | $365,530 | $365,530 | $476.49 | | |
| ST2 | State School Part 2 | 0.8169543533 | $365,530 | $365,530 | $298.62 | | |
| | Total Tax Rate: | 7.3209764117 | | | | | |
| | | | | Taxes w/Current Exemptions: | $2,676.06 | | |
| | | | | Taxes w/o Exemptions: | $2,676.06 | | |
Improvement / Building
| Improvement #1: | RESIDENTIAL | State Code: | Y | 0.0 sqft | Value: | $4,000 |
Sketch
| No sketches available for this property. |
Property Image
Land
| 1 | LB | LOW BANK | 0.4135 | 18012.06 | 153.00 | 0.00 | 1.00 | $360,000 | $0 |
| 2 | 55 | TIDES | 0.0000 | 0.00 | 153.00 | 0.00 | 1.00 | $1,530 | $0 |
Roll Value History
| 2026 | N/A | N/A | N/A | N/A | N/A |
| 2025 | $4,000 | $361,530 | $0 | $365,530 | $365,530 |
| 2024 | $4,000 | $361,530 | $0 | $365,530 | $365,530 |
| 2023 | $4,000 | $361,530 | $0 | $365,530 | $365,530 |
| 2022 | $4,000 | $651,530 | $0 | $655,530 | $655,530 |
| 2021 | $4,000 | $601,530 | $0 | $605,530 | $605,530 |
| 2020 | $4,000 | $601,530 | $0 | $605,530 | $605,530 |
| 2019 | $4,000 | $601,530 | $0 | $605,530 | $605,530 |
| 2018 | $4,000 | $901,530 | $0 | $905,530 | $905,530 |
| 2017 | $4,000 | $901,530 | $0 | $905,530 | $905,530 |
| 2016 | $4,000 | $901,530 | $0 | $905,530 | $905,530 |
| 2015 | $4,000 | $901,530 | $0 | $905,530 | $905,530 |
| 2014 | $4,000 | $901,530 | $0 | $905,530 | $905,530 |
| 2013 | $4,000 | $932,736 | $0 | $936,736 | $936,736 |
| 2012 | $4,000 | $932,736 | $0 | $936,736 | $936,736 |
| 2011 | $4,000 | $1,165,537 | $0 | $1,169,537 | $1,169,537 |
| 2010 | $4,000 | $1,165,537 | $0 | $1,169,537 | $1,169,537 |
| 2009 | $4,000 | $1,256,024 | $0 | $1,260,024 | $1,260,024 |
| 2008 | $4,000 | $1,256,024 | $0 | $1,260,024 | $1,260,024 |
| 2007 | $4,000 | $1,489,402 | $0 | $1,493,402 | $1,493,402 |
Deed and Sales History
| 1 | 03/15/2019 | QCD | Quit Claim Deed | UPTON, MARILYN S | JOHNSON, DARYL | | | $0.00 | 40048 | 4494308 |
| 2 | 12/01/1992 | QCD | Quit Claim Deed | JOHNSON, W E | UPTON, MARILYN S | | | $0.00 | 30007 | 93000025 |
| 3 | 07/01/1961 | EXECUTORD | Executor Deed | WICKS, T A | JOHNSON, W E | | | $17,500.00 | 10188 | 0 |
| 4 | 01/01/1900 | OTHER | Other - Misc. Documents | Unknown | WICKS, T A | | | $0.00 | 0 | 0 |
Payout Agreement
| No payout information available.. |