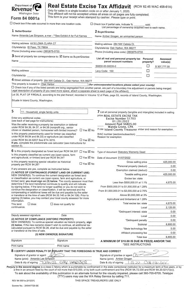
Property
Account |
| Property ID: | 209394 | Abbreviated Legal Description: | CAMANO SL7 IN MILL RES AS DESC 136D174: BG NECR SEC 15 S1928.66' S17*W670.81' TO NLN LOT 2 BLK 1 CAMANO N81*W30.39' TO WLN CO RD TPB N81*W86.86' N78*W34.45' S5*E189.11' S88*E55' TO WLN RD NLY ALG RD TPB EX RDS |
| Geographic ID: | S6240-00-MR007-0 | Agent Code: | |
| Type: | Real | | |
| Tax Area: | 519 - APPRAISER-Stan/Cam Schl Dist, vacant & 50 acres or less | Land Use Code | 99 |
| Open Space: | N | DFL | N |
| Historic Property: | N | Remodel Property: | N |
| Multi-Family Redevelopment: | N | | |
| Township: | | Section: | |
| Range: | |
Location |
| Address: | SANDY BEACH DR CAMANO ISLAND, WA 98282 | Mapsco: | |
| Neighborhood: | Cycle 5 | Map ID: | 485 |
| Neighborhood CD: | 5 |
Owner |
| Name: | NICOLL, CHRISTOPHER W | Owner ID: | 62466 |
| Mailing Address: | C/O SUSAN NICOLL 999 SANDY BEACH DR CAMANO ISLAND, WA 98282 | % Ownership: | 100.0000000000% |
| | | Exemptions: | |
Taxes and Assessment Details
Values
| (+) Improvement Homesite Value: | + | $0 | |
| (+) Improvement Non-Homesite Value: | + | $0 | |
| (+) Land Homesite Value: | + | $0 | |
| (+) Land Non-Homesite Value: | + | $17,000 | |
| (+) Curr Use (HS): | + | $0 | $0 |
| (+) Curr Use (NHS): | + | $0 | $0 |
| | | -------------------------- | |
| (=) Market Value: | = | $17,000 | |
| (–) Productivity Loss: | – | $0 | |
| | | -------------------------- | |
| (=) Subtotal: | = | $17,000 | |
| (+) Senior Appraised Value: | + | $0 | |
| (+) Non-Senior Appraised Value: | + | $17,000 | |
| | | -------------------------- | |
| (=) Total Appraised Value: | = | $17,000 | |
| (–) Senior Exemption Loss: | – | $0 | |
| (–) Exemption Loss: | – | $0 | |
| | | -------------------------- | |
| (=) Taxable Value: | = | $17,000 | |
Taxing Jurisdiction
| Owner: | NICOLL, CHRISTOPHER W | | |
| % Ownership: | 100.0000000000% | | |
| Total Value: | $17,000 | | |
| Tax Area: | 519 - APPRAISER-Stan/Cam Schl Dist, vacant & 50 acres or less |
| CF | Conservation Futures | 0.0316035091 | $17,000 | $17,000 | $0.54 | | |
| EMS1 | Fire & Rescue Dist #1 Camano GEN (EMS) | 0.3677864386 | $17,000 | $17,000 | $6.25 | | |
| CE | County Current Expense | 0.3708482477 | $17,000 | $17,000 | $6.30 | | |
| CR | County Roads | 0.4584763726 | $17,000 | $17,000 | $7.79 | | |
| LCIB | Library Sno-Isle BOND (Camano Island) | 0.0396325772 | $17,000 | $17,000 | $0.67 | | |
| LIB | Library Sno-Isle GEN | 0.3153421757 | $17,000 | $17,000 | $5.36 | | |
| SCH205_401 | School 205-401 Enrichment | 1.2698420524 | $17,000 | $17,000 | $21.59 | | |
| SCH205BOND | School 205-401 BOND | 0.9396497583 | $17,000 | $17,000 | $15.97 | | |
| ST | State School | 1.3035497053 | $17,000 | $17,000 | $22.16 | | |
| ST2 | State School Part 2 | 0.8169543533 | $17,000 | $17,000 | $13.89 | | |
| | Total Tax Rate: | 5.9136851902 | | | | | |
| | | | | Taxes w/Current Exemptions: | $100.52 | | |
| | | | | Taxes w/o Exemptions: | $100.52 | | |
Improvement / Building
Sketch
| No sketches available for this property. |
Property Image
Land
| 1 | 12 | SQ (00000-06000) | 0.2421 | 10545.88 | 0.00 | 0.00 | 1.00 | $17,000 | $0 |
Roll Value History
| 2026 | N/A | N/A | N/A | N/A | N/A |
| 2025 | $0 | $17,000 | $0 | $17,000 | $17,000 |
| 2024 | $0 | $17,000 | $0 | $17,000 | $17,000 |
| 2023 | $0 | $9,000 | $0 | $9,000 | $9,000 |
| 2022 | $0 | $9,000 | $0 | $9,000 | $9,000 |
| 2021 | $0 | $7,000 | $0 | $7,000 | $7,000 |
| 2020 | $0 | $7,000 | $0 | $7,000 | $7,000 |
| 2019 | $0 | $7,000 | $0 | $7,000 | $7,000 |
| 2018 | $0 | $7,000 | $0 | $7,000 | $7,000 |
| 2017 | $0 | $5,000 | $0 | $5,000 | $5,000 |
| 2016 | $0 | $5,000 | $0 | $5,000 | $5,000 |
| 2015 | $0 | $1,358 | $0 | $1,358 | $1,358 |
| 2014 | $0 | $1,358 | $0 | $1,358 | $1,358 |
| 2013 | $0 | $1,358 | $0 | $1,358 | $1,358 |
| 2012 | $0 | $1,358 | $0 | $1,358 | $1,358 |
| 2011 | $0 | $1,358 | $0 | $1,358 | $1,358 |
| 2010 | $0 | $1,358 | $0 | $1,358 | $1,358 |
| 2009 | $0 | $1,358 | $0 | $1,358 | $1,358 |
| 2008 | $0 | $1,358 | $0 | $1,358 | $1,358 |
| 2007 | $0 | $1,358 | $0 | $1,358 | $1,358 |
Deed and Sales History
| 1 | 10/01/1989 | WD | Warranty Deed | HOPKINS, FORREST O | NICOLL, CHRISTOPHER W | | | $1,075.00 | 94791 | 89015577 |
| 2 | 12/01/1985 | QCD | Quit Claim Deed | HOPKINS, FORREST O | HOPKINS, FORREST O | | | $0.00 | 53595 | 85014391 |
| 3 | 09/01/1985 | WD | Warranty Deed | REEPLOEG, EUPHA M | HOPKINS, FORREST O | | | $250.00 | 52634 | 85010445 |
| 4 | 01/01/1900 | OTHER | Other - Misc. Documents | Unknown | REEPLOEG, EUPHA M | | | $0.00 | 0 | 0 |
Payout Agreement
| No payout information available.. |