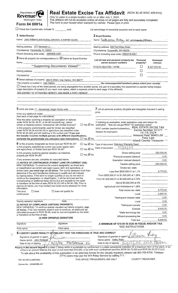
Property
Account |
| Property ID: | 209410 | Abbreviated Legal Description: | CAMANO SL9 MILL RES BG @ INT ELN RD (RR R/W & NLN L2 B1 PROD WLY E ON SD PROD LN 120' SLY 82' SWLY 118' TO ELN SD RD N ALG RD 135' TPB |
| Geographic ID: | S6240-00-MR009-0 | Agent Code: | |
| Type: | Real | | |
| Tax Area: | 510 - APPRAISER-Stan/Cam Schl Dist, improved & 1 acre or less | Land Use Code | 11 |
| Open Space: | N | DFL | N |
| Historic Property: | N | Remodel Property: | N |
| Multi-Family Redevelopment: | N | | |
| Township: | | Section: | |
| Range: | |
Location |
| Address: | 993 SANDY BEACH DR CAMANO ISLAND, WA 98282 | Mapsco: | |
| Neighborhood: | Cycle 5 | Map ID: | 486 |
| Neighborhood CD: | 5 |
Owner |
| Name: | LAWRENCE TTEE, MARIE E | Owner ID: | 315462 |
| Mailing Address: | 3915 49TH AVE NE SEATTLE, WA 98105 | % Ownership: | 100.0000000000% |
| | | Exemptions: | |
Taxes and Assessment Details
Values
| (+) Improvement Homesite Value: | + | $0 | |
| (+) Improvement Non-Homesite Value: | + | $181,949 | |
| (+) Land Homesite Value: | + | $0 | |
| (+) Land Non-Homesite Value: | + | $270,000 | |
| (+) Curr Use (HS): | + | $0 | $0 |
| (+) Curr Use (NHS): | + | $0 | $0 |
| | | -------------------------- | |
| (=) Market Value: | = | $451,949 | |
| (–) Productivity Loss: | – | $0 | |
| | | -------------------------- | |
| (=) Subtotal: | = | $451,949 | |
| (+) Senior Appraised Value: | + | $0 | |
| (+) Non-Senior Appraised Value: | + | $451,949 | |
| | | -------------------------- | |
| (=) Total Appraised Value: | = | $451,949 | |
| (–) Senior Exemption Loss: | – | $0 | |
| (–) Exemption Loss: | – | $0 | |
| | | -------------------------- | |
| (=) Taxable Value: | = | $451,949 | |
Taxing Jurisdiction
| Owner: | LAWRENCE TTEE, MARIE E | | |
| % Ownership: | 100.0000000000% | | |
| Total Value: | $451,949 | | |
| Tax Area: | 510 - APPRAISER-Stan/Cam Schl Dist, improved & 1 acre or less |
| CF | Conservation Futures | 0.0316035091 | $451,949 | $451,949 | $14.28 | | |
| EMS1 | Fire & Rescue Dist #1 Camano GEN (EMS) | 0.3677864386 | $451,949 | $451,949 | $166.22 | | |
| FIRE1 | Fire & Rescue Dist #1 Camano GEN | 1.2502910536 | $451,949 | $451,949 | $565.07 | | |
| FIRE1BOND | Fire & Rescue Dist #1 Camano BOND | 0.1570001679 | $451,949 | $451,949 | $70.96 | | |
| CE | County Current Expense | 0.3708482477 | $451,949 | $451,949 | $167.60 | | |
| CR | County Roads | 0.4584763726 | $451,949 | $451,949 | $207.21 | | |
| LCIB | Library Sno-Isle BOND (Camano Island) | 0.0396325772 | $451,949 | $451,949 | $17.91 | | |
| LIB | Library Sno-Isle GEN | 0.3153421757 | $451,949 | $451,949 | $142.52 | | |
| SCH205_401 | School 205-401 Enrichment | 1.2698420524 | $451,949 | $451,949 | $573.90 | | |
| SCH205BOND | School 205-401 BOND | 0.9396497583 | $451,949 | $451,949 | $424.67 | | |
| ST | State School | 1.3035497053 | $451,949 | $451,949 | $589.14 | | |
| ST2 | State School Part 2 | 0.8169543533 | $451,949 | $451,949 | $369.22 | | |
| | Total Tax Rate: | 7.3209764117 | | | | | |
| | | | | Taxes w/Current Exemptions: | $3,308.70 | | |
| | | | | Taxes w/o Exemptions: | $3,308.70 | | |
Improvement / Building
| Improvement #1: | RESIDENTIAL | State Code: | Y | 1002.0 sqft | Value: | $181,949 |
| Bathrooms: | 1 | Bedrooms: | 2 | | Ceiling: | PLYWOOD PAINTED | Exterior Wall/Cover: | SHINGLE | | Floor Covering: | CARPET/VINYL 80-20 | Floor Structure: | WOOD W/SUBFLOOR | | Foundation: | CONCRETE | Heating: | WALL HEAT ELECTRIC | | Interior Finish: | DRYWALL PAINT | Plumbing Fixture Cnt: | 6 | | Roof Slope: | 12" IN 12" | Roof Structure/Cover: | CJ ASPHALT |
|
| | Type | Description | Class CD | Sub Class CD | Year Built | Area |
| | BAS | BASE/MAIN FLOOR | 3 | 0 | 1910 | 752.0 |
| | UPS | UPPER STORY | 3 | 0 | 1910 | 250.0 |
| | OWP | OPEN WOOD PORCH W/STEPS | 3 | 0 | 1910 | 109.5 |
| | OWP | OPEN WOOD PORCH W/STEPS | 3 | 0 | 1910 | 151.2 |
| | OWC | OPEN WOOD PORCH W/STEPS/ROOF/C | 3 | 0 | 1910 | 126.0 |
| | DGR | DETACHED GARAGE | 3 | 0 | 1910 | 290.0 |
Sketch
Property Image
Land
| 1 | 15 | SQ (12001-21780) | 0.0000 | 0.00 | 0.00 | 0.00 | 1.00 | $270,000 | $0 |
Roll Value History
| 2026 | N/A | N/A | N/A | N/A | N/A |
| 2025 | $181,949 | $270,000 | $0 | $451,949 | $451,949 |
| 2024 | $184,434 | $270,000 | $0 | $454,434 | $454,434 |
| 2023 | $186,918 | $270,000 | $0 | $456,918 | $456,918 |
| 2022 | $171,503 | $220,000 | $0 | $391,503 | $391,503 |
| 2021 | $145,221 | $180,000 | $0 | $325,221 | $325,221 |
| 2020 | $141,735 | $150,000 | $0 | $291,735 | $291,735 |
| 2019 | $102,176 | $180,000 | $0 | $282,176 | $282,176 |
| 2018 | $102,512 | $150,000 | $0 | $252,512 | $252,512 |
| 2017 | $103,174 | $150,000 | $0 | $253,174 | $253,174 |
| 2016 | $104,515 | $130,000 | $0 | $234,515 | $234,515 |
| 2015 | $99,060 | $82,400 | $0 | $181,460 | $181,460 |
| 2014 | $100,336 | $82,400 | $0 | $182,736 | $182,736 |
| 2013 | $101,610 | $82,400 | $0 | $184,010 | $184,010 |
| 2012 | $102,886 | $82,400 | $0 | $185,286 | $185,286 |
| 2011 | $104,161 | $103,000 | $0 | $207,161 | $207,161 |
| 2010 | $106,233 | $103,000 | $0 | $209,233 | $209,233 |
| 2009 | $110,606 | $125,000 | $0 | $235,606 | $235,606 |
| 2008 | $111,884 | $135,050 | $0 | $246,934 | $246,934 |
| 2007 | $113,163 | $135,050 | $0 | $248,213 | $248,213 |
Deed and Sales History
| 1 | 01/30/2025 | WD | Warranty Deed | MARIE E LAWRENCE, PR | LAWRENCE TTEE, MARIE E | | | $0.00 | 62549 | 4582189 |
| 2 | 08/03/2006 | WD | Warranty Deed | TURNER TRUSTEE, ANN E | HADLEY, STEPHEN W | | | $274,000.00 | 63430 | 4178474 |
| 3 | 07/15/2002 | QCD | Quit Claim Deed | RASHID TRUSTEE, ANN | TURNER TRUSTEE, ANN E | | | $0.00 | 23131 | 4033012 |
| 4 | 12/20/2001 | WD | Warranty Deed | YOUNG, ALFRED J | RASHID TRUSTEE, ANN | | | $154,000.00 | 14835 | 4006668 |
| 5 | 10/01/1980 | TRUSTEED | Trustee's Deed | FLYNN, DONALD S | YOUNG, ALFRED J | | | $67,500.00 | 3259 | 374420 |
| 6 | 01/01/1900 | OTHER | Other - Misc. Documents | Unknown | FLYNN, DONALD S | | | $0.00 | 0 | 0 |
Payout Agreement
| No payout information available.. |