Property
Account |
| Property ID: | 209429 | Abbreviated Legal Description: | CAMANO SL 10 PT MILL RES GL2: BG PT WLY LN RD 30'W OF NLY LN LOT 2 BLK 1 TO ELY LN RR R/W (RD) NLY & ELY TP INTER SEC LN BETW SECS 14 & 15-31 -2E SLY TO SLY LN RD NELY TO WLY LN RD SLY TO NECR LOT 18 BLK 1 WLY TO SECR LOT 1 BLK 1 NLY TO NECR LOT 1 WLY TO |
| Geographic ID: | S6240-00-MR010-0 | Agent Code: | |
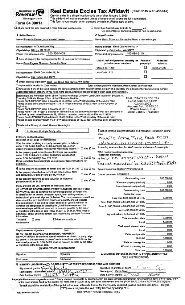
| Type: | Real | | |
| Tax Area: | 512 - APPRAISER-Stan/Cam Schl Dist, improved, greater than 1 acre | Land Use Code | 11 |
| Open Space: | N | DFL | N |
| Historic Property: | N | Remodel Property: | N |
| Multi-Family Redevelopment: | N | | |
| Township: | | Section: | |
| Range: | |
Location |
| Address: | 982 S WEST CAMANO DR CAMANO ISLAND, WA 98282 | Mapsco: | |
| Neighborhood: | Cycle 5 | Map ID: | 486 |
| Neighborhood CD: | 5 |
Owner |
| Name: | TATLEY, WALLACE D | Owner ID: | 267843 |
| Mailing Address: | INGRID H TALEY ANNE MELIZA RICK MELIZA 1066 S WEST CAMANO DR CAMANO ISLAND, WA 98282 | % Ownership: | 100.0000000000% |
| | | Exemptions: | |
Taxes and Assessment Details
Values
| (+) Improvement Homesite Value: | + | $0 | |
| (+) Improvement Non-Homesite Value: | + | $207,367 | |
| (+) Land Homesite Value: | + | $0 | |
| (+) Land Non-Homesite Value: | + | $220,000 | |
| (+) Curr Use (HS): | + | $0 | $0 |
| (+) Curr Use (NHS): | + | $0 | $0 |
| | | -------------------------- | |
| (=) Market Value: | = | $427,367 | |
| (–) Productivity Loss: | – | $0 | |
| | | -------------------------- | |
| (=) Subtotal: | = | $427,367 | |
| (+) Senior Appraised Value: | + | $0 | |
| (+) Non-Senior Appraised Value: | + | $427,367 | |
| | | -------------------------- | |
| (=) Total Appraised Value: | = | $427,367 | |
| (–) Senior Exemption Loss: | – | $0 | |
| (–) Exemption Loss: | – | $0 | |
| | | -------------------------- | |
| (=) Taxable Value: | = | $427,367 | |
Taxing Jurisdiction
| Owner: | TATLEY, WALLACE D | | |
| % Ownership: | 100.0000000000% | | |
| Total Value: | $427,367 | | |
| Tax Area: | 512 - APPRAISER-Stan/Cam Schl Dist, improved, greater than 1 acre |
| CF | Conservation Futures | 0.0316035091 | $427,367 | $427,367 | $13.51 | | |
| EMS1 | Fire & Rescue Dist #1 Camano GEN (EMS) | 0.3677864386 | $427,367 | $427,367 | $157.18 | | |
| FIRE1 | Fire & Rescue Dist #1 Camano GEN | 1.2502910536 | $427,367 | $427,367 | $534.33 | | |
| FIRE1BOND | Fire & Rescue Dist #1 Camano BOND | 0.1570001679 | $427,367 | $427,367 | $67.10 | | |
| CE | County Current Expense | 0.3708482477 | $427,367 | $427,367 | $158.49 | | |
| CR | County Roads | 0.4584763726 | $427,367 | $427,367 | $195.94 | | |
| LCIB | Library Sno-Isle BOND (Camano Island) | 0.0396325772 | $427,367 | $427,367 | $16.94 | | |
| LIB | Library Sno-Isle GEN | 0.3153421757 | $427,367 | $427,367 | $134.77 | | |
| SCH205_401 | School 205-401 Enrichment | 1.2698420524 | $427,367 | $427,367 | $542.69 | | |
| SCH205BOND | School 205-401 BOND | 0.9396497583 | $427,367 | $427,367 | $401.58 | | |
| ST | State School | 1.3035497053 | $427,367 | $427,367 | $557.09 | | |
| ST2 | State School Part 2 | 0.8169543533 | $427,367 | $427,367 | $349.14 | | |
| | Total Tax Rate: | 7.3209764117 | | | | | |
| | | | | Taxes w/Current Exemptions: | $3,128.76 | | |
| | | | | Taxes w/o Exemptions: | $3,128.76 | | |
Improvement / Building
| Improvement #1: | RESIDENTIAL | State Code: | Y | 1616.0 sqft | Value: | $207,367 |
| Bathrooms: | 2 | Bedrooms: | 2 | | Ceiling: | DRY WALL SPRAYED | Exterior Wall/Cover: | WOOD SIDING | | Floor Covering: | CARPET/VINYL 80-20 | Floor Structure: | WOOD W/SUBFLOOR | | Foundation: | CONCRETE | Heating: | WALL HEAT ELECTRIC | | Interior Finish: | DRYWALL PAINT | Plumbing Fixture Cnt: | 12 | | Roof Slope: | 6" IN 12" | Roof Structure/Cover: | CJ ASPHALT |
|
| | Type | Description | Class CD | Sub Class CD | Year Built | Area |
| | BAS | BASE/MAIN FLOOR | 3 | 0 | 1965 | 680.0 |
| | OWP | OPEN WOOD PORCH W/STEPS | 3 | 0 | 1965 | 380.6 |
| | DWN | DOWNSTAIRS LIVING AREA | 3 | 0 | 1965 | 520.0 |
| | DGR | DETACHED GARAGE | 3 | 0 | 1965 | 907.5 |
| | BAS | BASE/MAIN FLOOR | 3 | 0 | 1965 | 416.0 |
Sketch
Property Image
Land
| 1 | 18 | AC (02.01-03.00) | 2.9000 | 126324.00 | 0.00 | 0.00 | 1.00 | $220,000 | $0 |
Roll Value History
| 2026 | N/A | N/A | N/A | N/A | N/A |
| 2025 | $207,367 | $220,000 | $0 | $427,367 | $427,367 |
| 2024 | $210,362 | $220,000 | $0 | $430,362 | $430,362 |
| 2023 | $213,356 | $220,000 | $0 | $433,356 | $433,356 |
| 2022 | $195,914 | $260,000 | $0 | $455,914 | $455,914 |
| 2021 | $170,360 | $200,000 | $0 | $370,360 | $370,360 |
| 2020 | $166,092 | $200,000 | $0 | $366,092 | $366,092 |
| 2019 | $120,530 | $220,000 | $0 | $340,530 | $340,530 |
| 2018 | $120,936 | $180,000 | $0 | $300,936 | $300,936 |
| 2017 | $121,748 | $140,000 | $0 | $261,748 | $261,748 |
| 2016 | $123,371 | $140,000 | $0 | $263,371 | $263,371 |
| 2015 | $126,170 | $96,800 | $0 | $222,970 | $222,970 |
| 2014 | $127,483 | $96,800 | $0 | $224,283 | $224,283 |
| 2013 | $128,795 | $96,800 | $0 | $225,595 | $225,595 |
| 2012 | $130,108 | $96,800 | $0 | $226,908 | $226,908 |
| 2011 | $131,423 | $121,000 | $0 | $252,423 | $252,423 |
| 2010 | $137,912 | $121,000 | $0 | $258,912 | $258,912 |
| 2009 | $143,248 | $165,000 | $0 | $308,248 | $308,248 |
| 2008 | $145,590 | $164,250 | $0 | $309,840 | $309,840 |
| 2007 | $147,962 | $164,250 | $0 | $312,212 | $312,212 |
Deed and Sales History
| 1 | 09/25/2019 | WD | Warranty Deed | LEBERT, KIM | TATLEY, WALLACE D | | | $369,000.00 | 40571 | 4472788 |
| 2 | 02/27/2006 | WD | Warranty Deed | WEST, GORDON L | LEBERT, KIM | | | $350,000.00 | 60938 | 4163858 |
| 3 | 08/20/2003 | 5 | DNU - Marriage License/Name Change | WEST, GORDON L | WEST, GORDON L | | | $0.00 | 33755 | 4072600 |
| 4 | 03/21/2003 | QCD | Quit Claim Deed | WEST, GORDON L | WEST, GORDON L | | | $0.00 | 31176 | 4052208 |
| 5 | 11/01/1997 | WD | Warranty Deed | JACKELS, JAMES J | WEST, GORDON L | | | $159,000.00 | 73942 | 97018861 |
| 6 | 12/01/1991 | QCD | Quit Claim Deed | MUELLER, EDWARD C | JACKELS, JAMES J | | | $3,000.00 | 14386 | 91019193 |
| 7 | 03/01/1987 | WD | Warranty Deed | MUELLER, EDWARD C | MUELLER, EDWARD C | | | $38,000.00 | 70635 | 87003513 |
| 8 | 03/01/1987 | QCD | Quit Claim Deed | FRISSELL, LLOYD | MUELLER, EDWARD C | | | $0.00 | 70636 | 87003514 |
| 9 | 01/01/1900 | OTHER | Other - Misc. Documents | Unknown | , | | | $0.00 | 0 | 0 |
| 10 | 01/01/1900 | OTHER | Other - Misc. Documents | , | FRISSELL, LLOYD | | | $0.00 | 0 | 0 |
Payout Agreement
| No payout information available.. |