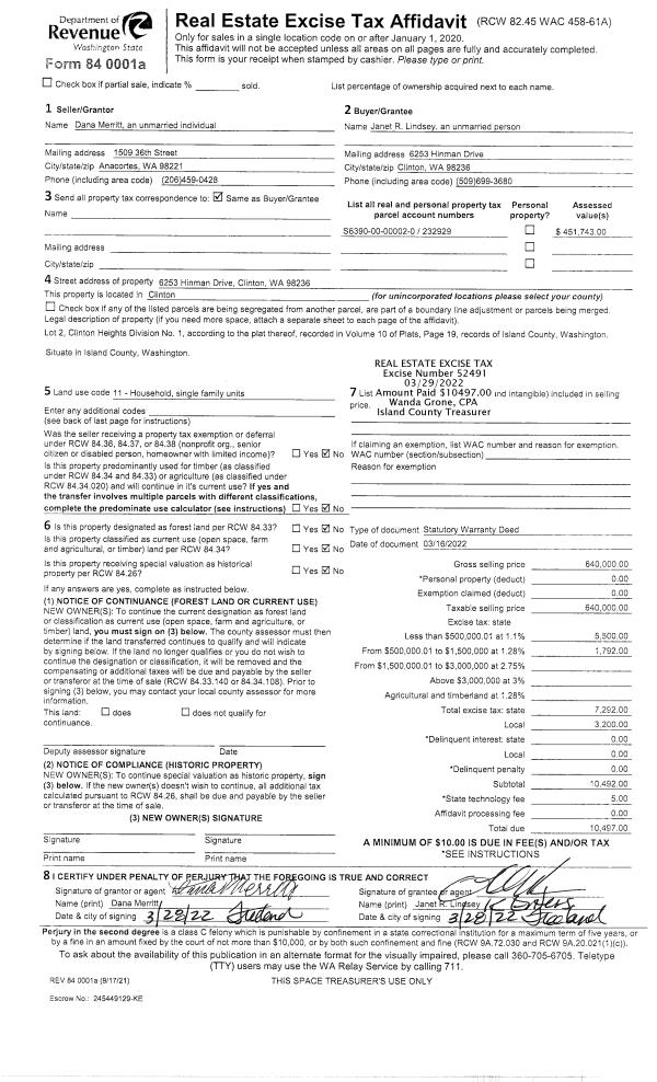
Property
Account |
| Property ID: | 209447 | Abbreviated Legal Description: | CAMANO SL 12 IN MILL RES,IN TRACT A & IN SEC 15-31-2 AS DES 132D618 INCL ADJ TIDES |
| Geographic ID: | S6240-00-MR012-0 | Agent Code: | |
| Type: | Real | | |
| Tax Area: | 510 - APPRAISER-Stan/Cam Schl Dist, improved & 1 acre or less | Land Use Code | 11 |
| Open Space: | N | DFL | N |
| Historic Property: | N | Remodel Property: | N |
| Multi-Family Redevelopment: | N | | |
| Township: | | Section: | |
| Range: | |
Location |
| Address: | 1044 SANDY BEACH DR CAMANO ISLAND, WA 98282 | Mapsco: | |
| Neighborhood: | Cycle 5 | Map ID: | 485 |
| Neighborhood CD: | 5 |
Owner |
| Name: | HOGLUND TRUSTEE, IVOR | Owner ID: | 257767 |
| Mailing Address: | RUTH HOGLUND CABIN TRUST C/O IVOR HOGLUND 2138 JACKSON HWY CHEHALIS, WA 98532 | % Ownership: | 100.0000000000% |
| | | Exemptions: | |
Taxes and Assessment Details
Values
| (+) Improvement Homesite Value: | + | $0 | |
| (+) Improvement Non-Homesite Value: | + | $127,420 | |
| (+) Land Homesite Value: | + | $0 | |
| (+) Land Non-Homesite Value: | + | $675,500 | |
| (+) Curr Use (HS): | + | $0 | $0 |
| (+) Curr Use (NHS): | + | $0 | $0 |
| | | -------------------------- | |
| (=) Market Value: | = | $802,920 | |
| (–) Productivity Loss: | – | $0 | |
| | | -------------------------- | |
| (=) Subtotal: | = | $802,920 | |
| (+) Senior Appraised Value: | + | $0 | |
| (+) Non-Senior Appraised Value: | + | $802,920 | |
| | | -------------------------- | |
| (=) Total Appraised Value: | = | $802,920 | |
| (–) Senior Exemption Loss: | – | $0 | |
| (–) Exemption Loss: | – | $0 | |
| | | -------------------------- | |
| (=) Taxable Value: | = | $802,920 | |
Taxing Jurisdiction
| Owner: | HOGLUND TRUSTEE, IVOR | | |
| % Ownership: | 100.0000000000% | | |
| Total Value: | $802,920 | | |
| Tax Area: | 510 - APPRAISER-Stan/Cam Schl Dist, improved & 1 acre or less |
| CF | Conservation Futures | 0.0316035091 | $802,920 | $802,920 | $25.38 | | |
| EMS1 | Fire & Rescue Dist #1 Camano GEN (EMS) | 0.3677864386 | $802,920 | $802,920 | $295.30 | | |
| FIRE1 | Fire & Rescue Dist #1 Camano GEN | 1.2502910536 | $802,920 | $802,920 | $1,003.88 | | |
| FIRE1BOND | Fire & Rescue Dist #1 Camano BOND | 0.1570001679 | $802,920 | $802,920 | $126.06 | | |
| CE | County Current Expense | 0.3708482477 | $802,920 | $802,920 | $297.76 | | |
| CR | County Roads | 0.4584763726 | $802,920 | $802,920 | $368.12 | | |
| LCIB | Library Sno-Isle BOND (Camano Island) | 0.0396325772 | $802,920 | $802,920 | $31.82 | | |
| LIB | Library Sno-Isle GEN | 0.3153421757 | $802,920 | $802,920 | $253.19 | | |
| SCH205_401 | School 205-401 Enrichment | 1.2698420524 | $802,920 | $802,920 | $1,019.58 | | |
| SCH205BOND | School 205-401 BOND | 0.9396497583 | $802,920 | $802,920 | $754.46 | | |
| ST | State School | 1.3035497053 | $802,920 | $802,920 | $1,046.65 | | |
| ST2 | State School Part 2 | 0.8169543533 | $802,920 | $802,920 | $655.95 | | |
| | Total Tax Rate: | 7.3209764117 | | | | | |
| | | | | Taxes w/Current Exemptions: | $5,878.15 | | |
| | | | | Taxes w/o Exemptions: | $5,878.15 | | |
Improvement / Building
| Improvement #1: | RESIDENTIAL | State Code: | Y | 738.0 sqft | Value: | $127,420 |
| Bathrooms: | 1 | Bedrooms: | 2 | | Ceiling: | DRYWALL PAINTED | Exterior Wall/Cover: | PLY/HARDBOARD T-111 | | Floor Covering: | CARPET/VINYL 80-20 | Floor Structure: | WOOD W/SUBFLOOR | | Foundation: | CONCRETE | Heating: | BASEBOARD ELECTRIC | | Interior Finish: | DRYWALL PAINT | Plumbing Fixture Cnt: | 5 | | Roof Slope: | 5" IN 12" | Roof Structure/Cover: | CJ ASPHALT |
|
| | Type | Description | Class CD | Sub Class CD | Year Built | Area |
| | BAS | BASE/MAIN FLOOR | 3 | 0 | 1966 | 738.0 |
| | OWP | OPEN WOOD PORCH W/STEPS | 3 | 0 | 1966 | 192.0 |
| | OWR | OPEN WOOD PORCH W/STEPS/ROOF | 3 | 0 | 1966 | 30.0 |
Sketch
Property Image
Land
| 1 | LB | LOW BANK | 0.0890 | 3876.84 | 50.00 | 0.00 | 1.00 | $675,000 | $0 |
| 2 | 55 | TIDES | 0.0000 | 0.00 | 50.00 | 0.00 | 1.00 | $500 | $0 |
Roll Value History
| 2026 | N/A | N/A | N/A | N/A | N/A |
| 2025 | $127,420 | $675,500 | $0 | $802,920 | $802,920 |
| 2024 | $131,760 | $675,500 | $0 | $807,260 | $807,260 |
| 2023 | $133,401 | $675,500 | $0 | $808,901 | $808,901 |
| 2022 | $122,283 | $650,500 | $0 | $772,783 | $772,783 |
| 2021 | $102,456 | $500,500 | $0 | $602,956 | $602,956 |
| 2020 | $99,769 | $500,500 | $0 | $600,269 | $600,269 |
| 2019 | $70,219 | $400,500 | $0 | $470,719 | $470,719 |
| 2018 | $70,434 | $400,500 | $0 | $470,934 | $470,934 |
| 2017 | $70,866 | $400,500 | $0 | $471,366 | $471,366 |
| 2016 | $71,731 | $400,500 | $0 | $472,231 | $472,231 |
| 2015 | $48,475 | $400,500 | $0 | $448,975 | $448,975 |
| 2014 | $49,232 | $400,500 | $0 | $449,732 | $449,732 |
| 2013 | $49,990 | $360,782 | $0 | $410,772 | $410,772 |
| 2012 | $50,748 | $360,782 | $0 | $411,530 | $411,530 |
| 2011 | $51,505 | $450,852 | $0 | $502,357 | $502,357 |
| 2010 | $56,447 | $450,852 | $0 | $507,299 | $507,299 |
| 2009 | $51,095 | $485,862 | $0 | $536,957 | $536,957 |
| 2008 | $51,868 | $485,862 | $0 | $537,730 | $537,730 |
| 2007 | $52,640 | $576,219 | $0 | $628,859 | $628,859 |
Deed and Sales History
| 1 | 05/23/2012 | QCD | Quit Claim Deed | HOGLUND, RUTH E | HOGLUND TRUSTEE, IVOR | | | $0.00 | 7818 | 4316326 |
| 2 | 06/10/2002 | PRD | Personal Representatives Deed | HOGLUND, VERNER | HOGLUND, RUTH E | | | $0.00 | 22242 | 4022744 |
| 3 | 01/01/1900 | OTHER | Other - Misc. Documents | Unknown | HOGLUND, VERNER | | | $0.00 | 0 | 0 |
Payout Agreement
| No payout information available.. |