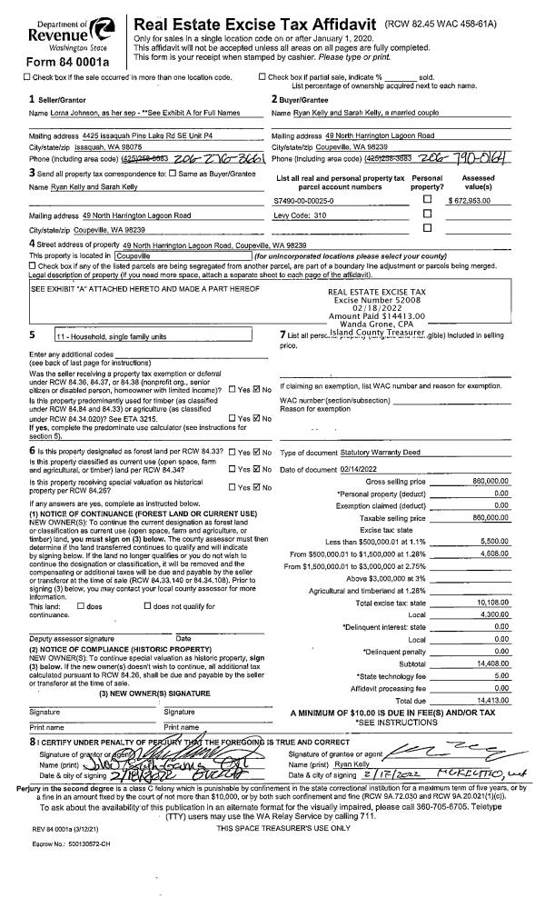
Property
Account |
| Property ID: | 209759 | Abbreviated Legal Description: | CAMANO PT OF LOT 1 BLK 4 & OF LOT 6 BLK 2 LY E OF WEST CAMANO DR TGW PT OF S37' OF LOT 5 & N33' OF LOT 6 BLK 2 LY E OF WEST CAMANO DR FR 02006-1 & 02005-0 |
| Geographic ID: | S6240-00-04001-1 | Agent Code: | |
| Type: | Real | | |
| Tax Area: | 519 - APPRAISER-Stan/Cam Schl Dist, vacant & 50 acres or less | Land Use Code | 99 |
| Open Space: | N | DFL | N |
| Historic Property: | N | Remodel Property: | N |
| Multi-Family Redevelopment: | N | | |
| Township: | | Section: | |
| Range: | |
Location |
| Address: | 1101 S WEST CAMANO DR CAMANO ISLAND, WA 98282 | Mapsco: | |
| Neighborhood: | Cycle 5 | Map ID: | 485 |
| Neighborhood CD: | 5 |
Owner |
| Name: | TATLEY, WALLACE | Owner ID: | 265503 |
| Mailing Address: | INGRID TATLEY 1066 S WEST CAMANO DR CAMANO ISLAND, WA 98282 | % Ownership: | 100.0000000000% |
| | | Exemptions: | |
Taxes and Assessment Details
Values
| (+) Improvement Homesite Value: | + | $0 | |
| (+) Improvement Non-Homesite Value: | + | $0 | |
| (+) Land Homesite Value: | + | $0 | |
| (+) Land Non-Homesite Value: | + | $160,000 | |
| (+) Curr Use (HS): | + | $0 | $0 |
| (+) Curr Use (NHS): | + | $0 | $0 |
| | | -------------------------- | |
| (=) Market Value: | = | $160,000 | |
| (–) Productivity Loss: | – | $0 | |
| | | -------------------------- | |
| (=) Subtotal: | = | $160,000 | |
| (+) Senior Appraised Value: | + | $0 | |
| (+) Non-Senior Appraised Value: | + | $160,000 | |
| | | -------------------------- | |
| (=) Total Appraised Value: | = | $160,000 | |
| (–) Senior Exemption Loss: | – | $0 | |
| (–) Exemption Loss: | – | $0 | |
| | | -------------------------- | |
| (=) Taxable Value: | = | $160,000 | |
Taxing Jurisdiction
| Owner: | TATLEY, WALLACE | | |
| % Ownership: | 100.0000000000% | | |
| Total Value: | $160,000 | | |
| Tax Area: | 519 - APPRAISER-Stan/Cam Schl Dist, vacant & 50 acres or less |
| CF | Conservation Futures | 0.0316035091 | $160,000 | $160,000 | $5.06 | | |
| EMS1 | Fire & Rescue Dist #1 Camano GEN (EMS) | 0.3677864386 | $160,000 | $160,000 | $58.85 | | |
| CE | County Current Expense | 0.3708482477 | $160,000 | $160,000 | $59.34 | | |
| CR | County Roads | 0.4584763726 | $160,000 | $160,000 | $73.36 | | |
| LCIB | Library Sno-Isle BOND (Camano Island) | 0.0396325772 | $160,000 | $160,000 | $6.34 | | |
| LIB | Library Sno-Isle GEN | 0.3153421757 | $160,000 | $160,000 | $50.45 | | |
| SCH205_401 | School 205-401 Enrichment | 1.2698420524 | $160,000 | $160,000 | $203.17 | | |
| SCH205BOND | School 205-401 BOND | 0.9396497583 | $160,000 | $160,000 | $150.34 | | |
| ST | State School | 1.3035497053 | $160,000 | $160,000 | $208.57 | | |
| ST2 | State School Part 2 | 0.8169543533 | $160,000 | $160,000 | $130.71 | | |
| | Total Tax Rate: | 5.9136851902 | | | | | |
| | | | | Taxes w/Current Exemptions: | $946.19 | | |
| | | | | Taxes w/o Exemptions: | $946.19 | | |
Improvement / Building
Sketch
| No sketches available for this property. |
Property Image
Land
| 1 | 17 | AC (01.01-02.00) | 1.4500 | 63162.00 | 0.00 | 0.00 | 1.00 | $160,000 | $0 |
Roll Value History
| 2026 | N/A | N/A | N/A | N/A | N/A |
| 2025 | $0 | $160,000 | $0 | $160,000 | $160,000 |
| 2024 | $0 | $160,000 | $0 | $160,000 | $160,000 |
| 2023 | $0 | $160,000 | $0 | $160,000 | $160,000 |
| 2022 | $0 | $140,000 | $0 | $140,000 | $140,000 |
| 2021 | $0 | $120,000 | $0 | $120,000 | $120,000 |
| 2020 | $0 | $120,000 | $0 | $120,000 | $120,000 |
| 2019 | $0 | $120,000 | $0 | $120,000 | $120,000 |
| 2018 | $0 | $100,000 | $0 | $100,000 | $100,000 |
| 2017 | $0 | $120,000 | $0 | $120,000 | $120,000 |
| 2016 | $0 | $120,000 | $0 | $120,000 | $120,000 |
| 2015 | $517 | $50,000 | $0 | $50,517 | $50,517 |
| 2014 | $528 | $50,000 | $0 | $50,528 | $50,528 |
| 2013 | $541 | $65,000 | $0 | $65,541 | $65,541 |
| 2012 | $552 | $65,000 | $0 | $65,552 | $65,552 |
| 2011 | $564 | $65,000 | $0 | $65,564 | $65,564 |
| 2010 | $0 | $65,000 | $0 | $65,000 | $65,000 |
| 2009 | $0 | $75,000 | $0 | $75,000 | $75,000 |
| 2008 | $0 | $84,044 | $0 | $84,044 | $84,044 |
| 2007 | $2,039 | $65,912 | $0 | $67,950 | $67,950 |
Deed and Sales History
| 1 | 03/20/2014 | WD | Warranty Deed | BERGESON, MARK D | TATLEY, WALLACE | | | $75,000.00 | 14720 | 4357050 |
| 2 | 08/11/2004 | WD | Warranty Deed | CAREY, LARRY & | BERGESON, MARK D | | | $85,500.00 | 43774 | 4110077 |
| 3 | 04/01/1994 | WD | Warranty Deed | OLSON, ALBERT L | CAREY, LARRY & | | | $30,551.00 | 41200 | 94007622 |
| 4 | 04/01/1992 | QCD | Quit Claim Deed | OLSON, ALBERT | OLSON, ALBERT L | | | $0.00 | 21303 | 92006325 |
| 5 | 02/01/1992 | OTHER | Other - Misc. Documents | RAINS, STEVEN P | OLSON, ALBERT | | | $0.00 | 64684 | 92001435 |
| 6 | 02/01/1992 | WD | Warranty Deed | OLSON, ALBERT | RAINS, STEVEN P | | | $45,000.00 | 20488 | 92002373 |
| 7 | 08/01/1990 | WD | Warranty Deed | DOTY, JEAN R | OLSON, ALBERT | | | $10,400.00 | 4928 | 90016391 |
| 8 | 01/01/1900 | OTHER | Other - Misc. Documents | Unknown | DOTY, JEAN R | | | $0.00 | 0 | 0 |
Payout Agreement
| No payout information available.. |