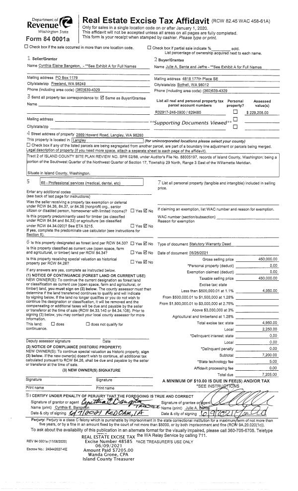
Property
Account |
| Property ID: | 209820 | Abbreviated Legal Description: | CAMANO - LOT 8 BLK 4 W OF NEW RD EX SLY 5';PT L12 BLK 3 LY BTW NWLY & SELY LN L8 BLK 4 PROD WLY ALSO INCL VAC OLD RD & ADJ TIDES |
| Geographic ID: | S6240-00-04008-1 | Agent Code: | |
| Type: | Real | | |
| Tax Area: | 510 - APPRAISER-Stan/Cam Schl Dist, improved & 1 acre or less | Land Use Code | 11 |
| Open Space: | N | DFL | N |
| Historic Property: | N | Remodel Property: | N |
| Multi-Family Redevelopment: | N | | |
| Township: | | Section: | |
| Range: | |
Location |
| Address: | 1152 S WEST CAMANO DR CAMANO ISLAND, WA 98282 | Mapsco: | |
| Neighborhood: | Cycle 5 | Map ID: | 481 |
| Neighborhood CD: | 5 |
Owner |
| Name: | MOLINE, DEBRA R | Owner ID: | 296308 |
| Mailing Address: | 1152 S WEST CAMANO DR CAMANO ISLAND, WA 98282 | % Ownership: | 100.0000000000% |
| | | Exemptions: | |
Taxes and Assessment Details
Values
| (+) Improvement Homesite Value: | + | $0 | |
| (+) Improvement Non-Homesite Value: | + | $402,778 | |
| (+) Land Homesite Value: | + | $0 | |
| (+) Land Non-Homesite Value: | + | $600,800 | |
| (+) Curr Use (HS): | + | $0 | $0 |
| (+) Curr Use (NHS): | + | $0 | $0 |
| | | -------------------------- | |
| (=) Market Value: | = | $1,003,578 | |
| (–) Productivity Loss: | – | $0 | |
| | | -------------------------- | |
| (=) Subtotal: | = | $1,003,578 | |
| (+) Senior Appraised Value: | + | $0 | |
| (+) Non-Senior Appraised Value: | + | $1,003,578 | |
| | | -------------------------- | |
| (=) Total Appraised Value: | = | $1,003,578 | |
| (–) Senior Exemption Loss: | – | $0 | |
| (–) Exemption Loss: | – | $0 | |
| | | -------------------------- | |
| (=) Taxable Value: | = | $1,003,578 | |
Taxing Jurisdiction
| Owner: | MOLINE, DEBRA R | | |
| % Ownership: | 100.0000000000% | | |
| Total Value: | $1,003,578 | | |
| Tax Area: | 510 - APPRAISER-Stan/Cam Schl Dist, improved & 1 acre or less |
| CF | Conservation Futures | 0.0316035091 | $1,003,578 | $1,003,578 | $31.72 | | |
| EMS1 | Fire & Rescue Dist #1 Camano GEN (EMS) | 0.3677864386 | $1,003,578 | $1,003,578 | $369.10 | | |
| FIRE1 | Fire & Rescue Dist #1 Camano GEN | 1.2502910536 | $1,003,578 | $1,003,578 | $1,254.76 | | |
| FIRE1BOND | Fire & Rescue Dist #1 Camano BOND | 0.1570001679 | $1,003,578 | $1,003,578 | $157.56 | | |
| CE | County Current Expense | 0.3708482477 | $1,003,578 | $1,003,578 | $372.18 | | |
| CR | County Roads | 0.4584763726 | $1,003,578 | $1,003,578 | $460.12 | | |
| LCIB | Library Sno-Isle BOND (Camano Island) | 0.0396325772 | $1,003,578 | $1,003,578 | $39.77 | | |
| LIB | Library Sno-Isle GEN | 0.3153421757 | $1,003,578 | $1,003,578 | $316.47 | | |
| SCH205_401 | School 205-401 Enrichment | 1.2698420524 | $1,003,578 | $1,003,578 | $1,274.39 | | |
| SCH205BOND | School 205-401 BOND | 0.9396497583 | $1,003,578 | $1,003,578 | $943.01 | | |
| ST | State School | 1.3035497053 | $1,003,578 | $1,003,578 | $1,308.21 | | |
| ST2 | State School Part 2 | 0.8169543533 | $1,003,578 | $1,003,578 | $819.88 | | |
| | Total Tax Rate: | 7.3209764117 | | | | | |
| | | | | Taxes w/Current Exemptions: | $7,347.17 | | |
| | | | | Taxes w/o Exemptions: | $7,347.17 | | |
Improvement / Building
| Improvement #1: | RESIDENTIAL | State Code: | Y | 2446.0 sqft | Value: | $402,778 |
| Bathrooms: | 3 | Bedrooms: | 2 | | Ceiling: | DRYWALL PAINTED | Exterior Wall/Cover: | WOOD SIDING | | Floor Covering: | HARDWOOD/CARP 60-40 | Floor Structure: | WOOD W/SUBFLOOR | | Foundation: | CONCRETE | Heating: | WALL HEAT ELECTRIC | | Interior Finish: | DRYWALL PAINT | Plumbing Fixture Cnt: | 12 | | Roof Slope: | 4" IN 12" | Roof Structure/Cover: | CJ ASPHALT |
|
| | Type | Description | Class CD | Sub Class CD | Year Built | Area |
| | BAS | BASE/MAIN FLOOR | 4 | 0 | 1956 | 2066.0 |
| | OP4 | OPEN PORCH W/CEILING-ROOF | 4 | 0 | 1956 | 100.0 |
| | OCP | OPEN CARPORT | 4 | 0 | 1956 | 396.0 |
| | UTY | STORAGE/UTILITY | 4 | 0 | 1956 | 184.0 |
| | BAW | BALCONY WOOD RAIL | 4 | 0 | 1956 | 30.0 |
| | UPS | UPPER STORY | 4 | 0 | 1956 | 380.0 |
| | OWP | OPEN WOOD PORCH W/STEPS | 4 | 0 | 1956 | 108.0 |
| | OWP | OPEN WOOD PORCH W/STEPS | 4 | 0 | 1956 | 126.0 |
Sketch
Property Image
Land
| 1 | HB | HIGH BLUFF | 0.5065 | 22063.14 | 103.00 | 0.00 | 1.00 | $600,000 | $0 |
| 2 | 55 | TIDES | 0.0000 | 0.00 | 80.00 | 0.00 | 1.00 | $800 | $0 |
Roll Value History
| 2026 | N/A | N/A | N/A | N/A | N/A |
| 2025 | $402,778 | $600,800 | $0 | $1,003,578 | $1,003,578 |
| 2024 | $408,130 | $600,800 | $0 | $1,008,930 | $1,008,930 |
| 2023 | $413,482 | $600,800 | $0 | $1,014,282 | $1,014,282 |
| 2022 | $379,255 | $550,800 | $0 | $930,055 | $930,055 |
| 2021 | $317,148 | $300,800 | $0 | $617,948 | $617,948 |
| 2020 | $309,710 | $300,800 | $0 | $610,510 | $610,510 |
| 2019 | $231,324 | $300,800 | $0 | $532,124 | $532,124 |
| 2018 | $232,073 | $300,800 | $0 | $532,873 | $532,873 |
| 2017 | $233,180 | $300,800 | $0 | $533,980 | $533,980 |
| 2016 | $236,170 | $300,800 | $0 | $536,970 | $536,970 |
| 2015 | $194,525 | $300,800 | $0 | $495,325 | $495,325 |
| 2014 | $197,516 | $350,800 | $0 | $548,316 | $548,316 |
| 2013 | $200,507 | $272,774 | $0 | $473,281 | $473,281 |
| 2012 | $203,497 | $272,774 | $0 | $476,271 | $476,271 |
| 2011 | $206,490 | $340,768 | $0 | $547,258 | $547,258 |
| 2010 | $218,853 | $415,395 | $0 | $634,248 | $634,248 |
| 2009 | $228,443 | $446,600 | $0 | $675,043 | $675,043 |
| 2008 | $231,530 | $542,130 | $0 | $773,660 | $773,660 |
| 2007 | $234,615 | $541,570 | $0 | $776,185 | $776,185 |
Deed and Sales History
| 1 | 02/04/2021 | QCD | Quit Claim Deed | MOLINE, ERIK R | MOLINE, DEBRA R | | | $0.00 | 46967 | 4511131 |
| 2 | 01/26/2021 | QCD | Quit Claim Deed | MOLINE, DEBRA R | MOLINE, ERIK R | | | $0.00 | 46776 | 4509678 |
| 3 | 09/23/2020 | BARGSLD | Bargain And Sale Deed | DICKHAUT TRUSTEE, RAY W | MOLINE, DEBRA R | | | $0.00 | 44975 | 4498000 |
| 4 | 10/17/2003 | 5 | DNU - Marriage License/Name Change | DICKHAUT, RAY W | DICKHAUT TRUSTEE, RAY W | | | $0.00 | 35335 | 4084297 |
| 5 | 09/01/1982 | EZ | Easement | BUSK, ROBERT & | DICKHAUT, RAY W | | | $3,299.00 | 22254 | 400837 |
| 6 | 12/01/1981 | EZ | Easement | KUHN, LAVERNON K | BUSK, ROBERT & | | | $1.00 | 20044 | 391869 |
| 7 | 01/01/1900 | OTHER | Other - Misc. Documents | Unknown | KUHN, LAVERNON K | | | $0.00 | 0 | 0 |
Payout Agreement
| No payout information available.. |