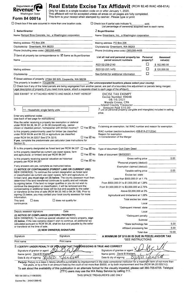
Property
Account |
| Property ID: | 209875 | Abbreviated Legal Description: | CAMANO LOT 1 BLK 5 TGW ADJ TIDES & PT GL1 & 2 SEC 15-31-2E: BG INT SLN BLK 5 & WLN RD S ALG SD RD 247.38' WLY 90* ANG TO SD RD TO ML NLY ALG ML TO SLN BLK 5 NELY ALG SLN TPB INCL ADJ TIDES EX: BG MON NELY CR NORTH CAMANO S10*E472.84' IP CON MON S10*E15' |
| Geographic ID: | S6240-00-05001-0 | Agent Code: | |
| Type: | Real | | |
| Tax Area: | 510 - APPRAISER-Stan/Cam Schl Dist, improved & 1 acre or less | Land Use Code | 11 |
| Open Space: | N | DFL | N |
| Historic Property: | N | Remodel Property: | N |
| Multi-Family Redevelopment: | N | | |
| Township: | | Section: | |
| Range: | |
Location |
| Address: | 984 SANDY BEACH DR CAMANO ISLAND, WA 98282 | Mapsco: | |
| Neighborhood: | Cycle 5 | Map ID: | 486 |
| Neighborhood CD: | 5 |
Owner |
| Name: | PITCHER TTEE, DAVID LEE | Owner ID: | 298038 |
| Mailing Address: | PO BOX 2576 STANWOOD, WA 98292 | % Ownership: | 100.0000000000% |
| | | Exemptions: | |
Taxes and Assessment Details
Values
| (+) Improvement Homesite Value: | + | $0 | |
| (+) Improvement Non-Homesite Value: | + | $347,287 | |
| (+) Land Homesite Value: | + | $0 | |
| (+) Land Non-Homesite Value: | + | $626,580 | |
| (+) Curr Use (HS): | + | $0 | $0 |
| (+) Curr Use (NHS): | + | $0 | $0 |
| | | -------------------------- | |
| (=) Market Value: | = | $973,867 | |
| (–) Productivity Loss: | – | $0 | |
| | | -------------------------- | |
| (=) Subtotal: | = | $973,867 | |
| (+) Senior Appraised Value: | + | $0 | |
| (+) Non-Senior Appraised Value: | + | $973,867 | |
| | | -------------------------- | |
| (=) Total Appraised Value: | = | $973,867 | |
| (–) Senior Exemption Loss: | – | $0 | |
| (–) Exemption Loss: | – | $0 | |
| | | -------------------------- | |
| (=) Taxable Value: | = | $973,867 | |
Taxing Jurisdiction
| Owner: | PITCHER TTEE, DAVID LEE | | |
| % Ownership: | 100.0000000000% | | |
| Total Value: | $973,867 | | |
| Tax Area: | 510 - APPRAISER-Stan/Cam Schl Dist, improved & 1 acre or less |
| CF | Conservation Futures | 0.0316035091 | $973,867 | $973,867 | $30.78 | | |
| EMS1 | Fire & Rescue Dist #1 Camano GEN (EMS) | 0.3677864386 | $973,867 | $973,867 | $358.18 | | |
| FIRE1 | Fire & Rescue Dist #1 Camano GEN | 1.2502910536 | $973,867 | $973,867 | $1,217.62 | | |
| FIRE1BOND | Fire & Rescue Dist #1 Camano BOND | 0.1570001679 | $973,867 | $973,867 | $152.90 | | |
| CE | County Current Expense | 0.3708482477 | $973,867 | $973,867 | $361.16 | | |
| CR | County Roads | 0.4584763726 | $973,867 | $973,867 | $446.50 | | |
| LCIB | Library Sno-Isle BOND (Camano Island) | 0.0396325772 | $973,867 | $973,867 | $38.60 | | |
| LIB | Library Sno-Isle GEN | 0.3153421757 | $973,867 | $973,867 | $307.10 | | |
| SCH205_401 | School 205-401 Enrichment | 1.2698420524 | $973,867 | $973,867 | $1,236.66 | | |
| SCH205BOND | School 205-401 BOND | 0.9396497583 | $973,867 | $973,867 | $915.09 | | |
| ST | State School | 1.3035497053 | $973,867 | $973,867 | $1,269.48 | | |
| ST2 | State School Part 2 | 0.8169543533 | $973,867 | $973,867 | $795.60 | | |
| | Total Tax Rate: | 7.3209764117 | | | | | |
| | | | | Taxes w/Current Exemptions: | $7,129.67 | | |
| | | | | Taxes w/o Exemptions: | $7,129.67 | | |
Improvement / Building
| Improvement #1: | RESIDENTIAL | State Code: | Y | 1192.0 sqft | Value: | $347,287 |
| Bathrooms: | 2 | Bedrooms: | 2 | | Ceiling: | DRYWALL PAINTED | Cooling: | HEAT PUMP/CONV/V | | Exterior Wall/Cover: | WOOD SIDING | Floor Covering: | HARDWOOD/CARP 80-20 | | Floor Structure: | WOOD W/SUBFLOOR | Foundation: | CONCRETE | | Interior Finish: | DRYWALL PAINT | Plumbing Fixture Cnt: | 10 | | Roof Slope: | 12" IN 12" | Roof Structure/Cover: | CJ ALUMINIUM HEAVY |
|
| | Type | Description | Class CD | Sub Class CD | Year Built | Area |
| | BAS | BASE/MAIN FLOOR | 4 | 0 | 2013 | 672.0 |
| | UPS | UPPER STORY | 4 | 0 | 2013 | 520.0 |
| | OWP | OPEN WOOD PORCH W/STEPS | 4 | 0 | 2013 | 40.0 |
| | OWP | OPEN WOOD PORCH W/STEPS | 4 | 0 | 2013 | 252.0 |
| | OWR | OPEN WOOD PORCH W/STEPS/ROOF | 4 | 0 | 2013 | 35.0 |
| | ENP | ENCLOSED PORCH | 4 | 0 | 2013 | 240.0 |
| | BAW | BALCONY WOOD RAIL | 4 | 0 | 2013 | 64.0 |
| | OWR | OPEN WOOD PORCH W/STEPS/ROOF | 4 | 0 | 2013 | 72.0 |
Sketch
Property Image
Land
| 1 | HB | HIGH BLUFF | 0.0000 | 0.00 | 158.00 | 0.00 | 1.00 | $625,000 | $0 |
| 2 | 55 | TIDES | 0.0000 | 0.00 | 158.00 | 0.00 | 1.00 | $1,580 | $0 |
Roll Value History
| 2026 | N/A | N/A | N/A | N/A | N/A |
| 2025 | $347,287 | $626,580 | $0 | $973,867 | $973,867 |
| 2024 | $349,965 | $626,580 | $0 | $976,545 | $976,545 |
| 2023 | $352,833 | $626,580 | $0 | $979,413 | $979,413 |
| 2022 | $322,094 | $601,580 | $0 | $923,674 | $923,674 |
| 2021 | $275,562 | $451,580 | $0 | $727,142 | $727,142 |
| 2020 | $266,939 | $451,580 | $0 | $718,519 | $718,519 |
| 2019 | $192,635 | $451,580 | $0 | $644,215 | $644,215 |
| 2018 | $193,147 | $351,580 | $0 | $544,727 | $544,727 |
| 2017 | $194,169 | $351,580 | $0 | $545,749 | $545,749 |
| 2016 | $176,582 | $351,580 | $0 | $528,162 | $528,162 |
| 2015 | $178,402 | $351,580 | $0 | $529,982 | $529,982 |
| 2014 | $139,899 | $351,580 | $0 | $491,479 | $491,479 |
| 2013 | $142,631 | $252,541 | $0 | $395,172 | $395,172 |
| 2012 | $6,512 | $252,541 | $0 | $259,053 | $259,053 |
| 2011 | $6,512 | $315,281 | $0 | $321,793 | $321,793 |
| 2010 | $7,503 | $384,142 | $0 | $391,645 | $391,645 |
| 2009 | $8,473 | $413,653 | $0 | $422,126 | $422,126 |
| 2008 | $8,620 | $438,939 | $0 | $447,559 | $447,559 |
| 2007 | $8,969 | $437,833 | $0 | $446,802 | $446,802 |
Deed and Sales History
| 1 | 01/28/2021 | QCD | Quit Claim Deed | PITCHER, DAVE | PITCHER TTEE, DAVID LEE | | | $0.00 | 46881 | 4510443 |
| 2 | 10/27/2016 | WD | Warranty Deed | BEATTY, MITCHEL GEORGE | PITCHER, DAVE | | | $533,000.00 | 27026 | 4411935 |
| 3 | 07/16/2004 | DECREE | Divorce Decree/Legal Separation | BEATTY, MITCHEL G | BEATTY, MITCHEL GEORGE | | | $0.00 | 44811 | 4115355 |
| 4 | 06/01/1993 | WD | Warranty Deed | BEATTY, GEORGE R | BEATTY, MITCHEL G | | | $46,000.00 | 32036 | 93010577 |
| 5 | 03/01/1993 | OTHER | Other - Misc. Documents | BEATTY, GEORGE R | BEATTY, GEORGE R | | | $0.00 | 65268 | 93003356 |
| 6 | 08/01/1978 | OTHER | Other - Misc. Documents | Unknown | BEATTY, GEORGE R | | | $20,000.00 | 84034 | 338459 |
Payout Agreement
| No payout information available.. |