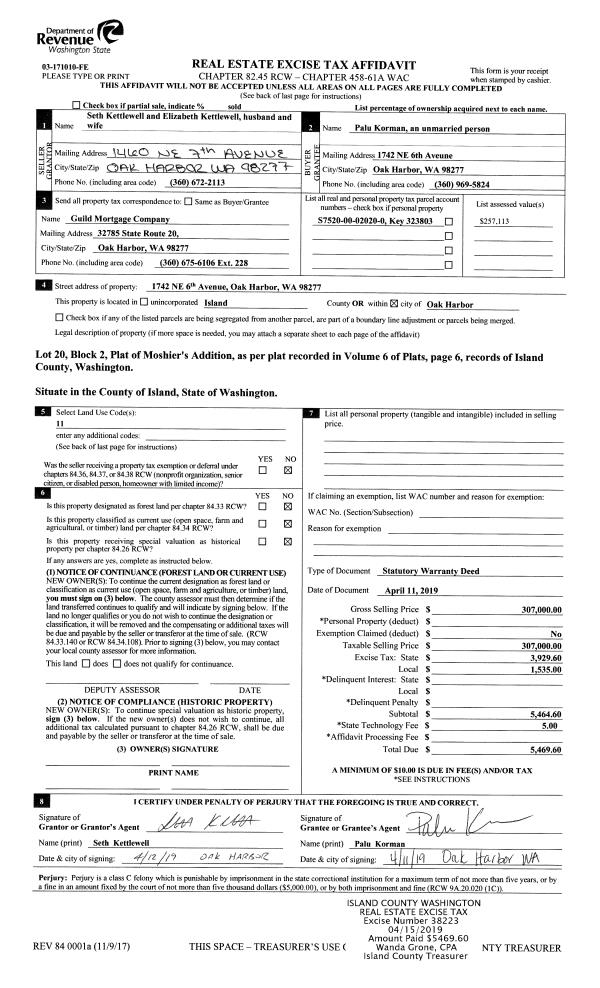
Property
Account |
| Property ID: | 209973 | Abbreviated Legal Description: | CAMANO LOT 13 BLK 5 INCL ADJ TIDES TGW EZ AF#94012934 |
| Geographic ID: | S6240-00-05013-0 | Agent Code: | |
| Type: | Real | | |
| Tax Area: | 510 - APPRAISER-Stan/Cam Schl Dist, improved & 1 acre or less | Land Use Code | 11 |
| Open Space: | N | DFL | N |
| Historic Property: | N | Remodel Property: | N |
| Multi-Family Redevelopment: | N | | |
| Township: | | Section: | |
| Range: | |
Location |
| Address: | 946 SAILVIEW LN CAMANO ISLAND, WA 98282 | Mapsco: | |
| Neighborhood: | Cycle 5 | Map ID: | 486 |
| Neighborhood CD: | 5 |
Owner |
| Name: | PORTUGAL, MARGIE M | Owner ID: | 290163 |
| Mailing Address: | NATASHA P DE LEON FREDERICK DE LEON 1029 E MAIN, STE 201 PUYALLUP, WA 98372 | % Ownership: | 100.0000000000% |
| | | Exemptions: | |
Taxes and Assessment Details
Values
| (+) Improvement Homesite Value: | + | $0 | |
| (+) Improvement Non-Homesite Value: | + | $236,941 | |
| (+) Land Homesite Value: | + | $0 | |
| (+) Land Non-Homesite Value: | + | $550,600 | |
| (+) Curr Use (HS): | + | $0 | $0 |
| (+) Curr Use (NHS): | + | $0 | $0 |
| | | -------------------------- | |
| (=) Market Value: | = | $787,541 | |
| (–) Productivity Loss: | – | $0 | |
| | | -------------------------- | |
| (=) Subtotal: | = | $787,541 | |
| (+) Senior Appraised Value: | + | $0 | |
| (+) Non-Senior Appraised Value: | + | $787,541 | |
| | | -------------------------- | |
| (=) Total Appraised Value: | = | $787,541 | |
| (–) Senior Exemption Loss: | – | $0 | |
| (–) Exemption Loss: | – | $0 | |
| | | -------------------------- | |
| (=) Taxable Value: | = | $787,541 | |
Taxing Jurisdiction
| Owner: | PORTUGAL, MARGIE M | | |
| % Ownership: | 100.0000000000% | | |
| Total Value: | $787,541 | | |
| Tax Area: | 510 - APPRAISER-Stan/Cam Schl Dist, improved & 1 acre or less |
| CF | Conservation Futures | 0.0316035091 | $787,541 | $787,541 | $24.89 | | |
| EMS1 | Fire & Rescue Dist #1 Camano GEN (EMS) | 0.3677864386 | $787,541 | $787,541 | $289.65 | | |
| FIRE1 | Fire & Rescue Dist #1 Camano GEN | 1.2502910536 | $787,541 | $787,541 | $984.66 | | |
| FIRE1BOND | Fire & Rescue Dist #1 Camano BOND | 0.1570001679 | $787,541 | $787,541 | $123.64 | | |
| CE | County Current Expense | 0.3708482477 | $787,541 | $787,541 | $292.06 | | |
| CR | County Roads | 0.4584763726 | $787,541 | $787,541 | $361.07 | | |
| LCIB | Library Sno-Isle BOND (Camano Island) | 0.0396325772 | $787,541 | $787,541 | $31.21 | | |
| LIB | Library Sno-Isle GEN | 0.3153421757 | $787,541 | $787,541 | $248.34 | | |
| SCH205_401 | School 205-401 Enrichment | 1.2698420524 | $787,541 | $787,541 | $1,000.05 | | |
| SCH205BOND | School 205-401 BOND | 0.9396497583 | $787,541 | $787,541 | $740.01 | | |
| ST | State School | 1.3035497053 | $787,541 | $787,541 | $1,026.60 | | |
| ST2 | State School Part 2 | 0.8169543533 | $787,541 | $787,541 | $643.39 | | |
| | Total Tax Rate: | 7.3209764117 | | | | | |
| | | | | Taxes w/Current Exemptions: | $5,765.57 | | |
| | | | | Taxes w/o Exemptions: | $5,765.57 | | |
Improvement / Building
| Improvement #1: | RESIDENTIAL | State Code: | Y | 1307.5 sqft | Value: | $236,941 |
| Bathrooms: | 1 | Bedrooms: | 2 | | Ceiling: | BEAM PAINTED | Exterior Wall/Cover: | SHINGLE | | Floor Covering: | VINYL TILE/CARP 20-80 | Floor Structure: | WOOD W/SUBFLOOR | | Foundation: | WOOD BLOCKS | Heating: | BASEBOARD ELECTRIC | | Interior Finish: | DRYWALL PAINT | Plumbing Fixture Cnt: | 7 | | Roof Slope: | 8" IN 12" | Roof Structure/Cover: | BEAM ALUMINUM HEAVY |
|
| | Type | Description | Class CD | Sub Class CD | Year Built | Area |
| | BAS | BASE/MAIN FLOOR | 3 | 0 | 1946 | 1017.5 |
| | OWP | OPEN WOOD PORCH W/STEPS | 3 | 0 | 1946 | 640.4 |
| | AGR | ATTACHED GARAGE | 3 | 0 | 1946 | 440.0 |
| | BAS | BASE/MAIN FLOOR | 3 | 0 | 1946 | 290.0 |
Sketch
Property Image
Land
| 1 | HB | HIGH BLUFF | 0.0000 | 0.00 | 60.00 | 0.00 | 1.00 | $550,000 | $0 |
| 2 | 55 | TIDES | 0.0000 | 0.00 | 60.00 | 0.00 | 1.00 | $600 | $0 |
Roll Value History
| 2026 | N/A | N/A | N/A | N/A | N/A |
| 2025 | $236,941 | $550,600 | $0 | $787,541 | $787,541 |
| 2024 | $240,427 | $550,600 | $0 | $791,027 | $791,027 |
| 2023 | $243,281 | $550,600 | $0 | $793,881 | $793,881 |
| 2022 | $222,882 | $500,600 | $0 | $723,482 | $723,482 |
| 2021 | $193,387 | $260,600 | $0 | $453,987 | $453,987 |
| 2020 | $188,456 | $260,600 | $0 | $449,056 | $449,056 |
| 2019 | $136,513 | $260,600 | $0 | $397,113 | $397,113 |
| 2018 | $136,894 | $260,600 | $0 | $397,494 | $397,494 |
| 2017 | $133,373 | $300,600 | $0 | $433,973 | $433,973 |
| 2016 | $134,855 | $300,600 | $0 | $435,455 | $435,455 |
| 2015 | $125,057 | $300,600 | $0 | $425,657 | $425,657 |
| 2014 | $126,434 | $300,600 | $0 | $427,034 | $427,034 |
| 2013 | $127,810 | $172,809 | $0 | $300,619 | $300,619 |
| 2012 | $129,187 | $172,809 | $0 | $301,996 | $301,996 |
| 2011 | $136,964 | $215,861 | $0 | $352,825 | $352,825 |
| 2010 | $126,683 | $263,113 | $0 | $389,796 | $389,796 |
| 2009 | $57,939 | $282,872 | $0 | $340,811 | $340,811 |
| 2008 | $59,454 | $343,358 | $0 | $402,812 | $402,812 |
| 2007 | $60,831 | $342,938 | $0 | $403,769 | $403,769 |
Deed and Sales History
| 1 | 05/20/2019 | QCD | Quit Claim Deed | PORTUGAL ET AL, REYNALDO C | PORTUGAL, MARGIE M | | | $0.00 | 38881 | 4464983 |
| 2 | 04/25/2018 | WD | Warranty Deed | BURNSIDE, LEE DAVID | PORTUGAL ET AL, REYNALDO C | | | $500,000.00 | 33886 | 4443479 |
|   | |
| 3 | 02/17/2011 | WD | Warranty Deed | BURNSIDE, LEE DAVID | BURNSIDE, LEE DAVID | | | $0.00 | 15976 | 4362138 |
| 4 | 02/17/2011 | WD | Warranty Deed | MURPHY, JOSEPH M | BURNSIDE, LEE DAVID | | | $555,000.00 | 3705 | 4291407 |
| 5 | 06/01/1996 | QCD | Quit Claim Deed | MURPHY, JOSEPH M | MURPHY, JOSEPH M | | | $0.00 | 62168 | 96010775 |
| 6 | 08/01/1994 | WD | Warranty Deed | JAMVOLD, BERIT | MURPHY, JOSEPH M | | | $163,000.00 | 43921 | 94020304 |
| 7 | 04/01/1994 | OTHER | Other - Misc. Documents | JAMVOLD, ROLF | JAMVOLD, BERIT | | | $0.00 | 65857 | 94008305 |
| 8 | 01/01/1900 | OTHER | Other - Misc. Documents | Unknown | JAMVOLD, ROLF | | | $0.00 | 0 | 0 |
Payout Agreement
| No payout information available.. |