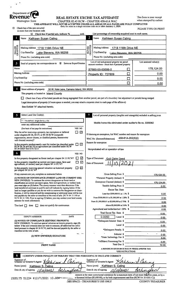
Property
Account |
| Property ID: | 210177 | Abbreviated Legal Description: | CCC 1 LOT 1 BLK 1 |
| Geographic ID: | S6250-00-01001-0 | Agent Code: | |
| Type: | Real | | |
| Tax Area: | 510 - APPRAISER-Stan/Cam Schl Dist, improved & 1 acre or less | Land Use Code | 11 |
| Open Space: | N | DFL | N |
| Historic Property: | N | Remodel Property: | N |
| Multi-Family Redevelopment: | N | | |
| Township: | | Section: | |
| Range: | |
Location |
| Address: | 1308 COUNTRY CLUB DR CAMANO ISLAND, WA 98282 | Mapsco: | |
| Neighborhood: | Cycle 5 | Map ID: | 931 |
| Neighborhood CD: | 5 |
Owner |
| Name: | MORAN, JAMES F | Owner ID: | 62531 |
| Mailing Address: | KATHERINE L MORAN 1308 COUNTRY CLUB DR CAMANO ISLAND, WA 98282-7692 | % Ownership: | 100.0000000000% |
| | | Exemptions: | |
Taxes and Assessment Details
Values
| (+) Improvement Homesite Value: | + | $0 | |
| (+) Improvement Non-Homesite Value: | + | $335,991 | |
| (+) Land Homesite Value: | + | $0 | |
| (+) Land Non-Homesite Value: | + | $390,000 | |
| (+) Curr Use (HS): | + | $0 | $0 |
| (+) Curr Use (NHS): | + | $0 | $0 |
| | | -------------------------- | |
| (=) Market Value: | = | $725,991 | |
| (–) Productivity Loss: | – | $0 | |
| | | -------------------------- | |
| (=) Subtotal: | = | $725,991 | |
| (+) Senior Appraised Value: | + | $0 | |
| (+) Non-Senior Appraised Value: | + | $725,991 | |
| | | -------------------------- | |
| (=) Total Appraised Value: | = | $725,991 | |
| (–) Senior Exemption Loss: | – | $0 | |
| (–) Exemption Loss: | – | $0 | |
| | | -------------------------- | |
| (=) Taxable Value: | = | $725,991 | |
Taxing Jurisdiction
| Owner: | MORAN, JAMES F | | |
| % Ownership: | 100.0000000000% | | |
| Total Value: | $725,991 | | |
| Tax Area: | 510 - APPRAISER-Stan/Cam Schl Dist, improved & 1 acre or less |
| CF | Conservation Futures | 0.0316035091 | $725,991 | $725,991 | $22.94 | | |
| EMS1 | Fire & Rescue Dist #1 Camano GEN (EMS) | 0.3677864386 | $725,991 | $725,991 | $267.01 | | |
| FIRE1 | Fire & Rescue Dist #1 Camano GEN | 1.2502910536 | $725,991 | $725,991 | $907.70 | | |
| FIRE1BOND | Fire & Rescue Dist #1 Camano BOND | 0.1570001679 | $725,991 | $725,991 | $113.98 | | |
| CE | County Current Expense | 0.3708482477 | $725,991 | $725,991 | $269.23 | | |
| CR | County Roads | 0.4584763726 | $725,991 | $725,991 | $332.85 | | |
| LCIB | Library Sno-Isle BOND (Camano Island) | 0.0396325772 | $725,991 | $725,991 | $28.77 | | |
| LIB | Library Sno-Isle GEN | 0.3153421757 | $725,991 | $725,991 | $228.94 | | |
| SCH205_401 | School 205-401 Enrichment | 1.2698420524 | $725,991 | $725,991 | $921.89 | | |
| SCH205BOND | School 205-401 BOND | 0.9396497583 | $725,991 | $725,991 | $682.18 | | |
| ST | State School | 1.3035497053 | $725,991 | $725,991 | $946.37 | | |
| ST2 | State School Part 2 | 0.8169543533 | $725,991 | $725,991 | $593.10 | | |
| | Total Tax Rate: | 7.3209764117 | | | | | |
| | | | | Taxes w/Current Exemptions: | $5,314.96 | | |
| | | | | Taxes w/o Exemptions: | $5,314.96 | | |
Improvement / Building
| Improvement #1: | RESIDENTIAL | State Code: | Y | 2240.0 sqft | Value: | $335,991 |
| Bathrooms: | 2.5 | Bedrooms: | 3 | | Ceiling: | DRY WALL SPRAYED | Exterior Wall/Cover: | WOOD SIDING | | Floor Covering: | HARDWOOD/CARP 20-80 | Floor Structure: | WOOD W/SUBFLOOR | | Foundation: | CONCRETE | Heating: | FHA GAS | | Interior Finish: | DRYWALL PAINT | Plumbing Fixture Cnt: | 12 | | Roof Slope: | 6" IN 12" | Roof Structure/Cover: | CJ ASPHALT |
|
| | Type | Description | Class CD | Sub Class CD | Year Built | Area |
| | BAS | BASE/MAIN FLOOR | 3 | 0 | 2002 | 1520.0 |
| | DWN | DOWNSTAIRS LIVING AREA | 3 | 0 | 2002 | 720.0 |
| | OP4 | OPEN PORCH W/CEILING-ROOF | 3 | 0 | 2002 | 60.0 |
| | BIG | BUILT IN GARAGE | 3 | 0 | 2002 | 500.0 |
| | OWC | OPEN WOOD PORCH W/STEPS/ROOF/C | 3 | 0 | 2002 | 380.0 |
| | OWP | OPEN WOOD PORCH W/STEPS | 3 | 0 | 2002 | 200.0 |
Sketch
Property Image
Land
| 1 | 14 | SQ (08001-12000) | 0.0000 | 0.00 | 0.00 | 0.00 | 1.00 | $390,000 | $0 |
Roll Value History
| 2026 | N/A | N/A | N/A | N/A | N/A |
| 2025 | $335,991 | $390,000 | $0 | $725,991 | $725,991 |
| 2024 | $340,028 | $360,000 | $0 | $700,028 | $700,028 |
| 2023 | $344,064 | $330,000 | $0 | $674,064 | $674,064 |
| 2022 | $315,208 | $300,000 | $0 | $615,208 | $615,208 |
| 2021 | $266,103 | $200,000 | $0 | $466,103 | $466,103 |
| 2020 | $259,398 | $180,000 | $0 | $439,398 | $439,398 |
| 2019 | $198,837 | $230,000 | $0 | $428,837 | $428,837 |
| 2018 | $199,406 | $200,000 | $0 | $399,406 | $399,406 |
| 2017 | $200,546 | $200,000 | $0 | $400,546 | $400,546 |
| 2016 | $202,825 | $110,000 | $0 | $312,825 | $312,825 |
| 2015 | $199,336 | $80,000 | $0 | $279,336 | $279,336 |
| 2014 | $201,643 | $80,000 | $0 | $281,643 | $281,643 |
| 2013 | $203,949 | $80,000 | $0 | $283,949 | $283,949 |
| 2012 | $206,257 | $86,304 | $0 | $292,561 | $292,561 |
| 2011 | $208,563 | $107,880 | $0 | $316,443 | $316,443 |
| 2010 | $217,537 | $107,880 | $0 | $325,417 | $325,417 |
| 2009 | $223,325 | $130,000 | $0 | $353,325 | $353,325 |
| 2008 | $225,815 | $150,000 | $0 | $375,815 | $375,815 |
| 2007 | $230,648 | $146,000 | $0 | $376,648 | $376,648 |
Deed and Sales History
| 1 | 12/06/2001 | WD | Warranty Deed | HAYES, MIKE | MORAN, JAMES F | | | $219,900.00 | 14723 | 4005801 |
| 2 | 06/04/2001 | WD | Warranty Deed | CLINEY, THOMAS P | HAYES, MIKE | | | $47,000.00 | 12130 | 20034405 |
| 3 | 05/01/1990 | QCD | Quit Claim Deed | CLINEY, THOMAS P | CLINEY, THOMAS P | | | $0.00 | 3437 | 90011180 |
| 4 | 01/01/1900 | OTHER | Other - Misc. Documents | Unknown | CLINEY, THOMAS P | | | $0.00 | 0 | 0 |
Payout Agreement
| No payout information available.. |