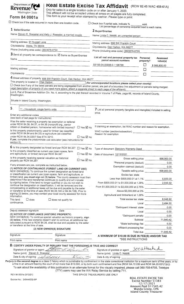
Property
Account |
| Property ID: | 210248 | Abbreviated Legal Description: | CCC 1 PT OF LOT 8 BLK 1 LY NWLY OF LN FR MST SLY CR LOT 46 BLK 1 SWLY TO MIDPT OF SWLY LN LOT 8 TGW FOLL DESC: BG SWCR SD LOT 8 BLK 1 CAMANO COUNTRY CLUB #1 S65*E ALG SLN LOT 8 36.20' N31*E22.89' TPB N31*E45.06' S26*W44.89' N63*W4.43' M/L TPB |
| Geographic ID: | S6250-00-01008-1 | Agent Code: | |
| Type: | Real | | |
| Tax Area: | 510 - APPRAISER-Stan/Cam Schl Dist, improved & 1 acre or less | Land Use Code | 11 |
| Open Space: | N | DFL | N |
| Historic Property: | N | Remodel Property: | N |
| Multi-Family Redevelopment: | N | | |
| Township: | | Section: | |
| Range: | |
Location |
| Address: | 1278 ROYS PL CAMANO ISLAND, WA 98282 | Mapsco: | |
| Neighborhood: | Cycle 5 | Map ID: | 931 |
| Neighborhood CD: | 5 |
Owner |
| Name: | RICHESON, CURTIS J | Owner ID: | 284190 |
| Mailing Address: | JODI J KELKENBERG 1278 ROYS PLACE CAMANO ISLAND, WA 98282 | % Ownership: | 100.0000000000% |
| | | Exemptions: | SNR/DSBL |
Taxes and Assessment Details
Values
| (+) Improvement Homesite Value: | + | $230,730 | |
| (+) Improvement Non-Homesite Value: | + | $0 | |
| (+) Land Homesite Value: | + | $390,000 | |
| (+) Land Non-Homesite Value: | + | $0 | |
| (+) Curr Use (HS): | + | $0 | $0 |
| (+) Curr Use (NHS): | + | $0 | $0 |
| | | -------------------------- | |
| (=) Market Value: | = | $620,730 | |
| (–) Productivity Loss: | – | $0 | |
| | | -------------------------- | |
| (=) Subtotal: | = | $620,730 | |
| (+) Senior Appraised Value: | + | $361,402 | |
| (+) Non-Senior Appraised Value: | + | $0 | |
| | | -------------------------- | |
| (=) Total Appraised Value: | = | $361,402 | |
| (–) Senior Exemption Loss: | – | $216,841 | |
| (–) Exemption Loss: | – | $0 | |
| | | -------------------------- | |
| (=) Taxable Value: | = | $144,561 | |
Taxing Jurisdiction
| Owner: | RICHESON, CURTIS J | | |
| % Ownership: | 100.0000000000% | | |
| Total Value: | $620,730 | | |
| Tax Area: | 510 - APPRAISER-Stan/Cam Schl Dist, improved & 1 acre or less |
| CF | Conservation Futures | 0.0316035091 | $620,730 | $144,561 | $4.57 | | |
| EMS1 | Fire & Rescue Dist #1 Camano GEN (EMS) | 0.3677864386 | $620,730 | $144,561 | $53.17 | | |
| FIRE1 | Fire & Rescue Dist #1 Camano GEN | 1.2502910536 | $620,730 | $144,561 | $180.74 | | |
| FIRE1BOND | Fire & Rescue Dist #1 Camano BOND | 0.0000000000 | $620,730 | $0 | $0.00 | | |
| CE | County Current Expense | 0.3708482477 | $620,730 | $144,561 | $53.61 | | |
| CR | County Roads | 0.4584763726 | $620,730 | $144,561 | $66.28 | | |
| LCIB | Library Sno-Isle BOND (Camano Island) | 0.0000000000 | $620,730 | $0 | $0.00 | | |
| LIB | Library Sno-Isle GEN | 0.3153421757 | $620,730 | $144,561 | $45.59 | | |
| SCH205_401 | School 205-401 Enrichment | 0.0000000000 | $620,730 | $0 | $0.00 | | |
| SCH205BOND | School 205-401 BOND | 0.0000000000 | $620,730 | $0 | $0.00 | | |
| ST | State School | 1.3035497053 | $620,730 | $144,561 | $188.44 | | |
| ST2 | State School Part 2 | 0.0000000000 | $620,730 | $0 | $0.00 | | |
| | Total Tax Rate: | 4.0978975026 | | | | | |
| | | | | Taxes w/Current Exemptions: | $592.40 | | |
| | | | | Taxes w/o Exemptions: | $4,544.35 | | |
Improvement / Building
| Improvement #1: | MANUFACTURED HOME | State Code: | Y | 3294.0 sqft | Value: | $230,730 |
| Bathrooms: | 3 | Bedrooms: | 2 | | Ceiling: | PLASTER PAINTED | Cooling: | EVAP NO DUCT | | Exterior Wall/Cover: | VINYL | Floor Covering: | CARPET 100% | | Floor Structure: | SLAB ON GRADE | Foundation: | SLAB | | Heating: | FHA ELECTRIC | Interior Finish: | PLASTER | | Plumbing Fixture Cnt: | 1 | Roof Slope: | FLAT | | Roof Structure/Cover: | CJ ALUMINIUM HEAVY |   |   |
|
| | Type | Description | Class CD | Sub Class CD | Year Built | Area |
| | BAS | BASE/MAIN FLOOR | 4 | 0 | 2005 | 1647.0 |
| | DWN | DOWNSTAIRS LIVING AREA | 4 | 0 | 2005 | 1647.0 |
| | OP1 | OPEN PORCH SLAB | 4 | 0 | 2005 | 270.0 |
| | OWP | OPEN WOOD PORCH W/STEPS | 4 | 0 | 2005 | 270.0 |
| | OWP | OPEN WOOD PORCH W/STEPS | 4 | 0 | 2005 | 152.0 |
Sketch
Property Image
Land
| 1 | 12 | SQ (00000-06000) | 0.0000 | 0.00 | 0.00 | 0.00 | 1.00 | $390,000 | $0 |
Roll Value History
| 2026 | N/A | N/A | N/A | N/A | N/A |
| 2025 | $230,730 | $390,000 | $0 | $620,730 | $144,561 |
| 2024 | $233,936 | $360,000 | $0 | $593,936 | $144,561 |
| 2023 | $209,003 | $330,000 | $0 | $539,003 | $144,561 |
| 2022 | $194,302 | $300,000 | $0 | $494,302 | $291,402 |
| 2021 | $163,521 | $200,000 | $0 | $363,521 | $291,402 |
| 2020 | $162,704 | $180,000 | $0 | $342,704 | $272,704 |
| 2019 | $131,402 | $230,000 | $0 | $361,402 | $291,402 |
| 2018 | $134,569 | $200,000 | $0 | $334,569 | $334,569 |
| 2017 | $136,152 | $110,000 | $0 | $246,152 | $246,152 |
| 2016 | $137,735 | $110,000 | $0 | $247,735 | $247,735 |
| 2015 | $140,333 | $80,000 | $0 | $220,333 | $220,333 |
| 2014 | $142,092 | $80,000 | $0 | $222,092 | $222,092 |
| 2013 | $144,332 | $80,000 | $0 | $224,332 | $224,332 |
| 2012 | $146,091 | $86,304 | $0 | $232,395 | $232,395 |
| 2011 | $146,971 | $107,880 | $0 | $254,851 | $254,851 |
| 2010 | $153,519 | $107,880 | $0 | $261,399 | $261,399 |
| 2009 | $157,361 | $130,000 | $0 | $287,361 | $283,570 |
| 2008 | $158,570 | $125,000 | $0 | $283,570 | $283,570 |
| 2007 | $159,766 | $118,000 | $0 | $277,766 | $277,766 |
Deed and Sales History
| 1 | 03/05/2018 | WD | Warranty Deed | SHIVELY JTWROS, NEAL L | RICHESON, CURTIS J | | | $365,000.00 | 33243 | 4440527 |
| 2 | 08/16/2013 | WD | Warranty Deed | CRUZAN, JOHN | SHIVELY JTWROS, NEAL L | | | $204,000.00 | 12476 | 4346663 |
| 3 | 05/11/2009 | ESTSEPPROP | Establish Separate Property | CRUZAN, JOHN | CRUZAN, JOHN | | | $0.00 | 91113 | 4251901 |
| 4 | 06/16/2008 | BLA | DNU - Boundary Line Adjustment | CRUZAN, JOHN | CRUZAN, JOHN | | | $0.00 | 80779 | 4204548 |
| 5 | 06/11/2007 | QCD | Quit Claim Deed | CRUZAN, JOHN | CRUZAN, JOHN | | | $2,000.00 | 71955 | 4204549 |
| 6 | 10/10/2003 | WD | Warranty Deed | WESTBY, DAROLD V | CRUZAN, JOHN | | | $48,982.00 | 34711 | 4079628 |
| 7 | 07/01/1997 | WD | Warranty Deed | MEYER, SHARON J | WESTBY, DAROLD V | | | $12,941.00 | 72480 | 97011707 |
| 8 | 02/01/1996 | QCD | Quit Claim Deed | MEYER, SHARON J | MEYER, SHARON J | | | $0.00 | 60836 | 96004422 |
| 9 | 02/01/1990 | WD | Warranty Deed | SHIM, DEANA | MEYER, SHARON J | | | $5,200.00 | 1116 | 90003654 |
| 10 | 01/01/1900 | OTHER | Other - Misc. Documents | Unknown | SHIM, DEANA | | | $0.00 | 0 | 0 |
Payout Agreement
| No payout information available.. |