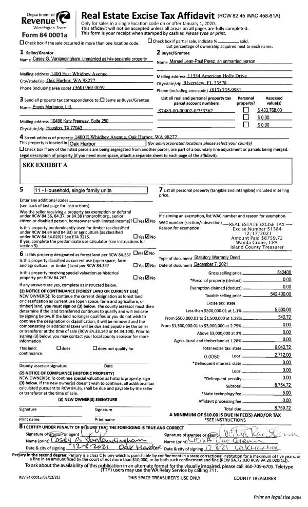
Property
Account |
| Property ID: | 210266 | Abbreviated Legal Description: | CCC 1 LOT 9 BLK 1 |
| Geographic ID: | S6250-00-01009-0 | Agent Code: | |
| Type: | Real | | |
| Tax Area: | 510 - APPRAISER-Stan/Cam Schl Dist, improved & 1 acre or less | Land Use Code | 11 |
| Open Space: | N | DFL | N |
| Historic Property: | N | Remodel Property: | N |
| Multi-Family Redevelopment: | N | | |
| Township: | | Section: | |
| Range: | |
Location |
| Address: | 1289 S EAST CAMANO DR CAMANO ISLAND, WA 98282 | Mapsco: | |
| Neighborhood: | Cycle 5 | Map ID: | 931 |
| Neighborhood CD: | 5 |
Owner |
| Name: | YASMOOTHR, THAMTONG | Owner ID: | 267132 |
| Mailing Address: | 11750 W SUNSET BLVD #410 LOS ANGELES, CA 90049 | % Ownership: | 100.0000000000% |
| | | Exemptions: | |
Taxes and Assessment Details
Values
| (+) Improvement Homesite Value: | + | $0 | |
| (+) Improvement Non-Homesite Value: | + | $278,044 | |
| (+) Land Homesite Value: | + | $0 | |
| (+) Land Non-Homesite Value: | + | $310,000 | |
| (+) Curr Use (HS): | + | $0 | $0 |
| (+) Curr Use (NHS): | + | $0 | $0 |
| | | -------------------------- | |
| (=) Market Value: | = | $588,044 | |
| (–) Productivity Loss: | – | $0 | |
| | | -------------------------- | |
| (=) Subtotal: | = | $588,044 | |
| (+) Senior Appraised Value: | + | $0 | |
| (+) Non-Senior Appraised Value: | + | $588,044 | |
| | | -------------------------- | |
| (=) Total Appraised Value: | = | $588,044 | |
| (–) Senior Exemption Loss: | – | $0 | |
| (–) Exemption Loss: | – | $0 | |
| | | -------------------------- | |
| (=) Taxable Value: | = | $588,044 | |
Taxing Jurisdiction
| Owner: | YASMOOTHR, THAMTONG | | |
| % Ownership: | 100.0000000000% | | |
| Total Value: | $588,044 | | |
| Tax Area: | 510 - APPRAISER-Stan/Cam Schl Dist, improved & 1 acre or less |
| CF | Conservation Futures | 0.0316035091 | $588,044 | $588,044 | $18.58 | | |
| EMS1 | Fire & Rescue Dist #1 Camano GEN (EMS) | 0.3677864386 | $588,044 | $588,044 | $216.27 | | |
| FIRE1 | Fire & Rescue Dist #1 Camano GEN | 1.2502910536 | $588,044 | $588,044 | $735.23 | | |
| FIRE1BOND | Fire & Rescue Dist #1 Camano BOND | 0.1570001679 | $588,044 | $588,044 | $92.32 | | |
| CE | County Current Expense | 0.3708482477 | $588,044 | $588,044 | $218.08 | | |
| CR | County Roads | 0.4584763726 | $588,044 | $588,044 | $269.60 | | |
| LCIB | Library Sno-Isle BOND (Camano Island) | 0.0396325772 | $588,044 | $588,044 | $23.31 | | |
| LIB | Library Sno-Isle GEN | 0.3153421757 | $588,044 | $588,044 | $185.44 | | |
| SCH205_401 | School 205-401 Enrichment | 1.2698420524 | $588,044 | $588,044 | $746.72 | | |
| SCH205BOND | School 205-401 BOND | 0.9396497583 | $588,044 | $588,044 | $552.56 | | |
| ST | State School | 1.3035497053 | $588,044 | $588,044 | $766.54 | | |
| ST2 | State School Part 2 | 0.8169543533 | $588,044 | $588,044 | $480.41 | | |
| | Total Tax Rate: | 7.3209764117 | | | | | |
| | | | | Taxes w/Current Exemptions: | $4,305.06 | | |
| | | | | Taxes w/o Exemptions: | $4,305.06 | | |
Improvement / Building
| Improvement #1: | RESIDENTIAL | State Code: | Y | 1368.0 sqft | Value: | $278,044 |
| Bathrooms: | 2 | Bedrooms: | 3 | | Ceiling: | DRYWALL PAINTED | Exterior Wall/Cover: | PLY/HARDBOARD T-111 | | Floor Covering: | CERAMIC TILE/CPT 40-60 | Floor Structure: | WOOD W/SUBFLOOR | | Foundation: | CONCRETE | Heating: | WALL HEAT ELECTRIC | | Interior Finish: | DRYWALL PAINT | Plumbing Fixture Cnt: | 9 | | Roof Slope: | 6" IN 12" | Roof Structure/Cover: | BEAM ASPHALT |
|
| | Type | Description | Class CD | Sub Class CD | Year Built | Area |
| | BAS | BASE/MAIN FLOOR | 3 | 0 | 1992 | 1368.0 |
| | AGR | ATTACHED GARAGE | 3 | 0 | 1992 | 506.0 |
| | OWP | OPEN WOOD PORCH W/STEPS | 3 | 0 | 1992 | 144.0 |
| | OWR | OPEN WOOD PORCH W/STEPS/ROOF | 3 | 0 | 1992 | 332.0 |
Sketch
Property Image
Land
| 1 | 14 | SQ (08001-12000) | 0.0000 | 0.00 | 0.00 | 0.00 | 1.00 | $310,000 | $0 |
Roll Value History
| 2026 | N/A | N/A | N/A | N/A | N/A |
| 2025 | $278,044 | $310,000 | $0 | $588,044 | $588,044 |
| 2024 | $281,644 | $280,000 | $0 | $561,644 | $561,644 |
| 2023 | $285,243 | $275,000 | $0 | $560,243 | $560,243 |
| 2022 | $261,550 | $250,000 | $0 | $511,550 | $511,550 |
| 2021 | $213,831 | $180,000 | $0 | $393,831 | $393,831 |
| 2020 | $208,324 | $150,000 | $0 | $358,324 | $358,324 |
| 2019 | $150,246 | $200,000 | $0 | $350,246 | $350,246 |
| 2018 | $150,708 | $170,000 | $0 | $320,708 | $320,708 |
| 2017 | $151,632 | $125,000 | $0 | $276,632 | $276,632 |
| 2016 | $153,481 | $90,000 | $0 | $243,481 | $243,481 |
| 2015 | $155,330 | $80,000 | $0 | $235,330 | $235,330 |
| 2014 | $134,552 | $80,000 | $0 | $214,552 | $214,552 |
| 2013 | $136,318 | $80,000 | $0 | $216,318 | $216,318 |
| 2012 | $138,083 | $86,304 | $0 | $224,387 | $224,387 |
| 2011 | $139,848 | $107,880 | $0 | $247,728 | $247,728 |
| 2010 | $147,414 | $107,880 | $0 | $255,294 | $255,294 |
| 2009 | $153,620 | $130,000 | $0 | $283,620 | $283,620 |
| 2008 | $155,389 | $150,000 | $0 | $305,389 | $63,178 |
| 2007 | $157,171 | $146,000 | $0 | $303,171 | $63,178 |
Deed and Sales History
| 1 | 07/08/2014 | WD | Warranty Deed | MCPHERSON, ELIZABETH R | YASMOOTHR, THAMTONG | | | $269,950.00 | 16028 | 4362380 |
| 2 | 12/14/2009 | WD | Warranty Deed | HARRINGTON, NANCY | MCPHERSON, ELIZABETH R | | | $289,500.00 | 93183 | 4266077 |
| 3 | 07/26/2002 | WD | Warranty Deed | DIAZ, RAMON L | HARRINGTON, NANCY | | | $151,200.00 | 22938 | 4026893 |
| 4 | 02/20/1999 | WD | Warranty Deed | GRAVES, SANDRA L | DIAZ, RAMON L | | | $164,000.00 | 90663 | 99004767 |
| 5 | 10/01/1996 | WD | Warranty Deed | COUNTRYWIDE, FUNDING C | GRAVES, SANDRA L | | | $145,000.00 | 63797 | 96018396 |
| 6 | 03/01/1996 | TRUSTEED | Trustee's Deed | WOOLLEY, JOSEPH L | COUNTRYWIDE, FUNDING C | | | $0.00 | 61097 | 96005603 |
| 7 | 11/01/1993 | WD | Warranty Deed | NICOARA, RADU | WOOLLEY, JOSEPH L | | | $146,000.00 | 34431 | 93023090 |
| 8 | 11/01/1990 | QCD | Quit Claim Deed | NICOARA, OVIDIU & | NICOARA, RADU | | | $0.00 | 6319 | 90021876 |
| 9 | 09/01/1990 | QCD | Quit Claim Deed | NICOARA, OVIDIU | NICOARA, OVIDIU & | | | $0.00 | 5479 | 90018299 |
| 10 | 09/01/1990 | QCD | Quit Claim Deed | NICOARA, LAURENTIU & | NICOARA, OVIDIU | | | $0.00 | 5480 | 90018300 |
| 11 | 04/01/1990 | WD | Warranty Deed | ISON, RALPH | NICOARA, LAURENTIU & | | | $28,000.00 | 2428 | 90007854 |
| 12 | 03/01/1990 | QCD | Quit Claim Deed | ISON, RALPH | ISON, RALPH | | | $0.00 | 2427 | 90007853 |
| 13 | 01/01/1989 | QCD | Quit Claim Deed | WHELAN, H T | ISON, RALPH | | | $0.00 | 90179 | 89000611 |
| 14 | 11/01/1979 | EXECUTORD | Executor Deed | BUCKLEY, MAUREEN B | WHELAN, H T | | | $17,250.00 | 956480 | 3617350 |
| 15 | 11/01/1979 | CD | DNU - Correction Deed | RIVERSIDE, FOUNDRY I | BUCKLEY, MAUREEN B | | | $0.00 | 95469 | 361736 |
| 16 | 10/01/1978 | OTHER | Other - Misc. Documents | Unknown | RIVERSIDE, FOUNDRY I | | | $11,500.00 | 853300 | 3421380 |
Payout Agreement
| No payout information available.. |