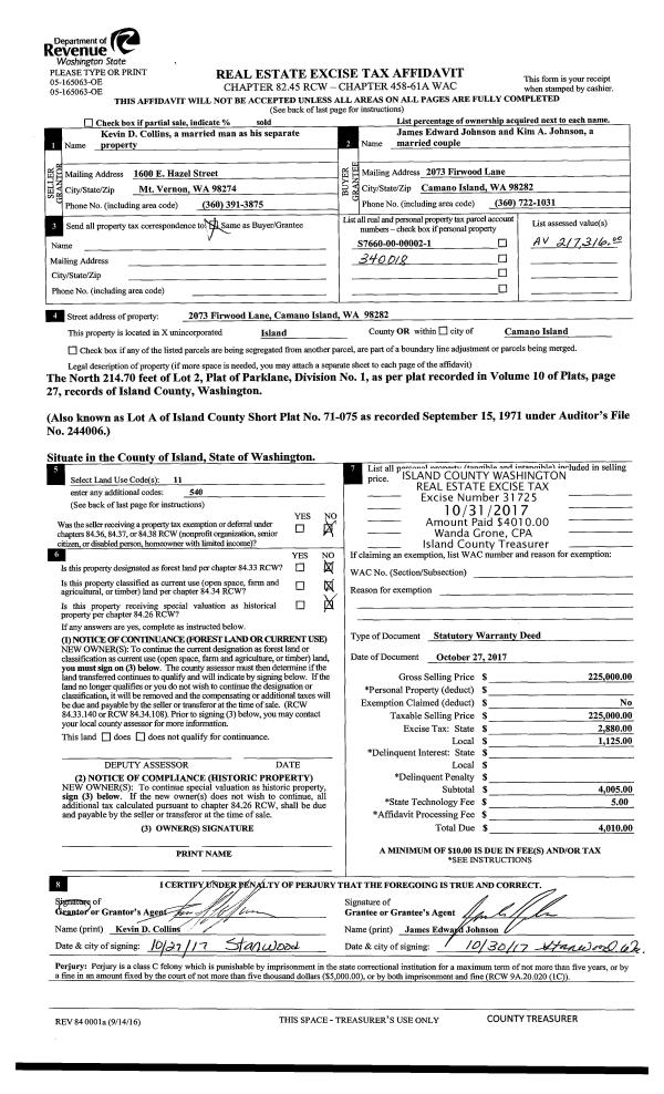
Property
Account |
| Property ID: | 210364 | Abbreviated Legal Description: | CCC 1 LOT 19 BLK 1 |
| Geographic ID: | S6250-00-01019-0 | Agent Code: | |
| Type: | Real | | |
| Tax Area: | 510 - APPRAISER-Stan/Cam Schl Dist, improved & 1 acre or less | Land Use Code | 11 |
| Open Space: | N | DFL | N |
| Historic Property: | N | Remodel Property: | N |
| Multi-Family Redevelopment: | N | | |
| Township: | | Section: | |
| Range: | |
Location |
| Address: | 1261 S EAST CAMANO DR CAMANO ISLAND, WA 98282 | Mapsco: | |
| Neighborhood: | Cycle 5 | Map ID: | 931 |
| Neighborhood CD: | 5 |
Owner |
| Name: | YORK, JAMES W | Owner ID: | 282077 |
| Mailing Address: | BRANDI M YORK 1261 S EAST CAMANO DR CAMANO ISLAND, WA 98282 | % Ownership: | 100.0000000000% |
| | | Exemptions: | |
Taxes and Assessment Details
Values
| (+) Improvement Homesite Value: | + | $0 | |
| (+) Improvement Non-Homesite Value: | + | $300,479 | |
| (+) Land Homesite Value: | + | $0 | |
| (+) Land Non-Homesite Value: | + | $310,000 | |
| (+) Curr Use (HS): | + | $0 | $0 |
| (+) Curr Use (NHS): | + | $0 | $0 |
| | | -------------------------- | |
| (=) Market Value: | = | $610,479 | |
| (–) Productivity Loss: | – | $0 | |
| | | -------------------------- | |
| (=) Subtotal: | = | $610,479 | |
| (+) Senior Appraised Value: | + | $0 | |
| (+) Non-Senior Appraised Value: | + | $610,479 | |
| | | -------------------------- | |
| (=) Total Appraised Value: | = | $610,479 | |
| (–) Senior Exemption Loss: | – | $0 | |
| (–) Exemption Loss: | – | $0 | |
| | | -------------------------- | |
| (=) Taxable Value: | = | $610,479 | |
Taxing Jurisdiction
| Owner: | YORK, JAMES W | | |
| % Ownership: | 100.0000000000% | | |
| Total Value: | $610,479 | | |
| Tax Area: | 510 - APPRAISER-Stan/Cam Schl Dist, improved & 1 acre or less |
| CF | Conservation Futures | 0.0316035091 | $610,479 | $610,479 | $19.29 | | |
| EMS1 | Fire & Rescue Dist #1 Camano GEN (EMS) | 0.3677864386 | $610,479 | $610,479 | $224.53 | | |
| FIRE1 | Fire & Rescue Dist #1 Camano GEN | 1.2502910536 | $610,479 | $610,479 | $763.28 | | |
| FIRE1BOND | Fire & Rescue Dist #1 Camano BOND | 0.1570001679 | $610,479 | $610,479 | $95.85 | | |
| CE | County Current Expense | 0.3708482477 | $610,479 | $610,479 | $226.40 | | |
| CR | County Roads | 0.4584763726 | $610,479 | $610,479 | $279.89 | | |
| LCIB | Library Sno-Isle BOND (Camano Island) | 0.0396325772 | $610,479 | $610,479 | $24.19 | | |
| LIB | Library Sno-Isle GEN | 0.3153421757 | $610,479 | $610,479 | $192.51 | | |
| SCH205_401 | School 205-401 Enrichment | 1.2698420524 | $610,479 | $610,479 | $775.21 | | |
| SCH205BOND | School 205-401 BOND | 0.9396497583 | $610,479 | $610,479 | $573.64 | | |
| ST | State School | 1.3035497053 | $610,479 | $610,479 | $795.79 | | |
| ST2 | State School Part 2 | 0.8169543533 | $610,479 | $610,479 | $498.73 | | |
| | Total Tax Rate: | 7.3209764117 | | | | | |
| | | | | Taxes w/Current Exemptions: | $4,469.31 | | |
| | | | | Taxes w/o Exemptions: | $4,469.31 | | |
Improvement / Building
| Improvement #1: | RESIDENTIAL | State Code: | Y | 1920.0 sqft | Value: | $300,479 |
| Bathrooms: | 2 | Bedrooms: | 2 | | Ceiling: | DRY WALL SPRAYED | Exterior Wall/Cover: | CEMENT FIBER | | Floor Covering: | VINYL TILE/CARP 20-80 | Floor Structure: | WOOD W/SUBFLOOR | | Foundation: | CONCRETE | Heating: | RADIANT FLOOR | | Interior Finish: | DRYWALL PAINT | Plumbing Fixture Cnt: | 10 | | Roof Slope: | 6" IN 12" | Roof Structure/Cover: | CJ ASPHALT |
|
| | Type | Description | Class CD | Sub Class CD | Year Built | Area |
| | BAS | BASE/MAIN FLOOR | 3 | 0 | 2003 | 960.0 |
| | OP1 | OPEN PORCH SLAB | 3 | 0 | 2003 | 256.0 |
| | AGR | ATTACHED GARAGE | 3 | 0 | 2003 | 484.0 |
| | OWP | OPEN WOOD PORCH W/STEPS | 3 | 0 | 2003 | 24.0 |
| | OWP | OPEN WOOD PORCH W/STEPS | 3 | 0 | 2003 | 256.0 |
| | DWN | DOWNSTAIRS LIVING AREA | 3 | 0 | 2003 | 960.0 |
Sketch
Property Image
Land
| 1 | 14 | SQ (08001-12000) | 0.0000 | 0.00 | 0.00 | 0.00 | 1.00 | $310,000 | $0 |
Roll Value History
| 2026 | N/A | N/A | N/A | N/A | N/A |
| 2025 | $300,479 | $310,000 | $0 | $610,479 | $610,479 |
| 2024 | $303,923 | $280,000 | $0 | $583,923 | $583,923 |
| 2023 | $307,366 | $275,000 | $0 | $582,366 | $582,366 |
| 2022 | $280,657 | $250,000 | $0 | $530,657 | $530,657 |
| 2021 | $224,702 | $180,000 | $0 | $404,702 | $404,702 |
| 2020 | $219,089 | $150,000 | $0 | $369,089 | $369,089 |
| 2019 | $165,527 | $200,000 | $0 | $365,527 | $365,527 |
| 2018 | $166,008 | $170,000 | $0 | $336,008 | $336,008 |
| 2017 | $166,967 | $125,000 | $0 | $291,967 | $291,967 |
| 2016 | $168,887 | $90,000 | $0 | $258,887 | $98,494 |
| 2015 | $166,967 | $50,000 | $0 | $216,967 | $86,787 |
| 2014 | $168,887 | $50,000 | $0 | $218,887 | $148,887 |
| 2013 | $170,806 | $56,000 | $0 | $226,806 | $156,806 |
| 2012 | $172,724 | $56,000 | $0 | $228,724 | $158,724 |
| 2011 | $174,644 | $70,000 | $0 | $244,644 | $174,644 |
| 2010 | $176,236 | $70,000 | $0 | $246,236 | $176,236 |
| 2009 | $183,609 | $90,000 | $0 | $273,609 | $273,609 |
| 2008 | $187,490 | $130,000 | $0 | $317,490 | $317,490 |
| 2007 | $187,530 | $118,000 | $0 | $305,530 | $305,530 |
Deed and Sales History
| 1 | 09/25/2017 | WD | Warranty Deed | GIPSON, ULALE | YORK, JAMES W | | | $269,500.00 | 31210 | 4430778 |
| 2 | 05/03/2002 | WD | Warranty Deed | WELLS, RONALD J | GIPSON, ULALE | | | $47,000.00 | 21716 | 4019141 |
| 3 | 03/29/2002 | WD | Warranty Deed | MCCOY, MYRNA L | WELLS, RONALD J | | | $26,000.00 | 21189 | 4015527 |
| 4 | 12/01/1986 | WD | Warranty Deed | METCALF, GORDON M | MCCOY, MYRNA L | | | $11,000.00 | 63737 | 86016650 |
| 5 | 03/01/1982 | TRUSTEED | Trustee's Deed | WARD, JAMES F | METCALF, GORDON M | | | $20,000.00 | 20670 | 394456 |
| 6 | 01/01/1900 | OTHER | Other - Misc. Documents | Unknown | WARD, JAMES F | | | $0.00 | 0 | 0 |
Payout Agreement
| No payout information available.. |