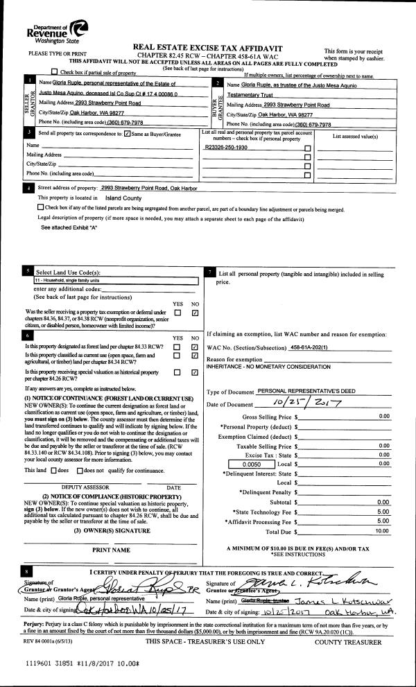
Property
Account |
| Property ID: | 210435 | Abbreviated Legal Description: | CCC 1 LOT 26 BLK 1 |
| Geographic ID: | S6250-00-01026-0 | Agent Code: | |
| Type: | Real | | |
| Tax Area: | 510 - APPRAISER-Stan/Cam Schl Dist, improved & 1 acre or less | Land Use Code | 11 |
| Open Space: | N | DFL | N |
| Historic Property: | N | Remodel Property: | N |
| Multi-Family Redevelopment: | N | | |
| Township: | | Section: | |
| Range: | |
Location |
| Address: | 1229 S EAST CAMANO DR CAMANO ISLAND, WA 98282 | Mapsco: | |
| Neighborhood: | Cycle 5 | Map ID: | 931 |
| Neighborhood CD: | 5 |
Owner |
| Name: | COOKS, TREVOR | Owner ID: | 304912 |
| Mailing Address: | EMILIE COOKS 1229 SE CAMANO DRIVE CAMANO ISLAND, WA 98282 | % Ownership: | 100.0000000000% |
| | | Exemptions: | |
Taxes and Assessment Details
Values
| (+) Improvement Homesite Value: | + | $0 | |
| (+) Improvement Non-Homesite Value: | + | $443,471 | |
| (+) Land Homesite Value: | + | $0 | |
| (+) Land Non-Homesite Value: | + | $310,000 | |
| (+) Curr Use (HS): | + | $0 | $0 |
| (+) Curr Use (NHS): | + | $0 | $0 |
| | | -------------------------- | |
| (=) Market Value: | = | $753,471 | |
| (–) Productivity Loss: | – | $0 | |
| | | -------------------------- | |
| (=) Subtotal: | = | $753,471 | |
| (+) Senior Appraised Value: | + | $0 | |
| (+) Non-Senior Appraised Value: | + | $753,471 | |
| | | -------------------------- | |
| (=) Total Appraised Value: | = | $753,471 | |
| (–) Senior Exemption Loss: | – | $0 | |
| (–) Exemption Loss: | – | $0 | |
| | | -------------------------- | |
| (=) Taxable Value: | = | $753,471 | |
Taxing Jurisdiction
| Owner: | COOKS, TREVOR | | |
| % Ownership: | 100.0000000000% | | |
| Total Value: | $753,471 | | |
| Tax Area: | 510 - APPRAISER-Stan/Cam Schl Dist, improved & 1 acre or less |
| CF | Conservation Futures | 0.0316035091 | $753,471 | $753,471 | $23.81 | | |
| EMS1 | Fire & Rescue Dist #1 Camano GEN (EMS) | 0.3677864386 | $753,471 | $753,471 | $277.12 | | |
| FIRE1 | Fire & Rescue Dist #1 Camano GEN | 1.2502910536 | $753,471 | $753,471 | $942.06 | | |
| FIRE1BOND | Fire & Rescue Dist #1 Camano BOND | 0.1570001679 | $753,471 | $753,471 | $118.30 | | |
| CE | County Current Expense | 0.3708482477 | $753,471 | $753,471 | $279.42 | | |
| CR | County Roads | 0.4584763726 | $753,471 | $753,471 | $345.45 | | |
| LCIB | Library Sno-Isle BOND (Camano Island) | 0.0396325772 | $753,471 | $753,471 | $29.86 | | |
| LIB | Library Sno-Isle GEN | 0.3153421757 | $753,471 | $753,471 | $237.60 | | |
| SCH205_401 | School 205-401 Enrichment | 1.2698420524 | $753,471 | $753,471 | $956.79 | | |
| SCH205BOND | School 205-401 BOND | 0.9396497583 | $753,471 | $753,471 | $708.00 | | |
| ST | State School | 1.3035497053 | $753,471 | $753,471 | $982.19 | | |
| ST2 | State School Part 2 | 0.8169543533 | $753,471 | $753,471 | $615.55 | | |
| | Total Tax Rate: | 7.3209764117 | | | | | |
| | | | | Taxes w/Current Exemptions: | $5,516.15 | | |
| | | | | Taxes w/o Exemptions: | $5,516.15 | | |
Improvement / Building
| Improvement #1: | RESIDENTIAL | State Code: | Y | 1918.0 sqft | Value: | $443,471 |
| Bathrooms: | 2 | Bedrooms: | 3 | | Ceiling: | DRYWALL PAINTED | Exterior Wall/Cover: | CEMENT FIBER | | Floor Covering: | CARPET/VINYL 80-20 | Floor Structure: | WOOD W/SUBFLOOR | | Foundation: | CONCRETE | Heating: | FHA GAS | | Interior Finish: | DRYWALL PAINT | Plumbing Fixture Cnt: | 11 | | Roof Slope: | 6" IN 12" | Roof Structure/Cover: | CJ ASPHALT |
|
| | Type | Description | Class CD | Sub Class CD | Year Built | Area |
| | BAS | BASE/MAIN FLOOR | 4 | 0 | 2020 | 1918.0 |
| | AGR | ATTACHED GARAGE | 4 | 0 | 2020 | 400.0 |
| | OWC | OPEN WOOD PORCH W/STEPS/ROOF/C | 4 | 0 | 2020 | 153.0 |
| | OP4 | OPEN PORCH W/CEILING-ROOF | 4 | 0 | 2020 | 20.3 |
Sketch
Property Image
Land
| 1 | 14 | SQ (08001-12000) | 0.0000 | 0.00 | 0.00 | 0.00 | 1.00 | $310,000 | $0 |
Roll Value History
| 2026 | N/A | N/A | N/A | N/A | N/A |
| 2025 | $443,471 | $310,000 | $0 | $753,471 | $753,471 |
| 2024 | $447,019 | $280,000 | $0 | $727,019 | $727,019 |
| 2023 | $450,566 | $275,000 | $0 | $725,566 | $725,566 |
| 2022 | $412,273 | $250,000 | $0 | $662,273 | $662,273 |
| 2021 | $342,149 | $180,000 | $0 | $522,149 | $522,149 |
| 2020 | $335,962 | $150,000 | $0 | $485,962 | $485,962 |
| 2019 | $0 | $90,000 | $0 | $90,000 | $90,000 |
| 2018 | $4,000 | $90,000 | $0 | $94,000 | $94,000 |
| 2017 | $4,000 | $50,000 | $0 | $54,000 | $54,000 |
| 2016 | $4,000 | $45,000 | $0 | $49,000 | $49,000 |
| 2015 | $4,000 | $50,000 | $0 | $54,000 | $54,000 |
| 2014 | $4,000 | $50,000 | $0 | $54,000 | $54,000 |
| 2013 | $4,000 | $56,000 | $0 | $60,000 | $60,000 |
| 2012 | $4,000 | $56,000 | $0 | $60,000 | $60,000 |
| 2011 | $4,000 | $70,000 | $0 | $74,000 | $74,000 |
| 2010 | $4,000 | $70,000 | $0 | $74,000 | $74,000 |
| 2009 | $4,000 | $90,000 | $0 | $94,000 | $94,000 |
| 2008 | $4,000 | $125,000 | $0 | $129,000 | $129,000 |
| 2007 | $4,000 | $118,000 | $0 | $122,000 | $122,000 |
Deed and Sales History
| 1 | 06/22/2022 | WD | Warranty Deed | BOWERS, EDWARD | COOKS, TREVOR | | | $699,000.00 | 53640 | 4547376 |
| 2 | 07/08/2020 | WD | Warranty Deed | ISLAND VIEW INVESTMENTS, LLC | BOWERS, EDWARD | | | $525,000.00 | 43722 | 4490863 |
| 3 | 12/11/2017 | WD | Warranty Deed | COX, WILLIAM THEODORE | ISLAND VIEW INVESTMENTS, LLC | | | $60,000.00 | 32316 | 4435960 |
| 4 | 05/04/1998 | QCD | Quit Claim Deed | COX, WILLIAM T | COX, WILLIAM THEODORE | | | $0.00 | 81695 | 98009190 |
| 5 | 03/01/1990 | WD | Warranty Deed | BOULTON, EDWARD C | COX, WILLIAM T | | | $18,000.00 | 1661 | 90005382 |
| 6 | 01/01/1900 | OTHER | Other - Misc. Documents | Unknown | COX, WILLIAM T | | | $0.00 | 81695 | 98009190 |
| 7 | 01/01/1900 | OTHER | Other - Misc. Documents | COX, WILLIAM T | BOULTON, EDWARD C | | | $0.00 | 0 | 0 |
Payout Agreement
| No payout information available.. |