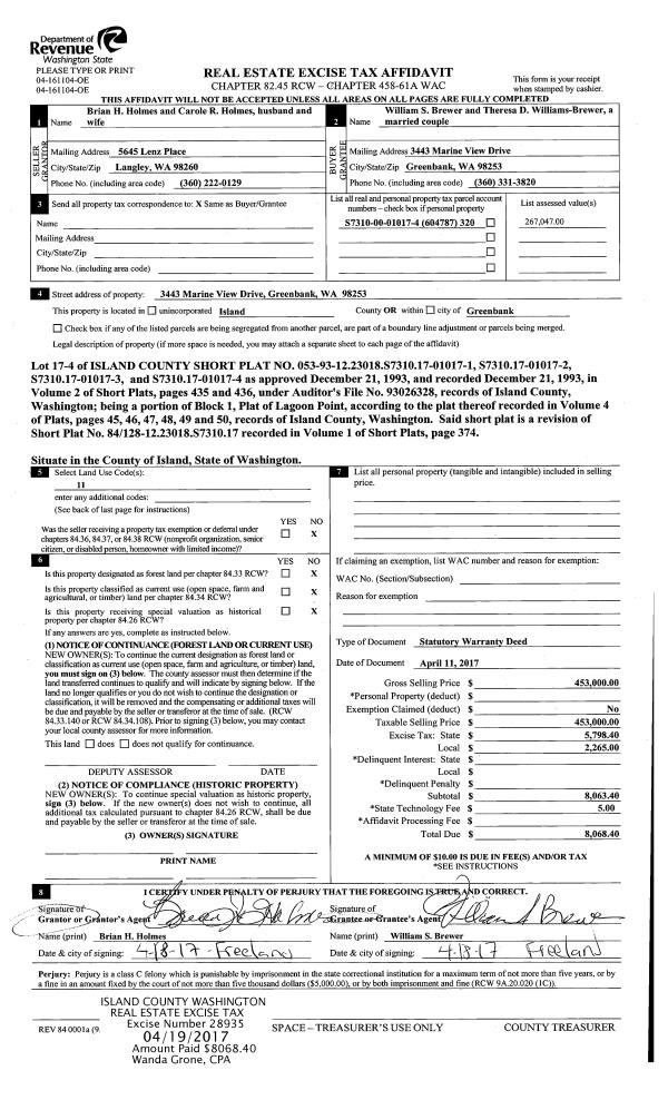
Property
Account |
| Property ID: | 210667 | Abbreviated Legal Description: | CCC 1 LOT 1 BLK 2 |
| Geographic ID: | S6250-00-02001-0 | Agent Code: | |
| Type: | Real | | |
| Tax Area: | 510 - APPRAISER-Stan/Cam Schl Dist, improved & 1 acre or less | Land Use Code | 11 |
| Open Space: | N | DFL | N |
| Historic Property: | N | Remodel Property: | N |
| Multi-Family Redevelopment: | N | | |
| Township: | | Section: | |
| Range: | |
Location |
| Address: | 1267 VIEW ST CAMANO ISLAND, WA 98282 | Mapsco: | |
| Neighborhood: | Cycle 5 | Map ID: | 931 |
| Neighborhood CD: | 5 |
Owner |
| Name: | WALLACE, CLAY R | Owner ID: | 314504 |
| Mailing Address: | KATHERINE ANN RATHVON 1267 VIEW ST CAMANO ISLAND, WA 98282 | % Ownership: | 100.0000000000% |
| | | Exemptions: | |
Taxes and Assessment Details
Values
| (+) Improvement Homesite Value: | + | $0 | |
| (+) Improvement Non-Homesite Value: | + | $266,831 | |
| (+) Land Homesite Value: | + | $0 | |
| (+) Land Non-Homesite Value: | + | $310,000 | |
| (+) Curr Use (HS): | + | $0 | $0 |
| (+) Curr Use (NHS): | + | $0 | $0 |
| | | -------------------------- | |
| (=) Market Value: | = | $576,831 | |
| (–) Productivity Loss: | – | $0 | |
| | | -------------------------- | |
| (=) Subtotal: | = | $576,831 | |
| (+) Senior Appraised Value: | + | $0 | |
| (+) Non-Senior Appraised Value: | + | $576,831 | |
| | | -------------------------- | |
| (=) Total Appraised Value: | = | $576,831 | |
| (–) Senior Exemption Loss: | – | $0 | |
| (–) Exemption Loss: | – | $0 | |
| | | -------------------------- | |
| (=) Taxable Value: | = | $576,831 | |
Taxing Jurisdiction
| Owner: | WALLACE, CLAY R | | |
| % Ownership: | 100.0000000000% | | |
| Total Value: | $576,831 | | |
| Tax Area: | 510 - APPRAISER-Stan/Cam Schl Dist, improved & 1 acre or less |
| CF | Conservation Futures | 0.0316035091 | $576,831 | $576,831 | $18.23 | | |
| EMS1 | Fire & Rescue Dist #1 Camano GEN (EMS) | 0.3677864386 | $576,831 | $576,831 | $212.15 | | |
| FIRE1 | Fire & Rescue Dist #1 Camano GEN | 1.2502910536 | $576,831 | $576,831 | $721.21 | | |
| FIRE1BOND | Fire & Rescue Dist #1 Camano BOND | 0.1570001679 | $576,831 | $576,831 | $90.56 | | |
| CE | County Current Expense | 0.3708482477 | $576,831 | $576,831 | $213.92 | | |
| CR | County Roads | 0.4584763726 | $576,831 | $576,831 | $264.46 | | |
| LCIB | Library Sno-Isle BOND (Camano Island) | 0.0396325772 | $576,831 | $576,831 | $22.86 | | |
| LIB | Library Sno-Isle GEN | 0.3153421757 | $576,831 | $576,831 | $181.90 | | |
| SCH205_401 | School 205-401 Enrichment | 1.2698420524 | $576,831 | $576,831 | $732.48 | | |
| SCH205BOND | School 205-401 BOND | 0.9396497583 | $576,831 | $576,831 | $542.02 | | |
| ST | State School | 1.3035497053 | $576,831 | $576,831 | $751.93 | | |
| ST2 | State School Part 2 | 0.8169543533 | $576,831 | $576,831 | $471.24 | | |
| | Total Tax Rate: | 7.3209764117 | | | | | |
| | | | | Taxes w/Current Exemptions: | $4,222.96 | | |
| | | | | Taxes w/o Exemptions: | $4,222.96 | | |
Improvement / Building
| Improvement #1: | RESIDENTIAL | State Code: | Y | 2664.0 sqft | Value: | $266,831 |
| Bathrooms: | 2 | Bedrooms: | 2 | | Ceiling: | TONGUE & GROOVE | Cooling: | HEAT PUMP/CONV/V | | Exterior Wall/Cover: | PLY/HARDBOARD T-111 | Floor Covering: | CARPET/VINYL 80-20 | | Floor Structure: | WOOD W/SUBFLOOR | Foundation: | CONCRETE | | Interior Finish: | DRYWALL PAINT | Plumbing Fixture Cnt: | 9 | | Roof Slope: | 3" IN 12" | Roof Structure/Cover: | BEAM ROLL COMPOSITION |
|
| | Type | Description | Class CD | Sub Class CD | Year Built | Area |
| | BAS | BASE/MAIN FLOOR | 3 | 0 | 1977 | 1332.0 |
| | DWN | DOWNSTAIRS LIVING AREA | 3 | 0 | 1977 | 1332.0 |
| | OWP | OPEN WOOD PORCH W/STEPS | 3 | 0 | 1977 | 666.0 |
| | DGR | DETACHED GARAGE | 3 | 0 | 1977 | 576.0 |
Sketch
Property Image
Land
| 1 | 14 | SQ (08001-12000) | 0.0000 | 0.00 | 0.00 | 0.00 | 1.00 | $310,000 | $0 |
Roll Value History
| 2026 | N/A | N/A | N/A | N/A | N/A |
| 2025 | $266,831 | $310,000 | $0 | $576,831 | $576,831 |
| 2024 | $270,577 | $280,000 | $0 | $550,577 | $550,577 |
| 2023 | $274,322 | $275,000 | $0 | $549,322 | $549,322 |
| 2022 | $251,793 | $250,000 | $0 | $501,793 | $501,793 |
| 2021 | $204,198 | $180,000 | $0 | $384,198 | $384,198 |
| 2020 | $199,996 | $150,000 | $0 | $349,996 | $349,996 |
| 2019 | $158,253 | $200,000 | $0 | $358,253 | $358,253 |
| 2018 | $158,808 | $170,000 | $0 | $328,808 | $328,808 |
| 2017 | $151,985 | $200,000 | $0 | $351,985 | $351,985 |
| 2016 | $154,289 | $110,000 | $0 | $264,289 | $264,289 |
| 2015 | $151,530 | $80,000 | $0 | $231,530 | $231,530 |
| 2014 | $153,618 | $80,000 | $0 | $233,618 | $233,618 |
| 2013 | $155,705 | $80,000 | $0 | $235,705 | $235,705 |
| 2012 | $157,791 | $86,304 | $0 | $244,095 | $244,095 |
| 2011 | $159,879 | $107,880 | $0 | $267,759 | $267,759 |
| 2010 | $168,672 | $107,880 | $0 | $276,552 | $276,552 |
| 2009 | $167,500 | $130,000 | $0 | $297,500 | $297,500 |
| 2008 | $175,029 | $140,000 | $0 | $315,029 | $315,029 |
| 2007 | $177,737 | $125,000 | $0 | $302,737 | $302,737 |
Deed and Sales History
| 1 | 10/22/2024 | WD | Warranty Deed | WALLACE, CLAY R | WALLACE, CLAY R | | | $0.00 | 61786 | 4579206 |
| 2 | 05/22/2017 | QCD | Quit Claim Deed | WALLACE, CLAY R | WALLACE, CLAY R | | | $0.00 | 29422 | 4423088 |
| 3 | 05/22/2017 | WD | Warranty Deed | MEICHO, JAMES F | WALLACE, CLAY R | | | $399,950.00 | 29420 | 4423087 |
Payout Agreement
| No payout information available.. |