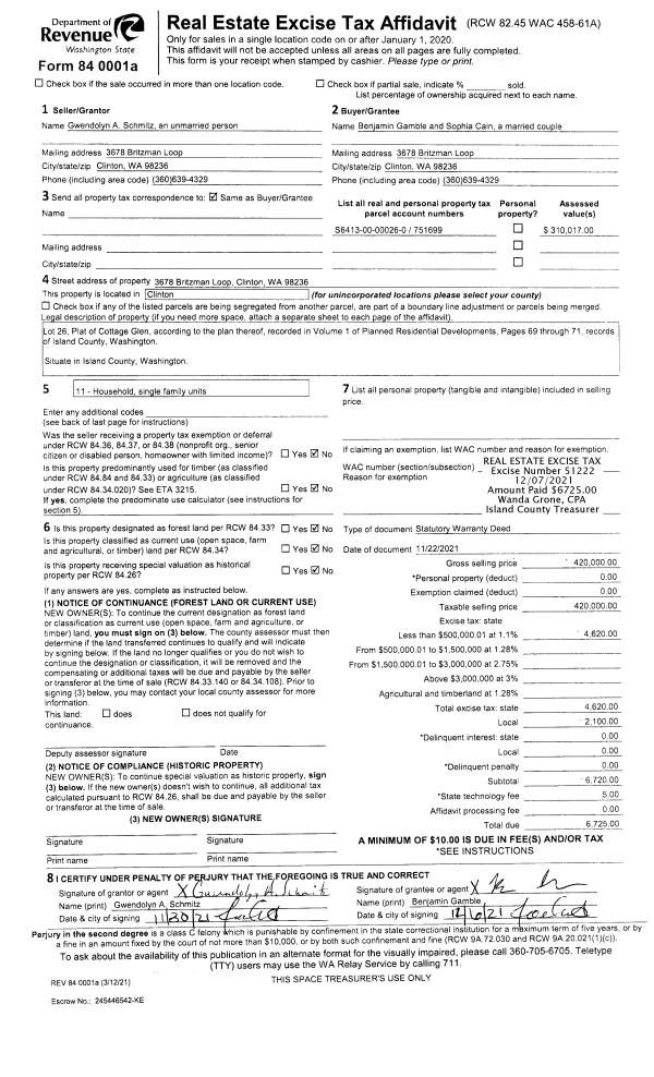
Property
Account |
| Property ID: | 210890 | Abbreviated Legal Description: | CCC 1 LOT 1 BLK 3 |
| Geographic ID: | S6250-00-03001-0 | Agent Code: | |
| Type: | Real | | |
| Tax Area: | 510 - APPRAISER-Stan/Cam Schl Dist, improved & 1 acre or less | Land Use Code | 11 |
| Open Space: | N | DFL | N |
| Historic Property: | N | Remodel Property: | N |
| Multi-Family Redevelopment: | N | | |
| Township: | | Section: | |
| Range: | |
Location |
| Address: | 1309 COUNTRY CLUB DR CAMANO ISLAND, WA 98282 | Mapsco: | |
| Neighborhood: | Cycle 5 | Map ID: | 931 |
| Neighborhood CD: | 5 |
Owner |
| Name: | JONES TRUSTEE, TIMOTHY E | Owner ID: | 282576 |
| Mailing Address: | MICHELE D RUSHWORTH TRUSTEE 1309 COUNTRY CLUB DR CAMANO ISLAND, WA 98282 | % Ownership: | 100.0000000000% |
| | | Exemptions: | |
Taxes and Assessment Details
Values
| (+) Improvement Homesite Value: | + | $0 | |
| (+) Improvement Non-Homesite Value: | + | $518,311 | |
| (+) Land Homesite Value: | + | $0 | |
| (+) Land Non-Homesite Value: | + | $420,000 | |
| (+) Curr Use (HS): | + | $0 | $0 |
| (+) Curr Use (NHS): | + | $0 | $0 |
| | | -------------------------- | |
| (=) Market Value: | = | $938,311 | |
| (–) Productivity Loss: | – | $0 | |
| | | -------------------------- | |
| (=) Subtotal: | = | $938,311 | |
| (+) Senior Appraised Value: | + | $0 | |
| (+) Non-Senior Appraised Value: | + | $938,311 | |
| | | -------------------------- | |
| (=) Total Appraised Value: | = | $938,311 | |
| (–) Senior Exemption Loss: | – | $0 | |
| (–) Exemption Loss: | – | $0 | |
| | | -------------------------- | |
| (=) Taxable Value: | = | $938,311 | |
Taxing Jurisdiction
| Owner: | JONES TRUSTEE, TIMOTHY E | | |
| % Ownership: | 100.0000000000% | | |
| Total Value: | $938,311 | | |
| Tax Area: | 510 - APPRAISER-Stan/Cam Schl Dist, improved & 1 acre or less |
| CF | Conservation Futures | 0.0316035091 | $938,311 | $938,311 | $29.65 | | |
| EMS1 | Fire & Rescue Dist #1 Camano GEN (EMS) | 0.3677864386 | $938,311 | $938,311 | $345.10 | | |
| FIRE1 | Fire & Rescue Dist #1 Camano GEN | 1.2502910536 | $938,311 | $938,311 | $1,173.16 | | |
| FIRE1BOND | Fire & Rescue Dist #1 Camano BOND | 0.1570001679 | $938,311 | $938,311 | $147.31 | | |
| CE | County Current Expense | 0.3708482477 | $938,311 | $938,311 | $347.97 | | |
| CR | County Roads | 0.4584763726 | $938,311 | $938,311 | $430.19 | | |
| LCIB | Library Sno-Isle BOND (Camano Island) | 0.0396325772 | $938,311 | $938,311 | $37.19 | | |
| LIB | Library Sno-Isle GEN | 0.3153421757 | $938,311 | $938,311 | $295.89 | | |
| SCH205_401 | School 205-401 Enrichment | 1.2698420524 | $938,311 | $938,311 | $1,191.51 | | |
| SCH205BOND | School 205-401 BOND | 0.9396497583 | $938,311 | $938,311 | $881.68 | | |
| ST | State School | 1.3035497053 | $938,311 | $938,311 | $1,223.14 | | |
| ST2 | State School Part 2 | 0.8169543533 | $938,311 | $938,311 | $766.56 | | |
| | Total Tax Rate: | 7.3209764117 | | | | | |
| | | | | Taxes w/Current Exemptions: | $6,869.35 | | |
| | | | | Taxes w/o Exemptions: | $6,869.35 | | |
Improvement / Building
| Improvement #1: | RESIDENTIAL | State Code: | Y | 3242.0 sqft | Value: | $518,311 |
| Bathrooms: | 4 | Bedrooms: | 2 | | Ceiling: | DRYWALL PAINTED | Cooling: | HEAT PUMP/CONV/V | | Exterior Wall/Cover: | WOOD SIDING | Floor Covering: | HARDWOOD/CARP 20-80 | | Floor Structure: | WOOD W/SUBFLOOR | Foundation: | CONCRETE | | Interior Finish: | DRYWALL PAINT | Plumbing Fixture Cnt: | 16 | | Roof Slope: | 4" IN 12" | Roof Structure/Cover: | CJ ASPHALT |
|
| | Type | Description | Class CD | Sub Class CD | Year Built | Area |
| | BAS | BASE/MAIN FLOOR | 4 | 0 | 1994 | 1718.0 |
| | OP1 | OPEN PORCH SLAB | 4 | 0 | 1994 | 830.0 |
| | OP4 | OPEN PORCH W/CEILING-ROOF | 4 | 0 | 1994 | 48.0 |
| | AGR | ATTACHED GARAGE | 4 | 0 | 1994 | 440.0 |
| | OWP | OPEN WOOD PORCH W/STEPS | 4 | 0 | 1994 | 463.4 |
| | DWN | DOWNSTAIRS LIVING AREA | 4 | 0 | 1994 | 1524.0 |
Sketch
Property Image
Land
| 1 | MB | MEDIUM BANK | 0.0861 | 3750.00 | 75.00 | 0.00 | 1.00 | $420,000 | $0 |
Roll Value History
| 2026 | N/A | N/A | N/A | N/A | N/A |
| 2025 | $518,311 | $420,000 | $0 | $938,311 | $938,311 |
| 2024 | $524,252 | $420,000 | $0 | $944,252 | $944,252 |
| 2023 | $530,191 | $390,000 | $0 | $920,191 | $920,191 |
| 2022 | $484,148 | $380,000 | $0 | $864,148 | $864,148 |
| 2021 | $336,181 | $225,000 | $0 | $561,181 | $561,181 |
| 2020 | $328,077 | $200,000 | $0 | $528,077 | $528,077 |
| 2019 | $264,576 | $250,000 | $0 | $514,576 | $514,576 |
| 2018 | $265,371 | $230,000 | $0 | $495,371 | $495,371 |
| 2017 | $266,959 | $200,000 | $0 | $466,959 | $466,959 |
| 2016 | $270,138 | $155,000 | $0 | $425,138 | $425,138 |
| 2015 | $270,631 | $150,000 | $0 | $420,631 | $420,631 |
| 2014 | $259,774 | $150,000 | $0 | $409,774 | $409,774 |
| 2013 | $263,042 | $247,272 | $0 | $510,314 | $510,314 |
| 2012 | $266,312 | $247,272 | $0 | $513,584 | $513,584 |
| 2011 | $269,580 | $260,286 | $0 | $529,866 | $529,866 |
| 2010 | $277,760 | $260,286 | $0 | $538,046 | $538,046 |
| 2009 | $277,913 | $280,885 | $0 | $558,798 | $558,798 |
| 2008 | $248,400 | $291,600 | $0 | $540,000 | $540,000 |
| 2007 | $293,355 | $140,442 | $0 | $433,797 | $433,797 |
Deed and Sales History
| 1 | 10/06/2017 | QCD | Quit Claim Deed | JONES, TIMOTHY E | JONES TRUSTEE, TIMOTHY E | | | $0.00 | 31626 | 4432687 |
| 2 | 09/30/2014 | WD | Warranty Deed | GILLAM, THOMAS R | JONES, TIMOTHY E | | | $430,000.00 | 17117 | 4366788 |
| 3 | 06/14/2005 | WD | Warranty Deed | KISER, DAVID M | GILLAM, THOMAS R | | | $448,500.00 | 52844 | 4138013 |
| 4 | 05/01/1991 | WD | Warranty Deed | PRICE, MILES D | KISER, DAVID M | | | $47,500.00 | 11818 | 91007793 |
| 5 | 01/01/1900 | OTHER | Other - Misc. Documents | Unknown | PRICE, MILES D | | | $0.00 | 0 | 0 |
Payout Agreement
| No payout information available.. |