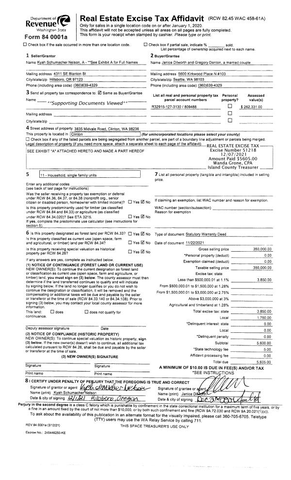
Property
Account |
| Property ID: | 210925 | Abbreviated Legal Description: | CCC 1 LOT 4 BLK 3 |
| Geographic ID: | S6250-00-03004-0 | Agent Code: | |
| Type: | Real | | |
| Tax Area: | 510 - APPRAISER-Stan/Cam Schl Dist, improved & 1 acre or less | Land Use Code | 11 |
| Open Space: | N | DFL | N |
| Historic Property: | N | Remodel Property: | N |
| Multi-Family Redevelopment: | N | | |
| Township: | | Section: | |
| Range: | |
Location |
| Address: | 1293 COUNTRY CLUB DR CAMANO ISLAND, WA 98282 | Mapsco: | |
| Neighborhood: | Cycle 5 | Map ID: | 931 |
| Neighborhood CD: | 5 |
Owner |
| Name: | BREDERECK, JOSEPH M | Owner ID: | 272597 |
| Mailing Address: | MARY K BRDERECK 1293 COUNTRY CLUB DR CAMANO ISLAND, WA 98282 | % Ownership: | 100.0000000000% |
| | | Exemptions: | |
Taxes and Assessment Details
Values
| (+) Improvement Homesite Value: | + | $0 | |
| (+) Improvement Non-Homesite Value: | + | $514,280 | |
| (+) Land Homesite Value: | + | $0 | |
| (+) Land Non-Homesite Value: | + | $420,000 | |
| (+) Curr Use (HS): | + | $0 | $0 |
| (+) Curr Use (NHS): | + | $0 | $0 |
| | | -------------------------- | |
| (=) Market Value: | = | $934,280 | |
| (–) Productivity Loss: | – | $0 | |
| | | -------------------------- | |
| (=) Subtotal: | = | $934,280 | |
| (+) Senior Appraised Value: | + | $0 | |
| (+) Non-Senior Appraised Value: | + | $934,280 | |
| | | -------------------------- | |
| (=) Total Appraised Value: | = | $934,280 | |
| (–) Senior Exemption Loss: | – | $0 | |
| (–) Exemption Loss: | – | $0 | |
| | | -------------------------- | |
| (=) Taxable Value: | = | $934,280 | |
Taxing Jurisdiction
| Owner: | BREDERECK, JOSEPH M | | |
| % Ownership: | 100.0000000000% | | |
| Total Value: | $934,280 | | |
| Tax Area: | 510 - APPRAISER-Stan/Cam Schl Dist, improved & 1 acre or less |
| CF | Conservation Futures | 0.0316035091 | $934,280 | $934,280 | $29.53 | | |
| EMS1 | Fire & Rescue Dist #1 Camano GEN (EMS) | 0.3677864386 | $934,280 | $934,280 | $343.62 | | |
| FIRE1 | Fire & Rescue Dist #1 Camano GEN | 1.2502910536 | $934,280 | $934,280 | $1,168.12 | | |
| FIRE1BOND | Fire & Rescue Dist #1 Camano BOND | 0.1570001679 | $934,280 | $934,280 | $146.68 | | |
| CE | County Current Expense | 0.3708482477 | $934,280 | $934,280 | $346.48 | | |
| CR | County Roads | 0.4584763726 | $934,280 | $934,280 | $428.35 | | |
| LCIB | Library Sno-Isle BOND (Camano Island) | 0.0396325772 | $934,280 | $934,280 | $37.03 | | |
| LIB | Library Sno-Isle GEN | 0.3153421757 | $934,280 | $934,280 | $294.62 | | |
| SCH205_401 | School 205-401 Enrichment | 1.2698420524 | $934,280 | $934,280 | $1,186.39 | | |
| SCH205BOND | School 205-401 BOND | 0.9396497583 | $934,280 | $934,280 | $877.90 | | |
| ST | State School | 1.3035497053 | $934,280 | $934,280 | $1,217.88 | | |
| ST2 | State School Part 2 | 0.8169543533 | $934,280 | $934,280 | $763.26 | | |
| | Total Tax Rate: | 7.3209764117 | | | | | |
| | | | | Taxes w/Current Exemptions: | $6,839.86 | | |
| | | | | Taxes w/o Exemptions: | $6,839.86 | | |
Improvement / Building
| Improvement #1: | RESIDENTIAL | State Code: | Y | 2724.0 sqft | Value: | $514,280 |
| Bathrooms: | 3 | Bedrooms: | 2 | | Ceiling: | DRYWALL PAINTED | Cooling: | HEAT PUMP/CONV/V | | Exterior Wall/Cover: | WOOD SIDING | Floor Covering: | HARDWOOD/CARP 60-40 | | Floor Structure: | WOOD W/SUBFLOOR | Foundation: | CONCRETE | | Interior Finish: | DRYWALL PAINT | Plumbing Fixture Cnt: | 14 | | Roof Slope: | 4" IN 12" | Roof Structure/Cover: | CJ ASPHALT |
|
| | Type | Description | Class CD | Sub Class CD | Year Built | Area |
| | BAS | BASE/MAIN FLOOR | 4 | 0 | 1991 | 1348.0 |
| | OP4 | OPEN PORCH W/CEILING-ROOF | 4 | 0 | 1991 | 63.0 |
| | AGR | ATTACHED GARAGE | 4 | 0 | 1991 | 558.0 |
| | OWP | OPEN WOOD PORCH W/STEPS | 4 | 0 | 1991 | 544.0 |
| | OWP | OPEN WOOD PORCH W/STEPS | 4 | 0 | 1991 | 112.0 |
| | OWR | OPEN WOOD PORCH W/STEPS/ROOF | 4 | 0 | 1991 | 136.0 |
| | DWN | DOWNSTAIRS LIVING AREA | 4 | 0 | 1991 | 1376.0 |
Sketch
Property Image
Land
| 1 | MB | MEDIUM BANK | 0.5300 | 23086.80 | 75.00 | 0.00 | 1.00 | $420,000 | $0 |
Roll Value History
| 2026 | N/A | N/A | N/A | N/A | N/A |
| 2025 | $514,280 | $420,000 | $0 | $934,280 | $934,280 |
| 2024 | $520,457 | $420,000 | $0 | $940,457 | $940,457 |
| 2023 | $526,634 | $390,000 | $0 | $916,634 | $916,634 |
| 2022 | $471,274 | $380,000 | $0 | $851,274 | $851,274 |
| 2021 | $378,846 | $225,000 | $0 | $603,846 | $603,846 |
| 2020 | $369,508 | $200,000 | $0 | $569,508 | $569,508 |
| 2019 | $282,891 | $250,000 | $0 | $532,891 | $532,891 |
| 2018 | $283,740 | $230,000 | $0 | $513,740 | $513,740 |
| 2017 | $285,444 | $200,000 | $0 | $485,444 | $485,444 |
| 2016 | $288,842 | $155,000 | $0 | $443,842 | $443,842 |
| 2015 | $254,147 | $150,000 | $0 | $404,147 | $404,147 |
| 2014 | $257,524 | $150,000 | $0 | $407,524 | $407,524 |
| 2013 | $260,903 | $247,272 | $0 | $508,175 | $508,175 |
| 2012 | $264,281 | $247,272 | $0 | $511,553 | $511,553 |
| 2011 | $267,659 | $260,286 | $0 | $527,945 | $527,945 |
| 2010 | $280,542 | $260,286 | $0 | $540,828 | $540,828 |
| 2009 | $291,239 | $280,885 | $0 | $572,124 | $572,124 |
| 2008 | $294,718 | $337,061 | $0 | $631,779 | $631,779 |
| 2007 | $298,230 | $140,442 | $0 | $438,672 | $438,672 |
Deed and Sales History
| 1 | 10/23/2015 | WD | Warranty Deed | STANTON, ROBERT L | BREDERECK, JOSEPH M | | | $466,000.00 | 21944 | 4388514 |
| 2 | 08/02/2004 | WD | Warranty Deed | PETROSKE, ANTHONY J | STANTON, ROBERT L | | | $399,999.00 | 43567 | 4108947 |
| 3 | 09/01/1986 | WD | Warranty Deed | HIRST, GORDON B | PETROSKE, ANTHONY J | | | $30,000.00 | 62676 | 86012128 |
| 4 | 01/01/1900 | OTHER | Other - Misc. Documents | Unknown | HIRST, GORDON B | | | $0.00 | 0 | 0 |
Payout Agreement
| No payout information available.. |