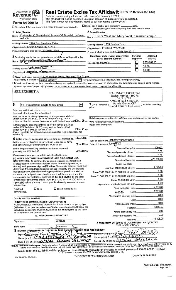
Property
Account |
| Property ID: | 211283 | Abbreviated Legal Description: | CCC 2 LOT 9 BLK 1 |
| Geographic ID: | S6250-02-01009-0 | Agent Code: | |
| Type: | Real | | |
| Tax Area: | 510 - APPRAISER-Stan/Cam Schl Dist, improved & 1 acre or less | Land Use Code | 11 |
| Open Space: | N | DFL | N |
| Historic Property: | N | Remodel Property: | N |
| Multi-Family Redevelopment: | N | | |
| Township: | | Section: | |
| Range: | |
Location |
| Address: | 1345 S EAST CAMANO DR CAMANO ISLAND, WA 98282 | Mapsco: | |
| Neighborhood: | Cycle 5 | Map ID: | 931 |
| Neighborhood CD: | 5 |
Owner |
| Name: | MOCKLER, RICHARD B | Owner ID: | 302854 |
| Mailing Address: | JOANN MOLVER 1345 S E CAMANO CAMANO ISLAND, WA 98282 | % Ownership: | 100.0000000000% |
| | | Exemptions: | |
Taxes and Assessment Details
Values
| (+) Improvement Homesite Value: | + | $350,724 | |
| (+) Improvement Non-Homesite Value: | + | $0 | |
| (+) Land Homesite Value: | + | $310,000 | |
| (+) Land Non-Homesite Value: | + | $0 | |
| (+) Curr Use (HS): | + | $0 | $0 |
| (+) Curr Use (NHS): | + | $0 | $0 |
| | | -------------------------- | |
| (=) Market Value: | = | $660,724 | |
| (–) Productivity Loss: | – | $0 | |
| | | -------------------------- | |
| (=) Subtotal: | = | $660,724 | |
| (+) Senior Appraised Value: | + | $0 | |
| (+) Non-Senior Appraised Value: | + | $660,724 | |
| | | -------------------------- | |
| (=) Total Appraised Value: | = | $660,724 | |
| (–) Senior Exemption Loss: | – | $0 | |
| (–) Exemption Loss: | – | $0 | |
| | | -------------------------- | |
| (=) Taxable Value: | = | $660,724 | |
Taxing Jurisdiction
| Owner: | MOCKLER, RICHARD B | | |
| % Ownership: | 100.0000000000% | | |
| Total Value: | $660,724 | | |
| Tax Area: | 510 - APPRAISER-Stan/Cam Schl Dist, improved & 1 acre or less |
| CF | Conservation Futures | 0.0316035091 | $660,724 | $660,724 | $20.88 | | |
| EMS1 | Fire & Rescue Dist #1 Camano GEN (EMS) | 0.3677864386 | $660,724 | $660,724 | $243.01 | | |
| FIRE1 | Fire & Rescue Dist #1 Camano GEN | 1.2502910536 | $660,724 | $660,724 | $826.10 | | |
| FIRE1BOND | Fire & Rescue Dist #1 Camano BOND | 0.1570001679 | $660,724 | $660,724 | $103.73 | | |
| CE | County Current Expense | 0.3708482477 | $660,724 | $660,724 | $245.03 | | |
| CR | County Roads | 0.4584763726 | $660,724 | $660,724 | $302.93 | | |
| LCIB | Library Sno-Isle BOND (Camano Island) | 0.0396325772 | $660,724 | $660,724 | $26.19 | | |
| LIB | Library Sno-Isle GEN | 0.3153421757 | $660,724 | $660,724 | $208.35 | | |
| SCH205_401 | School 205-401 Enrichment | 1.2698420524 | $660,724 | $660,724 | $839.02 | | |
| SCH205BOND | School 205-401 BOND | 0.9396497583 | $660,724 | $660,724 | $620.85 | | |
| ST | State School | 1.3035497053 | $660,724 | $660,724 | $861.29 | | |
| ST2 | State School Part 2 | 0.8169543533 | $660,724 | $660,724 | $539.78 | | |
| | Total Tax Rate: | 7.3209764117 | | | | | |
| | | | | Taxes w/Current Exemptions: | $4,837.16 | | |
| | | | | Taxes w/o Exemptions: | $4,837.16 | | |
Improvement / Building
| Improvement #1: | RESIDENTIAL | State Code: | Y | 2619.0 sqft | Value: | $350,724 |
| Bathrooms: | 3 | Bedrooms: | 3 | | Ceiling: | DRY WALL SPRAYED | Exterior Wall/Cover: | VINYL | | Floor Covering: | CARPET/VINYL 60-40 | Floor Structure: | WOOD W/SUBFLOOR | | Foundation: | CONCRETE | Heating: | FHA GAS | | Interior Finish: | DRYWALL PAINT | Plumbing Fixture Cnt: | 12 | | Roof Slope: | 6" IN 12" | Roof Structure/Cover: | CJ ASPHALT |
|
| | Type | Description | Class CD | Sub Class CD | Year Built | Area |
| | BAS | BASE/MAIN FLOOR | 3 | 0 | 2001 | 1479.0 |
| | DWN | DOWNSTAIRS LIVING AREA | 3 | 0 | 2001 | 1140.0 |
| | AGR | ATTACHED GARAGE | 3 | 0 | 2001 | 400.0 |
| | OWP | OPEN WOOD PORCH W/STEPS | 3 | 0 | 2001 | 360.0 |
Sketch
Property Image
Land
| 1 | 13 | SQ (06001-08000) | 0.0000 | 0.00 | 0.00 | 0.00 | 1.00 | $310,000 | $0 |
Roll Value History
| 2026 | N/A | N/A | N/A | N/A | N/A |
| 2025 | $350,724 | $310,000 | $0 | $660,724 | $660,724 |
| 2024 | $354,937 | $280,000 | $0 | $634,937 | $634,937 |
| 2023 | $359,150 | $275,000 | $0 | $634,150 | $634,150 |
| 2022 | $329,035 | $250,000 | $0 | $579,035 | $579,035 |
| 2021 | $289,414 | $180,000 | $0 | $469,414 | $469,414 |
| 2020 | $267,068 | $150,000 | $0 | $417,068 | $417,068 |
| 2019 | $209,579 | $200,000 | $0 | $409,579 | $163,832 |
| 2018 | $210,193 | $170,000 | $0 | $380,193 | $380,193 |
| 2017 | $211,422 | $125,000 | $0 | $336,422 | $336,422 |
| 2016 | $213,881 | $90,000 | $0 | $303,881 | $303,881 |
| 2015 | $212,160 | $80,000 | $0 | $292,160 | $292,160 |
| 2014 | $214,657 | $80,000 | $0 | $294,657 | $294,657 |
| 2013 | $217,153 | $80,000 | $0 | $297,153 | $297,153 |
| 2012 | $219,649 | $86,304 | $0 | $305,953 | $305,953 |
| 2011 | $222,144 | $107,880 | $0 | $330,024 | $330,024 |
| 2010 | $232,113 | $107,880 | $0 | $339,993 | $339,993 |
| 2009 | $241,861 | $130,000 | $0 | $371,861 | $371,861 |
| 2008 | $241,901 | $140,000 | $0 | $381,901 | $381,901 |
| 2007 | $244,502 | $125,000 | $0 | $369,502 | $369,502 |
Deed and Sales History
| 1 | 07/20/2023 | WD | Warranty Deed | MOLVER, JOANN | MOCKLER, RICHARD B | | | $314,900.00 | 57398 | 4562575 |
| 2 | 02/02/2022 | WD | Warranty Deed | MOCKLER, RICHARD M | MOCKLER, RICHARD B | | | $250,000.00 | 51855 | 4539115 |
| 3 | 12/28/2020 | WD | Warranty Deed | MULHALL, EVERETT F | MOCKLER, RICHARD M | | | $500,000.00 | 46334 | 4506584 |
| 4 | 09/28/2000 | WD | Warranty Deed | SUNDBERG HOMES, | MULHALL, EVERETT F | | | $172,500.00 | 3812 | 20017523 |
| 5 | 03/09/2000 | WD | Warranty Deed | MCHUTCHISON, JOHN | SUNDBERG HOMES, | | | $30,000.00 | 1018 | 20005003 |
| 6 | 10/01/1978 | OTHER | Other - Misc. Documents | Unknown | MCHUTCHISON, JOHN | | | $9,500.00 | 85196 | 341726 |
Payout Agreement
| No payout information available.. |