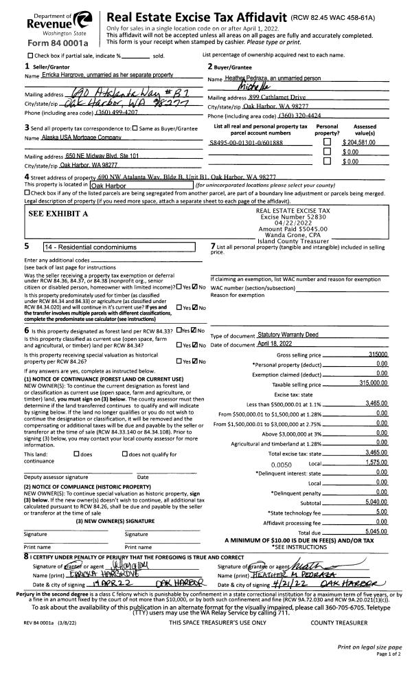
Property
Account |
| Property ID: | 211327 | Abbreviated Legal Description: | CCC 2 LOT 13 BLK 1 |
| Geographic ID: | S6250-02-01013-0 | Agent Code: | |
| Type: | Real | | |
| Tax Area: | 510 - APPRAISER-Stan/Cam Schl Dist, improved & 1 acre or less | Land Use Code | 11 |
| Open Space: | N | DFL | N |
| Historic Property: | N | Remodel Property: | N |
| Multi-Family Redevelopment: | N | | |
| Township: | | Section: | |
| Range: | |
Location |
| Address: | | Mapsco: | |
| Neighborhood: | Cycle 5 | Map ID: | 931 |
| Neighborhood CD: | 5 |
Owner |
| Name: | FREDERICKSEN, PAMELA F | Owner ID: | 260717 |
| Mailing Address: | 272 DR JOHN'S PLACE CAMANO ISLAND, WA 98282 | % Ownership: | 100.0000000000% |
| | | Exemptions: | |
Taxes and Assessment Details
Values
| (+) Improvement Homesite Value: | + | $0 | |
| (+) Improvement Non-Homesite Value: | + | $445,738 | |
| (+) Land Homesite Value: | + | $0 | |
| (+) Land Non-Homesite Value: | + | $310,000 | |
| (+) Curr Use (HS): | + | $0 | $0 |
| (+) Curr Use (NHS): | + | $0 | $0 |
| | | -------------------------- | |
| (=) Market Value: | = | $755,738 | |
| (–) Productivity Loss: | – | $0 | |
| | | -------------------------- | |
| (=) Subtotal: | = | $755,738 | |
| (+) Senior Appraised Value: | + | $0 | |
| (+) Non-Senior Appraised Value: | + | $755,738 | |
| | | -------------------------- | |
| (=) Total Appraised Value: | = | $755,738 | |
| (–) Senior Exemption Loss: | – | $0 | |
| (–) Exemption Loss: | – | $0 | |
| | | -------------------------- | |
| (=) Taxable Value: | = | $755,738 | |
Taxing Jurisdiction
| Owner: | FREDERICKSEN, PAMELA F | | |
| % Ownership: | 100.0000000000% | | |
| Total Value: | $755,738 | | |
| Tax Area: | 510 - APPRAISER-Stan/Cam Schl Dist, improved & 1 acre or less |
| CF | Conservation Futures | 0.0316035091 | $755,738 | $755,738 | $23.88 | | |
| EMS1 | Fire & Rescue Dist #1 Camano GEN (EMS) | 0.3677864386 | $755,738 | $755,738 | $277.95 | | |
| FIRE1 | Fire & Rescue Dist #1 Camano GEN | 1.2502910536 | $755,738 | $755,738 | $944.89 | | |
| FIRE1BOND | Fire & Rescue Dist #1 Camano BOND | 0.1570001679 | $755,738 | $755,738 | $118.65 | | |
| CE | County Current Expense | 0.3708482477 | $755,738 | $755,738 | $280.26 | | |
| CR | County Roads | 0.4584763726 | $755,738 | $755,738 | $346.49 | | |
| LCIB | Library Sno-Isle BOND (Camano Island) | 0.0396325772 | $755,738 | $755,738 | $29.95 | | |
| LIB | Library Sno-Isle GEN | 0.3153421757 | $755,738 | $755,738 | $238.32 | | |
| SCH205_401 | School 205-401 Enrichment | 1.2698420524 | $755,738 | $755,738 | $959.67 | | |
| SCH205BOND | School 205-401 BOND | 0.9396497583 | $755,738 | $755,738 | $710.13 | | |
| ST | State School | 1.3035497053 | $755,738 | $755,738 | $985.14 | | |
| ST2 | State School Part 2 | 0.8169543533 | $755,738 | $755,738 | $617.40 | | |
| | Total Tax Rate: | 7.3209764117 | | | | | |
| | | | | Taxes w/Current Exemptions: | $5,532.73 | | |
| | | | | Taxes w/o Exemptions: | $5,532.73 | | |
Improvement / Building
| Improvement #1: | RESIDENTIAL | State Code: | Y | 2430.0 sqft | Value: | $445,738 |
| Bathrooms: | 2.5 | Bedrooms: | 3 | | Ceiling: | DRYWALL PAINTED | Cooling: | HEAT PUMP/CONV/V | | Exterior Wall/Cover: | CEMENT FIBER | Floor Covering: | HARDWOOD/CARP 60-40 | | Floor Structure: | WOOD W/SUBFLOOR | Foundation: | CONCRETE | | Interior Finish: | DRYWALL PAINT | Plumbing Fixture Cnt: | 12 | | Roof Slope: | 4" IN 12" | Roof Structure/Cover: | CJ ASPHALT |
|
| | Type | Description | Class CD | Sub Class CD | Year Built | Area |
| | BAS | BASE/MAIN FLOOR | 4 | 0 | 2003 | 1260.0 |
| | OP1 | OPEN PORCH SLAB | 4 | 0 | 2003 | 100.0 |
| | OP4 | OPEN PORCH W/CEILING-ROOF | 4 | 0 | 2003 | 35.0 |
| | AGR | ATTACHED GARAGE | 4 | 0 | 2003 | 576.0 |
| | OWP | OPEN WOOD PORCH W/STEPS | 4 | 0 | 2003 | 242.0 |
| | DWN | DOWNSTAIRS LIVING AREA | 4 | 0 | 2003 | 1170.0 |
Sketch
Property Image
Land
| 1 | 14 | SQ (08001-12000) | 0.0000 | 0.00 | 0.00 | 0.00 | 1.00 | $310,000 | $0 |
Roll Value History
| 2026 | N/A | N/A | N/A | N/A | N/A |
| 2025 | $445,738 | $310,000 | $0 | $755,738 | $755,738 |
| 2024 | $450,846 | $280,000 | $0 | $730,846 | $730,846 |
| 2023 | $455,956 | $275,000 | $0 | $730,956 | $730,956 |
| 2022 | $416,340 | $250,000 | $0 | $666,340 | $666,340 |
| 2021 | $338,261 | $180,000 | $0 | $518,261 | $518,261 |
| 2020 | $329,820 | $150,000 | $0 | $479,820 | $479,820 |
| 2019 | $246,091 | $200,000 | $0 | $446,091 | $446,091 |
| 2018 | $246,797 | $170,000 | $0 | $416,797 | $416,797 |
| 2017 | $248,207 | $125,000 | $0 | $373,207 | $373,207 |
| 2016 | $251,028 | $90,000 | $0 | $341,028 | $341,028 |
| 2015 | $248,207 | $60,000 | $0 | $308,207 | $308,207 |
| 2014 | $251,028 | $60,000 | $0 | $311,028 | $311,028 |
| 2013 | $253,847 | $60,000 | $0 | $313,847 | $313,847 |
| 2012 | $256,668 | $60,000 | $0 | $316,668 | $316,668 |
| 2011 | $259,489 | $75,000 | $0 | $334,489 | $334,489 |
| 2010 | $263,051 | $75,000 | $0 | $338,051 | $338,051 |
| 2009 | $279,357 | $100,000 | $0 | $379,357 | $379,357 |
| 2008 | $279,699 | $118,000 | $0 | $397,699 | $397,699 |
| 2007 | $282,847 | $118,000 | $0 | $400,847 | $400,847 |
Deed and Sales History
| 1 | 01/30/2013 | CPADC | Comm Prop Agmnt & Death Cert | FREDERICKSEN, CHRISTIAN M | FREDERICKSEN, PAMELA F | | | | 82612 | |
| 2 | 11/10/2003 | WD | Warranty Deed | INC, NW BUILDERS | FREDERICKSEN, CHRISTIAN M | | | $279,207.00 | 35235 | 4083541 |
| 3 | 05/14/2003 | WD | Warranty Deed | THOMAS, JOSEPH RUIZ | INC, NW BUILDERS | | | $49,777.00 | 32033 | 4059049 |
| 4 | 01/24/2001 | PRD | Personal Representatives Deed | WEBBER, DAVID D | THOMAS, JOSEPH RUIZ | | | $29,000.00 | 10302 | 20024439 |
| 5 | 01/25/1999 | WD | Warranty Deed | BAKKEN, OLE A | WEBBER, DAVID D | | | $38,000.00 | 90386 | 99002450 |
| 6 | 10/01/1994 | WD | Warranty Deed | YI, SUK B | BAKKEN, OLE A | | | $42,000.00 | 44202 | 94021763 |
| 7 | 05/01/1990 | WD | Warranty Deed | BEMIS, RICHARD L | YI, SUK B | | | $28,000.00 | 2885 | 90009360 |
| 8 | 01/01/1900 | OTHER | Other - Misc. Documents | Unknown | BEMIS, RICHARD L | | | $0.00 | 0 | 0 |
Payout Agreement
| No payout information available.. |