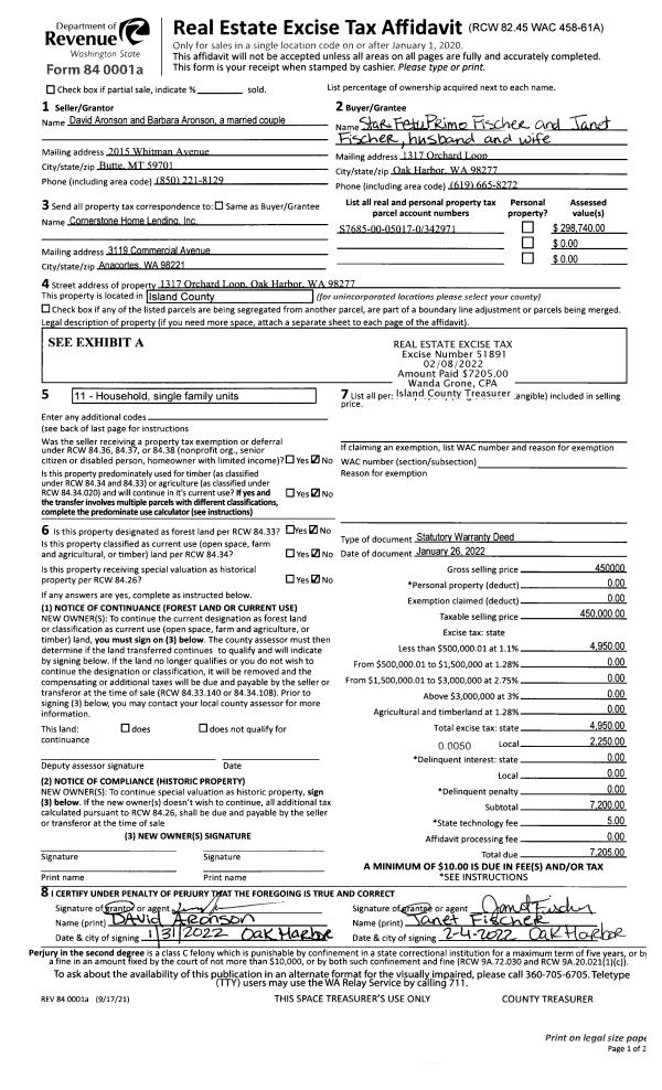
Property
Account |
| Property ID: | 211416 | Abbreviated Legal Description: | CCC 2 LOT 22 BLK 1 |
| Geographic ID: | S6250-02-01022-0 | Agent Code: | |
| Type: | Real | | |
| Tax Area: | 510 - APPRAISER-Stan/Cam Schl Dist, improved & 1 acre or less | Land Use Code | 11 |
| Open Space: | N | DFL | N |
| Historic Property: | N | Remodel Property: | N |
| Multi-Family Redevelopment: | N | | |
| Township: | | Section: | |
| Range: | |
Location |
| Address: | 1358 COUNTRY CLUB DR CAMANO ISLAND, WA 98282 | Mapsco: | |
| Neighborhood: | Cycle 5 | Map ID: | 931 |
| Neighborhood CD: | 5 |
Owner |
| Name: | LEACH, JONATHAN | Owner ID: | 293786 |
| Mailing Address: | 1358 COUNTRY CLUB DR CAMANO ISLAND, WA 98282 | % Ownership: | 100.0000000000% |
| | | Exemptions: | |
Taxes and Assessment Details
Values
| (+) Improvement Homesite Value: | + | $0 | |
| (+) Improvement Non-Homesite Value: | + | $187,989 | |
| (+) Land Homesite Value: | + | $0 | |
| (+) Land Non-Homesite Value: | + | $310,000 | |
| (+) Curr Use (HS): | + | $0 | $0 |
| (+) Curr Use (NHS): | + | $0 | $0 |
| | | -------------------------- | |
| (=) Market Value: | = | $497,989 | |
| (–) Productivity Loss: | – | $0 | |
| | | -------------------------- | |
| (=) Subtotal: | = | $497,989 | |
| (+) Senior Appraised Value: | + | $0 | |
| (+) Non-Senior Appraised Value: | + | $497,989 | |
| | | -------------------------- | |
| (=) Total Appraised Value: | = | $497,989 | |
| (–) Senior Exemption Loss: | – | $0 | |
| (–) Exemption Loss: | – | $0 | |
| | | -------------------------- | |
| (=) Taxable Value: | = | $497,989 | |
Taxing Jurisdiction
| Owner: | LEACH, JONATHAN | | |
| % Ownership: | 100.0000000000% | | |
| Total Value: | $497,989 | | |
| Tax Area: | 510 - APPRAISER-Stan/Cam Schl Dist, improved & 1 acre or less |
| CF | Conservation Futures | 0.0316035091 | $497,989 | $497,989 | $15.74 | | |
| EMS1 | Fire & Rescue Dist #1 Camano GEN (EMS) | 0.3677864386 | $497,989 | $497,989 | $183.15 | | |
| FIRE1 | Fire & Rescue Dist #1 Camano GEN | 1.2502910536 | $497,989 | $497,989 | $622.63 | | |
| FIRE1BOND | Fire & Rescue Dist #1 Camano BOND | 0.1570001679 | $497,989 | $497,989 | $78.18 | | |
| CE | County Current Expense | 0.3708482477 | $497,989 | $497,989 | $184.68 | | |
| CR | County Roads | 0.4584763726 | $497,989 | $497,989 | $228.32 | | |
| LCIB | Library Sno-Isle BOND (Camano Island) | 0.0396325772 | $497,989 | $497,989 | $19.74 | | |
| LIB | Library Sno-Isle GEN | 0.3153421757 | $497,989 | $497,989 | $157.04 | | |
| SCH205_401 | School 205-401 Enrichment | 1.2698420524 | $497,989 | $497,989 | $632.37 | | |
| SCH205BOND | School 205-401 BOND | 0.9396497583 | $497,989 | $497,989 | $467.94 | | |
| ST | State School | 1.3035497053 | $497,989 | $497,989 | $649.15 | | |
| ST2 | State School Part 2 | 0.8169543533 | $497,989 | $497,989 | $406.83 | | |
| | Total Tax Rate: | 7.3209764117 | | | | | |
| | | | | Taxes w/Current Exemptions: | $3,645.77 | | |
| | | | | Taxes w/o Exemptions: | $3,645.77 | | |
Improvement / Building
| Improvement #1: | RESIDENTIAL | State Code: | Y | 1240.0 sqft | Value: | $187,989 |
| Bathrooms: | 1 | Bedrooms: | 2 | | Ceiling: | TONGUE & GROOVE | Exterior Wall/Cover: | WOOD SIDING | | Floor Covering: | CARPET 100% | Floor Structure: | WOOD W/SUBFLOOR | | Foundation: | CONCRETE | Heating: | BASEBOARD ELECTRIC | | Interior Finish: | DRYWALL PAINT | Plumbing Fixture Cnt: | 6 | | Roof Slope: | 4" IN 12" | Roof Structure/Cover: | CJ ASPHALT |
|
| | Type | Description | Class CD | Sub Class CD | Year Built | Area |
| | BAS | BASE/MAIN FLOOR | 3 | 0 | 1958 | 1240.0 |
| | OP2 | OPEN PORCH W/STEPS | 3 | 0 | 1958 | 160.0 |
| | OCP | OPEN CARPORT | 3 | 0 | 1958 | 465.0 |
| | UTY | STORAGE/UTILITY | 3 | 0 | 1958 | 48.0 |
| | OWP | OPEN WOOD PORCH W/STEPS | 3 | 0 | 1958 | 342.9 |
| | OWP | OPEN WOOD PORCH W/STEPS | 3 | 0 | 1958 | 96.0 |
Sketch
Property Image
Land
| 1 | 14 | SQ (08001-12000) | 0.0000 | 0.00 | 0.00 | 0.00 | 1.00 | $310,000 | $0 |
Roll Value History
| 2026 | N/A | N/A | N/A | N/A | N/A |
| 2025 | $187,989 | $310,000 | $0 | $497,989 | $497,989 |
| 2024 | $194,877 | $280,000 | $0 | $474,877 | $474,877 |
| 2023 | $197,732 | $275,000 | $0 | $472,732 | $472,732 |
| 2022 | $181,631 | $250,000 | $0 | $431,631 | $431,631 |
| 2021 | $160,191 | $180,000 | $0 | $340,191 | $340,191 |
| 2020 | $135,757 | $150,000 | $0 | $285,757 | $285,757 |
| 2019 | $98,843 | $200,000 | $0 | $298,843 | $298,843 |
| 2018 | $99,220 | $170,000 | $0 | $269,220 | $269,220 |
| 2017 | $99,971 | $125,000 | $0 | $224,971 | $224,971 |
| 2016 | $101,485 | $90,000 | $0 | $191,485 | $191,485 |
| 2015 | $87,802 | $50,000 | $0 | $137,802 | $137,802 |
| 2014 | $89,318 | $50,000 | $0 | $139,318 | $139,318 |
| 2013 | $90,833 | $50,000 | $0 | $140,833 | $140,833 |
| 2012 | $92,348 | $56,000 | $0 | $148,348 | $148,348 |
| 2011 | $93,863 | $70,000 | $0 | $163,863 | $163,863 |
| 2010 | $104,332 | $70,000 | $0 | $174,332 | $174,332 |
| 2009 | $93,268 | $100,000 | $0 | $193,268 | $193,268 |
| 2008 | $95,012 | $118,000 | $0 | $213,012 | $213,012 |
| 2007 | $96,780 | $118,000 | $0 | $214,780 | $214,780 |
Deed and Sales History
| 1 | 03/17/2020 | WD | Warranty Deed | BELL, DAMON AND ALEXIS | LEACH, JONATHAN | | | $360,000.00 | 42427 | 4483330 |
| 2 | 12/09/1998 | WD | Warranty Deed | BELL, DAMON AND ALEXIS | BELL, DAMON AND ALEXIS | | | $0.00 | 85043 | 98027609 |
| 3 | 09/09/1998 | WD | Warranty Deed | RYCHARD, ROBERT W | BELL, DAMON AND ALEXIS | | | $124,950.00 | 83652 | 98019080 |
| 4 | 04/01/1991 | WD | Warranty Deed | DURRIGAN, ANN M | RYCHARD, ROBERT W | | | $113,000.00 | 11353 | 91005792 |
| 5 | 04/01/1989 | WD | Warranty Deed | O'NEILL, RAGNA M | DURRIGAN, ANN M | | | $57,500.00 | 91448 | 89005074 |
| 6 | 04/01/1982 | REC | Real Estate Contract | O'NEILL, JAMES A | O'NEILL, RAGNA M | | | $1.00 | 59432 | 5852 |
| 7 | 01/01/1900 | OTHER | Other - Misc. Documents | Unknown | O'NEILL, JAMES A | | | $0.00 | 0 | 0 |
Payout Agreement
| No payout information available.. |