Property
Account |
| Property ID: | 211470 | Abbreviated Legal Description: | CCC 2 LOT 4 BLK 2 |
| Geographic ID: | S6250-02-02004-0 | Agent Code: | |
| Type: | Real | | |
| Tax Area: | 510 - APPRAISER-Stan/Cam Schl Dist, improved & 1 acre or less | Land Use Code | 11 |
| Open Space: | N | DFL | N |
| Historic Property: | N | Remodel Property: | N |
| Multi-Family Redevelopment: | N | | |
| Township: | | Section: | |
| Range: | |
Location |
| Address: | 1351 COUNTRY CLUB DR CAMANO ISLAND, WA 98282 | Mapsco: | |
| Neighborhood: | Cycle 5 | Map ID: | 932 |
| Neighborhood CD: | 5 |
Owner |
| Name: | TABONE, JOHN C | Owner ID: | 292278 |
| Mailing Address: | GAIL OLSON TABONE 7439 NE 123RD PL KIRKLAND, WA 98034 | % Ownership: | 100.0000000000% |
| | | Exemptions: | |
Taxes and Assessment Details
Values
| (+) Improvement Homesite Value: | + | $0 | |
| (+) Improvement Non-Homesite Value: | + | $289,842 | |
| (+) Land Homesite Value: | + | $0 | |
| (+) Land Non-Homesite Value: | + | $420,000 | |
| (+) Curr Use (HS): | + | $0 | $0 |
| (+) Curr Use (NHS): | + | $0 | $0 |
| | | -------------------------- | |
| (=) Market Value: | = | $709,842 | |
| (–) Productivity Loss: | – | $0 | |
| | | -------------------------- | |
| (=) Subtotal: | = | $709,842 | |
| (+) Senior Appraised Value: | + | $0 | |
| (+) Non-Senior Appraised Value: | + | $709,842 | |
| | | -------------------------- | |
| (=) Total Appraised Value: | = | $709,842 | |
| (–) Senior Exemption Loss: | – | $0 | |
| (–) Exemption Loss: | – | $0 | |
| | | -------------------------- | |
| (=) Taxable Value: | = | $709,842 | |
Taxing Jurisdiction
| Owner: | TABONE, JOHN C | | |
| % Ownership: | 100.0000000000% | | |
| Total Value: | $709,842 | | |
| Tax Area: | 510 - APPRAISER-Stan/Cam Schl Dist, improved & 1 acre or less |
| CF | Conservation Futures | 0.0316035091 | $709,842 | $709,842 | $22.43 | | |
| EMS1 | Fire & Rescue Dist #1 Camano GEN (EMS) | 0.3677864386 | $709,842 | $709,842 | $261.07 | | |
| FIRE1 | Fire & Rescue Dist #1 Camano GEN | 1.2502910536 | $709,842 | $709,842 | $887.51 | | |
| FIRE1BOND | Fire & Rescue Dist #1 Camano BOND | 0.1570001679 | $709,842 | $709,842 | $111.45 | | |
| CE | County Current Expense | 0.3708482477 | $709,842 | $709,842 | $263.24 | | |
| CR | County Roads | 0.4584763726 | $709,842 | $709,842 | $325.45 | | |
| LCIB | Library Sno-Isle BOND (Camano Island) | 0.0396325772 | $709,842 | $709,842 | $28.13 | | |
| LIB | Library Sno-Isle GEN | 0.3153421757 | $709,842 | $709,842 | $223.84 | | |
| SCH205_401 | School 205-401 Enrichment | 1.2698420524 | $709,842 | $709,842 | $901.39 | | |
| SCH205BOND | School 205-401 BOND | 0.9396497583 | $709,842 | $709,842 | $667.00 | | |
| ST | State School | 1.3035497053 | $709,842 | $709,842 | $925.31 | | |
| ST2 | State School Part 2 | 0.8169543533 | $709,842 | $709,842 | $579.91 | | |
| | Total Tax Rate: | 7.3209764117 | | | | | |
| | | | | Taxes w/Current Exemptions: | $5,196.73 | | |
| | | | | Taxes w/o Exemptions: | $5,196.73 | | |
Improvement / Building
| Improvement #1: | RESIDENTIAL | State Code: | Y | 2102.0 sqft | Value: | $289,842 |
| Bathrooms: | 2.5 | Bedrooms: | 3 | | Ceiling: | DRYWALL PAINTED | Exterior Wall/Cover: | PLY/HARDBOARD T-111 | | Floor Covering: | HARDWOOD/CARP 80-20 | Floor Structure: | WOOD W/SUBFLOOR | | Foundation: | CONCRETE | Heating: | FHA ELECTRIC | | Interior Finish: | DRYWALL PAINT | Plumbing Fixture Cnt: | 9 | | Roof Slope: | 5" IN 12" | Roof Structure/Cover: | CJ ASPHALT |
|
| | Type | Description | Class CD | Sub Class CD | Year Built | Area |
| | BAS | BASE/MAIN FLOOR | 3 | 0 | 1977 | 1051.0 |
| | DWN | DOWNSTAIRS LIVING AREA | 3 | 0 | 1977 | 1051.0 |
| | OP4 | OPEN PORCH W/CEILING-ROOF | 3 | 0 | 1977 | 35.0 |
| | AGR | ATTACHED GARAGE | 3 | 0 | 1977 | 552.0 |
| | OWP | OPEN WOOD PORCH W/STEPS | 3 | 0 | 1977 | 195.0 |
| | OWR | OPEN WOOD PORCH W/STEPS/ROOF | 3 | 0 | 1977 | 126.0 |
Sketch
Property Image
Land
| 1 | MB | MEDIUM BANK | 0.0803 | 3500.00 | 70.00 | 0.00 | 1.00 | $420,000 | $0 |
Roll Value History
| 2026 | N/A | N/A | N/A | N/A | N/A |
| 2025 | $289,842 | $420,000 | $0 | $709,842 | $709,842 |
| 2024 | $293,593 | $420,000 | $0 | $713,593 | $713,593 |
| 2023 | $289,842 | $390,000 | $0 | $679,842 | $679,842 |
| 2022 | $265,859 | $380,000 | $0 | $645,859 | $645,859 |
| 2021 | $234,130 | $225,000 | $0 | $459,130 | $459,130 |
| 2020 | $228,798 | $200,000 | $0 | $428,798 | $428,798 |
| 2019 | $128,133 | $250,000 | $0 | $378,133 | $378,133 |
| 2018 | $128,615 | $230,000 | $0 | $358,615 | $358,615 |
| 2017 | $129,581 | $200,000 | $0 | $329,581 | $329,581 |
| 2016 | $131,517 | $155,000 | $0 | $286,517 | $286,517 |
| 2015 | $129,952 | $150,000 | $0 | $279,952 | $279,952 |
| 2014 | $131,996 | $150,000 | $0 | $281,996 | $281,996 |
| 2013 | $134,039 | $230,787 | $0 | $364,826 | $364,826 |
| 2012 | $136,082 | $230,787 | $0 | $366,869 | $366,869 |
| 2011 | $138,126 | $242,934 | $0 | $381,060 | $381,060 |
| 2010 | $149,566 | $242,934 | $0 | $392,500 | $392,500 |
| 2009 | $154,454 | $262,159 | $0 | $416,613 | $416,613 |
| 2008 | $156,555 | $314,590 | $0 | $471,145 | $471,145 |
| 2007 | $158,655 | $131,079 | $0 | $289,734 | $289,734 |
Deed and Sales History
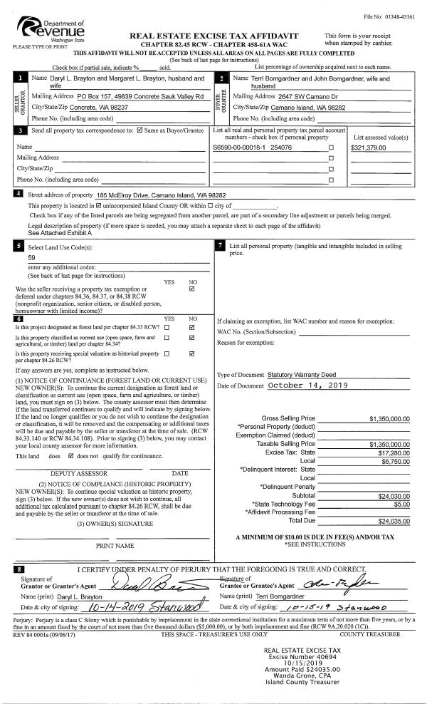
| 1 | 10/14/2019 | WD | Warranty Deed | SIMURDAK, LARISA M | TABONE, JOHN C | | | $485,000.00 | 40762 | 4473732 |
| 2 | 01/27/2017 | WD | Warranty Deed | CLISE, RICHARD H | SIMURDAK, LARISA M | | | $295,000.00 | 27898 | 4416115 |
| 3 | 07/16/2013 | WD | Warranty Deed | BOLLINGER, BYRON | CLISE, RICHARD H | | | $237,500.00 | 12089 | 4344489 |
Payout Agreement
| No payout information available.. |