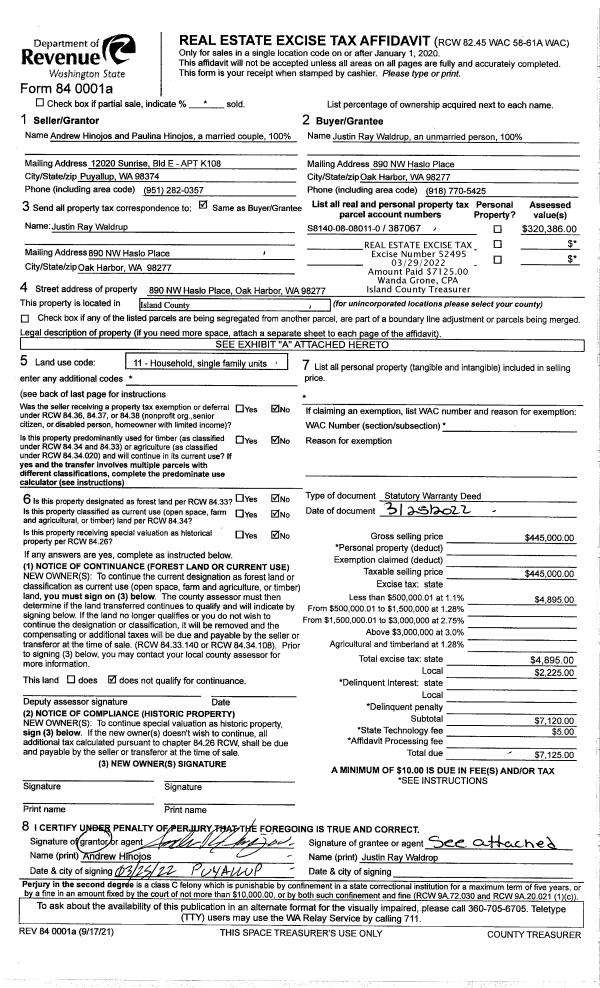
Property
Account |
| Property ID: | 211620 | Abbreviated Legal Description: | CCC 2 NW 1/2 OF LOT 4 & SE 1/2 OF LOT 5 BLK 3 |
| Geographic ID: | S6250-02-03004-0 | Agent Code: | |
| Type: | Real | | |
| Tax Area: | 510 - APPRAISER-Stan/Cam Schl Dist, improved & 1 acre or less | Land Use Code | 11 |
| Open Space: | N | DFL | N |
| Historic Property: | N | Remodel Property: | N |
| Multi-Family Redevelopment: | N | | |
| Township: | | Section: | |
| Range: | |
Location |
| Address: | 1320 BEACH DR CAMANO ISLAND, WA 98282 | Mapsco: | |
| Neighborhood: | Cycle 5 | Map ID: | 932 |
| Neighborhood CD: | 5 |
Owner |
| Name: | LIONE, MARK A M | Owner ID: | 316283 |
| Mailing Address: | JANETTE LIONE 4902 PAISLEY PL ANACORTES, WA 98221 | % Ownership: | 100.0000000000% |
| | | Exemptions: | |
Taxes and Assessment Details
Values
| (+) Improvement Homesite Value: | + | $0 | |
| (+) Improvement Non-Homesite Value: | + | $344,868 | |
| (+) Land Homesite Value: | + | $0 | |
| (+) Land Non-Homesite Value: | + | $390,000 | |
| (+) Curr Use (HS): | + | $0 | $0 |
| (+) Curr Use (NHS): | + | $0 | $0 |
| | | -------------------------- | |
| (=) Market Value: | = | $734,868 | |
| (–) Productivity Loss: | – | $0 | |
| | | -------------------------- | |
| (=) Subtotal: | = | $734,868 | |
| (+) Senior Appraised Value: | + | $0 | |
| (+) Non-Senior Appraised Value: | + | $734,868 | |
| | | -------------------------- | |
| (=) Total Appraised Value: | = | $734,868 | |
| (–) Senior Exemption Loss: | – | $0 | |
| (–) Exemption Loss: | – | $0 | |
| | | -------------------------- | |
| (=) Taxable Value: | = | $734,868 | |
Taxing Jurisdiction
| Owner: | LIONE, MARK A M | | |
| % Ownership: | 100.0000000000% | | |
| Total Value: | $734,868 | | |
| Tax Area: | 510 - APPRAISER-Stan/Cam Schl Dist, improved & 1 acre or less |
| CF | Conservation Futures | 0.0316035091 | $734,868 | $734,868 | $23.22 | | |
| EMS1 | Fire & Rescue Dist #1 Camano GEN (EMS) | 0.3677864386 | $734,868 | $734,868 | $270.27 | | |
| FIRE1 | Fire & Rescue Dist #1 Camano GEN | 1.2502910536 | $734,868 | $734,868 | $918.80 | | |
| FIRE1BOND | Fire & Rescue Dist #1 Camano BOND | 0.1570001679 | $734,868 | $734,868 | $115.37 | | |
| CE | County Current Expense | 0.3708482477 | $734,868 | $734,868 | $272.52 | | |
| CR | County Roads | 0.4584763726 | $734,868 | $734,868 | $336.92 | | |
| LCIB | Library Sno-Isle BOND (Camano Island) | 0.0396325772 | $734,868 | $734,868 | $29.12 | | |
| LIB | Library Sno-Isle GEN | 0.3153421757 | $734,868 | $734,868 | $231.73 | | |
| SCH205_401 | School 205-401 Enrichment | 1.2698420524 | $734,868 | $734,868 | $933.17 | | |
| SCH205BOND | School 205-401 BOND | 0.9396497583 | $734,868 | $734,868 | $690.52 | | |
| ST | State School | 1.3035497053 | $734,868 | $734,868 | $957.94 | | |
| ST2 | State School Part 2 | 0.8169543533 | $734,868 | $734,868 | $600.35 | | |
| | Total Tax Rate: | 7.3209764117 | | | | | |
| | | | | Taxes w/Current Exemptions: | $5,379.93 | | |
| | | | | Taxes w/o Exemptions: | $5,379.93 | | |
Improvement / Building
| Improvement #1: | RESIDENTIAL | State Code: | Y | 1643.0 sqft | Value: | $344,868 |
| Bathrooms: | 2.5 | Bedrooms: | 1 | | Ceiling: | DRYWALL PAINTED | Exterior Wall/Cover: | SHINGLE | | Floor Covering: | CARPET/VINYL 80-20 | Floor Structure: | WOOD W/SUBFLOOR | | Foundation: | CONCRETE | Heating: | WALL HEAT ELECTRIC | | Interior Finish: | DRYWALL PAINT | Plumbing Fixture Cnt: | 12 | | Roof Slope: | 6" IN 12" | Roof Structure/Cover: | CJ ASPHALT |
|
| | Type | Description | Class CD | Sub Class CD | Year Built | Area |
| | BAS | BASE/MAIN FLOOR | 4 | 0 | 1976 | 1083.0 |
| | OP1 | OPEN PORCH SLAB | 4 | 0 | 1976 | 96.0 |
| | UPS | UPPER STORY | 4 | 0 | 1976 | 560.0 |
| | OWP | OPEN WOOD PORCH W/STEPS | 4 | 0 | 1976 | 301.0 |
| | DGR | DETACHED GARAGE | 4 | 0 | 1976 | 744.0 |
| | OP4 | OPEN PORCH W/CEILING-ROOF | 4 | 0 | 1976 | 48.0 |
Sketch
Property Image
Land
| 1 | 14 | SQ (08001-12000) | 0.0000 | 0.00 | 0.00 | 0.00 | 1.00 | $390,000 | $0 |
Roll Value History
| 2026 | N/A | N/A | N/A | N/A | N/A |
| 2025 | $344,868 | $390,000 | $0 | $734,868 | $734,868 |
| 2024 | $349,210 | $360,000 | $0 | $709,210 | $709,210 |
| 2023 | $353,550 | $330,000 | $0 | $683,550 | $683,550 |
| 2022 | $324,157 | $300,000 | $0 | $624,157 | $624,157 |
| 2021 | $248,560 | $200,000 | $0 | $448,560 | $448,560 |
| 2020 | $242,640 | $200,000 | $0 | $442,640 | $442,640 |
| 2019 | $179,114 | $250,000 | $0 | $429,114 | $429,114 |
| 2018 | $179,676 | $230,000 | $0 | $409,676 | $409,676 |
| 2017 | $180,801 | $200,000 | $0 | $380,801 | $380,801 |
| 2016 | $183,049 | $150,000 | $0 | $333,049 | $333,049 |
| 2015 | $182,473 | $130,000 | $0 | $312,473 | $312,473 |
| 2014 | $184,533 | $130,000 | $0 | $314,533 | $314,533 |
| 2013 | $186,594 | $130,000 | $0 | $316,594 | $316,594 |
| 2012 | $188,654 | $138,384 | $0 | $327,038 | $327,038 |
| 2011 | $190,716 | $172,980 | $0 | $363,696 | $363,696 |
| 2010 | $200,267 | $172,980 | $0 | $373,247 | $373,247 |
| 2009 | $205,500 | $200,000 | $0 | $405,500 | $405,500 |
| 2008 | $208,492 | $220,000 | $0 | $428,492 | $428,492 |
| 2007 | $211,485 | $220,000 | $0 | $431,485 | $431,485 |
Deed and Sales History
| 1 | 04/24/2025 | WD | Warranty Deed | ENSLIN, JAMES E & JOAN L | LIONE, MARK A M | | | $750,000.00 | 63318 | 4585191 |
| 2 | 05/01/1997 | WD | Warranty Deed | ROBINSON, LYNN E | ENSLIN, JAMES E | | | $150,000.00 | 71794 | 97008121 |
| 3 | 01/01/1900 | OTHER | Other - Misc. Documents | Unknown | ROBINSON, LYNN E | | | $0.00 | 0 | 0 |
Payout Agreement
| No payout information available.. |