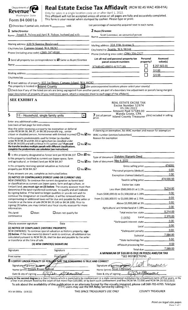
Property
Account |
| Property ID: | 211871 | Abbreviated Legal Description: | CCC 2 LOT 15 BLK 4 |
| Geographic ID: | S6250-02-04015-0 | Agent Code: | |
| Type: | Real | | |
| Tax Area: | 510 - APPRAISER-Stan/Cam Schl Dist, improved & 1 acre or less | Land Use Code | 11 |
| Open Space: | N | DFL | N |
| Historic Property: | N | Remodel Property: | N |
| Multi-Family Redevelopment: | N | | |
| Township: | | Section: | |
| Range: | |
Location |
| Address: | 1301 BEACH DR CAMANO ISLAND, WA 98282 | Mapsco: | |
| Neighborhood: | Cycle 5 | Map ID: | 932 |
| Neighborhood CD: | 5 |
Owner |
| Name: | JOBS TTEE, SUSAN HARRIS | Owner ID: | 288558 |
| Mailing Address: | 2414 43RD AVE E, UNIT S1 SEATTLE, WA 98112 | % Ownership: | 100.0000000000% |
| | | Exemptions: | |
Taxes and Assessment Details
Values
| (+) Improvement Homesite Value: | + | $0 | |
| (+) Improvement Non-Homesite Value: | + | $514,965 | |
| (+) Land Homesite Value: | + | $0 | |
| (+) Land Non-Homesite Value: | + | $1,025,600 | |
| (+) Curr Use (HS): | + | $0 | $0 |
| (+) Curr Use (NHS): | + | $0 | $0 |
| | | -------------------------- | |
| (=) Market Value: | = | $1,540,565 | |
| (–) Productivity Loss: | – | $0 | |
| | | -------------------------- | |
| (=) Subtotal: | = | $1,540,565 | |
| (+) Senior Appraised Value: | + | $0 | |
| (+) Non-Senior Appraised Value: | + | $1,540,565 | |
| | | -------------------------- | |
| (=) Total Appraised Value: | = | $1,540,565 | |
| (–) Senior Exemption Loss: | – | $0 | |
| (–) Exemption Loss: | – | $0 | |
| | | -------------------------- | |
| (=) Taxable Value: | = | $1,540,565 | |
Taxing Jurisdiction
| Owner: | JOBS TTEE, SUSAN HARRIS | | |
| % Ownership: | 100.0000000000% | | |
| Total Value: | $1,540,565 | | |
| Tax Area: | 510 - APPRAISER-Stan/Cam Schl Dist, improved & 1 acre or less |
| CF | Conservation Futures | 0.0316035091 | $1,540,565 | $1,540,565 | $48.69 | | |
| EMS1 | Fire & Rescue Dist #1 Camano GEN (EMS) | 0.3677864386 | $1,540,565 | $1,540,565 | $566.60 | | |
| FIRE1 | Fire & Rescue Dist #1 Camano GEN | 1.2502910536 | $1,540,565 | $1,540,565 | $1,926.15 | | |
| FIRE1BOND | Fire & Rescue Dist #1 Camano BOND | 0.1570001679 | $1,540,565 | $1,540,565 | $241.87 | | |
| CE | County Current Expense | 0.3708482477 | $1,540,565 | $1,540,565 | $571.32 | | |
| CR | County Roads | 0.4584763726 | $1,540,565 | $1,540,565 | $706.31 | | |
| LCIB | Library Sno-Isle BOND (Camano Island) | 0.0396325772 | $1,540,565 | $1,540,565 | $61.06 | | |
| LIB | Library Sno-Isle GEN | 0.3153421757 | $1,540,565 | $1,540,565 | $485.81 | | |
| SCH205_401 | School 205-401 Enrichment | 1.2698420524 | $1,540,565 | $1,540,565 | $1,956.27 | | |
| SCH205BOND | School 205-401 BOND | 0.9396497583 | $1,540,565 | $1,540,565 | $1,447.59 | | |
| ST | State School | 1.3035497053 | $1,540,565 | $1,540,565 | $2,008.20 | | |
| ST2 | State School Part 2 | 0.8169543533 | $1,540,565 | $1,540,565 | $1,258.57 | | |
| | Total Tax Rate: | 7.3209764117 | | | | | |
| | | | | Taxes w/Current Exemptions: | $11,278.44 | | |
| | | | | Taxes w/o Exemptions: | $11,278.44 | | |
Improvement / Building
| Improvement #1: | RESIDENTIAL | State Code: | Y | 2348.0 sqft | Value: | $514,965 |
| Bathrooms: | 3 | Bedrooms: | 3 | | Ceiling: | DRYWALL PAINTED | Exterior Wall/Cover: | SHINGLE | | Floor Covering: | HARDWOOD/CARP 80-20 | Floor Structure: | WOOD W/SUBFLOOR | | Foundation: | CONCRETE | Heating: | WALL HEAT ELECTRIC | | Interior Finish: | DRYWALL PAINT | Plumbing Fixture Cnt: | 12 | | Roof Slope: | 5" IN 12" | Roof Structure/Cover: | CJ ASPHALT |
|
| | Type | Description | Class CD | Sub Class CD | Year Built | Area |
| | BAS | BASE/MAIN FLOOR | 4 | 0 | 1960 | 1612.0 |
| | OP4 | OPEN PORCH W/CEILING-ROOF | 4 | 0 | 1960 | 300.0 |
| | AGR | ATTACHED GARAGE | 4 | 0 | 1960 | 650.0 |
| | UPS | UPPER STORY | 4 | 0 | 1960 | 736.0 |
| | OWP | OPEN WOOD PORCH W/STEPS | 4 | 0 | 1960 | 525.7 |
| | OWC | OPEN WOOD PORCH W/STEPS/ROOF/C | 4 | 0 | 1960 | 432.0 |
Sketch
Property Image
Land
| 1 | LB | LOW BANK | 0.0000 | 0.00 | 60.00 | 0.00 | 1.00 | $1,025,000 | $0 |
| 2 | 55 | TIDES | 0.0000 | 0.00 | 59.00 | 0.00 | 1.00 | $600 | $0 |
Roll Value History
| 2026 | N/A | N/A | N/A | N/A | N/A |
| 2025 | $514,965 | $1,025,600 | $0 | $1,540,565 | $1,540,565 |
| 2024 | $521,151 | $1,025,600 | $0 | $1,546,751 | $1,546,751 |
| 2023 | $527,337 | $1,025,600 | $0 | $1,552,937 | $1,552,937 |
| 2022 | $483,106 | $1,000,600 | $0 | $1,483,706 | $1,483,706 |
| 2021 | $387,130 | $850,600 | $0 | $1,237,730 | $1,237,730 |
| 2020 | $378,117 | $825,600 | $0 | $1,203,717 | $1,203,717 |
| 2019 | $287,120 | $875,600 | $0 | $1,162,720 | $1,162,720 |
| 2018 | $287,984 | $475,600 | $0 | $763,584 | $763,584 |
| 2017 | $289,707 | $475,600 | $0 | $765,307 | $765,307 |
| 2016 | $293,155 | $400,600 | $0 | $693,755 | $693,755 |
| 2015 | $293,575 | $400,600 | $0 | $694,175 | $694,175 |
| 2014 | $297,046 | $400,600 | $0 | $697,646 | $697,646 |
| 2013 | $300,516 | $528,980 | $0 | $829,496 | $829,496 |
| 2012 | $303,989 | $528,980 | $0 | $832,969 | $832,969 |
| 2011 | $307,458 | $556,790 | $0 | $864,248 | $864,248 |
| 2010 | $320,265 | $556,790 | $0 | $877,055 | $877,055 |
| 2009 | $346,489 | $627,242 | $0 | $973,731 | $973,731 |
| 2008 | $160,774 | $757,949 | $0 | $918,723 | $918,723 |
| 2007 | $162,918 | $482,217 | $0 | $645,135 | $645,135 |
Deed and Sales History
| 1 | 01/11/2019 | PRD | Personal Representatives Deed | JOBS, PETER E | JOBS TTEE, SUSAN HARRIS | | | $0.00 | 37364 | 4458202 |
| 2 | 01/15/1999 | WD | Warranty Deed | BRYANT, EDWARD A | JOBS, PETER E | | | $325,000.00 | 90300 | 99001815 |
| 3 | 08/01/1997 | WD | Warranty Deed | BRYANT, EDWARD A | BRYANT, EDWARD A | | | $0.00 | 72983 | 97014123 |
| 4 | 08/01/1997 | ESTSEPPROP | Establish Separate Property | BRYANT, ROBERT A | BRYANT, EDWARD A | | | $0.00 | 72984 | 97014124 |
| 5 | 07/01/1996 | QCD | Quit Claim Deed | BRYANT, MARIE E | BRYANT, ROBERT A | | | $0.00 | 62525 | 96012536 |
| 6 | 09/01/1992 | OTHER | Other - Misc. Documents | BRYANT, MARIE E | BRYANT, MARIE E | | | $0.00 | 65077 | 0 |
| 7 | 01/01/1900 | OTHER | Other - Misc. Documents | Unknown | BRYANT, MARIE E | | | $0.00 | 0 | 0 |
Payout Agreement
| No payout information available.. |