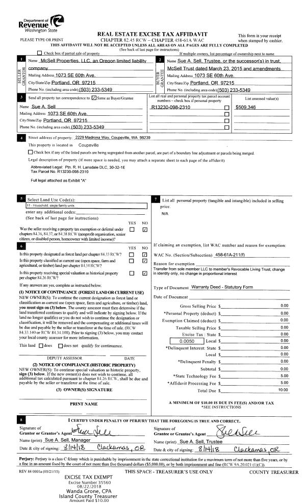
Property
Account |
| Property ID: | 211979 | Abbreviated Legal Description: | CCC 3 LOT 10 BLK 1 |
| Geographic ID: | S6250-03-01010-0 | Agent Code: | |
| Type: | Real | | |
| Tax Area: | 510 - APPRAISER-Stan/Cam Schl Dist, improved & 1 acre or less | Land Use Code | 11 |
| Open Space: | N | DFL | N |
| Historic Property: | N | Remodel Property: | N |
| Multi-Family Redevelopment: | N | | |
| Township: | | Section: | |
| Range: | |
Location |
| Address: | 1368 COUNTRY CLUB DR CAMANO ISLAND, WA 98282 | Mapsco: | |
| Neighborhood: | Cycle 5 | Map ID: | 932 |
| Neighborhood CD: | 5 |
Owner |
| Name: | WELCOME TO THE BEACH, LLC | Owner ID: | 305804 |
| Mailing Address: | 1001 4TH AVE STE 4200 SEATTLE, WA 98154 | % Ownership: | 100.0000000000% |
| | | Exemptions: | |
Taxes and Assessment Details
Values
| (+) Improvement Homesite Value: | + | $0 | |
| (+) Improvement Non-Homesite Value: | + | $199,696 | |
| (+) Land Homesite Value: | + | $0 | |
| (+) Land Non-Homesite Value: | + | $390,000 | |
| (+) Curr Use (HS): | + | $0 | $0 |
| (+) Curr Use (NHS): | + | $0 | $0 |
| | | -------------------------- | |
| (=) Market Value: | = | $589,696 | |
| (–) Productivity Loss: | – | $0 | |
| | | -------------------------- | |
| (=) Subtotal: | = | $589,696 | |
| (+) Senior Appraised Value: | + | $0 | |
| (+) Non-Senior Appraised Value: | + | $589,696 | |
| | | -------------------------- | |
| (=) Total Appraised Value: | = | $589,696 | |
| (–) Senior Exemption Loss: | – | $0 | |
| (–) Exemption Loss: | – | $0 | |
| | | -------------------------- | |
| (=) Taxable Value: | = | $589,696 | |
Taxing Jurisdiction
| Owner: | WELCOME TO THE BEACH, LLC | | |
| % Ownership: | 100.0000000000% | | |
| Total Value: | $589,696 | | |
| Tax Area: | 510 - APPRAISER-Stan/Cam Schl Dist, improved & 1 acre or less |
| CF | Conservation Futures | 0.0316035091 | $589,696 | $589,696 | $18.64 | | |
| EMS1 | Fire & Rescue Dist #1 Camano GEN (EMS) | 0.3677864386 | $589,696 | $589,696 | $216.88 | | |
| FIRE1 | Fire & Rescue Dist #1 Camano GEN | 1.2502910536 | $589,696 | $589,696 | $737.29 | | |
| FIRE1BOND | Fire & Rescue Dist #1 Camano BOND | 0.1570001679 | $589,696 | $589,696 | $92.58 | | |
| CE | County Current Expense | 0.3708482477 | $589,696 | $589,696 | $218.69 | | |
| CR | County Roads | 0.4584763726 | $589,696 | $589,696 | $270.36 | | |
| LCIB | Library Sno-Isle BOND (Camano Island) | 0.0396325772 | $589,696 | $589,696 | $23.37 | | |
| LIB | Library Sno-Isle GEN | 0.3153421757 | $589,696 | $589,696 | $185.96 | | |
| SCH205_401 | School 205-401 Enrichment | 1.2698420524 | $589,696 | $589,696 | $748.82 | | |
| SCH205BOND | School 205-401 BOND | 0.9396497583 | $589,696 | $589,696 | $554.11 | | |
| ST | State School | 1.3035497053 | $589,696 | $589,696 | $768.70 | | |
| ST2 | State School Part 2 | 0.8169543533 | $589,696 | $589,696 | $481.75 | | |
| | Total Tax Rate: | 7.3209764117 | | | | | |
| | | | | Taxes w/Current Exemptions: | $4,317.15 | | |
| | | | | Taxes w/o Exemptions: | $4,317.15 | | |
Improvement / Building
| Improvement #1: | RESIDENTIAL | State Code: | Y | 1080.3 sqft | Value: | $199,696 |
| Bathrooms: | 1 | Bedrooms: | 2 | | Ceiling: | DRYWALL PAINTED | Exterior Wall/Cover: | WOOD SIDING | | Floor Covering: | CARPET/VINYL 80-20 | Floor Structure: | WOOD W/SUBFLOOR | | Foundation: | CONCRETE | Heating: | FHA GAS | | Interior Finish: | DRYWALL PAINT | Plumbing Fixture Cnt: | 6 | | Roof Slope: | 6" IN 12" | Roof Structure/Cover: | CJ ASPHALT |
|
| | Type | Description | Class CD | Sub Class CD | Year Built | Area |
| | BAS | BASE/MAIN FLOOR | 3 | 0 | 1992 | 1080.3 |
| | AGR | ATTACHED GARAGE | 3 | 0 | 1992 | 308.0 |
| | OWP | OPEN WOOD PORCH W/STEPS | 3 | 0 | 1992 | 317.6 |
Sketch
Property Image
Land
| 1 | 13 | SQ (06001-08000) | 0.0000 | 0.00 | 0.00 | 0.00 | 1.00 | $390,000 | $0 |
Roll Value History
| 2026 | N/A | N/A | N/A | N/A | N/A |
| 2025 | $199,696 | $390,000 | $0 | $589,696 | $589,696 |
| 2024 | $202,216 | $360,000 | $0 | $562,216 | $562,216 |
| 2023 | $204,736 | $330,000 | $0 | $534,736 | $534,736 |
| 2022 | $187,676 | $300,000 | $0 | $487,676 | $487,676 |
| 2021 | $157,866 | $200,000 | $0 | $357,866 | $357,866 |
| 2020 | $154,007 | $180,000 | $0 | $334,007 | $334,007 |
| 2019 | $111,126 | $230,000 | $0 | $341,126 | $341,126 |
| 2018 | $111,468 | $200,000 | $0 | $311,468 | $311,468 |
| 2017 | $112,152 | $200,000 | $0 | $312,152 | $312,152 |
| 2016 | $113,520 | $110,000 | $0 | $223,520 | $223,520 |
| 2015 | $108,123 | $80,000 | $0 | $188,123 | $188,123 |
| 2014 | $109,535 | $80,000 | $0 | $189,535 | $189,535 |
| 2013 | $110,946 | $80,000 | $0 | $190,946 | $190,946 |
| 2012 | $112,357 | $86,304 | $0 | $198,661 | $198,661 |
| 2011 | $113,769 | $107,880 | $0 | $221,649 | $221,649 |
| 2010 | $118,052 | $107,880 | $0 | $225,932 | $225,932 |
| 2009 | $123,064 | $130,000 | $0 | $253,064 | $253,064 |
| 2008 | $124,524 | $160,000 | $0 | $284,524 | $284,524 |
| 2007 | $126,092 | $146,000 | $0 | $272,092 | $272,092 |
Deed and Sales History
| 1 | 01/31/2022 | QCD | Quit Claim Deed | EMERALD GREEN TRUST | WELCOME TO THE BEACH, LLC | | | $0.00 | 52420 | 4542086 |
| 2 | 08/09/2021 | QCD | Quit Claim Deed | CHACKO, SANU | EMERALD GREEN TRUST | | | $0.00 | 49626 | 4526858 |
| 3 | 11/02/2020 | QCD | Quit Claim Deed | CHACKO CCC, LLC | CHACKO, SANU | | | $0.00 | 45548 | 4501414 |
| 4 | 06/05/2018 | QCD | Quit Claim Deed | CHACKO, SANU K | CHACKO CCC, LLC | | | $0.00 | 35067 | 4448284 |
| 5 | 04/07/2009 | WD | Warranty Deed | NASH, PATRICIA A | CHACKO, SANU K | | | $258,000.00 | 90804 | 4248804 |
| 6 | 01/01/1992 | WD | Warranty Deed | SPOELSTRA, HENK | NASH, PATRICIA A | | | $36,000.00 | 20228 | 92000942 |
| 7 | 04/01/1990 | WD | Warranty Deed | SHORE, CAROLINE M | SPOELSTRA, HENK | | | $32,000.00 | 2082 | 90006751 |
| 8 | 12/01/1989 | WD | Warranty Deed | SANFORD, DONALD P | SHORE, CAROLINE M | | | $14,000.00 | 95857 | 89018786 |
| 9 | 09/01/1978 | OTHER | Other - Misc. Documents | Unknown | SANFORD, DONALD P | | | $14,950.00 | 84923 | 340856 |
Payout Agreement
| No payout information available.. |