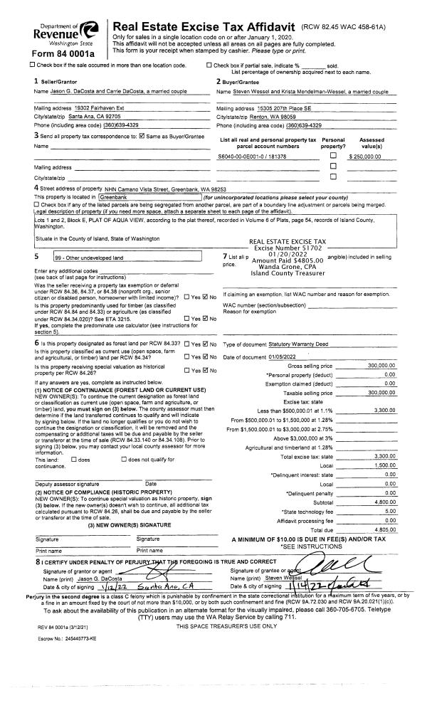
Property
Account |
| Property ID: | 211997 | Abbreviated Legal Description: | CCC 3 LOT 12 BLK 1 |
| Geographic ID: | S6250-03-01012-0 | Agent Code: | |
| Type: | Real | | |
| Tax Area: | 510 - APPRAISER-Stan/Cam Schl Dist, improved & 1 acre or less | Land Use Code | 11 |
| Open Space: | N | DFL | N |
| Historic Property: | N | Remodel Property: | N |
| Multi-Family Redevelopment: | N | | |
| Township: | | Section: | |
| Range: | |
Location |
| Address: | 1382 COUNTRY CLUB DR CAMANO ISLAND, WA 98282 | Mapsco: | |
| Neighborhood: | Cycle 5 | Map ID: | 932 |
| Neighborhood CD: | 5 |
Owner |
| Name: | HALL, ADAM | Owner ID: | 301486 |
| Mailing Address: | AMANDA LAWRIE-HALL 13828 175TH PL NE REDMOND, WA 98052 | % Ownership: | 100.0000000000% |
| | | Exemptions: | |
Taxes and Assessment Details
Values
| (+) Improvement Homesite Value: | + | $0 | |
| (+) Improvement Non-Homesite Value: | + | $200,179 | |
| (+) Land Homesite Value: | + | $0 | |
| (+) Land Non-Homesite Value: | + | $390,000 | |
| (+) Curr Use (HS): | + | $0 | $0 |
| (+) Curr Use (NHS): | + | $0 | $0 |
| | | -------------------------- | |
| (=) Market Value: | = | $590,179 | |
| (–) Productivity Loss: | – | $0 | |
| | | -------------------------- | |
| (=) Subtotal: | = | $590,179 | |
| (+) Senior Appraised Value: | + | $0 | |
| (+) Non-Senior Appraised Value: | + | $590,179 | |
| | | -------------------------- | |
| (=) Total Appraised Value: | = | $590,179 | |
| (–) Senior Exemption Loss: | – | $0 | |
| (–) Exemption Loss: | – | $0 | |
| | | -------------------------- | |
| (=) Taxable Value: | = | $590,179 | |
Taxing Jurisdiction
| Owner: | HALL, ADAM | | |
| % Ownership: | 100.0000000000% | | |
| Total Value: | $590,179 | | |
| Tax Area: | 510 - APPRAISER-Stan/Cam Schl Dist, improved & 1 acre or less |
| CF | Conservation Futures | 0.0316035091 | $590,179 | $590,179 | $18.65 | | |
| EMS1 | Fire & Rescue Dist #1 Camano GEN (EMS) | 0.3677864386 | $590,179 | $590,179 | $217.06 | | |
| FIRE1 | Fire & Rescue Dist #1 Camano GEN | 1.2502910536 | $590,179 | $590,179 | $737.90 | | |
| FIRE1BOND | Fire & Rescue Dist #1 Camano BOND | 0.1570001679 | $590,179 | $590,179 | $92.66 | | |
| CE | County Current Expense | 0.3708482477 | $590,179 | $590,179 | $218.87 | | |
| CR | County Roads | 0.4584763726 | $590,179 | $590,179 | $270.58 | | |
| LCIB | Library Sno-Isle BOND (Camano Island) | 0.0396325772 | $590,179 | $590,179 | $23.39 | | |
| LIB | Library Sno-Isle GEN | 0.3153421757 | $590,179 | $590,179 | $186.11 | | |
| SCH205_401 | School 205-401 Enrichment | 1.2698420524 | $590,179 | $590,179 | $749.43 | | |
| SCH205BOND | School 205-401 BOND | 0.9396497583 | $590,179 | $590,179 | $554.56 | | |
| ST | State School | 1.3035497053 | $590,179 | $590,179 | $769.33 | | |
| ST2 | State School Part 2 | 0.8169543533 | $590,179 | $590,179 | $482.15 | | |
| | Total Tax Rate: | 7.3209764117 | | | | | |
| | | | | Taxes w/Current Exemptions: | $4,320.69 | | |
| | | | | Taxes w/o Exemptions: | $4,320.69 | | |
Improvement / Building
| Improvement #1: | RESIDENTIAL | State Code: | Y | 2024.0 sqft | Value: | $200,179 |
| Bathrooms: | 1.75 | Bedrooms: | 2 | | Ceiling: | ACOUSTIC FURRED | Exterior Wall/Cover: | WOOD SIDING | | Floor Covering: | CARPET/VINYL 80-20 | Floor Structure: | WOOD W/SUBFLOOR | | Foundation: | CONCRETE | Heating: | BASEBOARD ELECTRIC | | Interior Finish: | DRYWALL PAINT | Plumbing Fixture Cnt: | 9 | | Roof Slope: | 8" IN 12" | Roof Structure/Cover: | CJ ASPHALT |
|
| | Type | Description | Class CD | Sub Class CD | Year Built | Area |
| | BAS | BASE/MAIN FLOOR | 3 | 0 | 1950 | 890.0 |
| | DWN | DOWNSTAIRS LIVING AREA | 3 | 0 | 1950 | 874.0 |
| | OP1 | OPEN PORCH SLAB | 3 | 0 | 1950 | 182.0 |
| | OCP | OPEN CARPORT | 3 | 0 | 1950 | 432.0 |
| | UPH | HALF STORY | 3 | 0 | 1950 | 260.0 |
| | OWP | OPEN WOOD PORCH W/STEPS | 3 | 0 | 1950 | 334.0 |
Sketch
Property Image
Land
| 1 | 13 | SQ (06001-08000) | 0.0000 | 0.00 | 0.00 | 0.00 | 1.00 | $390,000 | $0 |
Roll Value History
| 2026 | N/A | N/A | N/A | N/A | N/A |
| 2025 | $200,179 | $390,000 | $0 | $590,179 | $590,179 |
| 2024 | $207,707 | $360,000 | $0 | $567,707 | $567,707 |
| 2023 | $210,939 | $330,000 | $0 | $540,939 | $540,939 |
| 2022 | $193,932 | $300,000 | $0 | $493,932 | $493,932 |
| 2021 | $145,008 | $180,000 | $0 | $325,008 | $325,008 |
| 2020 | $142,147 | $150,000 | $0 | $292,147 | $292,147 |
| 2019 | $105,050 | $200,000 | $0 | $305,050 | $305,050 |
| 2018 | $105,478 | $170,000 | $0 | $275,478 | $275,478 |
| 2017 | $106,336 | $200,000 | $0 | $306,336 | $306,336 |
| 2016 | $108,052 | $110,000 | $0 | $218,052 | $218,052 |
| 2015 | $91,113 | $80,000 | $0 | $171,113 | $171,113 |
| 2014 | $92,793 | $80,000 | $0 | $172,793 | $172,793 |
| 2013 | $94,473 | $80,000 | $0 | $174,473 | $174,473 |
| 2012 | $96,151 | $86,304 | $0 | $182,455 | $182,455 |
| 2011 | $97,831 | $107,880 | $0 | $205,711 | $205,711 |
| 2010 | $107,345 | $107,880 | $0 | $215,225 | $215,225 |
| 2009 | $112,163 | $130,000 | $0 | $242,163 | $242,163 |
| 2008 | $113,815 | $160,000 | $0 | $273,815 | $273,815 |
| 2007 | $115,466 | $146,000 | $0 | $261,466 | $261,466 |
Deed and Sales History
| 1 | 10/01/2021 | WD | Warranty Deed | STANDAL, MICHAEL B | HALL, ADAM | | | $520,000.00 | 50360 | 4530850 |
| 2 | 11/01/1989 | WD | Warranty Deed | PALMER, ROBERT W | STANDAL, MICHAEL B | | | $91,500.00 | 95541 | 89017730 |
| 3 | 01/01/1900 | OTHER | Other - Misc. Documents | Unknown | PALMER, ROBERT W | | | $0.00 | 0 | 0 |
Payout Agreement
| No payout information available.. |