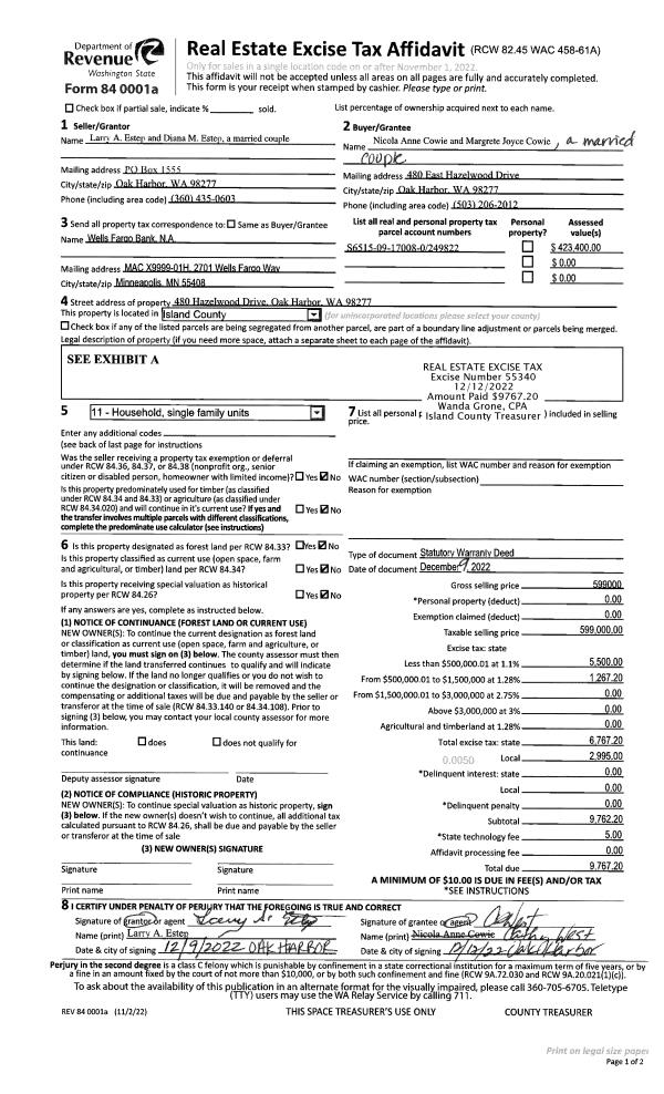
Property
Account |
| Property ID: | 212077 | Abbreviated Legal Description: | CCC 3 LOT 7 BLK 2 |
| Geographic ID: | S6250-03-02007-0 | Agent Code: | |
| Type: | Real | | |
| Tax Area: | 510 - APPRAISER-Stan/Cam Schl Dist, improved & 1 acre or less | Land Use Code | 11 |
| Open Space: | N | DFL | N |
| Historic Property: | N | Remodel Property: | N |
| Multi-Family Redevelopment: | N | | |
| Township: | | Section: | |
| Range: | |
Location |
| Address: | 1379 COUNTRY CLUB DR CAMANO ISLAND, WA 98282 | Mapsco: | |
| Neighborhood: | Cycle 5 | Map ID: | 932 |
| Neighborhood CD: | 5 |
Owner |
| Name: | BOYER TTEE, DAVID A | Owner ID: | 304154 |
| Mailing Address: | KATHLEEN A BOYER TTEE 1379 COUNTRY CLUB DR CAMANO ISLAND, WA 98282 | % Ownership: | 100.0000000000% |
| | | Exemptions: | |
Taxes and Assessment Details
Values
| (+) Improvement Homesite Value: | + | $0 | |
| (+) Improvement Non-Homesite Value: | + | $555,511 | |
| (+) Land Homesite Value: | + | $0 | |
| (+) Land Non-Homesite Value: | + | $420,000 | |
| (+) Curr Use (HS): | + | $0 | $0 |
| (+) Curr Use (NHS): | + | $0 | $0 |
| | | -------------------------- | |
| (=) Market Value: | = | $975,511 | |
| (–) Productivity Loss: | – | $0 | |
| | | -------------------------- | |
| (=) Subtotal: | = | $975,511 | |
| (+) Senior Appraised Value: | + | $0 | |
| (+) Non-Senior Appraised Value: | + | $975,511 | |
| | | -------------------------- | |
| (=) Total Appraised Value: | = | $975,511 | |
| (–) Senior Exemption Loss: | – | $0 | |
| (–) Exemption Loss: | – | $0 | |
| | | -------------------------- | |
| (=) Taxable Value: | = | $975,511 | |
Taxing Jurisdiction
| Owner: | BOYER TTEE, DAVID A | | |
| % Ownership: | 100.0000000000% | | |
| Total Value: | $975,511 | | |
| Tax Area: | 510 - APPRAISER-Stan/Cam Schl Dist, improved & 1 acre or less |
| CF | Conservation Futures | 0.0316035091 | $975,511 | $975,511 | $30.83 | | |
| EMS1 | Fire & Rescue Dist #1 Camano GEN (EMS) | 0.3677864386 | $975,511 | $975,511 | $358.78 | | |
| FIRE1 | Fire & Rescue Dist #1 Camano GEN | 1.2502910536 | $975,511 | $975,511 | $1,219.67 | | |
| FIRE1BOND | Fire & Rescue Dist #1 Camano BOND | 0.1570001679 | $975,511 | $975,511 | $153.16 | | |
| CE | County Current Expense | 0.3708482477 | $975,511 | $975,511 | $361.77 | | |
| CR | County Roads | 0.4584763726 | $975,511 | $975,511 | $447.25 | | |
| LCIB | Library Sno-Isle BOND (Camano Island) | 0.0396325772 | $975,511 | $975,511 | $38.66 | | |
| LIB | Library Sno-Isle GEN | 0.3153421757 | $975,511 | $975,511 | $307.62 | | |
| SCH205_401 | School 205-401 Enrichment | 1.2698420524 | $975,511 | $975,511 | $1,238.74 | | |
| SCH205BOND | School 205-401 BOND | 0.9396497583 | $975,511 | $975,511 | $916.64 | | |
| ST | State School | 1.3035497053 | $975,511 | $975,511 | $1,271.63 | | |
| ST2 | State School Part 2 | 0.8169543533 | $975,511 | $975,511 | $796.95 | | |
| | Total Tax Rate: | 7.3209764117 | | | | | |
| | | | | Taxes w/Current Exemptions: | $7,141.70 | | |
| | | | | Taxes w/o Exemptions: | $7,141.70 | | |
Improvement / Building
| Improvement #1: | RESIDENTIAL | State Code: | Y | 3088.0 sqft | Value: | $555,511 |
| Bathrooms: | 2.5 | Bedrooms: | 2 | | Ceiling: | DRYWALL PAINTED | Cooling: | HEAT PUMP/CONV/V | | Exterior Wall/Cover: | CEMENT FIBER | Floor Covering: | HARDWOOD/CARP 60-40 | | Floor Structure: | WOOD W/SUBFLOOR | Foundation: | CONCRETE | | Interior Finish: | DRYWALL PAINT | Plumbing Fixture Cnt: | 13 | | Roof Slope: | 5" IN 12" | Roof Structure/Cover: | CJ ASPHALT |
|
| | Type | Description | Class CD | Sub Class CD | Year Built | Area |
| | BAS | BASE/MAIN FLOOR | 4 | 0 | 2018 | 1564.0 |
| | AGR | ATTACHED GARAGE | 4 | 0 | 2018 | 504.0 |
| | DWN | DOWNSTAIRS LIVING AREA | 4 | 0 | 2018 | 1524.0 |
| | OWP | OPEN WOOD PORCH W/STEPS | 4 | 0 | 2018 | 404.0 |
| | OWP | OPEN WOOD PORCH W/STEPS | 4 | 0 | 2018 | 336.0 |
Sketch
Property Image
Land
| 1 | MB | MEDIUM BANK | 0.0000 | 0.00 | 70.00 | 0.00 | 1.00 | $420,000 | $0 |
Roll Value History
| 2026 | N/A | N/A | N/A | N/A | N/A |
| 2025 | $555,511 | $420,000 | $0 | $975,511 | $975,511 |
| 2024 | $559,990 | $420,000 | $0 | $979,990 | $979,990 |
| 2023 | $564,470 | $390,000 | $0 | $954,470 | $954,470 |
| 2022 | $515,193 | $380,000 | $0 | $895,193 | $895,193 |
| 2021 | $427,615 | $225,000 | $0 | $652,615 | $652,615 |
| 2020 | $416,819 | $200,000 | $0 | $616,819 | $616,819 |
| 2019 | $332,764 | $250,000 | $0 | $582,764 | $582,764 |
| 2018 | $97,067 | $155,000 | $0 | $252,067 | $252,067 |
| 2017 | $0 | $155,000 | $0 | $155,000 | $155,000 |
| 2016 | $0 | $155,000 | $0 | $155,000 | $155,000 |
| 2015 | $0 | $150,000 | $0 | $150,000 | $150,000 |
| 2014 | $0 | $150,000 | $0 | $150,000 | $150,000 |
| 2013 | $0 | $174,809 | $0 | $174,809 | $174,809 |
| 2012 | $0 | $174,809 | $0 | $174,809 | $174,809 |
| 2011 | $0 | $194,232 | $0 | $194,232 | $194,232 |
| 2010 | $0 | $194,232 | $0 | $194,232 | $194,232 |
| 2009 | $0 | $176,574 | $0 | $176,574 | $176,574 |
| 2008 | $0 | $211,889 | $0 | $211,889 | $211,889 |
| 2007 | $0 | $123,602 | $0 | $123,602 | $123,602 |
Deed and Sales History
| 1 | 04/28/2022 | WD | Warranty Deed | BOYER, DAVID A | BOYER TTEE, DAVID A | | | $0.00 | 53027 | 4544816 |
| 2 | 06/06/2017 | WD | Warranty Deed | CABREZA FAMILY REVOCABLE TRUST | BOYER, DAVID A | | | $175,000.00 | 29813 | 4424562 |
| 3 | 04/02/2010 | WD | Warranty Deed | CABREZA FAMILY REVOCABLE TRUST | CABREZA FAMILY REVOCABLE TRUST | | | $0.00 | 769 | 4271535 |
| 4 | 08/28/2009 | WD | Warranty Deed | HANSEN, JUDY L | CABREZA FAMILY REVOCABLE TRUST | | | $270,000.00 | 92067 | 4259493 |
| 5 | 06/01/1995 | QCD | Quit Claim Deed | ELHARDT, CONDON J | HANSEN, JUDY L | | | $0.00 | 52258 | 95010321 |
| 6 | 11/01/1993 | QCD | Quit Claim Deed | ELHARDT, CONDON J | ELHARDT, CONDON J | | | $0.00 | 34633 | 93024168 |
| 7 | 01/01/1900 | OTHER | Other - Misc. Documents | Unknown | ELHARDT, CONDON J | | | $0.00 | 0 | 0 |
Payout Agreement
| No payout information available.. |