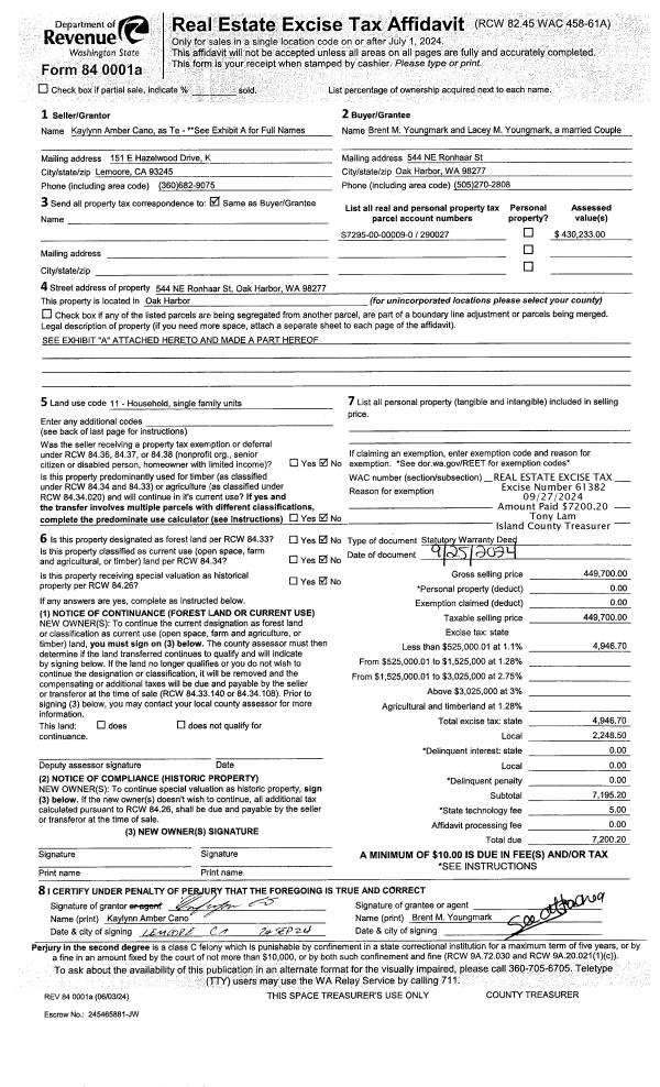
Property
Account |
| Property ID: | 212228 | Abbreviated Legal Description: | CAMANO COUNTRY CLUB #4 LOT 12 BLK 3 |
| Geographic ID: | S6250-04-03012-0 | Agent Code: | |
| Type: | Real | | |
| Tax Area: | 510 - APPRAISER-Stan/Cam Schl Dist, improved & 1 acre or less | Land Use Code | 11 |
| Open Space: | N | DFL | N |
| Historic Property: | N | Remodel Property: | N |
| Multi-Family Redevelopment: | N | | |
| Township: | | Section: | |
| Range: | |
Location |
| Address: | 1530 COUNTRY CLUB DR CAMANO ISLAND, WA 98282 | Mapsco: | |
| Neighborhood: | Cycle 5 | Map ID: | 930 |
| Neighborhood CD: | 5 |
Owner |
| Name: | MALERS, MICHELLE | Owner ID: | 311350 |
| Mailing Address: | 848 N SUNRISE BOULEVARD PMB 123 CAMANO ISLAND, WA 98282 | % Ownership: | 100.0000000000% |
| | | Exemptions: | |
Taxes and Assessment Details
Values
| (+) Improvement Homesite Value: | + | $0 | |
| (+) Improvement Non-Homesite Value: | + | $217,735 | |
| (+) Land Homesite Value: | + | $0 | |
| (+) Land Non-Homesite Value: | + | $310,000 | |
| (+) Curr Use (HS): | + | $0 | $0 |
| (+) Curr Use (NHS): | + | $0 | $0 |
| | | -------------------------- | |
| (=) Market Value: | = | $527,735 | |
| (–) Productivity Loss: | – | $0 | |
| | | -------------------------- | |
| (=) Subtotal: | = | $527,735 | |
| (+) Senior Appraised Value: | + | $0 | |
| (+) Non-Senior Appraised Value: | + | $527,735 | |
| | | -------------------------- | |
| (=) Total Appraised Value: | = | $527,735 | |
| (–) Senior Exemption Loss: | – | $0 | |
| (–) Exemption Loss: | – | $0 | |
| | | -------------------------- | |
| (=) Taxable Value: | = | $527,735 | |
Taxing Jurisdiction
| Owner: | MALERS, MICHELLE | | |
| % Ownership: | 100.0000000000% | | |
| Total Value: | $527,735 | | |
| Tax Area: | 510 - APPRAISER-Stan/Cam Schl Dist, improved & 1 acre or less |
| CF | Conservation Futures | 0.0316035091 | $527,735 | $527,735 | $16.68 | | |
| EMS1 | Fire & Rescue Dist #1 Camano GEN (EMS) | 0.3677864386 | $527,735 | $527,735 | $194.09 | | |
| FIRE1 | Fire & Rescue Dist #1 Camano GEN | 1.2502910536 | $527,735 | $527,735 | $659.82 | | |
| FIRE1BOND | Fire & Rescue Dist #1 Camano BOND | 0.1570001679 | $527,735 | $527,735 | $82.85 | | |
| CE | County Current Expense | 0.3708482477 | $527,735 | $527,735 | $195.71 | | |
| CR | County Roads | 0.4584763726 | $527,735 | $527,735 | $241.95 | | |
| LCIB | Library Sno-Isle BOND (Camano Island) | 0.0396325772 | $527,735 | $527,735 | $20.92 | | |
| LIB | Library Sno-Isle GEN | 0.3153421757 | $527,735 | $527,735 | $166.42 | | |
| SCH205_401 | School 205-401 Enrichment | 1.2698420524 | $527,735 | $527,735 | $670.14 | | |
| SCH205BOND | School 205-401 BOND | 0.9396497583 | $527,735 | $527,735 | $495.89 | | |
| ST | State School | 1.3035497053 | $527,735 | $527,735 | $687.93 | | |
| ST2 | State School Part 2 | 0.8169543533 | $527,735 | $527,735 | $431.14 | | |
| | Total Tax Rate: | 7.3209764117 | | | | | |
| | | | | Taxes w/Current Exemptions: | $3,863.54 | | |
| | | | | Taxes w/o Exemptions: | $3,863.54 | | |
Improvement / Building
| Improvement #1: | RESIDENTIAL | State Code: | Y | 1456.0 sqft | Value: | $217,735 |
| Bathrooms: | 2 | Bedrooms: | 2 | | Ceiling: | DRYWALL PAINTED | Exterior Wall/Cover: | PLY/HARDBOARD T-111 | | Floor Covering: | CARPET/VINYL 80-20 | Floor Structure: | WOOD W/SUBFLOOR | | Foundation: | CONCRETE | Heating: | WALL HEAT ELECTRIC | | Interior Finish: | DRYWALL PAINT | Plumbing Fixture Cnt: | 9 | | Roof Slope: | 4" IN 12" | Roof Structure/Cover: | CJ ASPHALT |
|
| | Type | Description | Class CD | Sub Class CD | Year Built | Area |
| | BAS | BASE/MAIN FLOOR | 3 | 0 | 1994 | 1456.0 |
| | OWP | OPEN WOOD PORCH W/STEPS | 3 | 0 | 1994 | 390.0 |
| | OWP | OPEN WOOD PORCH W/STEPS | 3 | 0 | 1994 | 75.0 |
Sketch
Property Image
Land
| 1 | 14 | SQ (08001-12000) | 0.0000 | 0.00 | 0.00 | 0.00 | 1.00 | $310,000 | $0 |
Roll Value History
| 2026 | N/A | N/A | N/A | N/A | N/A |
| 2025 | $217,735 | $310,000 | $0 | $527,735 | $527,735 |
| 2024 | $215,055 | $280,000 | $0 | $495,055 | $495,055 |
| 2023 | $217,735 | $275,000 | $0 | $492,735 | $492,735 |
| 2022 | $199,588 | $250,000 | $0 | $449,588 | $449,588 |
| 2021 | $154,997 | $180,000 | $0 | $334,997 | $334,997 |
| 2020 | $150,689 | $150,000 | $0 | $300,689 | $300,689 |
| 2019 | $105,176 | $200,000 | $0 | $305,176 | $305,176 |
| 2018 | $105,500 | $170,000 | $0 | $275,500 | $275,500 |
| 2017 | $106,146 | $125,000 | $0 | $231,146 | $231,146 |
| 2016 | $107,441 | $90,000 | $0 | $197,441 | $197,441 |
| 2015 | $108,402 | $50,000 | $0 | $158,402 | $158,402 |
| 2014 | $109,774 | $50,000 | $0 | $159,774 | $159,774 |
| 2013 | $111,146 | $50,000 | $0 | $161,146 | $161,146 |
| 2012 | $112,518 | $56,000 | $0 | $168,518 | $168,518 |
| 2011 | $113,891 | $70,000 | $0 | $183,891 | $183,891 |
| 2010 | $120,270 | $70,000 | $0 | $190,270 | $190,270 |
| 2009 | $124,465 | $100,000 | $0 | $224,465 | $224,465 |
| 2008 | $125,986 | $118,000 | $0 | $243,986 | $243,986 |
| 2007 | $127,507 | $118,000 | $0 | $245,507 | $245,507 |
Deed and Sales History
| 1 | 02/01/2024 | WD | Warranty Deed | HOINES, SHAWN J | MALERS, MICHELLE | | | $300,000.00 | 59146 | 4569129 |
| 2 | 04/01/1995 | QCD | Quit Claim Deed | HOINES, SHAWN J | HOINES, SHAWN J | | | $13,800.00 | 51476 | 95006913 |
| 3 | 01/01/1994 | QCD | Quit Claim Deed | SWANBERG, KAREN E | HOINES, SHAWN J | | | $0.00 | 40199 | 94001137 |
| 4 | 05/01/1982 | CD | DNU - Correction Deed | SWANBERG, MARVIN | SWANBERG, KAREN E | | | $0.00 | 21380 | 397245 |
| 5 | 01/01/1900 | OTHER | Other - Misc. Documents | Unknown | SWANBERG, MARVIN | | | $0.00 | 0 | 0 |
Payout Agreement
| No payout information available.. |