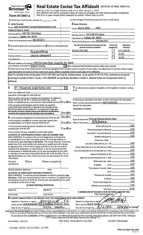
Property
Account |
| Property ID: | 212291 | Abbreviated Legal Description: | CCC 4 LOT 19 BLK 3 |
| Geographic ID: | S6250-04-03019-0 | Agent Code: | |
| Type: | Real | | |
| Tax Area: | 510 - APPRAISER-Stan/Cam Schl Dist, improved & 1 acre or less | Land Use Code | 11 |
| Open Space: | N | DFL | N |
| Historic Property: | N | Remodel Property: | N |
| Multi-Family Redevelopment: | N | | |
| Township: | | Section: | |
| Range: | |
Location |
| Address: | 1492 COUNTRY CLUB DR CAMANO ISLAND, WA 98282 | Mapsco: | |
| Neighborhood: | Cycle 5 | Map ID: | 930 |
| Neighborhood CD: | 5 |
Owner |
| Name: | PLAUTZ, BRANDON / SUZETTE | Owner ID: | 62737 |
| Mailing Address: | 1492 COUNTRY CLUB DR CAMANO ISLAND, WA 98282-7604 | % Ownership: | 100.0000000000% |
| | | Exemptions: | |
Taxes and Assessment Details
Values
| (+) Improvement Homesite Value: | + | $0 | |
| (+) Improvement Non-Homesite Value: | + | $356,528 | |
| (+) Land Homesite Value: | + | $0 | |
| (+) Land Non-Homesite Value: | + | $250,000 | |
| (+) Curr Use (HS): | + | $0 | $0 |
| (+) Curr Use (NHS): | + | $0 | $0 |
| | | -------------------------- | |
| (=) Market Value: | = | $606,528 | |
| (–) Productivity Loss: | – | $0 | |
| | | -------------------------- | |
| (=) Subtotal: | = | $606,528 | |
| (+) Senior Appraised Value: | + | $0 | |
| (+) Non-Senior Appraised Value: | + | $606,528 | |
| | | -------------------------- | |
| (=) Total Appraised Value: | = | $606,528 | |
| (–) Senior Exemption Loss: | – | $0 | |
| (–) Exemption Loss: | – | $0 | |
| | | -------------------------- | |
| (=) Taxable Value: | = | $606,528 | |
Taxing Jurisdiction
| Owner: | PLAUTZ, BRANDON / SUZETTE | | |
| % Ownership: | 100.0000000000% | | |
| Total Value: | $606,528 | | |
| Tax Area: | 510 - APPRAISER-Stan/Cam Schl Dist, improved & 1 acre or less |
| CF | Conservation Futures | 0.0316035091 | $606,528 | $606,528 | $19.17 | | |
| EMS1 | Fire & Rescue Dist #1 Camano GEN (EMS) | 0.3677864386 | $606,528 | $606,528 | $223.07 | | |
| FIRE1 | Fire & Rescue Dist #1 Camano GEN | 1.2502910536 | $606,528 | $606,528 | $758.34 | | |
| FIRE1BOND | Fire & Rescue Dist #1 Camano BOND | 0.1570001679 | $606,528 | $606,528 | $95.22 | | |
| CE | County Current Expense | 0.3708482477 | $606,528 | $606,528 | $224.93 | | |
| CR | County Roads | 0.4584763726 | $606,528 | $606,528 | $278.08 | | |
| LCIB | Library Sno-Isle BOND (Camano Island) | 0.0396325772 | $606,528 | $606,528 | $24.04 | | |
| LIB | Library Sno-Isle GEN | 0.3153421757 | $606,528 | $606,528 | $191.26 | | |
| SCH205_401 | School 205-401 Enrichment | 1.2698420524 | $606,528 | $606,528 | $770.19 | | |
| SCH205BOND | School 205-401 BOND | 0.9396497583 | $606,528 | $606,528 | $569.92 | | |
| ST | State School | 1.3035497053 | $606,528 | $606,528 | $790.64 | | |
| ST2 | State School Part 2 | 0.8169543533 | $606,528 | $606,528 | $495.51 | | |
| | Total Tax Rate: | 7.3209764117 | | | | | |
| | | | | Taxes w/Current Exemptions: | $4,440.37 | | |
| | | | | Taxes w/o Exemptions: | $4,440.37 | | |
Improvement / Building
| Improvement #1: | RESIDENTIAL | State Code: | Y | 2608.6 sqft | Value: | $356,528 |
| Bathrooms: | 2 | Bedrooms: | 3 | | Ceiling: | DRYWALL PAINTED | Cooling: | HEAT PUMP/CONV/V | | Exterior Wall/Cover: | CEMENT FIBER | Floor Covering: | CARPET/VINYL 80-20 | | Floor Structure: | WOOD W/SUBFLOOR | Foundation: | CONCRETE | | Interior Finish: | DRYWALL PAINT | Plumbing Fixture Cnt: | 9 | | Roof Slope: | 5" IN 12" | Roof Structure/Cover: | CJ ASPHALT |
|
| | Type | Description | Class CD | Sub Class CD | Year Built | Area |
| | BAS | BASE/MAIN FLOOR | 3 | 0 | 1998 | 1574.6 |
| | DWN | DOWNSTAIRS LIVING AREA | 3 | 0 | 1998 | 1034.0 |
| | BIG | BUILT IN GARAGE | 3 | 0 | 1998 | 380.0 |
| | BAW | BALCONY WOOD RAIL | 3 | 0 | 1998 | 176.0 |
| | OWR | OPEN WOOD PORCH W/STEPS/ROOF | 3 | 0 | 1998 | 162.0 |
Sketch
Property Image
Land
| 1 | 14 | SQ (08001-12000) | 0.0000 | 0.00 | 0.00 | 0.00 | 1.00 | $250,000 | $0 |
Roll Value History
| 2026 | N/A | N/A | N/A | N/A | N/A |
| 2025 | $356,528 | $250,000 | $0 | $606,528 | $606,528 |
| 2024 | $360,812 | $250,000 | $0 | $610,812 | $610,812 |
| 2023 | $365,094 | $210,000 | $0 | $575,094 | $575,094 |
| 2022 | $334,467 | $200,000 | $0 | $534,467 | $534,467 |
| 2021 | $270,358 | $140,000 | $0 | $410,358 | $410,358 |
| 2020 | $264,324 | $120,000 | $0 | $384,324 | $384,324 |
| 2019 | $208,622 | $170,000 | $0 | $378,622 | $378,622 |
| 2018 | $209,249 | $140,000 | $0 | $349,249 | $349,249 |
| 2017 | $210,453 | $90,000 | $0 | $300,453 | $300,453 |
| 2016 | $212,958 | $65,000 | $0 | $277,958 | $277,958 |
| 2015 | $197,477 | $60,000 | $0 | $257,477 | $257,477 |
| 2014 | $199,855 | $60,000 | $0 | $259,855 | $259,855 |
| 2013 | $202,230 | $60,000 | $0 | $262,230 | $262,230 |
| 2012 | $204,607 | $60,000 | $0 | $264,607 | $264,607 |
| 2011 | $206,984 | $75,000 | $0 | $281,984 | $281,984 |
| 2010 | $214,744 | $75,000 | $0 | $289,744 | $289,744 |
| 2009 | $223,997 | $100,000 | $0 | $323,997 | $323,997 |
| 2008 | $226,663 | $118,000 | $0 | $344,663 | $344,663 |
| 2007 | $229,373 | $118,000 | $0 | $347,373 | $347,373 |
Deed and Sales History
| 1 | 07/01/1996 | WD | Warranty Deed | BURNELL, INGA C | PLAUTZ, BRANDON/SUZETTE | | | $23,500.00 | 62809 | 96013740 |
| 2 | 09/01/1984 | QCD | Quit Claim Deed | BURNELL, INGA C | BURNELL, INGA C | | | $0.00 | 42611 | 84002821 |
| 3 | 01/01/1900 | OTHER | Other - Misc. Documents | Unknown | BURNELL, INGA C | | | $0.00 | 0 | 0 |
Payout Agreement
| No payout information available.. |