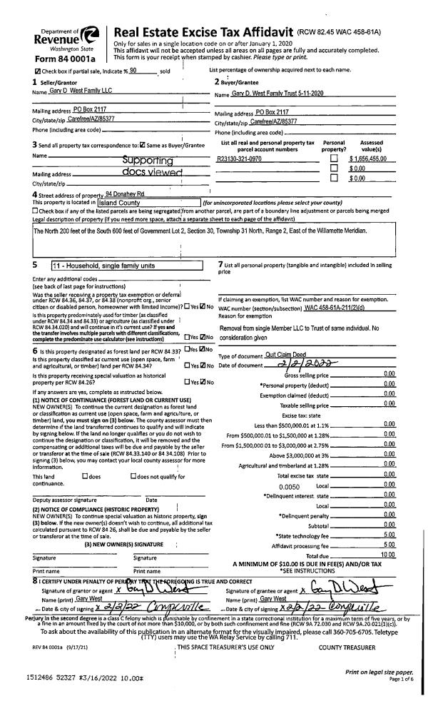
Property
Account |
| Property ID: | 212326 | Abbreviated Legal Description: | CCC 4 LOT 22 BLK 3 |
| Geographic ID: | S6250-04-03022-0 | Agent Code: | |
| Type: | Real | | |
| Tax Area: | 510 - APPRAISER-Stan/Cam Schl Dist, improved & 1 acre or less | Land Use Code | 11 |
| Open Space: | N | DFL | N |
| Historic Property: | N | Remodel Property: | N |
| Multi-Family Redevelopment: | N | | |
| Township: | | Section: | |
| Range: | |
Location |
| Address: | 1487 S EAST CAMANO DR CAMANO ISLAND, WA 98282 | Mapsco: | |
| Neighborhood: | Cycle 5 | Map ID: | 930 |
| Neighborhood CD: | 5 |
Owner |
| Name: | PELTONEN, KENNETH | Owner ID: | 273543 |
| Mailing Address: | ANNA PELTONEN 1487 S EAST CAMANO DR CAMANO ISLAND, WA 98282 | % Ownership: | 100.0000000000% |
| | | Exemptions: | |
Taxes and Assessment Details
Values
| (+) Improvement Homesite Value: | + | $0 | |
| (+) Improvement Non-Homesite Value: | + | $159,818 | |
| (+) Land Homesite Value: | + | $0 | |
| (+) Land Non-Homesite Value: | + | $310,000 | |
| (+) Curr Use (HS): | + | $0 | $0 |
| (+) Curr Use (NHS): | + | $0 | $0 |
| | | -------------------------- | |
| (=) Market Value: | = | $469,818 | |
| (–) Productivity Loss: | – | $0 | |
| | | -------------------------- | |
| (=) Subtotal: | = | $469,818 | |
| (+) Senior Appraised Value: | + | $0 | |
| (+) Non-Senior Appraised Value: | + | $469,818 | |
| | | -------------------------- | |
| (=) Total Appraised Value: | = | $469,818 | |
| (–) Senior Exemption Loss: | – | $0 | |
| (–) Exemption Loss: | – | $0 | |
| | | -------------------------- | |
| (=) Taxable Value: | = | $469,818 | |
Taxing Jurisdiction
| Owner: | PELTONEN, KENNETH | | |
| % Ownership: | 100.0000000000% | | |
| Total Value: | $469,818 | | |
| Tax Area: | 510 - APPRAISER-Stan/Cam Schl Dist, improved & 1 acre or less |
| CF | Conservation Futures | 0.0316035091 | $469,818 | $469,818 | $14.85 | | |
| EMS1 | Fire & Rescue Dist #1 Camano GEN (EMS) | 0.3677864386 | $469,818 | $469,818 | $172.79 | | |
| FIRE1 | Fire & Rescue Dist #1 Camano GEN | 1.2502910536 | $469,818 | $469,818 | $587.41 | | |
| FIRE1BOND | Fire & Rescue Dist #1 Camano BOND | 0.1570001679 | $469,818 | $469,818 | $73.76 | | |
| CE | County Current Expense | 0.3708482477 | $469,818 | $469,818 | $174.23 | | |
| CR | County Roads | 0.4584763726 | $469,818 | $469,818 | $215.40 | | |
| LCIB | Library Sno-Isle BOND (Camano Island) | 0.0396325772 | $469,818 | $469,818 | $18.62 | | |
| LIB | Library Sno-Isle GEN | 0.3153421757 | $469,818 | $469,818 | $148.15 | | |
| SCH205_401 | School 205-401 Enrichment | 1.2698420524 | $469,818 | $469,818 | $596.59 | | |
| SCH205BOND | School 205-401 BOND | 0.9396497583 | $469,818 | $469,818 | $441.46 | | |
| ST | State School | 1.3035497053 | $469,818 | $469,818 | $612.43 | | |
| ST2 | State School Part 2 | 0.8169543533 | $469,818 | $469,818 | $383.82 | | |
| | Total Tax Rate: | 7.3209764117 | | | | | |
| | | | | Taxes w/Current Exemptions: | $3,439.51 | | |
| | | | | Taxes w/o Exemptions: | $3,439.51 | | |
Improvement / Building
| Improvement #1: | RESIDENTIAL | State Code: | Y | 679.0 sqft | Value: | $159,818 |
| Bathrooms: | 1 | Bedrooms: | 2 | | Ceiling: | BEAM PAINTED | Cooling: | HEAT PUMP/CONV/V | | Exterior Wall/Cover: | LOG TO 10" | Floor Covering: | CERAMIC TILE/HWD 40/60 | | Floor Structure: | WOOD W/SUBFLOOR | Foundation: | CONCRETE | | Interior Finish: | DRYWALL PAINT | Plumbing Fixture Cnt: | 6 | | Roof Slope: | 4" IN 12" | Roof Structure/Cover: | BEAM ASPHALT |
|
| | Type | Description | Class CD | Sub Class CD | Year Built | Area |
| | BAS | BASE/MAIN FLOOR | 3 | 0 | 1957 | 679.0 |
| | AGR | ATTACHED GARAGE | 3 | 0 | 1957 | 360.0 |
| | OWP | OPEN WOOD PORCH W/STEPS | 3 | 0 | 1957 | 576.0 |
Sketch
Property Image
Land
| 1 | 14 | SQ (08001-12000) | 0.0000 | 0.00 | 0.00 | 0.00 | 1.00 | $310,000 | $0 |
Roll Value History
| 2026 | N/A | N/A | N/A | N/A | N/A |
| 2025 | $159,818 | $310,000 | $0 | $469,818 | $469,818 |
| 2024 | $160,775 | $280,000 | $0 | $440,775 | $440,775 |
| 2023 | $163,277 | $275,000 | $0 | $438,277 | $438,277 |
| 2022 | $150,115 | $250,000 | $0 | $400,115 | $400,115 |
| 2021 | $113,147 | $180,000 | $0 | $293,147 | $293,147 |
| 2020 | $110,477 | $150,000 | $0 | $260,477 | $260,477 |
| 2019 | $80,008 | $200,000 | $0 | $280,008 | $280,008 |
| 2018 | $80,297 | $170,000 | $0 | $250,297 | $250,297 |
| 2017 | $80,875 | $125,000 | $0 | $205,875 | $205,875 |
| 2016 | $82,031 | $90,000 | $0 | $172,031 | $172,031 |
| 2015 | $50,423 | $60,000 | $0 | $110,423 | $110,423 |
| 2014 | $51,388 | $60,000 | $0 | $111,388 | $111,388 |
| 2013 | $52,352 | $60,000 | $0 | $112,352 | $112,352 |
| 2012 | $53,316 | $60,000 | $0 | $113,316 | $113,316 |
| 2011 | $54,280 | $75,000 | $0 | $129,280 | $129,280 |
| 2010 | $61,398 | $75,000 | $0 | $136,398 | $136,398 |
| 2009 | $64,202 | $100,000 | $0 | $164,202 | $164,202 |
| 2008 | $67,289 | $125,000 | $0 | $192,289 | $192,289 |
| 2007 | $55,525 | $125,000 | $0 | $180,525 | $180,525 |
Deed and Sales History
| 1 | 01/20/2016 | WD | Warranty Deed | RICE, MARILYN G | PELTONEN, KENNETH | | | $186,000.00 | 22968 | 4393244 |
| 2 | 08/04/2006 | WD | Warranty Deed | HENNESSY, ROSEMARY C | RICE, MARILYN G | | | $230,000.00 | 63480 | 4178903 |
| 3 | 06/01/1997 | WD | Warranty Deed | QUINN, CRAIG P | HENNESSY, ROSEMARY C | | | $105,116.00 | 71842 | 97008398 |
| 4 | 07/01/1989 | WD | Warranty Deed | CUBBAGE, CLARKE W | QUINN, CRAIG P | | | $62,000.00 | 92854 | 89009572 |
| 5 | 08/01/1978 | OTHER | Other - Misc. Documents | Unknown | CUBBAGE, CLARKE W | | | $45,000.00 | 83727 | 337457 |
Payout Agreement
| No payout information available.. |