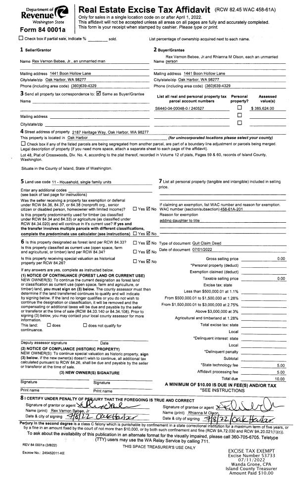
Property
Account |
| Property ID: | 212415 | Abbreviated Legal Description: | CCC 4 LOT 31 BLK 3 |
| Geographic ID: | S6250-04-03031-0 | Agent Code: | |
| Type: | Real | | |
| Tax Area: | 510 - APPRAISER-Stan/Cam Schl Dist, improved & 1 acre or less | Land Use Code | 11 |
| Open Space: | N | DFL | N |
| Historic Property: | N | Remodel Property: | N |
| Multi-Family Redevelopment: | N | | |
| Township: | | Section: | |
| Range: | |
Location |
| Address: | 1436 COUNTRY CLUB DR CAMANO ISLAND, WA 98282 | Mapsco: | |
| Neighborhood: | Cycle 5 | Map ID: | 930 |
| Neighborhood CD: | 5 |
Owner |
| Name: | HARTLEY, ROB | Owner ID: | 276823 |
| Mailing Address: | ANITA HARTLEY 1436 COUNTRY CLUB DR CAMANO ISLAND, WA 98282 | % Ownership: | 100.0000000000% |
| | | Exemptions: | SNR/DSBL |
Taxes and Assessment Details
Values
| (+) Improvement Homesite Value: | + | $281,809 | |
| (+) Improvement Non-Homesite Value: | + | $0 | |
| (+) Land Homesite Value: | + | $390,000 | |
| (+) Land Non-Homesite Value: | + | $0 | |
| (+) Curr Use (HS): | + | $0 | $0 |
| (+) Curr Use (NHS): | + | $0 | $0 |
| | | -------------------------- | |
| (=) Market Value: | = | $671,809 | |
| (–) Productivity Loss: | – | $0 | |
| | | -------------------------- | |
| (=) Subtotal: | = | $671,809 | |
| (+) Senior Appraised Value: | + | $409,289 | |
| (+) Non-Senior Appraised Value: | + | $0 | |
| | | -------------------------- | |
| (=) Total Appraised Value: | = | $409,289 | |
| (–) Senior Exemption Loss: | – | $245,573 | |
| (–) Exemption Loss: | – | $0 | |
| | | -------------------------- | |
| (=) Taxable Value: | = | $163,716 | |
Taxing Jurisdiction
| Owner: | HARTLEY, ROB | | |
| % Ownership: | 100.0000000000% | | |
| Total Value: | $671,809 | | |
| Tax Area: | 510 - APPRAISER-Stan/Cam Schl Dist, improved & 1 acre or less |
| CF | Conservation Futures | 0.0316035091 | $671,809 | $163,716 | $5.17 | | |
| EMS1 | Fire & Rescue Dist #1 Camano GEN (EMS) | 0.3677864386 | $671,809 | $163,716 | $60.21 | | |
| FIRE1 | Fire & Rescue Dist #1 Camano GEN | 1.2502910536 | $671,809 | $163,716 | $204.69 | | |
| FIRE1BOND | Fire & Rescue Dist #1 Camano BOND | 0.0000000000 | $671,809 | $0 | $0.00 | | |
| CE | County Current Expense | 0.3708482477 | $671,809 | $163,716 | $60.71 | | |
| CR | County Roads | 0.4584763726 | $671,809 | $163,716 | $75.06 | | |
| LCIB | Library Sno-Isle BOND (Camano Island) | 0.0000000000 | $671,809 | $0 | $0.00 | | |
| LIB | Library Sno-Isle GEN | 0.3153421757 | $671,809 | $163,716 | $51.63 | | |
| SCH205_401 | School 205-401 Enrichment | 0.0000000000 | $671,809 | $0 | $0.00 | | |
| SCH205BOND | School 205-401 BOND | 0.0000000000 | $671,809 | $0 | $0.00 | | |
| ST | State School | 1.3035497053 | $671,809 | $163,716 | $213.41 | | |
| ST2 | State School Part 2 | 0.0000000000 | $671,809 | $0 | $0.00 | | |
| | Total Tax Rate: | 4.0978975026 | | | | | |
| | | | | Taxes w/Current Exemptions: | $670.88 | | |
| | | | | Taxes w/o Exemptions: | $4,918.31 | | |
Improvement / Building
| Improvement #1: | RESIDENTIAL | State Code: | Y | 2113.0 sqft | Value: | $281,809 |
| Bathrooms: | 2 | Bedrooms: | 2 | | Ceiling: | DRYWALL PAINTED | Cooling: | HEAT PUMP/CONV/V | | Exterior Wall/Cover: | WOOD SIDING | Floor Covering: | CARPET/VINYL 20-80 | | Floor Structure: | WOOD W/SUBFLOOR | Foundation: | CONCRETE | | Interior Finish: | DRYWALL PAINT | Plumbing Fixture Cnt: | 9 | | Roof Slope: | 5" IN 12" | Roof Structure/Cover: | CJ ASPHALT |
|
| | Type | Description | Class CD | Sub Class CD | Year Built | Area |
| | BAS | BASE/MAIN FLOOR | 3 | 0 | 1958 | 1433.0 |
| | BIG | BUILT IN GARAGE | 3 | 0 | 1958 | 612.0 |
| | UPS | UPPER STORY | 3 | 0 | 1958 | 680.0 |
| | OWP | OPEN WOOD PORCH W/STEPS | 3 | 0 | 1958 | 265.9 |
Sketch
Property Image
Land
| 1 | 14 | SQ (08001-12000) | 0.0000 | 0.00 | 0.00 | 0.00 | 1.00 | $390,000 | $0 |
Roll Value History
| 2026 | N/A | N/A | N/A | N/A | N/A |
| 2025 | $281,809 | $390,000 | $0 | $671,809 | $163,716 |
| 2024 | $285,554 | $360,000 | $0 | $645,554 | $163,716 |
| 2023 | $289,299 | $330,000 | $0 | $619,299 | $163,716 |
| 2022 | $265,340 | $300,000 | $0 | $565,340 | $409,289 |
| 2021 | $209,289 | $200,000 | $0 | $409,289 | $409,289 |
| 2020 | $204,628 | $180,000 | $0 | $384,628 | $384,628 |
| 2019 | $157,783 | $230,000 | $0 | $387,783 | $387,783 |
| 2018 | $158,301 | $200,000 | $0 | $358,301 | $358,301 |
| 2017 | $159,336 | $200,000 | $0 | $359,336 | $359,336 |
| 2016 | $161,405 | $110,000 | $0 | $271,405 | $271,405 |
| 2015 | $157,971 | $80,000 | $0 | $237,971 | $67,557 |
| 2014 | $160,049 | $80,000 | $0 | $240,049 | $67,557 |
| 2013 | $162,128 | $80,000 | $0 | $242,128 | $67,557 |
| 2012 | $164,207 | $86,304 | $0 | $250,511 | $67,557 |
| 2011 | $166,285 | $107,880 | $0 | $274,165 | $67,557 |
| 2010 | $174,835 | $107,880 | $0 | $282,715 | $67,557 |
| 2009 | $182,123 | $130,000 | $0 | $312,123 | $67,557 |
| 2008 | $184,346 | $125,000 | $0 | $309,346 | $67,557 |
| 2007 | $186,568 | $125,000 | $0 | $311,568 | $67,557 |
Deed and Sales History
| 1 | 09/01/2016 | WD | Warranty Deed | BRONSON, ANNETTE T | HARTLEY, ROB | | | $349,950.00 | 26040 | 4406846 |
| 2 | 06/29/1999 | OTHER | Other - Misc. Documents | BRONSON, FREDERICK S | BRONSON, ANNETTE T | | | $0.00 | 68331 | 99000841 |
| 3 | 01/01/1900 | OTHER | Other - Misc. Documents | Unknown | BRONSON, FREDERICK S | | | $0.00 | 0 | 0 |
Payout Agreement
| No payout information available.. |