Property
Account |
| Property ID: | 212718 | Abbreviated Legal Description: | CCC 5 LOT 2 BLK 5 |
| Geographic ID: | S6250-05-05002-0 | Agent Code: | |
| Type: | Real | | |
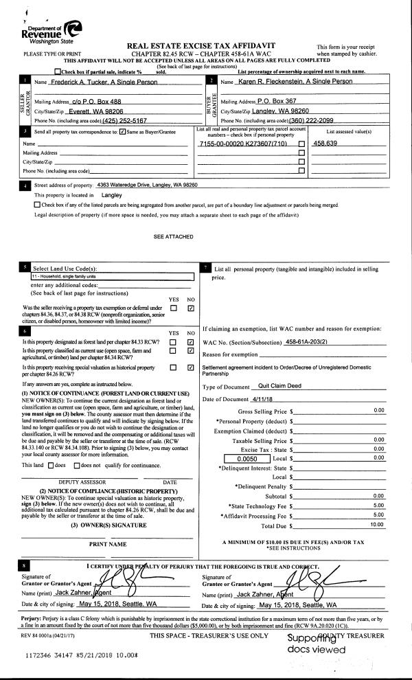
| Tax Area: | 510 - APPRAISER-Stan/Cam Schl Dist, improved & 1 acre or less | Land Use Code | 11 |
| Open Space: | N | DFL | N |
| Historic Property: | N | Remodel Property: | N |
| Multi-Family Redevelopment: | N | | |
| Township: | | Section: | |
| Range: | |
Location |
| Address: | 1546 S EAST CAMANO DR CAMANO ISLAND, WA 98282 | Mapsco: | |
| Neighborhood: | Cycle 5 | Map ID: | 930 |
| Neighborhood CD: | 5 |
Owner |
| Name: | PECKINPAUGH JR, DONALD JOE | Owner ID: | 286243 |
| Mailing Address: | 1546 S EAST CAMANO DR CAMANO ISLAND, WA 98282 | % Ownership: | 100.0000000000% |
| | | Exemptions: | |
Taxes and Assessment Details
Values
| (+) Improvement Homesite Value: | + | $0 | |
| (+) Improvement Non-Homesite Value: | + | $239,103 | |
| (+) Land Homesite Value: | + | $0 | |
| (+) Land Non-Homesite Value: | + | $250,000 | |
| (+) Curr Use (HS): | + | $0 | $0 |
| (+) Curr Use (NHS): | + | $0 | $0 |
| | | -------------------------- | |
| (=) Market Value: | = | $489,103 | |
| (–) Productivity Loss: | – | $0 | |
| | | -------------------------- | |
| (=) Subtotal: | = | $489,103 | |
| (+) Senior Appraised Value: | + | $0 | |
| (+) Non-Senior Appraised Value: | + | $489,103 | |
| | | -------------------------- | |
| (=) Total Appraised Value: | = | $489,103 | |
| (–) Senior Exemption Loss: | – | $0 | |
| (–) Exemption Loss: | – | $0 | |
| | | -------------------------- | |
| (=) Taxable Value: | = | $489,103 | |
Taxing Jurisdiction
| Owner: | PECKINPAUGH JR, DONALD JOE | | |
| % Ownership: | 100.0000000000% | | |
| Total Value: | $489,103 | | |
| Tax Area: | 510 - APPRAISER-Stan/Cam Schl Dist, improved & 1 acre or less |
| CF | Conservation Futures | 0.0316035091 | $489,103 | $489,103 | $15.46 | | |
| EMS1 | Fire & Rescue Dist #1 Camano GEN (EMS) | 0.3677864386 | $489,103 | $489,103 | $179.89 | | |
| FIRE1 | Fire & Rescue Dist #1 Camano GEN | 1.2502910536 | $489,103 | $489,103 | $611.52 | | |
| FIRE1BOND | Fire & Rescue Dist #1 Camano BOND | 0.1570001679 | $489,103 | $489,103 | $76.79 | | |
| CE | County Current Expense | 0.3708482477 | $489,103 | $489,103 | $181.38 | | |
| CR | County Roads | 0.4584763726 | $489,103 | $489,103 | $224.24 | | |
| LCIB | Library Sno-Isle BOND (Camano Island) | 0.0396325772 | $489,103 | $489,103 | $19.38 | | |
| LIB | Library Sno-Isle GEN | 0.3153421757 | $489,103 | $489,103 | $154.23 | | |
| SCH205_401 | School 205-401 Enrichment | 1.2698420524 | $489,103 | $489,103 | $621.08 | | |
| SCH205BOND | School 205-401 BOND | 0.9396497583 | $489,103 | $489,103 | $459.59 | | |
| ST | State School | 1.3035497053 | $489,103 | $489,103 | $637.57 | | |
| ST2 | State School Part 2 | 0.8169543533 | $489,103 | $489,103 | $399.57 | | |
| | Total Tax Rate: | 7.3209764117 | | | | | |
| | | | | Taxes w/Current Exemptions: | $3,580.70 | | |
| | | | | Taxes w/o Exemptions: | $3,580.70 | | |
Improvement / Building
| Improvement #1: | RESIDENTIAL | State Code: | Y | 1595.0 sqft | Value: | $239,103 |
| Bathrooms: | 2 | Bedrooms: | 2 | | Ceiling: | DRYWALL PAINTED | Exterior Wall/Cover: | WOOD SIDING | | Floor Covering: | CARPET/VINYL 80-20 | Floor Structure: | WOOD W/SUBFLOOR | | Foundation: | CONCRETE BLOCKS | Heating: | WALL HEAT ELECTRIC | | Interior Finish: | DRYWALL PAINT | Plumbing Fixture Cnt: | 9 | | Roof Slope: | 4" IN 12" | Roof Structure/Cover: | BEAM ASPHALT |
|
| | Type | Description | Class CD | Sub Class CD | Year Built | Area |
| | BAS | BASE/MAIN FLOOR | 3 | 0 | 1967 | 1595.0 |
| | OP1 | OPEN PORCH SLAB | 3 | 0 | 1967 | 240.0 |
| | OWP | OPEN WOOD PORCH W/STEPS | 3 | 0 | 1967 | 330.0 |
| | OWC | OPEN WOOD PORCH W/STEPS/ROOF/C | 3 | 0 | 1967 | 25.0 |
| | DGR | DETACHED GARAGE | 3 | 0 | 1967 | 672.0 |
Sketch
Property Image
Land
| 1 | 14 | SQ (08001-12000) | 0.0000 | 0.00 | 0.00 | 0.00 | 1.00 | $250,000 | $0 |
Roll Value History
| 2026 | N/A | N/A | N/A | N/A | N/A |
| 2025 | $239,103 | $250,000 | $0 | $489,103 | $489,103 |
| 2024 | $242,556 | $250,000 | $0 | $492,556 | $492,556 |
| 2023 | $246,008 | $210,000 | $0 | $456,008 | $456,008 |
| 2022 | $225,882 | $200,000 | $0 | $425,882 | $425,882 |
| 2021 | $182,922 | $140,000 | $0 | $322,922 | $322,922 |
| 2020 | $178,673 | $120,000 | $0 | $298,673 | $298,673 |
| 2019 | $130,719 | $170,000 | $0 | $300,719 | $300,719 |
| 2018 | $131,177 | $140,000 | $0 | $271,177 | $271,177 |
| 2017 | $132,094 | $90,000 | $0 | $222,094 | $222,094 |
| 2016 | $133,929 | $65,000 | $0 | $198,929 | $198,929 |
| 2015 | $126,798 | $50,000 | $0 | $176,798 | $176,798 |
| 2014 | $128,471 | $50,000 | $0 | $178,471 | $178,471 |
| 2013 | $130,146 | $50,000 | $0 | $180,146 | $180,146 |
| 2012 | $131,819 | $56,000 | $0 | $187,819 | $187,819 |
| 2011 | $133,493 | $70,000 | $0 | $203,493 | $203,493 |
| 2010 | $139,714 | $70,000 | $0 | $209,714 | $209,714 |
| 2009 | $146,893 | $90,000 | $0 | $236,893 | $236,893 |
| 2008 | $148,799 | $118,000 | $0 | $266,799 | $266,799 |
| 2007 | $150,767 | $118,000 | $0 | $268,767 | $268,767 |
Deed and Sales History
| 1 | 07/30/2018 | WD | Warranty Deed | DICARLO, PHILIP A | PECKINPAUGH JR, DONALD JOE | | | $250,000.00 | 35252 | 4449075 |
| 2 | 08/09/2013 | BARGSLD | Bargain And Sale Deed | FEDERAL HOME LOAN MORTGAGE CORPORATION | DICARLO, PHILIP A | | | $172,000.00 | 12465 | 4346653 |
| 3 | 08/06/2012 | TRUSTEED | Trustee's Deed | MCNAUGHTON, JAMES C | FEDERAL HOME LOAN MORTGAGE CORPORATION | | | $190,281.00 | 8491 | 4320906 |
| 4 | 12/07/2000 | QCD | Quit Claim Deed | MCNAUGHTON, JAMES C | MCNAUGHTON, JAMES C | | | $0.00 | 4665 | 20021669 |
| 5 | 11/01/1993 | WD | Warranty Deed | MCNAUGHTON, CONSTANCE M | MCNAUGHTON, JAMES C | | | $70,000.00 | 34504 | 93023457 |
| 6 | 11/01/1980 | TRUSTEED | Trustee's Deed | PIGG, JAY D | MCNAUGHTON, CONSTANCE M | | | $69,500.00 | 4005 | 376935 |
| 7 | 01/01/1900 | OTHER | Other - Misc. Documents | Unknown | PIGG, JAY D | | | $0.00 | 0 | 0 |
Payout Agreement
| No payout information available.. |