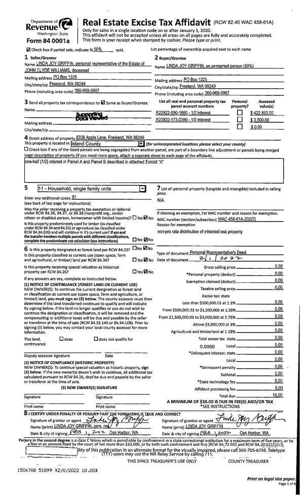
Property
Account |
| Property ID: | 212790 | Abbreviated Legal Description: | CCC 5 LOT 11 BLK 5 |
| Geographic ID: | S6250-05-05011-0 | Agent Code: | |
| Type: | Real | | |
| Tax Area: | 510 - APPRAISER-Stan/Cam Schl Dist, improved & 1 acre or less | Land Use Code | 11 |
| Open Space: | N | DFL | N |
| Historic Property: | N | Remodel Property: | N |
| Multi-Family Redevelopment: | N | | |
| Township: | | Section: | |
| Range: | |
Location |
| Address: | 1506 S EAST CAMANO DR CAMANO ISLAND, WA 98282 | Mapsco: | |
| Neighborhood: | Cycle 5 | Map ID: | 930 |
| Neighborhood CD: | 5 |
Owner |
| Name: | FEDIOUNINE, MAXIM | Owner ID: | 294893 |
| Mailing Address: | 1506 SE CAMANO DR CAMANO ISLAND, WA 98282 | % Ownership: | 100.0000000000% |
| | | Exemptions: | |
Taxes and Assessment Details
Values
| (+) Improvement Homesite Value: | + | $0 | |
| (+) Improvement Non-Homesite Value: | + | $284,246 | |
| (+) Land Homesite Value: | + | $0 | |
| (+) Land Non-Homesite Value: | + | $250,000 | |
| (+) Curr Use (HS): | + | $0 | $0 |
| (+) Curr Use (NHS): | + | $0 | $0 |
| | | -------------------------- | |
| (=) Market Value: | = | $534,246 | |
| (–) Productivity Loss: | – | $0 | |
| | | -------------------------- | |
| (=) Subtotal: | = | $534,246 | |
| (+) Senior Appraised Value: | + | $0 | |
| (+) Non-Senior Appraised Value: | + | $534,246 | |
| | | -------------------------- | |
| (=) Total Appraised Value: | = | $534,246 | |
| (–) Senior Exemption Loss: | – | $0 | |
| (–) Exemption Loss: | – | $0 | |
| | | -------------------------- | |
| (=) Taxable Value: | = | $534,246 | |
Taxing Jurisdiction
| Owner: | FEDIOUNINE, MAXIM | | |
| % Ownership: | 100.0000000000% | | |
| Total Value: | $534,246 | | |
| Tax Area: | 510 - APPRAISER-Stan/Cam Schl Dist, improved & 1 acre or less |
| CF | Conservation Futures | 0.0316035091 | $534,246 | $534,246 | $16.88 | | |
| EMS1 | Fire & Rescue Dist #1 Camano GEN (EMS) | 0.3677864386 | $534,246 | $534,246 | $196.49 | | |
| FIRE1 | Fire & Rescue Dist #1 Camano GEN | 1.2502910536 | $534,246 | $534,246 | $667.96 | | |
| FIRE1BOND | Fire & Rescue Dist #1 Camano BOND | 0.1570001679 | $534,246 | $534,246 | $83.88 | | |
| CE | County Current Expense | 0.3708482477 | $534,246 | $534,246 | $198.12 | | |
| CR | County Roads | 0.4584763726 | $534,246 | $534,246 | $244.94 | | |
| LCIB | Library Sno-Isle BOND (Camano Island) | 0.0396325772 | $534,246 | $534,246 | $21.17 | | |
| LIB | Library Sno-Isle GEN | 0.3153421757 | $534,246 | $534,246 | $168.47 | | |
| SCH205_401 | School 205-401 Enrichment | 1.2698420524 | $534,246 | $534,246 | $678.41 | | |
| SCH205BOND | School 205-401 BOND | 0.9396497583 | $534,246 | $534,246 | $502.00 | | |
| ST | State School | 1.3035497053 | $534,246 | $534,246 | $696.42 | | |
| ST2 | State School Part 2 | 0.8169543533 | $534,246 | $534,246 | $436.45 | | |
| | Total Tax Rate: | 7.3209764117 | | | | | |
| | | | | Taxes w/Current Exemptions: | $3,911.19 | | |
| | | | | Taxes w/o Exemptions: | $3,911.19 | | |
Improvement / Building
| Improvement #1: | RESIDENTIAL | State Code: | Y | 1577.2 sqft | Value: | $284,246 |
| Bathrooms: | 2 | Bedrooms: | 3 | | Ceiling: | DRY WALL SPRAYED | Exterior Wall/Cover: | PLY/HARDBOARD T-111 | | Floor Covering: | VINYL 100% | Floor Structure: | WOOD W/SUBFLOOR | | Foundation: | CONCRETE | Heating: | WALL HEAT ELECTRIC | | Interior Finish: | DRYWALL PAINT | Plumbing Fixture Cnt: | 9 | | Roof Slope: | 8" IN 12" | Roof Structure/Cover: | CJ ASPHALT |
|
| | Type | Description | Class CD | Sub Class CD | Year Built | Area |
| | BAS | BASE/MAIN FLOOR | 3 | 0 | 2000 | 1577.2 |
| | AGR | ATTACHED GARAGE | 3 | 0 | 2000 | 500.0 |
| | OWP | OPEN WOOD PORCH W/STEPS | 3 | 0 | 2000 | 42.0 |
| | OP1 | OPEN PORCH SLAB | 3 | 0 | 2000 | 580.0 |
Sketch
Property Image
Land
| 1 | 14 | SQ (08001-12000) | 0.0000 | 0.00 | 0.00 | 0.00 | 1.00 | $250,000 | $0 |
Roll Value History
| 2026 | N/A | N/A | N/A | N/A | N/A |
| 2025 | $284,246 | $250,000 | $0 | $534,246 | $534,246 |
| 2024 | $287,581 | $250,000 | $0 | $537,581 | $537,581 |
| 2023 | $290,915 | $210,000 | $0 | $500,915 | $500,915 |
| 2022 | $266,452 | $200,000 | $0 | $466,452 | $466,452 |
| 2021 | $228,666 | $140,000 | $0 | $368,666 | $368,666 |
| 2020 | $212,742 | $120,000 | $0 | $332,742 | $332,742 |
| 2019 | $155,119 | $170,000 | $0 | $325,119 | $325,119 |
| 2018 | $155,562 | $140,000 | $0 | $295,562 | $295,562 |
| 2017 | $156,451 | $90,000 | $0 | $246,451 | $246,451 |
| 2016 | $158,229 | $65,000 | $0 | $223,229 | $223,229 |
| 2015 | $148,432 | $50,000 | $0 | $198,432 | $198,432 |
| 2014 | $150,079 | $50,000 | $0 | $200,079 | $200,079 |
| 2013 | $151,729 | $50,000 | $0 | $201,729 | $201,729 |
| 2012 | $153,378 | $56,000 | $0 | $209,378 | $209,378 |
| 2011 | $112,009 | $70,000 | $0 | $182,009 | $182,009 |
| 2010 | $112,499 | $70,000 | $0 | $182,499 | $182,499 |
| 2009 | $123,626 | $90,000 | $0 | $213,626 | $213,626 |
| 2008 | $125,201 | $130,000 | $0 | $255,201 | $255,201 |
| 2007 | $125,491 | $118,000 | $0 | $243,491 | $243,491 |
Deed and Sales History
| 1 | 06/16/2020 | WD | Warranty Deed | PRAKASH, VIKASH J | FEDIOUNINE, MAXIM | | | $0.00 | 51201 | 4535233 |
| 2 | 06/16/2020 | WD | Warranty Deed | PRAKASH, VIKASH J | FEDIOUNINE, MAXIM | | | $383,000.00 | 43509 | 4489624 |
| 3 | 12/31/2013 | WD | Warranty Deed | TURNER, MICHAEL & ELIZABETH | PRAKASH, VIKASH J | | | $0.00 | 15120 | 4358726 |
| 4 | 03/21/2007 | WD | Warranty Deed | OXLEY, JOSHUA | TURNER, MICHAEL & ELIZABETH | | | $245,000.00 | 71099 | 4198350 |
| 5 | 07/03/2003 | WD | Warranty Deed | DUNCAN, DANNY K | OXLEY, JOSHUA | | | $152,200.00 | 32971 | 4066264 |
| 6 | 03/20/2000 | WD | Warranty Deed | WITHERS, JAYSON W | DUNCAN, DANNY K | | | $129,950.00 | 1194 | 20005841 |
| 7 | 08/09/1999 | WD | Warranty Deed | TERRY-LORIMOR, LINDA | WITHERS, JAYSON W | | | $35,000.00 | 93358 | 99019256 |
| 8 | 03/01/1997 | 5 | DNU - Marriage License/Name Change | TERRY, JOHN W | TERRY-LORIMOR, LINDA | | | $0.00 | 67280 | 93003954 |
| 9 | 09/01/1988 | QCD | Quit Claim Deed | SMITH, NORA G | TERRY, JOHN W | | | $0.00 | 83442 | 88012894 |
| 10 | 01/01/1900 | OTHER | Other - Misc. Documents | Unknown | SMITH, NORA G | | | $0.00 | 0 | 0 |
Payout Agreement
| No payout information available.. |